Popularne i sprawdzone układy funkcjonalne i metraże mieszkań
Średnia ocen 5/5 na podstawie 1 głosu
:format(jpg)/articles/gallery/image/12620/uk%C5%82ad-funkcjonalny-mieszkania_8434a8.jpg)
Sprawdziliśmy, jakie metraże i rozkłady dominują w ofertach deweloperów, co wlicza się w metraż mieszkania i jak wyglądają oficjalne normy powierzchniowe, aby pomóc ci wybrać najlepszy układ mieszkania. Podpowiadamy, co – oprócz metrażu – warto uwzględniać przy wyborze lokalu.
W 2025 roku w ofercie deweloperów dominują mieszkania 2- i 3-pokojowe – o metrażu 40–70 mkw., z układem funkcjonalnym typu „salon z aneksem kuchennym”. Taki układ mieszkania najlepiej odpowiada na potrzeby współczesnych nabywców, od singli po małe rodziny.
Najpopularniejsze układy funkcjonalne mieszkania: najważniejsze informacje
- Metraż mieszkania to jego powierzchnia użytkowa, do której zazwyczaj nie wlicza się balkonu, tarasu ani piwnicy. Minimalna powierzchnia mieszkania w nowym budownictwie to 25 mkw.
- Średni metraż mieszkania w Polsce to ok. 58 mkw., ale na rynku pierwotnym w dużych miastach dominują lokale 2-pokojowe (38-50 mkw.) i 3-pokojowe (55-70 mkw.).
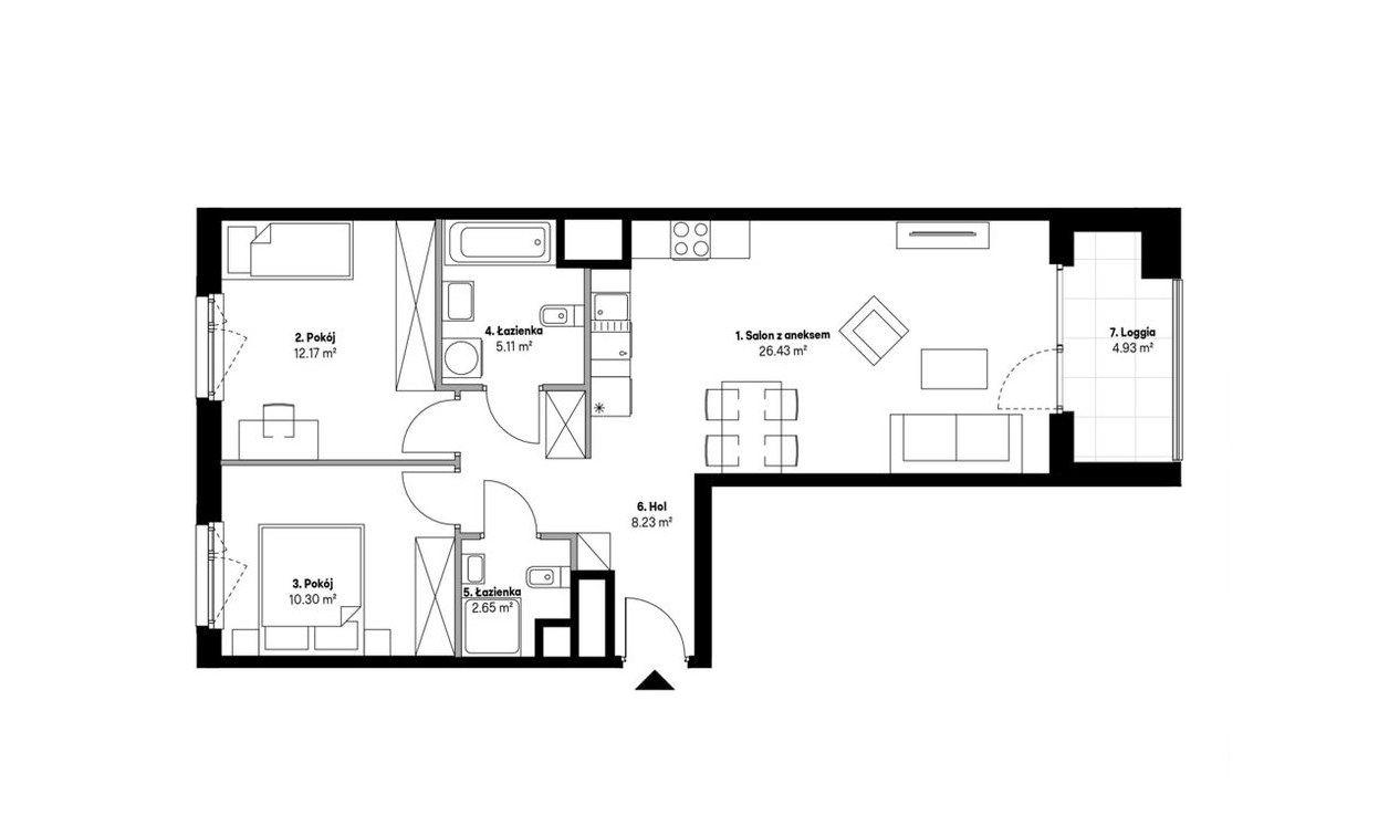
- Najpopularniejszym układem jest układ rozkładowy z otwartą strefą dzienną, czyli salonem z aneksem kuchennym, oraz wyraźnie oddzieloną strefą prywatną (sypialniami).
- Najlepszy układ mieszkania zależy od indywidualnych potrzeb, jednak zawsze warto wybierać układy pozbawione długich korytarzy i pomieszczeń przechodnich, z dobrym doświetleniem.
- Zmiana układu mieszkania jest możliwa w zakresie ścian działowych, ale ograniczona przez lokalizację ścian nośnych i pionów instalacyjnych.
Co to jest metraż mieszkania i co się w niego wlicza
To pytanie, choć wydaje się proste, ma kluczowe znaczenie przy zakupie nieruchomości. Metraż mieszkania to inaczej jego powierzchnia użytkowa, czyli suma powierzchni wszystkich pomieszczeń w lokalu, takich jak pokoje, kuchnia, łazienka czy korytarz.
Sposób, jak obliczyć powierzchnię, jest ściśle określony w normach budowlanych.
Jednak nie wszystkie powierzchnie przynależne do lokalu wchodzą w skład metrażu wliczanej do ceny. Najwięcej wątpliwości budzą takie elementy jak balkon, loggia, taras, piwnica czy komórka lokatorska. Zgodnie z obowiązującymi przepisami, odpowiedź na pytanie, czy balkon wlicza się do powierzchni użytkowej, brzmi: nie. Podobnie jest z piwnicą czy komórką lokatorską – są to tzw. powierzchnie przynależne, które deweloper sprzedaje osobno lub wlicza w cenę lokalu, ale nie są one częścią jego oficjalnej powierzchni użytkowej. Warto jednak dokładnie to sprawdzić w umowie, ponieważ różne normy pomiarowe mogą w różny sposób traktować np. powierzchnię pod skosami na poddaszu.
W świetle obowiązujących norm balkon czy loggia nie są zaliczane do metrażu użytkowego. De facto to przestrzeń dodatkowa, poprawiająca komfort, ale nie wpływająca na codzienną funkcjonalność mieszkania.
Z kolei w przypadku piwnicy sytuacja jest bardziej złożona – dopiero gdy zostanie przystosowana do stałego pobytu ludzi (np. poprzez ogrzewanie czy odpowiednie wykończenie), może być traktowana jako powierzchnia użytkowa.
Warto też pamiętać, że w niektórych przypadkach, np. przy naliczaniu podatku od nieruchomości, przepisy traktują piwnicę inaczej niż w projektach budowlanych. Dlatego kupując mieszkanie dobrze jest dokładnie sprawdzić, jakie elementy zostały ujęte w metrażu i jak to może przełożyć się na koszty eksploatacyjne czy podatkowe.
Wojciech Rynkowski, ekspert Extradom.pl

Minimalna powierzchnia mieszkania – ile to w 2025 roku
Przepisy Prawa budowlanego precyzyjnie określają minimalną powierzchnię mieszkania. Zgodnie z rozporządzeniem Ministra Infrastruktury w sprawie warunków technicznych, jakim powinny odpowiadać budynki i ich usytuowanie, minimalny metraż mieszkania w nowym budownictwie wynosi 25 mkw. Norma ta została wprowadzona, aby zapobiec budowie tzw. mikrokawalerek, które nie zapewniają odpowiedniego komfortu życia.
Co ciekawe, przepisy określają również minimalną powierzchnię mieszkalną na osobę w kontekście np. mieszkań socjalnych, choć nie ma to bezpośredniego przełożenia na rynek pierwotny. Warto jednak pamiętać, że deweloper musi zapewnić w każdym lokalu co najmniej jeden pokój o powierzchni nie mniejszej niż 16 mkw. oraz możliwość wydzielenia kuchni lub aneksu kuchennego. Te regulacje mają na celu zapewnienie podstawowej funkcjonalności i wygody mieszkania nawet w najmniejszych lokalach.
Średni metraż mieszkań w Polsce – dane 2025
Jak wynika z danych Głównego Urzędu Statystycznego (GUS), średni metraż mieszkania w Polsce od lat utrzymuje się na podobnym poziomie i wynosi około 58-60 mkw. Dane te obejmują jednak cały zasób mieszkaniowy w kraju, włączając w to przestronne domy jednorodzinne i stare budownictwo. Analizując rynek pierwotny w dużych miastach, obraz jest zupełnie inny.
Raporty Narodowego Banku Polskiego oraz dane z portalu RynekPierwotny.pl wskazują, że w największych aglomeracjach deweloperzy budują i sprzedają przede wszystkim mniejsze, bardziej kompaktowe lokum. W mieszkaniach na sprzedaż dominują lokale 2-pokojowe o powierzchni 35-45 mkw. oraz 3- lub 4-pokojowe o metrażu 50-65 mkw. Jest to bezpośrednia odpowiedź na wysokie ceny nieruchomości i możliwości finansowe nabywców – mniejsze mieszkanie to niższa cena całkowita i niższy próg wejścia w posiadanie własnej nieruchomości.
Najpopularniejsze układy mieszkań – jak wygląda rzut wygodnego mieszkania
Współczesne budownictwo niemal całkowicie zdominował jeden najpopularniejszy układ mieszkania – układ funkcjonalny z otwartą strefą dzienną. W praktyce oznacza to salon z aneksem kuchennym, który stał się standardem w niemal wszystkich nowych mieszkaniach, od kawalerek po duże apartamenty. Taki rozkład mieszkania optycznie powiększa przestrzeń, sprzyja integracji domowników i pozwala na dużą swobodę aranżacji.
Szukaj nieruchomości
Warszawa
mazowieckie, Warszawa
12999 ofert
Wrocław
dolnośląskie, Wrocław
6893 oferty
Kraków
małopolskie, Kraków
5736 ofert
Poznań
wielkopolskie, Poznań
5004 oferty
Łódź
łódzkie, Łódź
3437 ofert
Mieszkania o większej funkcjonalności to te, w których powierzchnia przestrzeni komunikacyjnych (korytarze) została ograniczona do minimum na rzecz większych pokoi. Niezwykle ważny staje się również podział na strefy: strefę dzienną (salon, aneks, toaleta dla gości) zlokalizowaną blisko wejścia oraz strefę prywatną (sypialnie, główna łazienka), ukrytą w głębi mieszkania. Taki układ strefowy mieszkania zapewnia maksymalny komfort i prywatność.
Warto przy okazji wspomnieć, że coraz częściej kupujący zwracają uwagę również na umiejscowienie okien względem stron świata, a nie tylko na to, jaki jest układ pomieszczeń w lokalu.
Układy mieszkań: rozkładowy, szczeciński, amfiladowy – co to znaczy? Najlepszy rozkład mieszkania
Przeglądając oferty, zwłaszcza na rynku wtórnym, można natknąć się na różne określenia układów pomieszczeń. Warto znać ich znaczenie, ponieważ bezpośrednio wpływają one na funkcjonalność lokalu.
Układ rozkładowy mieszkania
To obecnie najpopularniejszy i najbardziej pożądany standard. Charakteryzuje się tym, że do każdego pomieszczenia (pokoju, kuchni, łazienki) prowadzi osobne wejście z korytarza. Taki układ zapewnia maksymalną prywatność i jest niezwykle funkcjonalny, dlatego dominuje w nowym budownictwie.
Układ przechodni (amfiladowy)
To rozwiązanie typowe dla starych kamienic. Polega na tym, że do jednego pomieszczenia wchodzi się z innego (np. z salonu do sypialni). Taki układ mieszkania jest znacznie mniej wygodny i często wymaga przearanżowania w trakcie remontu mieszkania.
Układ szczeciński mieszkania
To historyczny kompromis, często spotykany w mieszkaniach w bloku z okresu PRL. Charakteryzuje się tym, że do jednego z pokoi wchodzi się bezpośrednio z kuchni. Jest to rozwiązanie bardziej funkcjonalne niż amfilada, ale mniej komfortowe niż pełny układ rozkładowy.
Układ funkcjonalny mieszkania: jak funkcjonalnie urządzić mieszkanie? Czytaj więcej
Jaki układ funkcjonalny mieszkania wybrać
Uniwersalny, idealny układ mieszkania nie istnieje. Każdy użytkownik będzie miał różne potrzeby i wymagania. Na przykład dla singla/pary często wystarczająca jest kawalerka lub nowe mieszkanie 2-pokojowe (35-45 mkw.) z otwartą strefą dzienną (aneks kuchenny połączony z salonem) i oddzielną sypialnią. Z kolei dla rodziny najbardziej pożądane są mieszkania 3- lub 4-pokojowe (55-70 mkw.) w układzie rozkładowym, które pozwalają na wydzielenie osobnych pokoi dla dzieci i rodziców, a także ewentualnego kącika do pracy. Dla rodzin ważna jest też zazwyczaj przestronna kuchnia.
Funkcjonalny układ mieszkania na wynajem – jakie lokum jest najlepsze pod inwestycję
Jeśli chodzi natomiast o inwestycję pod wynajem, to największą popularnością cieszą się kompaktowe mieszkania 2-pokojowe, które można wynająć zarówno parze, jak i dwóm studentom. Układ funkcjonalny mieszkania musi uwzględniać w tym przypadku możliwe potrzeby różnych grup.
Jak zmienić plan mieszkania i kiedy aranżacja mieszkania w bloku powinna zostać zmieniona
Jak zmienić układ mieszkania, jeśli ten obecny nam nie odpowiada? Możliwości zależą od konstrukcji budynku. W większości mieszkań można bez większych problemów wyburzać lub przesuwać ściany działowe, które nie pełnią funkcji nośnej. Pozwala to na przykład na połączenie kuchni z salonem, powiększenie łazienki kosztem korytarza czy wydzielenie garderoby z części sypialni.
Ich lokalizacja determinuje położenie kuchni i łazienki i znacząco ogranicza swobodę aranżacji. Dlatego zanim kupimy mieszkanie, warto dokładnie przeanalizować jego rzut pod kątem potencjalnych zmian.
Konfigurator mieszkania - sprawdź układy mieszkań w ofercie deweloperów
Najpopularniejsze układy funkcjonalne i metraże mieszkań - często zadawane pytania
Co wlicza się w metraż mieszkania?
W skład powierzchni użytkowej wchodzą wszystkie pomieszczenia wewnątrz lokalu, takie jak pokoje, kuchnia, łazienka i korytarz, mierzone po wewnętrznej długości ścian.
Czy balkon i piwnica liczą się do metrażu?
Nie, zazwyczaj ani balkon, ani piwnica nie są wliczane do oficjalnej powierzchni użytkowej lokalu. Są to tzw. powierzchnie przynależne lub pomocnicze.
Jaki jest minimalny metraż mieszkania w Polsce w 2025?
Zgodnie z Prawem budowlanym, minimalna powierzchnia mieszkania oddawanego do użytku w 2025 roku wynosi 25 metrów kwadratowych.
Ile wynosi średni metraż mieszkania w Polsce?
Według danych GUS, średni metraż mieszkania w Polsce oscyluje wokół 58 m². Na rynku pierwotnym w dużych miastach przeciętna powierzchnia sprzedawanych lokali jest jednak niższa.
Czym różni się układ rozkładowy od szczecińskiego?
W układzie rozkładowym do każdego pomieszczenia prowadzi osobne wejście z korytarza. W historycznym układzie szczecińskim do jednego z pokoi wchodzi się bezpośrednio z kuchni.
Jaki układ mieszkania jest najlepszy dla rodziny?
Dla rodziny z dziećmi najlepszy układ mieszkania to układ rozkładowy, oferujący co najmniej 3 pokoje, z wyraźnym podziałem na strefę dzienną i prywatną, co zapewnia komfort i prywatność każdemu domownikowi.
Dziennikarka i copywriterka z dziesięcioletnim doświadczeniem w tworzeniu treści dla mediów online, agencji reklamowych i klientów indywidualnych. Specjalizuje się w treściach z zakresu nieruchomości, finansów i prawa.
Subskrybuj rynekpierwotny.pl w Google News
PODZIEL SIĘ:

:format(jpg)/articles/gallery/image/8062/02-04_jak-wybrac-mieszkanie-w-dobrej-lokalizacji_1_cover_44b476.png)
:format(jpg)/articles/gallery/image/792/nadplata-kredytu-hipotecznego_a69874.png)
:format(jpg)/articles/gallery/image/10553/sprzedac-kupic-czy-wynajac_2fb502.jpg)
:format(jpg)/articles/gallery/image/12075/szukanie-mieszknia_9ce9d9.jpg)





