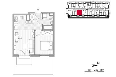
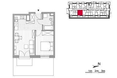
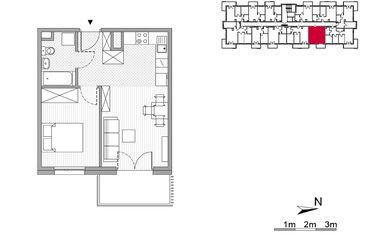
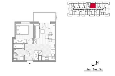
ul. Powstańców/os. Piastów bud. F
Oferta archiwalna
Mieszkania na sprzedaż oferowane bezpośrednio przez Dom-Bud M. Szaflarski Sp. j.
Kraków, Mistrzejowice, ul. Powstańców
Kraków, Mistrzejowice, ul. Powstańców
Oferta archiwalna
Uwaga! Wizytówka niniejszej inwestycji jest nieaktywna. Informacje na jej temat pomagają nam jednak tworzyć wiarygodną bazę informacji na temat lokalnego rynku nieruchomości.
Mamy dla Ciebie 243 oferty w najbliższej okolicy!
Podobne oferty w najbliższej okolicy
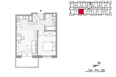
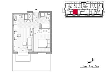
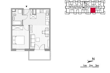
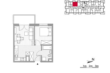
Prezentacja oferty archiwalnej
ul. Powstańców/os. Piastów bud. F
Kraków, Mistrzejowice, ul. Powstańców
Udogodnienia Inwestycji
Standard i bezpieczeństwo
- winda
- Standard deweloperski
Rekreacja
- plac zabaw
Szczegóły inwestycji
Realizacja inwestycji: | rozpoczęcie budowy w 2 kw. 2025 roku, inwestycja została oddana do użytkowania w 1 kw. 2026 roku |
|---|---|
Liczba budynków: | cała inwestycja składa się z 1 budynku |
Liczba kondygnacji: | budynek posiada 10 kondygnacji naziemnych wraz z parterem oraz 2 kondygnacje podziemne |
Liczba mieszkań: | cała inwestycja składa się z 119 lokali mieszkalnych |
Wysokość pomieszczeń: | na wszystkich kondygnacjach po 257 cm wysokości |
Standard wykończenia | standard deweloperski |
Rodzaj własności: | informacja u dewelopera |
Powierzchnie dodatkowe: | nie przewidziano powierzchni dodatkowych |
Komórki lokatorskie: | posiada |
Miejsca postojowe: | w inwestycji przewidziano:
|
Przyroda: | informacja u dewelopera |
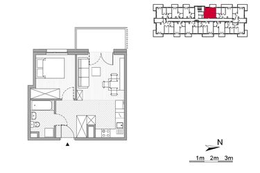
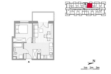
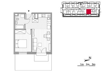
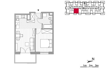
Opis inwestycji
Ul. Powstańców/os. Piastów budynek D, E oraz F to kolejny etap dobrze znanej i cenionej inwestycji, realizowanej w obrębie krakowskich Mistrzejowic.
Północno-wschodnia część miasta harmonijnie łączy rozległe tereny zielone, idealne na spacery i aktywny wypoczynek, z doskonałą komunikacją miejską. W pobliżu znajduje się pętla tramwajowa oraz nowoczesny przystanek kolejowy, który umożliwi szybki dojazd do Dworca Głównego w zaledwie 8 minut.
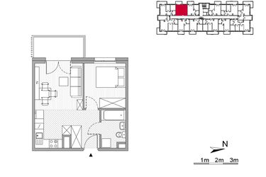
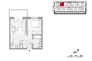
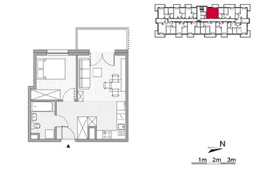
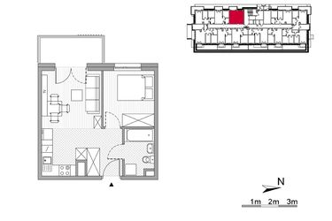
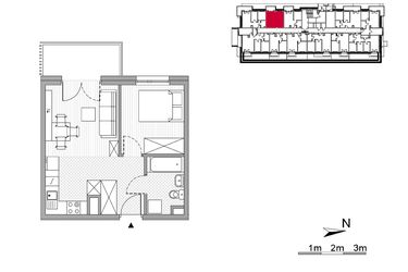
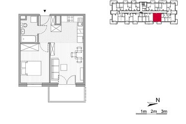
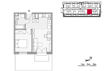
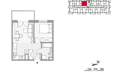
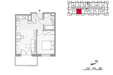
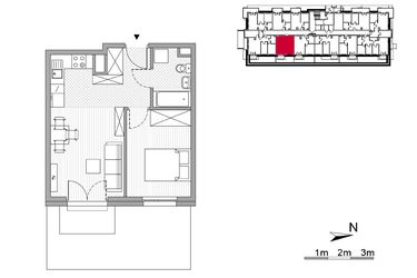
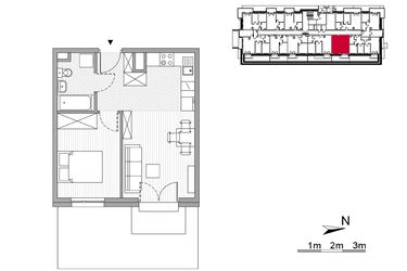
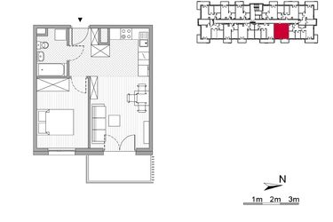
Stale podnosząc standard wykończenia, ze szczególną dbałością o wykonanie, zaprojektowaliśmy nowoczesne, dziewięciopiętrowe budynki o szerokiej gamie metrażowej mieszkań: 32m2 -72m2. W podziemiu umieściliśmy indywidualne boksy garażowe oraz komórki lokatorskie, a dodatkową wygodę w parkowaniu zapewni parking zewnętrzny.
Edukacja i rekreacja
Dla wygody przyszłych mieszkańców na terenie osiedla, wybudowano pawilon handlowo – usługowy, gdzie znajdują się takie usługi jak przedszkole i żłobek.
Mnogość udogodnień tj. urządzony plac zabaw, lokale usługowe oraz wszelkiego rodzaju placówki dydaktyczne, znajdujące się w najbliższym otoczeniu inwestycji, pozwolą na bezproblemowe i sprawne załatwienie codziennych spraw.
Inwestycja ul. Powstańców/os. Piastów bud. F znajduje się na Mistrzejowicach, ul. Powstańców (6.8 km od centrum Krakowa), została zrealizowana przez Dom-Bud M. Szaflarski Sp. j.
Inwestycja ul. Powstańców/os. Piastów bud. F została wybudowana i oddana do użytkowania w 1 kw. 2026 roku.
Cały projekt składa się z 119 nowych mieszkań znajdujących się w 1 budynku. Budynek posiada 10 kondygnacji naziemnych wraz z parterem oraz 2 kondygnacje podziemne.
Aktualnie w inwestycji ul. Powstańców/os. Piastów bud. F nie ma nowych mieszkań w sprzedaży.
Dla przyszłych mieszkańców ul. Powstańców/os. Piastów bud. F deweloper przewidział:
- miejsca postojowe podziemne
- miejsca postojowe naziemne
W inwestycji znajdują się komórki lokatorskie.
Lokalizacja inwestycji
Mistrzejowice to XV dzielnica Krakowa leżąca w północnej części miasta. Powstała z 3 włączonych do Krakowa wsi: Mistrzejowic, Dziekanowic i części Batowic. Przed 1990 r. należała do dzielnicy Nowa Huta. Jej powierzchnia wynosi 559,00 ha, a mieszka w niej 53 015 osób. W skład Mistrzejowic obecnie wchodzą: Osiedle Tysiąclecia, Osiedle Złotego Wieku, Osiedle Oświecenia, Osiedle Kombatantów, Osiedle Bohaterów Września, Osiedle Piastów, Osiedle Srebrnych Orłów, Osiedle Mistrzejowice oraz część Batowic i Dziekanowic. Początki powstawania osiedli mieszkalnych w dzielnicy datują się na lata 60. i 80. ubiegłego stulecia. Zostały one zrealizowane w technologii wielkopłytowej i liczą sobie po 11 kondygnacji. W tym samym okresie na północy dzielnicy wybudowano osiedle domów jednorodzinnych. Obecnie w Mistrzejowicach koncentruje się duży potencjał deweloperski – powstaje dużo nowych inwestycji, które cieszą się dużym zainteresowaniem. Stopień zagęszczenia nieruchomości mieszkalnych jest tu bardzo duży. Jedną z największych zalet Mistrzejowic jest natomiast rozwinięta infrastruktura handlowo-usługowa. Zarówno w północnej, centralnej, jak i południowej części występują także tereny zielone, a najciekawszymi z nich są Park Tysiąclecia oraz Fort „Mistrzejowice”. Przez fragment wschodniej granicy płynie rzeka Dłubnia.
Komunikacja
Jak wygląda komunikacja w okolicy inwestycji ul. Powstańców/os. Piastów bud. F?
Mistrzejowice mają dobre połączenia komunikacyjne z resztą Krakowa. Kursują tu dzienne i nocne linie autobusów miejskich oraz tramwajów. Południowa granica dzielnicy w całości przebiega drogą krajową nr 79.
Przyszli mieszkańcy inwestycji ul. Powstańców/os. Piastów bud. F mogą korzystać z rozbudowanej sieci połączeń komunikacyjnych. W odległości 300 metrów od inwestycji ul. Powstańców/os. Piastów bud. F znajduje się najbliższy punkt komunikacyjny - Kraków Piastów.
Edukacja
Czy w pobliżu inwestycji ul. Powstańców/os. Piastów bud. F znajdują się szkoły/przedszkola?
Mieszkańcy mogą korzystać z bogatej oferty edukacyjnej. W najbliższej okolicy inwestycji ul. Powstańców/os. Piastów bud. F znajduje się 21 placówek edukacyjnych. Najbliżej położone to: Przedszkole Ekologiczne Green Place Kraków w odległości 300 m.
Opieka medyczna
Dużym atutem inwestycji ul. Powstańców/os. Piastów bud. F jest bliskość ośrodków zdrowotnych. Dostęp do opieki medycznej zapewnią położone w pobliżu: Triodent w odległości 300 m.
Sklepy i usługi
Jak daleko jest do najbliższego sklepu?
Na infrastrukturę handlowo-usługową inwestycji ul. Powstańców/os. Piastów bud. F składa się wiele punktów. Nieopodal, w odległości 300 m znajduje się Lidl, w odległości 300 m znajduje się Żabka.
Sport
Bliskość terenów rekreacyjnych oraz obiektów sportowych to mocna strona tej lokalizacji. W najbliższej okolicy inwestycji ul. Powstańców/os. Piastów bud. F w odległości 500 m znajduje się boisko / kort, w odległości 500 m znajduje się siłownia na świeżym powietrzu.
Polecane Lokalizacje
- Mieszkania na sprzedaż Bieńczyce (124 oferty)
- Mieszkania na sprzedaż Bieżanów (298 ofert)
- Mieszkania na sprzedaż Bieżanów-Prokocim (659 ofert)
- Mieszkania na sprzedaż Bronowice (227 ofert)
- Mieszkania na sprzedaż Czyżyny (562 oferty)
- Mieszkania na sprzedaż Dębniki (782 oferty)
- Mieszkania na sprzedaż Grzegórzki (622 oferty)
- Mieszkania na sprzedaż Krowodrza (242 oferty)
- Mieszkania na sprzedaż Łagiewniki-Borek Fałęcki (172 oferty)
- Mieszkania na sprzedaż Nowa Huta (128 ofert)
- Mieszkania na sprzedaż Podgórze (1480 ofert)
- Mieszkania na sprzedaż Podgórze Duchackie (367 ofert)
- Mieszkania na sprzedaż Prądnik Biały (2319 ofert)
- Mieszkania na sprzedaż Prądnik Czerwony (1085 ofert)
- Mieszkania na sprzedaż Stare Miasto (212 ofert)
- Mieszkania na sprzedaż Swoszowice (9 ofert)
- Mieszkania na sprzedaż Wzgórza Krzesławickie (282 oferty)
- Mieszkania na sprzedaż Zwierzyniec (103 oferty)
Inwestycje w pobliżu na Mistrzejowicach
- Piasta Towers bud. 90A (77 ofert)
- Viva Piast 6 (16 ofert)
- Viva Piast 5 (8 ofert)
- Piasta Towers bud. 86 i 86A (31 ofert)
- MISTA Kraków (49 ofert)
- Strefa Cegielnia 3 (107 ofert)
- Faktoria Młyn (17 ofert)
- Krzesławickie Tarasy (83 oferty)
- Osiedle Teatralne 19 - apartamenty inwestycyjne (20 ofert)
- Osiedle Teatralne 19 (86 ofert)
- Wzgórze Gustawa (66 ofert)
- Strzelców 28 (39 ofert)





