Kraków, Wzgórza Krzesławickie, ul. Gustawa Morcinka 13/D
Kraków, Wzgórza Krzesławickie, ul. Gustawa Morcinka 13/D
:format(jpg)/offers/offer/18882/main_image/strefa-cegielnia-3_41880a.jpg)
:format(jpg)/offers/offer/18882/main_image/strefa-cegielnia-3_41880a.jpg)
1 zdjęcie
Termin oddania
1 kw. 2027
Powierzchnie
29 - 83/m2
Przedział pokoi
1 - 4
Kondygnacje
5
Budynki
3
Stand. wykończenia
Standard deweloperski
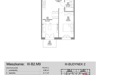
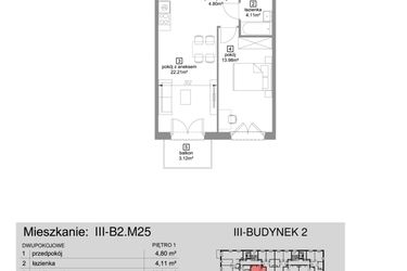
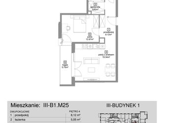
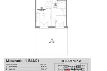
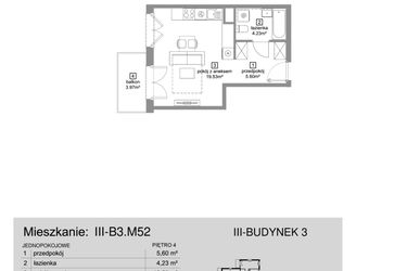
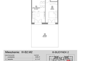
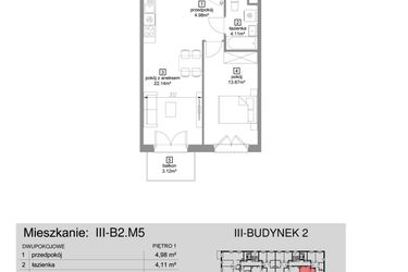
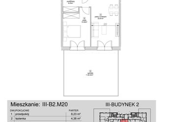
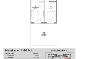
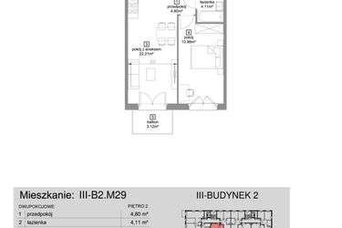
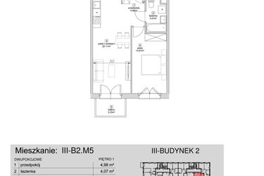
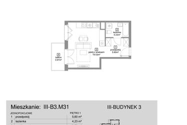
Mieszkania w inwestycji (119)
od 10 868 zł/m2
Sortuj
Stacja kolejowa - Kraków Piastów - 2098 m
Przystanek Tramwajowy - 2216 m
Przystanek Autobusowy - 235 m
Dojazd do centrum: pokaż
W pobliżu 1 km od tej inwestycji znajdują się:
1 obiekt sportowy, 1 plac zabaw
Zdjęcia z budowy
Zobacz na jakim etapie budowy jest ta inwestycja
Udogodnienia Inwestycji
Standard i bezpieczeństwo
- winda
- Standard deweloperski
Rekreacja
- plac zabaw
Szczegóły inwestycji
Realizacja inwestycji:
Liczba budynków:
Liczba kondygnacji:
Liczba mieszkań:
Wysokość pomieszczeń:
Standard wykończenia
standard deweloperski
Rodzaj własności:
Powierzchnie dodatkowe:
Komórki lokatorskie:
Miejsca postojowe:
- miejsca postojowe podziemne
- miejsca postojowe naziemne
Przyroda:
Aktualna oferta
Dostępne mieszkania:
Powierzchnie mieszkań:
Liczba pokoi:
Ceny mieszkań:
- kształtują się w zakresie od 384 400 do 909 304 zł
- koszt metra kwadratowego wynosi od 10 868 do 13 271 zł
Opis płatności:
Warunki rezerwacji:
Zabezpieczenie środków klienta:
Wysokość czynszu:
Opis inwestycji
Strefa Cegielnia 3 powstanie w spokojnej części Krakowa, w dzielnicy Zesławice, przy ulicy Gustawa Morcinka. W ofercie znajdzie się 137 mieszkań o funkcjonalnych układach od 1 do 4 pokoi. Zielona okolica, dogodny dostęp do sklepów oraz placówek edukacyjnych, czy bliskość drogi S7, sprawią, że będzie to doskonałe miejsca do życia zarówno dla singli, jak i rodzin.
Projekt Strefa Cegielnia wyróżni oryginalna architektura, która nawiąże do przemysłowej historii tego obszaru. Całe osiedle utrzymane będzie w eleganckiej kolorystyce, przy wykorzystaniu naturalnych materiałów i wykończeniowych tj. klinkieru imitującego cegłę, szkła oraz betonu. Dzięki temu inwestycja zyska ponadczasowy charakter, a jednocześnie doskonale wkomponuje się w okoliczną zabudowę.
Otoczenie inwestycji zachęci mieszkańców do aktywnego spędzania wolnego czasu i przebywania na świeżym powietrzu. Projektanci zadbali o przestrzenie wspólne, na których pojawią się zielone nasadzenia oraz elementy małej architektury – ławeczki, leżaki. Dla najmłodszych stworzony zostanie plac zabaw.
Najbliższa okolica inwestycji nieustannie się rozwija, oferując mieszkańcom coraz więcej udogodnień. Bliskość Południowej Obwodnicy Krakowa pozwoli na sprawne poruszanie się po północnych terenach miasta, a także łatwy dojazd do autostrady A4. Dzięki temu dotarcie do dużych centrów handlowych, szkół czy pracy będzie znacznie szybsze. Osoby poruszające się komunikacją miejską mogą skorzystać z przystanku autobusowego zlokalizowanego zaledwie 5 minut od inwestycji. W bezpośrednim sąsiedztwie znajdują się także sklepy spożywcze, gdzie mieszkańcy mogą zrobić podstawowe zakupy.
Inwestycja Strefa Cegielnia 3 to doskonałe rozwiązanie dla osób poszukujących swojego miejsca w spokojnym miejscu, z dala od zgiełku miasta. Bliskość terenów zielonych ułatwi rekreację, natomiast łatwy dostęp do kluczowych punktów komunikacyjnych pozwoli na sprawny dojazd do wielu punktów Krakowa.
Inwestycja Strefa Cegielnia 3 znajduje się na Wzgórzach Krzesławickich, ul. Gustawa Morcinka 13/D (8.5 km od centrum Krakowa), jest realizowana przez ATAL S.A.
Inwestycja obecnie jest w trakcie budowy z planowanym na 1 kw. 2027 roku terminem oddania do użytkowania.
Cały projekt składa się z 137 nowych mieszkań znajdujących się w 3 budynkach. Budynki posiadają 5 kondygnacji naziemnych wraz z parterem oraz 1 kondygnację podziemną.
Aktualnie w inwestycji Strefa Cegielnia 3 w sprzedaży jest 119 nowych mieszkań o powierzchni od 29 do 83 metrów kwadratowych , w cenie od 10 868 zł za metr kwadratowy.
Dla przyszłych mieszkańców Strefa Cegielnia 3 deweloper przewidział:
- miejsca postojowe podziemne
- miejsca postojowe naziemne
W inwestycji znajdują się komórki lokatorskie.
Lokalizacja inwestycji
Dzielnica XVII (Wzgórza Krzesławickie) ze względu na rzeźbę terenu góruje nad pozostałą częścią Krakowa. Władze miasta wyodrębniły Dzielnicę XVII w 1991 roku. W ramach poprzedniego podziału administracyjnego Krakowa okolice Wzgórz Krzesławickich wchodziły w skład rozległej dzielnicy Nowa Huta. Opisywany teren podobnie jak Mistrzejowice i Bieńczyce miał służyć jako zaplecze dla nowohuckiego kombinatu. Dlatego już na początku lat 60 – tych rozpoczęto budowę pierwszego osiedla mieszkaniowego (Os. Na Wzgórzach). Do końca lat 80 – tych na opisywanym terenie powstało jeszcze jedno osiedle wielkopłytowe (Os. Na Stoku). Obecnie w Dzielnicy XVII coraz częściej lokalizuje się nowe inwestycje mieszkaniowe. Są one przeznaczone dla osób, które mogą zaakceptować sporą odległość do centralnej części Krakowa.
Komunikacja
Jak wygląda komunikacja w okolicy inwestycji Strefa Cegielnia 3?
Dzielnica XVII jest oddalona od centrum miasta. Na problemy związane z długotrwałym dojazdem mogą narzekać przede wszystkim osoby mieszkające we wschodniej części Wzgórz Krzesławickich. Jedna z tras prowadzących do centrum miasta wiedzie wzdłuż ulic Wadowskiej, Lubockiej, Karola Darwina, Kocmyrzowskiej, Bieńczyckiej oraz Alei Pokoju. Mieszkańcy Wzgórz Krzesławickich korzystają z kilku linii kursujących do centrum Krakowa.
Przyszli mieszkańcy inwestycji Strefa Cegielnia 3 mogą korzystać z rozbudowanej sieci połączeń komunikacyjnych. W odległości 200 metrów od inwestycji Strefa Cegielnia 3 znajduje się najbliższy punkt komunikacyjny - Zesławice 01.
Sport
Bliskość terenów rekreacyjnych oraz obiektów sportowych to mocna strona tej lokalizacji. W najbliższej okolicy inwestycji Strefa Cegielnia 3 w odległości 200 m znajduje się boisko / kort.
ATAL S.A.
Strona internetowa inwestycjiAdres biura sprzedaży:
ul. Zabłocie 23 lok. 18, 30-701 KrakówGodziny otwarcia biura sprzedaży:
- Poniedziałek: 10:00 - 18:00
- Wtorek: 08:00 - 16:00
- Środa: 08:00 - 16:00
- Czwartek: 08:00 - 16:00
- Piątek: 08:00 - 16:00
Oferty, które mogą Cię zainteresować
Artykuły powiązane:
:format(jpg)/articles/gallery/image/9813/e54c4c.jpg)
Czy warto zamieszkać na peryferiach Wrocławia?
Jakie są zalety mieszkania na peryferiach? Sprawdźcie ofertę mieszkań od deweloperów na peryferiach Wrocławia! We Wrocławiu ceny nowych mieszkań w samym centrum lub stosunkowo blisko Rynku potrafią sięgać nawet 8 tys. złotych za metr kwadratowy. Średnia cena na rynku deweloperskim...
30 października 2019
Bartosz Moch
Polecane Lokalizacje
- Mieszkania na sprzedaż Bieńczyce (17 ofert)
- Mieszkania na sprzedaż Bieżanów (355 ofert)
- Mieszkania na sprzedaż Bieżanów-Prokocim (636 ofert)
- Mieszkania na sprzedaż Bronowice (517 ofert)
- Mieszkania na sprzedaż Czyżyny (393 oferty)
- Mieszkania na sprzedaż Dębniki (799 ofert)
- Mieszkania na sprzedaż Grzegórzki (650 ofert)
- Mieszkania na sprzedaż Krowodrza (365 ofert)
- Mieszkania na sprzedaż Łagiewniki-Borek Fałęcki (60 ofert)
- Mieszkania na sprzedaż Mistrzejowice (334 oferty)
- Mieszkania na sprzedaż Nowa Huta (21 ofert)
- Mieszkania na sprzedaż Podgórze (2105 ofert)
- Mieszkania na sprzedaż Podgórze Duchackie (945 ofert)
- Mieszkania na sprzedaż Prądnik Biały (2658 ofert)
- Mieszkania na sprzedaż Prądnik Czerwony (1192 oferty)
- Mieszkania na sprzedaż Stare Miasto (278 ofert)
- Mieszkania na sprzedaż Swoszowice (10 ofert)
- Mieszkania na sprzedaż Zwierzyniec (87 ofert)
Inwestycje w pobliżu na Wzgórzach Krzesławickich
- Krzesławickie Tarasy (88 ofert)
- Wzgórze Gustawa (77 ofert)
- Piasta Park VI (50 ofert)
- ul. Powstańców/os. Piastów bud. F (101 ofert)
- ul. Powstańców/os. Piastów bud. E (33 oferty)
- Viva Piast 6 (23 oferty)
- Viva Piast 5 (16 ofert)
- Piasta Towers bud. 86 i 86A (42 oferty)
- Faktoria Młyn (16 ofert)
- Dolnomłyńska 5 (1 oferta)
- Apartamenty Gałczyńskiego (8 ofert)





