River Park
Mieszkania na sprzedaż oferowane bezpośrednio przez Imperial Capital
Kraków, Bronowice, ul. W. Tetmajera
Kraków, Bronowice, ul. W. Tetmajera
:format(jpg)/offers/offer/19770/main_image/river-park_c2b4f7.jpg)
:format(jpg)/offers/offer/19770/main_image/river-park_c2b4f7.jpg)
1 zdjęcie
Termin oddania
3 kw. 2027
Powierzchnie
71 - 100/m2
Przedział pokoi
4 - 6
Kondygnacje
2 - 3
Budynki
36
Stand. wykończenia
Standard deweloperski podwyższony
Mieszkania w inwestycji (72)
Sortuj
Stacja kolejowa - Kraków Mydlniki - 1308 m
Przystanek Tramwajowy - 1591 m
Przystanek Autobusowy - 283 m
Dojazd do centrum: pokaż
W pobliżu 1 km od tej inwestycji znajdują się:
5 sklepów, 3 obiekty sportowe, 4 placówki medyczne, 1 placówka edukacyjna, 5 placów zabaw
Zdjęcia z budowy
Zobacz na jakim etapie budowy jest ta inwestycja
Udogodnienia Inwestycji
Standard i bezpieczeństwo
- monitoring
- Standard deweloperski podwyższony
Szczegóły inwestycji
Realizacja inwestycji: | rozpoczęcie budowy w 4 kw. 2025 roku,
planowane oddanie do użytkowania w 3 kw. 2027 roku |
|---|---|
Liczba budynków: | cała inwestycja składa się z 36 budynków |
Liczba kondygnacji: | budynki posiadają od 2 do 3 kondygnacji naziemnych wraz z parterem oraz nie posiadają kondygnacji podziemnych |
Liczba mieszkań: | cała inwestycja składa się z 72 lokali mieszkalnych |
Wysokość pomieszczeń: | w zależności od kondygnacji od 260 do 280 cm wysokości |
Standard wykończenia | standard deweloperski podwyższony Ogrzewanie miejskie |
Rodzaj własności: | informacja u dewelopera |
Powierzchnie dodatkowe: | balkon, ogródek |
Komórki lokatorskie: | nie przewidziano |
Miejsca postojowe: | w inwestycji nie przewidziano miejsc postojowych |
Przyroda: | informacja u dewelopera |
Aktualna oferta
Dostępne mieszkania: | aktualnie dostępne są 72 mieszkania |
|---|---|
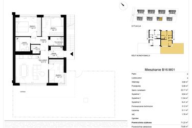
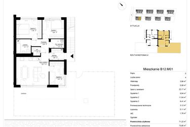
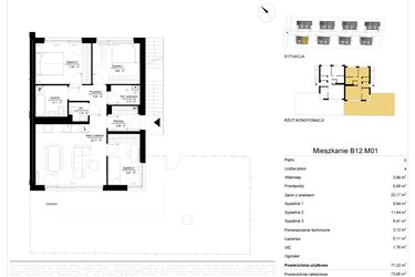
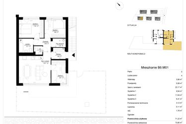
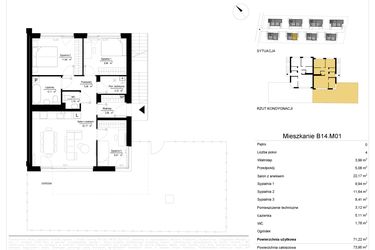
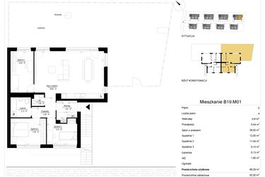
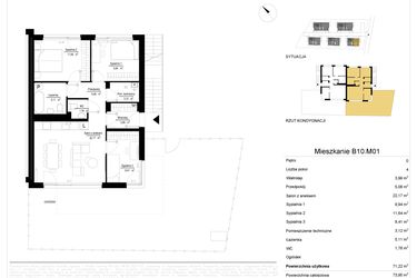
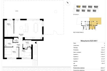
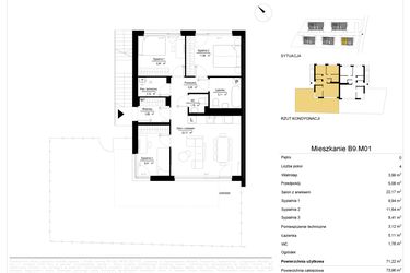
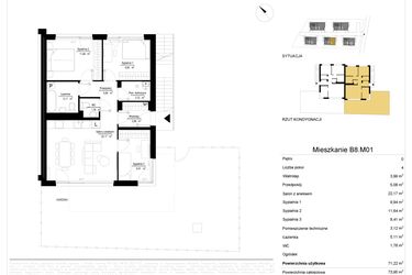
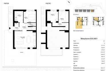
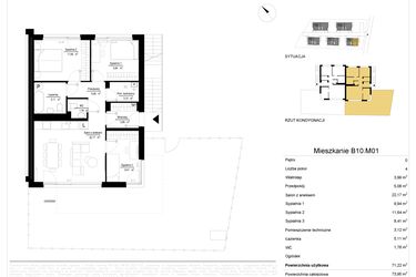
Powierzchnie mieszkań: | od 71 do 100 m² |
Liczba pokoi: | dostępne są mieszkania 4, 5, 6-pokojowe |
Opis płatności: | Informacja u dewelopera |
Warunki rezerwacji: | Informacja u dewelopera |
Zabezpieczenie środków klienta: | informacja u dewelopera |
Wysokość czynszu: | informacja u dewelopera |
Opis inwestycji
River Park Tetmajera to wyjątkowe osiedle, które powstało z myślą o osobach ceniących zieleń, spokój atmosferę krakowskich Bronowic. Położone wzdłuż ulicy Truszkowskiego, w sąsiedztwie urokliwej ulicy Tetmajera, osiedle oferuje idealne połączenie kameralności z dogodnym dostępem do miejskich udogodnień. To tutaj historia spotyka się z nowoczesnością, a wszystko to możesz chłonąć z własnego tarasu lub ogródka.
Funkcjonalność, przestrzeń i niebanalna architektura
River Park Tetmajera to kilkanaście piętrowych budynków, rozstawionych szeroko między sobą, co zapewnia poczucie swobody i prywatności.
Przestronne, dwupoziomowe mieszkania:
● Powierzchnie powyżej 70 m², zapewniające komfort i przestrzeń dla każdego.
● Do mieszkań przynależą ogródki, przestronne tarasy lub balkony, które stanowią idealne miejsce do relaksu i kontaktu z naturą.
● Duże przeszklenia sprawiają, że wnętrza są jasne i doświetlone, pozwalając cieszyć się widokiem otaczającej zieleni.
Nowoczesne rozwiązania dla Twojej wygody:
● Miejsca parkingowe zlokalizowane tuż przy każdym domu.
● Odległość między budynkami pozwala poczuć się swobodnie, z dala od zgiełku wielkiego miasta.
Komunikacja:
Bronowice są dobrze skomunikowane z resztą Krakowa, co zapewnia łatwy dojazd do pracy, szkoły czy centrum miasta.
● Stacja kolejki SKA – rozbudowana sieć komunikacji miejskiej zapewnia regularne połączenia.
● Najbliższy przystanek – Truszkowskiego 01
● Droga krajowa nr 7 – przy zachodniej granicy dzielnicy biegnie droga krajowa nr 7, która znacząco ułatwia podróże poza miasto.
Edukacja:
Mieszkańcy mogą korzystać z bogatej oferty edukacyjnej.
Przedszkole Gwiazdeczka – 600 m
Szkoła Podstawowa nr 50 – 900 m
Przedszkole Niepubliczne Pluszowy Miś – 1,2 km
Zespół Szkół Ogólnokształcących nr 53. oraz Szkoła Podstawowa nr 51 im. S. Wyspiańskiego – 5 min autem
Publiczne Przedszkole Stacyjkowo – 6 min autem
Opieka medyczna:
Centrum Medyczne Nido – 700 m
Centrum Medyczne Medicover – 7 min autem
Sklepy i usługi:
Jak daleko jest do najbliższego sklepu?
Easy Auchan – 700 m
Lewiatan – 2 min autem
Delikatesy Włoskie – 4 min autem
Biedronka – 5 min autem
Sport:
Bliskość terenów rekreacyjnych oraz obiektów sportowych to mocna strona tej lokalizacji.
Siłownia na świeżym powietrzu – 500 m od inwestycji.
Park Tetmajera – 5 min pieszo
Park Uroczysko Gaik – 9 min autem
Park Młynówka Królewska – 7 min autem
Inwestycja River Park znajduje się na Bronowicach, ul. W. Tetmajera (6.3 km od centrum Krakowa), jest realizowana przez Imperial Capital.
Inwestycja obecnie jest w trakcie budowy z planowanym na 3 kw. 2027 roku terminem oddania do użytkowania.
Cały projekt składa się z 72 nowych mieszkania znajdujących się w 36 budynkach. Budynki posiadają od 2 do 3 kondygnacji naziemnych wraz z parterem oraz nie posiadają kondygnacji podziemnych.
Aktualnie w inwestycji River Park w sprzedaży są 72 nowe mieszkania o powierzchni od 71 do 100 metrów kwadratowych , w cenie od 12 077 zł za metr kwadratowy.
Dla przyszłych mieszkańców River Park deweloper nie przewidział miejsc postojowych.
Lokalizacja inwestycji
Bronowice to szósta dzielnica Krakowa, leżąca w jego północno-zachodniej części i zajmująca teren o powierzchni 955,96 ha. Zamieszkuje ją 23 465 osób. Niegdyś należała do dzielnicy Krowodrza, lecz obecnie jest samodzielną, jedną z mniejszych i spokojniejszych części miasta. Stopień jej uprzemysłowienia jest niewielki, za to wkład dzielnicy w rolnictwo jest większy od średniej miasta. Występuje sporo zieleni i przestrzeni nadającej się jeszcze do zagospodarowania. W zabudowie przeważają nieruchomości mieszkalne, w tym niskokondygnacyjne bloki wybudowane w II połowie XXw. i domy jednorodzinne. Rozbudowana infrastruktura i bliskość centrum dodatkowo podnoszą standard życia w tej części Krakowa. Często kursujące autobusy miejskie i tramwaje pozwalają na bezproblemową komunikację z innymi dzielnicami. Wschodnią granicą Bronowic biegnie natomiast droga krajowa nr 7. W Bronowicach znajduje się część budynków Uniwersytetu Rolniczego, 8 szkół i 4 przedszkola, a jedną z głównych atrakcji tej dzielnicy jest Muzeum Młodej Polski „Rydlówka”.
Komunikacja
Jak wygląda komunikacja w okolicy inwestycji River Park?
Bronowice są bardzo dobrze skomunikowane z pozostałymi częściami miasta, dzięki regularnym kursom autobusów miejskich i tramwajów. Zachodnią granicą tej dzielnicy biegnie droga krajowa nr 7.
Przyszli mieszkańcy inwestycji River Park mogą korzystać z rozbudowanej sieci połączeń komunikacyjnych. W odległości 300 metrów od inwestycji River Park znajduje się najbliższy punkt komunikacyjny - Park Tetmajera 01.
Edukacja
Czy w pobliżu inwestycji River Park znajdują się szkoły/przedszkola?
Mieszkańcy mogą korzystać z bogatej oferty edukacyjnej. W najbliższej okolicy inwestycji River Park znajduje się 1 placówka edukacyjna. Najbliżej położone to: Przedszkole Gwiazdeczka w odległości 1000 m.
Opieka medyczna
Dużym atutem inwestycji River Park jest bliskość ośrodków zdrowotnych. Dostęp do opieki medycznej zapewnią położone w pobliżu: Dentima w odległości 500 m.
Sklepy i usługi
Jak daleko jest do najbliższego sklepu?
Na infrastrukturę handlowo-usługową inwestycji River Park składa się wiele punktów. Nieopodal, w odległości 400 m znajduje się Easy Auchan, w odległości 900 m znajduje się sklep z żywnością.
Sport
Bliskość terenów rekreacyjnych oraz obiektów sportowych to mocna strona tej lokalizacji. W najbliższej okolicy inwestycji River Park w odległości 900 m znajduje się siłownia na świeżym powietrzu.
Imperial Capital
Strona internetowa inwestycjiAdres biura sprzedaży:
ul. Wadowicka 7, KrakówGodziny otwarcia biura sprzedaży:
- Poniedziałek: 09:00 - 17:00
- Wtorek: 09:00 - 17:00
- Środa: 09:00 - 17:00
- Czwartek: 09:00 - 17:00
- Piątek: 09:00 - 17:00
- Sobota: 09:00 - 13:00
Oferty, które mogą Cię zainteresować
Polecane Lokalizacje
- Mieszkania na sprzedaż Bieńczyce (21 ofert)
- Mieszkania na sprzedaż Bieżanów (338 ofert)
- Mieszkania na sprzedaż Bieżanów-Prokocim (576 ofert)
- Mieszkania na sprzedaż Czyżyny (659 ofert)
- Mieszkania na sprzedaż Dębniki (777 ofert)
- Mieszkania na sprzedaż Grzegórzki (602 oferty)
- Mieszkania na sprzedaż Krowodrza (349 ofert)
- Mieszkania na sprzedaż Łagiewniki-Borek Fałęcki (50 ofert)
- Mieszkania na sprzedaż Mistrzejowice (305 ofert)
- Mieszkania na sprzedaż Nowa Huta (25 ofert)
- Mieszkania na sprzedaż Podgórze (1894 oferty)
- Mieszkania na sprzedaż Podgórze Duchackie (928 ofert)
- Mieszkania na sprzedaż Prądnik Biały (2786 ofert)
- Mieszkania na sprzedaż Prądnik Czerwony (1120 ofert)
- Mieszkania na sprzedaż Stare Miasto (257 ofert)
- Mieszkania na sprzedaż Swoszowice (10 ofert)
- Mieszkania na sprzedaż Wzgórza Krzesławickie (300 ofert)
- Mieszkania na sprzedaż Zwierzyniec (83 oferty)
Inwestycje w pobliżu na Bronowicach
- Green Park Villa etap III (1 oferta)
- Stawowa ABC (17 ofert)
- Stawowa (16 ofert)
- Smętna Garden (24 oferty)
- Mieszkaj w mieście - Etap Odkrywców L (61 ofert)
- Stawowa Residence - etap V (7 ofert)
- Mieszkaj w Mieście - etap Poetów budynek K (57 ofert)
- Forma Otwarta etap II (40 ofert)
- CLOU LINDEGO (96 ofert)
- LINDEGO2 (12 ofert)
- CASCADA House (56 ofert)
- Conrada 27 (26 ofert)





