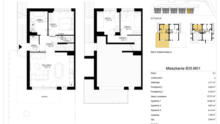
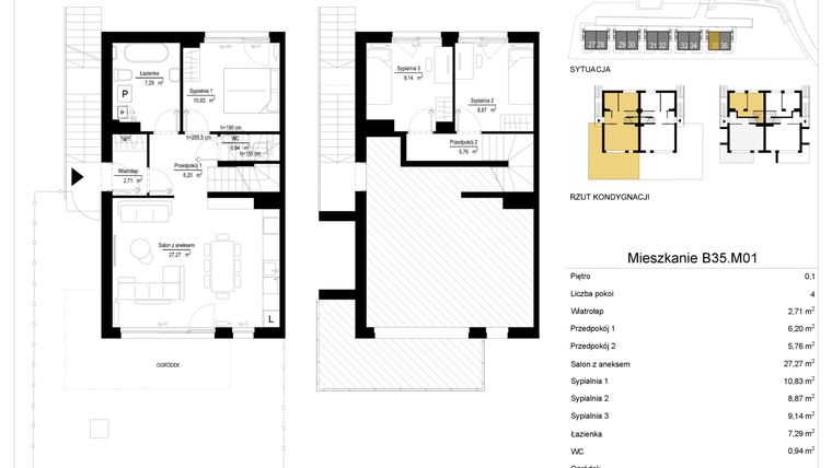
Mieszkanie na sprzedaż 4 pokoje o powierzchni 79,29 m² numer 35.1
Inwestycja:
River ParkDeweloper:
Imperial Capital
Inwestycja:
River ParkDeweloper:
Imperial CapitalKraków, Bronowice, ul. W. Tetmajera
Kraków, Bronowice, ul. W. Tetmajera
Termin oddania
3 kw. 2027
Ilość pokoi
4 pokoje
Metraż
79,29 m²
Piętro
Parter
Powierzchnie dodatkowe
Ogródek
Kuchnia
otwarta kuchnia
Wysokość pomieszczeń
od 260 do 280 cm wysokości
Ilość poziomów
2 poziomy
Oznaczenie oferty
35.1

Raport o deweloperze
Poznaj dewelopera bliżej! Pobierz raport, w którym znajdziesz kluczowe informacje o firmie, jej doświadczeniu, nagrodach oraz aktualnych i zrealizowanych inwestycjach.
Budynek i otoczenie
Miejsca postojowe | |
|---|---|
Standard wykończenia | standard deweloperski podwyższony Ogrzewanie miejskie |
Realizacja inwestycji | oddanie do użytkowania w 3 kw. 2027 roku |
Udogodnienia | monitoring |
Przyroda | informacja u dewelopera |
Charakterystyka energetyczna nieruchomości | informacja u dewelopera |
Rezerwacja i finanse
Rodzaj własności | informacja u dewelopera |
|---|---|
Wysokość czynszu | informacja u dewelopera |
Warunki rezerwacji | Informacja u dewelopera |
Zabezpieczenie środków | Informacja u dewelopera |
Zdjęcia z budowy
Zobacz na jakim etapie budowy jest ta inwestycja
Lokalizacja inwestycji
Stacja kolejowa - Kraków Mydlniki - 1308 m
Przystanek Tramwajowy - 1591 m
Przystanek Autobusowy - 283 m
Dojazd do centrum: pokaż
W pobliżu 1 km od tej inwestycji znajdują się:
5 sklepów, 3 obiekty sportowe, 4 placówki medyczne, 1 placówka edukacyjna, 5 placów zabaw
Przeczytaj więcej o lokalizacji
Bronowice to szósta dzielnica Krakowa, leżąca w jego północno-zachodniej części i zajmująca teren o powierzchni 955,96 ha. Zamieszkuje ją 23 465 osób. Niegdyś należała do dzielnicy Krowodrza, lecz obecnie jest samodzielną, jedną z mniejszych i spokojniejszych części miasta. Stopień jej uprzemysłowienia jest niewielki, za to wkład dzielnicy w rolnictwo jest większy od średniej miasta. Występuje sporo zieleni i przestrzeni nadającej się jeszcze do zagospodarowania. W zabudowie przeważają nieruchomości mieszkalne, w tym niskokondygnacyjne bloki wybudowane w II połowie XXw. i domy jednorodzinne. Rozbudowana infrastruktura i bliskość centrum dodatkowo podnoszą standard życia w tej części Krakowa. Często kursujące autobusy miejskie i tramwaje pozwalają na bezproblemową komunikację z innymi dzielnicami. Wschodnią granicą Bronowic biegnie natomiast droga krajowa nr 7. W Bronowicach znajduje się część budynków Uniwersytetu Rolniczego, 8 szkół i 4 przedszkola, a jedną z głównych atrakcji tej dzielnicy jest Muzeum Młodej Polski „Rydlówka”.
Opis oferty
Nowe 4-pokojowe mieszkanie na sprzedaż o powierzchni 79,29 m² znajduje się w nowo wybudowanej inwestycji deweloperskiej River Park na Bronowicach, ul. W. Tetmajera (6.3 km od centrum Krakowa).
Inwestycja została zrealizowana przez Imperial Capital.
Cała inwestycja składa się z 36 budynków, w których łącznie znajdują się 72 nowe mieszkania.
Na sprzedaż pozostają 62 oferty o powierzchni od 71 do 100 m².
W budynkach jest od 2 do 3 kondygnacji naziemnych. Budynek nie posiada kondygnacji podziemnych.
Inwestycja River Park jest w trakcie budowy z planowanym na 3 kw. 2027 roku terminem oddania do użytkowania.
Nowe mieszkanie o oznaczeniu 35.1 znajduje się na parterze i jest 2-poziomowe. Pomieszczenia mają od 260 do 280 centymetrów wysokości. W mieszkaniu znajdują się 4 pokoje.
Dla przyszłych mieszkańców River Park deweloper nie przewidział miejsc postojowych.
Opis Inwestycji
Pow. dodatkowe
River Park Tetmajera to wyjątkowe osiedle, które powstało z myślą o osobach ceniących zieleń, spokój atmosferę krakowskich Bronowic. Położone wzdłuż ulicy Truszkowskiego, w sąsiedztwie urokliwej ulicy Tetmajera, osiedle oferuje idealne połączenie kameralności z dogodnym dostępem do miejskich udogodnień. To tutaj historia spotyka się z nowoczesnością, a wszystko to możesz chłonąć z własnego tarasu lub ogródka.
Funkcjonalność, przestrzeń i niebanalna architektura
River Park Tetmajera to kilkanaście piętrowych budynków, rozstawionych szeroko między sobą, co zapewnia poczucie swobody i prywatności.
Przestronne, dwupoziomowe mieszkania:
● Powierzchnie powyżej 70 m², zapewniające komfort i przestrzeń dla każdego.
● Do mieszkań przynależą ogródki, przestronne tarasy lub balkony, które stanowią idealne miejsce do relaksu i kontaktu z naturą.
● Duże przeszklenia sprawiają, że wnętrza są jasne i doświetlone, pozwalając cieszyć się widokiem otaczającej zieleni.
Nowoczesne rozwiązania dla Twojej wygody:
● Miejsca parkingowe zlokalizowane tuż przy każdym domu.
● Odległość między budynkami pozwala poczuć się swobodnie, z dala od zgiełku wielkiego miasta.
Komunikacja:
Bronowice są dobrze skomunikowane z resztą Krakowa, co zapewnia łatwy dojazd do pracy, szkoły czy centrum miasta.
● Stacja kolejki SKA – rozbudowana sieć komunikacji miejskiej zapewnia regularne połączenia.
● Najbliższy przystanek – Truszkowskiego 01
● Droga krajowa nr 7 – przy zachodniej granicy dzielnicy biegnie droga krajowa nr 7, która znacząco ułatwia podróże poza miasto.
Edukacja:
Mieszkańcy mogą korzystać z bogatej oferty edukacyjnej.
Przedszkole Gwiazdeczka – 600 m
Szkoła Podstawowa nr 50 – 900 m
Przedszkole Niepubliczne Pluszowy Miś – 1,2 km
Zespół Szkół Ogólnokształcących nr 53. oraz Szkoła Podstawowa nr 51 im. S. Wyspiańskiego – 5 min autem
Publiczne Przedszkole Stacyjkowo – 6 min autem
Opieka medyczna:
Centrum Medyczne Nido – 700 m
Centrum Medyczne Medicover – 7 min autem
Sklepy i usługi:
Jak daleko jest do najbliższego sklepu?
Easy Auchan – 700 m
Lewiatan – 2 min autem
Delikatesy Włoskie – 4 min autem
Biedronka – 5 min autem
Sport:
Bliskość terenów rekreacyjnych oraz obiektów sportowych to mocna strona tej lokalizacji.
Siłownia na świeżym powietrzu – 500 m od inwestycji.
Park Tetmajera – 5 min pieszo
Park Uroczysko Gaik – 9 min autem
Park Młynówka Królewska – 7 min autem
Mieszkanie znajduje się w inwestycji River Park, w której znajduje się w sprzedaży jeszcze 46 podobnych nowych mieszkań.
Imperial Capital
Strona internetowa inwestycjiAdres biura sprzedaży:
ul. Wadowicka 7, KrakówGodziny otwarcia biura sprzedaży:
- Poniedziałek: 09:00 - 17:00
- Wtorek: 09:00 - 17:00
- Środa: 09:00 - 17:00
- Czwartek: 09:00 - 17:00
- Piątek: 09:00 - 17:00
- Sobota: 09:00 - 13:00





