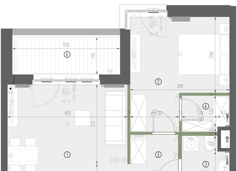
Rzut mieszkania – jak poprawnie czytać podstawowe oznaczenia na planie
Data publikacji: 03.02.2026, Data aktualizacji: 03.02.2026
Średnia ocen 4/5 na podstawie 144 głosów
:format(jpg)/articles/gallery/image/9596/rzut-mieszkania-oznaczenia_f8b9c2.png)
Rzut mieszkania to najważniejszy dokument techniczny, jaki dostarcza deweloper przed zakupem lokalu. Pokazuje układ pomieszczeń, wymiary i elementy techniczne, które pozwalają ocenić zgodność nieruchomości z twoimi potrzebami. Jeśli nauczysz się czytać rzut mieszkania, łatwiej ocenisz ustawność lokalu i jego potencjał aranżacyjny. Dowiedz się, co dokładnie jest widoczne na rzucie, na co zwrócić uwagę i jakie zmiany w lokalu możesz wprowadzić.
Wizualizacje prezentowane w ofertach deweloperów mają charakter poglądowy. Jeżeli chcesz poznać autentyczny obraz lokalu, sięgnij po rzut techniczny.
Na RynekPierwotny.pl w ofertach nowych inwestycji możesz sprawdzić plan mieszkania, a w części z nich także zobaczyć wizualizację 3D. To ułatwia porównanie układów i wybór najlepszego lokalu. W razie wątpliwości konsultant RynekPierwotny.pl odpowie na twoje pytania.
Rzut mieszkania od dewelopera – najważniejsze informacje
- Rzut techniczny mieszkania pokazuje rzeczywisty układ lokalu, wymiary i elementy konstrukcyjne.
- Umiejętność czytania rzutu pozwala ocenić funkcjonalność mieszkania, jego ustawność oraz możliwości aranżacyjne jeszcze przed zakupem.
- Decyzję zakupową zawsze opieraj na rzucie architektonicznym, a nie materiałach marketingowych.
- Podczas odbioru technicznego dokładnie porównaj stan mieszkania z dokumentacją i zgłaszaj wszelkie niezgodności w protokole.
Co to jest rzut mieszkania?
Rzut mieszkania to rysunek przedstawiający techniczny plan lokalu, który pokazuje układ pomieszczeń w określonej skali, najczęściej 1:50 lub 1:100. Jest on obowiązkowym załącznikiem do umowy deweloperskiej i ma znaczenie prawne.
Dokument pokazuje w formie graficznej, jak będzie wyglądać twoja nieruchomość po wybudowaniu. Zawiera rysunek ścian, drzwi, okien i instalacji, a także najważniejsze wymiary. Dzięki temu możesz sprawdzić, czy możliwa jest aranżacja mieszkania zgodnie z twoimi oczekiwaniami oraz czy układ odpowiada potrzebom domowników. Rzut techniczny ułatwia m.in. ocenę, czy w salonie zmieści się stół, a w sypialni pełnowymiarowe łóżko.
Do informacji na rzucie technicznym możesz się odwołać w razie wątpliwości lub podczas odbioru mieszkania. Dokładnie go przejrzyj przed zakupem mieszkania, żeby uniknąć rozczarowań i problemów.
Gdy trudno odczytać plan mieszkania...
Oznaczenia na rzutach mieszkań bywają niezrozumiałe dla kupujących. Mgr inż. arch. Izabela Dolata, Lead Architect w Extradom.pl wyjaśnia:
To zupełnie naturalne, że dla wielu osób rzuty mieszkań są trudne do jednoznacznej interpretacji, bo dokumentacja techniczna posługuje się specjalistycznym językiem graficznym. Paradoksalnie, to czego kupujący często nie rozumieją lub nie dostrzegają na rzucie, okazuje się kluczowe dla codziennego komfortu i możliwości urządzenia wnętrza po swojemu.
Chodzi tu między innymi o: rozróżnienie ścian konstrukcyjnych i działowych (czyli tych, które można usunąć i tych, których nie wolno ruszać), oznaczenia podciągów pod sufitem, pionów kanalizacyjnych i wentylacyjnych, a także lokalizację grzejników czy elementów rekuperacji.
Zdaniem ekspertki trudności sprawia też odczytywanie opisów okien – nie zawsze inwestorzy potrafią określić, czy dane okno sięga do podłogi, gdzie kończy się parapet i który wymiar oznacza wysokość, a który – szerokość. Wszystkie te detale mają realny wpływ na późniejszy układ mebli, oświetlenie, a nawet sposób codziennego użytkowania mieszkania.

Podstawowe oznaczenia na rzucie mieszkania
Poprawna interpretacja rzutu nie jest trudna – większość elementów rozpoznasz intuicyjnie. Zwróć uwagę na kilka detali, które mogą nie być oczywiste. Plany mieszkań najczęściej zawierają oznaczenia takie jak:
- grube i cienkie linie – ściany
- linie przerywane – belki stropowe
- przekreślony prostokąt – wentylacja
- okręgi z liczbami – otwory drzwiowe i okienne
- litery L i P – kierunek otwierania drzwi i okien
- kompas z literą „N”, czyli tzw. róża wiatrów – ekspozycja lokalu na strony świata
Ściany nośne i działowe – jak je rozróżnić?
Ściany nośne na planie architektonicznym są znacznie grubsze i wyraźniejsze, natomiast ściany działowe są narysowane cieńszą linią. Zwykle można je łatwo odróżnić.
| Ściany nośne | Ściany działowe | |
|---|---|---|
| Funkcja | Element konstrukcyjny budynku | Oddzielanie pomieszczeń |
| Oznaczenie na rzutach | Grubsza linia lub wyraźne szrafowanie | Cieńsza linia |
| Przenoszenie obciążeń | Tak, przenoszą obciążenia konstrukcyjne | Nie przenoszą obciążeń |
| Możliwość usunięcia | Brak swobody – ingerencja jest bardzo ograniczona | Zazwyczaj można je swobodnie modyfikować |
| Wymagane formalności przy ingerencji | Projekt budowlany i ekspertyza techniczna wykonana przez uprawnionego konstruktora lub architekta | Zazwyczaj brak szczególnych formalności |
| Konsekwencje samowolnej ingerencji | Nielegalna, grozi katastrofą budowlaną | Zazwyczaj brak zagrożeń konstrukcyjnych |
Jeśli planujesz zmiany w układzie mieszkania, koniecznie sprawdź, które ściany są nośne, a które działowe. Może się bowiem okazać, że niektóre modyfikacje są niemożliwe. W mieszkaniu mogą też znajdować się słupy konstrukcyjne wpływające na możliwości aranżacyjne.
Szukaj nieruchomości
Warszawa
mazowieckie, Warszawa
12999 ofert
Wrocław
dolnośląskie, Wrocław
6893 oferty
Kraków
małopolskie, Kraków
5736 ofert
Poznań
wielkopolskie, Poznań
5004 oferty
Łódź
łódzkie, Łódź
3437 ofert
Drzwi – wygląd na planie i kierunek otwierania
Rzut mieszkania najczęściej przedstawia otwory drzwiowe jako przerwy w ścianie lub niewypełnione prostokąty z łukami pokazującymi kierunek otwierania skrzydła. Dodatkowo drzwi mogą mieć oznaczenie literowe (L lub P) oznaczające drzwi lewe lub prawe. Architekt może też zaplanować drzwi przesuwne, praktyczne szczególnie w małych pomieszczeniach. Wówczas zaznacza je na planie najczęściej cienką linią z „szyną” po jednej stronie.
Przy każdym otworze drzwiowym na planie architektonicznym powinna się znajdować cienka prostopadła do ściany linia (oś otworu) z oznaczeniem liczbowym, np. 80/200, 90/200. Liczby te oznaczają kolejno szerokość i wysokość światła przejścia. Dodatkowo na rzucie znajdziesz szerokość otworu drzwiowego: najczęściej jest ona podana przy odcinku narysowanym równolegle do ściany.
To, w którą stronę otwierają się drzwi, ma ogromne znaczenie dla ergonomii. Źle zaplanowane drzwi mogą blokować przejście lub przeszkadzać w wygodnym urządzeniu wnętrza i ustawieniu mebli. W miarę możliwości drzwi powinny otwierać się tak, aby zapewniać widok na cały pokój i umożliwiać wygodne przejście między pomieszczeniami.
Okna czyli jak sprawdzić nasłonecznienie mieszkania
Okna są zaznaczone jako białe prostokąty z łukami lub strzałkami pokazującymi kierunek ich otwierania. W przypadku okien przesuwnych na rysunku widnieje strzałka określająca kierunek przesuwania. Często osobnym symbolem oznacza się także okna uchylne. Sposoby odzwierciedlenia sposobu otwierania okna na planie mogą być różne. Zawsze sprawdzaj legendę planu lub pytaj dewelopera, co dokładnie oznaczają poszczególne symbole.
Bardzo ważnym elementem są oznaczenia liczbowe przy otworach okiennych. Główne oznaczenie znajduje się przy prostopadłej linii wyznaczającej oś otworu i składa się z dwóch liczb – np. 90/200. Reprezentuje ono wymiary światła okna (szerokość/wysokość).
Oznaczeniom okien często towarzyszą także symbole takie jak Hp (wysokość parapetu) lub Hn (wysokość nadproża). Oznaczenie Hp = 0 to znak, że dane okno sięga do poziomu posadzki.
Ponadto okna mogą być oznaczane symbolami takimi jak O1, O2 itd. umieszczanymi na rzucie w kółku. Każdy taki symbol określa inny typ okna. Wymiary, rodzaj ramy, sposób otwierania i inne ważne informacje o oknie znajdują się wówczas w dodawanym do rzutu zestawieniu stolarki okiennej.
Podczas analizy rzutu mieszkania zwracaj uwagę także na ekspozycję okien na konkretne strony świata. Położenie mieszkania względem stron świata powinno być zaznaczone na każdym planie za pomocą tzw. róży wiatrów lub prostego oznaczenia wskazującego północ (strzałka z literą N). Dopływ naturalnego światła wpływa na komfort życia, koszty ogrzewania i odbiór pomieszczeń.
Ekspozycja okien Jak wpływa na komfort użytkowania mieszkania?
Elektryka
Rzut architektoniczny powinien zawierać oznaczenia wskazujące lokalizację elementów osprzętu elektrycznego. Czasami możesz je znaleźć na osobnym planie instalacji. Analizując rzut mieszkania, zwróć szczególną uwagę na lokalizację gniazd elektrycznych i punktów świetlnych podsufitowych.
Miejsce na oprawę świetlną zwykle jest oznaczone symbolem X, czasami wpisanym w kółko. W miejscu na włączniki architekci rysują symbol kółka z odchodzącymi od niego odnogami w kształcie litery L (jedna odnoga to włącznik pojedynczy, a dwie – podwójny).
Symbol gniazda elektrycznego składa się z dwóch prostopadłych odcinków ustawionych w kształt litery T oraz półkola. Jeżeli w danym miejscu ma znaleźć się gniazdo podwójne, przy symbolu widnieje cyfra 2.
Lokalizacja gniazd elektrycznych wpływa na możliwość podłączenia sprzętów czy dodatkowego oświetlenia.
Lokalizacja punktów świetlnych podsufitowych jest ważna przy planowaniu odrębnych stref funkcjonalnych w pomieszczeniach.
Schody
Jeżeli nieruchomość ma dwie kondygnacje, na planie architektonicznym powinny być narysowane także schody. Rysunek pokazuje ich kształt oraz układ stopni. Dodatkowo znajduje się na nim strzałka pokazująca kierunek wznoszenia się schodów. Przy osi schodów znajdziesz też oznaczenie liczbowe składające się z trzech elementów, np. 16 x 18,5 x 26. Liczby te oznaczają kolejno:
- liczbę stopni,
- wysokość jednego stopnia,
- szerokość stopnia.
Zazwyczaj w dokumentacji znajduje się także przekrój pionowy pokazujący schody.
Instalacje i piony – ważne dla lokalizacji kuchni i łazienki
Na rzucie technicznym znajdują się także piony kanalizacyjne i elementy wentylacyjne. Widnieją na planie najczęściej jako przekreślone kółka lub prostokąty. Podłączenia hydrauliczne urządzeń i armatury możesz natomiast rozpoznać po oznaczeniu linią przerywaną z kropką. Wszystkie sanitariaty muszą być podłączone do pionów wodno-kanalizacyjnych, dlatego ich lokalizacja narzuca ograniczenia w aranżacji przestrzeni. Przesunięcie łazienki lub kuchni z dala od pionu jest trudne, kosztowne i ryzykowne.
Łazienka i kuchnia muszą być również podłączone do szybów wentylacyjnych. W kuchni wywiewy powietrza powinny być dwa: jeden ogólny dla całego pomieszczenia, drugi dla okapu kuchennego.
Zazwyczaj w blokach piony instalacyjne są połączone – w jednym pionie prowadzona jest instalacja wody, kanalizacji, wentylacji. Pojedyncze mieszkanie najczęściej ma dostęp do jednego lub dwóch takich pionów. Zwróć uwagę, gdzie na planie znajduje się pion wentylacyjny i kanalizacyjny. To pozwala ocenić, jak można rozmieścić pomieszczenia.
Wymiary i wysokość pomieszczeń
Rzut mieszkania zawiera także bardzo ważne linie wymiarowe. Znajdują się przy nich liczby określające dokładne wymiary pomieszczeń, zazwyczaj w centymetrach. Pokazują one długość każdego odcinka ściany. Dzięki nim możesz sprawdzić, czy zmieszczą się konkretne meble oraz jak dużą przestrzeń masz do dyspozycji. Dodatkowo na rzucie często znajdziesz też powierzchnię każdego pomieszczenia.
Miej świadomość, że metraż na rzucie bywa liczony w stanie surowym, bez tynków. Oznacza to, że powierzchnia użytkowa po wykończeniu może być nieznacznie mniejsza.
Dodatkową informacją, która powinna znaleźć się na rzutach technicznych, jest wysokość pomieszczeń. Standard w nowych inwestycjach to około 260–280 cm. Wyższe wnętrza dają większe poczucie przestrzeni i więcej możliwości aranżacyjnych. To wpływa na komfort codziennego użytkowania.
Jeżeli w lokalu znajdują się skosy dachu, linia przerywana informuje, gdzie dokładnie występują. Na rzucie zapisuje się także wysokość ściany kolankowej, co informuje, od jakiej wysokości zaczyna się skos. Wysokość sufitu decyduje o tym, czy dana przestrzeń wlicza się do powierzchni użytkowej.
Powierzchnia użytkowa a całkowita i mieszkalna Sprawdź, czym się różnią
Plan sprzedażowy a rzut architektoniczny – różnice
Deweloperzy często prezentują mieszkania na atrakcyjnych kartach katalogowych i wizualizacjach. Nie są to jednak dokumenty wiążące prawnie i często mogą odbiegać od faktycznej dokumentacji budowlanej.
Szukaj nieruchomości
Warszawa
mazowieckie, Warszawa
12999 ofert
Wrocław
dolnośląskie, Wrocław
6893 oferty
Kraków
małopolskie, Kraków
5736 ofert
Poznań
wielkopolskie, Poznań
5004 oferty
Łódź
łódzkie, Łódź
3437 ofert
Plany zawarte w katalogach i wizualizacje sprzedażowe mogą maskować niektóre wady projektu. Nie zawierają informacji o ograniczeniach technicznych ani wymiarów. Niektórzy deweloperzy wrysowują na takich planach meble o pomniejszonych wymiarach, przez co pomieszczenia wydają się większe. W rzeczywistości zrealizowanie takiego samego układu funkcjonalnego może być niemożliwe.
| Plan sprzedażowy | Rzut architektoniczny / techniczny | |
|---|---|---|
| Cel | Marketing, wizualizacja | Wykonawczy, załącznik do umowy |
| Szczegółowość | Uproszczona, pokazuje przykład aranżacji (meble) | Techniczna, pokazuje instalacje, grubość ścian itp. |
| Dokładność wymiarów | Orientacyjna | Precyzyjna |
| Instalacje | Często ukryte | Dokładnie rozrysowane |
Zmiany lokatorskie na planie mieszkania – kiedy jest na nie czas?
Chęć dokonania zmian lokatorskich zgłoś jak najwcześniej – najlepiej już na etapie podpisywania umowy. Deweloper zazwyczaj informuje o ostatecznym terminie w harmonogramie inwestycji lub na spotkaniu informacyjnym. Jeżeli nie masz dostępu do takiego planu, wystarczy złożyć bezpośrednie zapytanie.
Zmiany lokatorskie najczęściej dotyczą przesuwania, usuwania lub dodawania ścian działowych. Pozwala to zmienić układ pomieszczeń, aby lepiej dopasować wnętrze do stylu życia i potrzeb mieszkańców lub zwiększyć funkcjonalność przestrzeni. Możliwe jest także np. przesuwanie i wykonywanie dodatkowych gniazd elektrycznych, punktów oświetleniowych czy grzejników.
Zmiany lokatorskie Zakresy i cenniki deweloperów
Kiedy warto skonsultować rzut z architektem wnętrz?
Konsultacja rzutu ze specjalistą jest szczególnie pomocna przy nietypowych układach i rozwiązaniach oraz zawsze wtedy, gdy masz problem z jego interpretacją.
Jak wskazuje Wojciech Rynkowski, ekspert Extradom.pl, analizując plan trzeba również zwrócić szczególną uwagę na miejsca, gdzie zmienia się grubość ścian lub pojawiają się nietypowe „wcięcia” w regularnym kształcie pomieszczeń. Elementy te zazwyczaj oznaczają słupy konstrukcyjne lub piony kominowo-wentylacyjne, których nie da się usunąć ani przesunąć, a które trzeba uwzględnić na etapie planowania aranżacji.
Warto również wypatrywać linii przerywanych w obrębie pomieszczeń – często sugerują one obecność podciągów pod sufitem. Choć nie są widoczne na pierwszy rzut oka w gotowym wnętrzu, mogą optycznie obniżać przestrzeń lub kolidować z planowaną zabudową. Dobrze jest je zawczasu uwzględnić, by uniknąć nieprzyjemnych niespodzianek po odbiorze mieszkania.
Jeśli lokal ma skosy, nietypowe kąty lub wąskie ciągi komunikacyjne, architekt wnętrz pomoże ci ocenić jego potencjał i podjąć świadomą decyzję. Podpowie też, jakie zmiany możesz wprowadzić i jak zwiększyć funkcjonalność przestrzeni.
Specjalista przygotuje wstępną koncepcję aranżacji wnętrz lub wizualizacji 3D. Dzięki temu jeszcze przed zakupem zobaczysz, jak może wyglądać gotowe mieszkanie. To zmniejsza ryzyko rozczarowania po odbiorze. Tego typu usługi mogą być bardzo pomocne dla osób, które nie do końca potrafią czytać plan mieszkania lub nie umieją wyobrazić sobie wnętrz jedynie na podstawie tego typu rysunków.
Rzut mieszkania a odbiór techniczny – weryfikacja
Odbiór techniczny mieszkania to zagwarantowana prawnie procedura, która pozwala kupującemu zweryfikować stan faktyczny z planami dołączonymi do umowy deweloperskiej. W jej przebiegu należy skrupulatnie sprawdzić:
- wymiary i metraż lokalu,
- pion i poziom powierzchni ścian, podłóg itp.,
- równość i gładkość ścian,
- rozmieszczenie gniazd elektrycznych, włączników światła i punktów świetlnych,
- rozmieszczenie przyłączy wodno-kanalizacyjnych,
- prawidłowe działanie instalacji,
- rozmieszczenie i stan okien (w tym parapetów) oraz drzwi
Wszelkie nieprawidłowości musisz zgłosić, a przedstawiciel dewelopera odnotuje je w protokole odbioru. Deweloper ma następnie obowiązek się do nich odnieść. Rzut mieszkania jest tu głównym punktem odniesienia.
Rzut mieszkania – często zadawane pytania
Skąd wziąć rzut mieszkania?
Deweloper udostępnia rzut mieszkania w materiałach ofertowych i jako załącznik do umowy. W ofercie zwykle znajduje się jedynie ogólny układ mieszkania, bez wymiarów i elementów technicznych. Znacznie ważniejszy jest rzut techniczny stanowiący załącznik do umowy, bo to on zawiera potrzebne szczegóły i jest wiążący prawnie.
Ile kosztuje zrobienie rzutu mieszkania?
Przy zakupie mieszkania od dewelopera techniczny rzut mieszkania otrzymasz bezpłatnie. Jeżeli chcesz zlecić wykonanie rzutu funkcjonalnego specjaliście (architektowi wnętrz), koszt zazwyczaj zależy od metrażu. Cena projektu w najwęższym zakresie (koncepcja aranżacji z rzutem i prostymi wizualizacjami) to zazwyczaj 100-300 zł/mkw.
W czym zrobić rzut mieszkania?
Jeżeli chcesz samodzielnie narysować rzut mieszkania, możesz skorzystać z darmowych programów, np. Canva, Sketchup, Archiplaner. Profesjonaliści zwykle korzystają z programów takich jak AutoCAD lub ArchiCAD.
Czy można otrzymać rzut mieszkania w pliku otwartym (np. DWG/CAD)?
Standardowo deweloperzy nie udostępniają rzutów mieszkań w plikach otwartych (do edycji w profesjonalnych programach do projektowania). Możliwe jest stworzenie takiego pliku samodzielnie na bazie otrzymanej dokumentacji w formacie PDF. O udostępnienie pliku otwartego należy pytać indywidualnie, ale deweloper nie ma obowiązku przekazać go kupującemu.
Jak odczytać wymiary pomieszczenia na rzucie mieszkania?
Aby odczytać wymiary pomieszczenia, szukaj cienkich linii, przy których znajdują się liczby. Na rzucie zawsze znajdują się linie wymiarowe pomieszczeń pokazujące dokładną odległość między dwoma punktami. Znajdziesz na nim także wymiary (szerokość i wysokość) okien i drzwi.
Redakcja portalu RynekPierwotny.pl dba o to, by treści ułatwiły Ci proces poszukiwań nowego mieszkania i pomogły po zakupie.
Subskrybuj rynekpierwotny.pl w Google News
PODZIEL SIĘ:
KATEGORIE:
:format(jpg)/articles/gallery/image/8062/02-04_jak-wybrac-mieszkanie-w-dobrej-lokalizacji_1_cover_44b476.png)
:format(jpg)/articles/gallery/image/792/nadplata-kredytu-hipotecznego_a69874.png)
:format(jpg)/articles/gallery/image/10553/sprzedac-kupic-czy-wynajac_2fb502.jpg)
:format(jpg)/articles/gallery/image/12075/szukanie-mieszknia_9ce9d9.jpg)





