Optymalny metraż mieszkania
Średnia ocen 4/5 na podstawie 3 głosów
:format(jpg)/articles/gallery/image/4435/singielka-w-mieszkaniu_c69cb6.jpg)
Większe mieszkanie nie zawsze oznacza lepsze – mniejszy metraż potrafi zaskoczyć funkcjonalnością, jeśli układ został dobrze zaplanowany. W naszym poradniku radzimy, jak dobrać wielkość mieszkania do realnych potrzeb domowników i na co zwrócić uwagę, aby wybrany metraż sprawdził się nie tylko dziś, ale także w kolejnych latach.
Optymalny metraż mieszkania to najczęściej kompromis między budżetem a codzienną wygodą oraz tym, jak przestrzeń będzie wykorzystywana. Zanim przejdziemy do omówienia konkretnych liczb i przykładów, warto uporządkować kilka podstawowych kwestii, które mają realny wpływ na to, jak dany metraż będzie się sprawdzał na co dzień.
Jaki metraż mieszkania – najważniejsze informacje
- Przyjmuje się, że około 20-25 mkw na osobę to dolna granica komfortu, poniżej której codzienne funkcjonowanie staje się trudniejsze.
- Na odbiór przestrzeni wpływa nie tylko liczba metrów, ale także układ mieszkania, proporcje pomieszczeń, dostęp do światła dziennego i ograniczenie powierzchni komunikacyjnej.
- Mniejsze mieszkania mają zwykle wyższą cenę za metr kwadratowy, ale niższą cenę całkowitą; większe lokale bywają korzystniejsze w przeliczeniu na domownika.
Optymalny metraż – kryteria wyboru
Wybór wielkości mieszkania rzadko sprowadza się wyłącznie do pytania „ile metrów?”. Znacznie częściej chodzi o to, jak ta przestrzeń została zaplanowana i czy odpowiada stylowi życia domowników.
Na odbiór przestrzeni wpływa nie tylko liczba metrów, ale także układ mieszkania, proporcje pomieszczeń, dostęp do światła dziennego i ograniczenie powierzchni komunikacyjnej.
Ponadto nie istnieje jeden uniwersalny metraż odpowiedni dla wszystkich – optymalny metraż mieszkania zależy od liczby domowników, stylu życia oraz planów na przyszłość. Wybierając metraż bierz pod uwagę nie tylko swoją aktualną sytuację, ale także zmiany, które mogą nastąpić w twoim życiu w najbliższych latach.
Ile metrów na osobę – gdzie leży granica komfortu?
W kontekście metrażu często pojawia się pojęcie „metrów na osobę”. To uproszczony, ale przydatny punkt odniesienia, zwłaszcza na etapie wstępnego porównywania ofert. Przyjmuje się, że około 20–25 mkw. na osobę to granica, poniżej której mieszkanie zaczyna być odczuwane jako ciasne i trudne w codziennym użytkowaniu.
Taki metraż pozwala zaspokoić podstawowe potrzeby – przygotowanie posiłków, odpoczynek i relaks – ale zwykle nie zostawia dużego marginesu swobody. Każda dodatkowa funkcja, jak praca zdalna czy potrzeba większej ilości miejsca do przechowywania, szybko ujawnia ograniczenia zbyt małej przestrzeni.
Większy komfort daje zakres 30–35 mkw. na osobę, który pozwala lepiej rozdzielić funkcje mieszkania i uniknąć wrażenia, że wszystkie aktywności „nakładają się” na siebie. Warto jednak pamiętać, że są to wartości orientacyjne. Ten sam metraż może być odbierany zupełnie inaczej w zależności od układu lokalu.
Powierzchnia całkowita, użytkowa i mieszkalna Sprawdź różnice
Dlaczego ten sam metraż może dawać zupełnie inne odczucia?
Dwa mieszkania o identycznej powierzchni potrafią różnić się funkcjonalnością w sposób, który trudno uchwycić, patrząc wyłącznie na liczbę metrów kwadratowych. Na odbiór przestrzeni wpływa przede wszystkim ustawność pomieszczeń – regularne kształty i odpowiednie proporcje ułatwiają aranżację i pozwalają w pełni wykorzystać dostępne miejsce.
Z danych zebranych przez RynekPierwotny.pl wynika, że największą popularnością wśród kupujących cieszą się mieszkania dwupokojowe.
Szukaj nieruchomości
Warszawa
mazowieckie, Warszawa
12999 ofert
Wrocław
dolnośląskie, Wrocław
6893 oferty
Kraków
małopolskie, Kraków
5736 ofert
Poznań
wielkopolskie, Poznań
5004 oferty
Łódź
łódzkie, Łódź
3437 ofert

Duże znaczenie ma również liczba okien i dostęp do światła dziennego. Dobrze doświetlone wnętrza sprawiają wrażenie większych i bardziej przyjaznych, nawet jeśli ich metraż jest umiarkowany. Z kolei długie, wąskie korytarze czy nadmiar powierzchni komunikacyjnej mogą sprawić, że mieszkanie „traci” metry, które nie przekładają się na wygodę.
Dlatego przed podjęciem decyzji warto analizować rzuty mieszkań i zastanowić się, jak dana przestrzeń będzie wykorzystywana w praktyce, a nie tylko porównywać suche liczby.
Mieszkanie dla singla – start w dorosłość lub inwestycja
Dla jednej osoby dobrze zaprojektowane mieszkanie o niewielkim metrażu może być w pełni wystarczające. W tym przypadku liczy się przede wszystkim funkcjonalny układ, który pozwala oddzielić strefę dzienną od miejsca do spania lub pracy. Kawalerka lub kompaktowe mieszkanie dwupokojowe często spełniają te wymagania, szczególnie jeśli zostały zaplanowane z myślą o maksymalnym wykorzystaniu przestrzeni.
Takie lokale są popularnym wyborem zarówno jako pierwsze mieszkanie, jak i zakup inwestycyjny. Relatywnie niższa cena całkowita oraz duże zainteresowanie ze strony najemców sprawiają, że mieszkania dla singli charakteryzują się dużą dostępnością w ofercie deweloperów.
Zalecany metraż mieszkania dla singla: około 25-35 mkw.
Mieszkanie dla singla Sprawdź, jak kupić i urządzić
Mieszkanie dla pary – komfort we dwoje
W przypadku pary wybór metrażu przestaje być wyłącznie kwestią „zmieszczenia się”, a zaczyna dotyczyć jakości codziennego życia. Dwie osoby spędzające razem dużo czasu w jednym mieszkaniu szybko odczują różnicę między lokalem zaprojektowanym rozsądnie a takim, który jedynie spełnia minimalne wymagania powierzchniowe.
Najczęściej wybieranym rozwiązaniem jest mieszkanie dwupokojowe, w którym część wspólna i prywatna są wyraźnie rozdzielone. Salon połączony z aneksem kuchennym sprzyja wspólnemu spędzaniu czasu, gotowaniu czy przyjmowaniu gości, natomiast oddzielna sypialnia pozwala zachować prywatność i rytm dnia każdej z osób. Przy metrażu w granicach 40-45 mkw. taki układ bywa już wystarczający, o ile pomieszczenia są proporcjonalne i dobrze doświetlone.
Wraz ze wzrostem metrażu, w okolicach 50-55 mkw., pojawia się większa swoboda aranżacyjna. Łatwiej wygospodarować miejsce do pracy zdalnej, ustawić pojemne szafy czy wydzielić strefy, które pozwalają każdemu z domowników na chwilę prywatności bez poczucia „bycia sobie na głowie”.
Na tym etapie bardzo często pojawia się również pytanie o przyszłość. Jeśli para planuje powiększenie rodziny w ciągu kilku lat, warto już teraz rozważyć większe mieszkanie dwupokojowe lub kompaktowe trzypokojowe. Taka decyzja pozwala uniknąć przeprowadzki w momencie, gdy zmiana mieszkania jest najbardziej uciążliwa – przed narodzinami dziecka lub zaraz po nich.
Zalecany metraż mieszkania dla pary: około 40-55 mkw.
Mieszkanie dla pary Jak pogodzić rozbieżne wymagania?
Mieszkanie dla rodziny z dziećmi – wyzwanie logistyczne
Wraz z pojawieniem się dzieci metraż mieszkania przestaje być wyłącznie kwestią wygody, a coraz częściej staje się elementem codziennej organizacji życia. Liczba domowników rośnie, zmienia się sposób korzystania z przestrzeni, a potrzeby, które wcześniej były drugorzędne, zaczynają odgrywać coraz większą rolę. Dlatego w przypadku rodzin warto patrzeć na metraż nie tylko przez pryzmat „czy się zmieścimy”, ale czy mieszkanie będzie wspierać codzienne funkcjonowanie.
Mieszkanie dla 3-osobowej rodziny
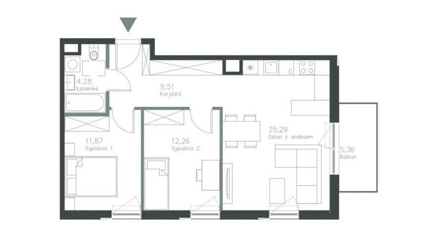
Przy jednym dziecku pojawia się potrzeba wyraźnego podziału przestrzeni. Własny pokój dla dziecka szybko przestaje być luksusem, a zaczyna pełnić kilka funkcji jednocześnie – jest miejscem nauki, zabawy i wypoczynku. Z tego powodu mieszkanie trzypokojowe lub większe dwupokojowe z wydzieloną strefą dziecięcą sprawdza się znacznie lepiej niż mniejszy lokal, który wymaga ciągłych kompromisów.
Równie ważna pozostaje część dzienna. To właśnie salon, często połączony z kuchnią, staje się centrum życia rodzinnego. Przy metrażu w granicach 55–65 mkw możliwe jest zaplanowanie przestrzeni w taki sposób, by każdy z domowników miał swoje miejsce, a jednocześnie nie traciło się poczucia wspólnoty.
Ile metrów na 3 osoby? Zalecany metraż: około 55-65 mkw.
Mieszkanie dla 4-osobowej rodziny
W przypadku rodziny 2+2 metraż zaczyna mieć bezpośredni wpływ na komfort dnia codziennego. Dwoje dzieci to nie tylko dwa pokoje, ale również większe zapotrzebowanie na miejsce do przechowywania, spokojną przestrzeń do nauki oraz rozwiązania, które ułatwiają poranki i wieczory.
Przy czterech domownikach bardzo dobrze sprawdzają się mieszkania, w których strefa prywatna i dzienna są wyraźnie oddzielone. Trzy sypialnie, przestronniejszy salon oraz dwie łazienki lub łazienka i osobne WC znacząco redukują napięcia wynikające z codziennego pośpiechu. To właśnie w takich detalach metraż zaczyna „pracować” na rzecz domowników.
Zalecany metraż mieszkania dla 4-osobowej rodziny: około 70-85 mkw.
Mieszkanie dla 5-osobowej rodziny
Przy pięciu osobach w jednym gospodarstwie domowym większy metraż nie jest już kwestią ambicji czy wygody, lecz realnej potrzeby. Zbyt mała przestrzeń szybko prowadzi do problemów organizacyjnych – braku miejsca do nauki, pracy czy zwykłego odpoczynku w ciszy.
Mieszkania o powierzchni powyżej 90 mkw pozwalają na bardziej elastyczne planowanie przestrzeni, wydzielenie dodatkowych pomieszczeń pomocniczych i stworzenie warunków, w których każdy z domowników może funkcjonować bez ciągłego wchodzenia sobie w drogę. W przypadku większych rodzin warto traktować metraż jako inwestycję w spokój i długofalowy komfort, a nie wyłącznie koszt zakupu.
Szukaj nieruchomości
Warszawa
mazowieckie, Warszawa
12999 ofert
Wrocław
dolnośląskie, Wrocław
6893 oferty
Kraków
małopolskie, Kraków
5736 ofert
Poznań
wielkopolskie, Poznań
5004 oferty
Łódź
łódzkie, Łódź
3437 ofert
Zalecany metraż mieszkania dla 5-osobowej rodziny: od 90 mkw.
Cena za mkw. a wielkość mieszkania – co się opłaca?
Analizując oferty na rynku pierwotnym łatwo zauważyć pewną prawidłowość: im mniejsze mieszkanie, tym wyższa cena za metr kwadratowy. Mniejsze lokale są oczywiście tańsze, jeżeli rozpatrujemy całkowity koszt zakupu, przez co najczęściej mieszczą się w zasięgu budżetów osób kupujących pierwsze mieszkanie. Z kolei większe lokale, szczególnie te przekraczające 80-90 mkw, często oferowane są w bardziej atrakcyjnej cenie za metr, ale wymagają większego kapitału na start.
| Powierzchnia mieszkania (mkw.) | Cena (zł) | Cena (zł/mkw.) |
|---|---|---|
| ok. 30 | 371 875 | 11 900 |
| ok. 40 | 492 277 | 12 242 |
| ok. 50 | 574 698 | 11 448 |
| ok. 60 | 695 370 | 11 143 |
| ok. 70 | 788 616 | 10 817 |
| ok. 80 | 847 362 | 10 560 |
| Powierzchnia mieszkania (mkw.) | Cena (zł) | Cena (zł/mkw.) |
|---|---|---|
| ok. 30 | 444 067 | 13 099 |
| ok. 40 | 526 354 | 13 148 |
| ok. 50 | 572 292 | 11 298 |
| ok. 60 | 686 299 | 11 298 |
| ok. 70 | 782 824 | 11 099 |
| ok. 80 | 832 008 | 10 349 |
Analizując ceny nieruchomości bierz jednak pod uwagę, że cena końcowa mieszkania nawet w obrębie jednej inwestycji zależy od wielu czynników, w tym ekspozycji na strony świata czy piętra.
Ekspozycja okien w mieszkaniu Jak wpływa na rachunki i wartość nieruchomości?
Na metraż nieruchomości warto również spojrzeć przez pryzmat liczby i potrzeb domowników. Większe mieszkanie, które na pierwszy rzut oka wydaje się drogie, po przeliczeniu kosztu na jedną osobę może okazać się rozwiązaniem rozsądnym – zwłaszcza jeśli pozwala uniknąć kolejnej przeprowadzki w ciągu kilku lat. Z kolei mniejszy lokal, choć tańszy przy zakupie, może szybciej przestać odpowiadać potrzebom i generować dodatkowe koszty związane ze zmianą miejsca zamieszkania.
Dlatego wybierając metraż, dobrze jest zadać sobie pytanie nie tylko o to, ile kosztuje jeden metr kwadratowy, ale jaką przestrzeń kupujemy w zamian i na jak długo ma nam ona wystarczyć. Takie spojrzenie pozwala ocenić ofertę w szerszym kontekście i uniknąć decyzji podejmowanych wyłącznie pod presją bieżącego budżetu.
Jak wybrać mieszkanie idealne? Checklista decyzyjna
Na etapie porównywania konkretnych ofert warto zatrzymać się na chwilę i sprawdzić, czy dane mieszkanie odpowiada nie tylko obecnym potrzebom, ale także tym, które mogą pojawić się w ciągu kilku lat. Najprościej zrobić to, zestawiając kluczowe obszary „tu i teraz” z perspektywą przyszłości, na przykład za pięć lat:
- liczba domowników,
- potrzebny metraż,
- budżet na zakupi utrzymanie,
- lokalizacja i codzienne dojazdy.
Takie zestawienie pomaga ustalić, czy wybrany metraż ma szansę sprawdzić się długoterminowo. Może okazać się, że niewielka różnica w metrażu będzie mieć duże znaczenie w przyszłości. Mieszkanie, które dziś wydaje się wystarczające, za kilka lat może przestać odpowiadać zmienionemu stylowi życia lub większej liczbie domowników.
Pamiętaj również, że metraż nie zawsze musi być traktowany jako wartość niezmienna. Wielu deweloperów oferuje możliwości aranżacyjne, takie jak przesunięcie ścianek działowych, połączenie pomieszczeń czy zmiana funkcji poszczególnych stref. Dzięki temu nawet mieszkanie o granicznej powierzchni może zostać lepiej dopasowane do indywidualnych potrzeb, bez konieczności wyboru większego lokalu.
Copywriterka i redaktorka z wieloletnim doświadczeniem w branży nieruchomości. Pasjonuje się urbanistyką i architekturą, a złożone tematy potrafi przekładać na treści zrozumiałe i praktyczne dla czytelników. Specjalizuje się w tekstach dotyczących rynku nieruchomości, aranżacji wnętrz, a także zagadnień prawnych i finansowych.
Subskrybuj rynekpierwotny.pl w Google News
PODZIEL SIĘ:
KATEGORIE:
:format(jpg)/articles/gallery/image/8062/02-04_jak-wybrac-mieszkanie-w-dobrej-lokalizacji_1_cover_44b476.png)
:format(jpg)/articles/gallery/image/792/nadplata-kredytu-hipotecznego_a69874.png)
:format(jpg)/articles/gallery/image/10553/sprzedac-kupic-czy-wynajac_2fb502.jpg)
:format(jpg)/articles/gallery/image/12075/szukanie-mieszknia_9ce9d9.jpg)





