Ceglana Park
Mieszkania na sprzedaż oferowane bezpośrednio przez Develia
Katowice, Brynów, ul. Ceglana
Katowice, Brynów, ul. Ceglana
:format(jpg)/offers/offer/10869/main_image/ceglana-park_1393ac.jpg)
:format(jpg)/offers/offer/10869/main_image/ceglana-park_1393ac.jpg)
1 zdjęcie
Termin oddania
1 kw. 2027
Powierzchnie
29 - 136/m2
Przedział pokoi
1 - 5
Kondygnacje
3 - 7
Budynki
12
Stand. wykończenia
Standard deweloperski
Mieszkania w inwestycji (171)
Sortuj
Stacja kolejowa - Katowice - 1586 m
Przystanek Tramwajowy - 437 m
Przystanek Autobusowy - 84 m
Dojazd do centrum: pokaż
W pobliżu 1 km od tej inwestycji znajdują się:
5 kawiarni i restauracji, 12 sklepów, 21 obiektów sportowych, 18 placówek medycznych, 14 placówek edukacyjnych, 13 placów zabaw
Zdjęcia z budowy
Zobacz na jakim etapie budowy jest ta inwestycja
Udogodnienia Inwestycji
Standard i bezpieczeństwo
- monitoring
- winda
- rowerownia
- patio / dziedziniec
- Standard deweloperski
- Standard deweloperski podwyższony
Instalacje i energetyka
- internet
- miejsce do ładowania samochodów elektrycznych
Rekreacja
- własny akwen
- plac zabaw
Przyroda w okolicy
- 5 parków w okolicy
- park
- las
- jezioro
Szczegóły inwestycji
Realizacja inwestycji: | rozpoczęcie budowy w 3 kw. 2020 roku,
planowane oddanie do użytkowania w 1 kw. 2027 roku |
|---|---|
Liczba budynków: | cała inwestycja składa się z 12 budynków |
Liczba kondygnacji: | budynki posiadają od 3 do 7 kondygnacji naziemnych wraz z parterem oraz 1 kondygnację podziemną |
Liczba mieszkań: | cała inwestycja składa się z 1028 lokali mieszkalnych |
Wysokość pomieszczeń: | na wszystkich kondygnacjach po 258 cm wysokości |
Standard wykończenia | standard deweloperski, standard deweloperski podwyższony |
Rodzaj własności: | odrębna własność z własnością gruntu |
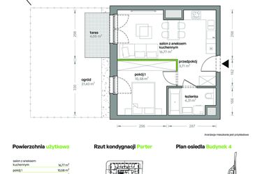
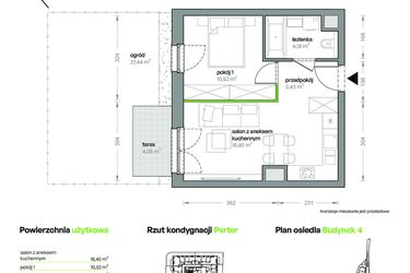
Powierzchnie dodatkowe: | ogródek |
Komórki lokatorskie: | posiada: Komórki lokatorskie o powierzchni od 2,11 mkw do 7,5 mkw. Zakup nie jest obowiązkowy. |
Miejsca postojowe: | w inwestycji przewidziano:
|
Przyroda: | w okolicy inwestycji znajduje się park, las, jezioro |
Aktualna oferta
Dostępne mieszkania: | aktualnie dostępnych jest 171 mieszkań |
|---|---|
Powierzchnie mieszkań: | od 29 do 136 m² |
Liczba pokoi: | dostępne są mieszkania 1, 2, 3, 4, 5-pokojowe |
Opis płatności: | Informacja u dewelopera |
Warunki rezerwacji: | Informacja u dewelopera |
Zabezpieczenie środków klienta: | informacja u dewelopera |
Wysokość czynszu: | informacja u dewelopera |
Ta inwestycja zdobyła 1 miejsce w Rankingu Inwestycji
Edycja 2024
Opis inwestycji
Oferta
W ostatnim czasie uruchomiona została sprzedaż VIII etapu Ceglana Park, w ramach której znajduje się 208 lokali mieszkalnych. Znajdziemy tu zarówno duży wybór kompaktowych kawalerek, jak i przestronnych, 5-pokojowych apartamentów.
Ceglana Park to nowe osiedle mieszkaniowe w Katowicach, w którym udało się połączyć wszystkie kluczowe czynniki decydujące o komforcie życia w mieście. Projekt, w kolejnych etapach, charakteryzuje się dominującą niską zabudową. Przewidziano aleje spacerowe, place zabaw, tężnię solankową. Centralnym punktem osiedla będzie zagospodarowany staw z pomostem. W ofercie znaleźć można mieszkania od 1- do 5-pokojowych, w tym mieszkania z antresolą i dużym tarasem na ostatniej kondygnacji.
Atuty inwestycji:
1. Staw i aleja parkowa na osiedlu
2. Tereny zielone stanowiące dużą cześć powierzchni Osiedla
3. Mieszkania z przestrzennymi ogrodami i tarasami
4. Bliskość parków i miejsc rekreacji
5. Znakomita sieć komunikacji miejskiej
6. Szybki wyjazd z miasta
7. Lokalizacja blisko centrum
8. Inwestycja atrakcyjna pod kątem wynajmu
Terminy zakończenia:
Etap VI (Budynek B7) – I kwartał 2025 r. (zakończony)
Etap VII (Budynki B1, B2, B3) - I kwartał 2026 r.
Etap VIII (Budynki B4, B5, B6, B7) – I kwartał 2027 r.
Niniejszy materiał nie stanowi oferty w rozumieniu Kodeksu cywilnego i ma charakter wyłącznie informacyjny.
Szczegóły inwestycji oraz pełna oferta dostępne są na stronie internetowej:
https://develia.pl/pl/
Inwestycja Ceglana Park znajduje się w Brynowie, ul. Ceglana (2.5 km od centrum Katowic), jest realizowana przez Develia.
Inwestycja obecnie jest w trakcie budowy z planowanym na 1 kw. 2027 roku terminem oddania do użytkowania.
Cały projekt składa się z 1028 nowych mieszkań znajdujących się w 12 budynkach. Budynki posiadają od 3 do 7 kondygnacji naziemnych wraz z parterem oraz 1 kondygnację podziemną.
Aktualnie w inwestycji Ceglana Park w sprzedaży jest 171 nowych mieszkań o powierzchni od 29 do 136 metrów kwadratowych , w cenie od 9 050 zł za metr kwadratowy.
Dla przyszłych mieszkańców Ceglana Park deweloper przewidział:
- miejsca postojowe podziemne
- miejsca postojowe naziemne
W inwestycji znajdują się komórki lokatorskie Komórki lokatorskie o powierzchni od 2,11 mkw do 7,5 mkw. Zakup nie jest obowiązkowy..
Lokalizacja inwestycji
Lokalizacja
Osiedle Ceglana Park powstaje w Katowicach na Brynowie, jednej z najbardziej zielonych i bezpiecznych dzielnic miasta. Inwestycja ma wyjątkowe usytuowanie, w bezpośrednim sąsiedztwie dwóch parków (Park Kościuszki i Katowicki Park Leśny), pieszo dojdziemy stąd także do Muchowca i Doliny Trzech Stawów. Inwestycję dzieli od centrum miasta zaledwie 1 km, a w bezpośrednim sąsiedztwie znajdują się przystanki autobusowe i tramwajowe. Dzięki bliskości ważnych arterii drogowych wyjazd z miasta jest równie wygodny. W ciągu kilku minut dostaniemy się do autostrady A4, trasy S86 czy tzw. wiślanki, czyli drogi krajowej nr 81. Mimo rozbudowanej infrastruktury drogowej, samo osiedle jest spokojne i ma kameralny charakter.
Katowice to miasto w województwie śląskim o powierzchni 164 km kw i liczbie mieszkańców ponad 300 tys. osób. Zabudowa miasta to głównie powojenne bloki i typowe dla Śląska zabytkowe kamienice. Katowice dzielą się na dzielnice pogrupowane w zespoły dzielnic: zespół północny, śródmiejski, południowy, wschodni i zachodni. Miasto jest wojewódzkim centrum medycznym, z kilkunastoma szpitalami, w tym Centralnym Szpitalem Klinicznym im. Kornela Gibińskiego, Szpitalem Klinicznym im. Andrzeja Mieleckiego, Uniwersyteckim Centrum Okulistyki i Onkologii, Szpitalem Klinicznym nr 6 czy Górnośląskim Centrum Zdrowia Dziecka. Działają tu też liczne uniwersytety, takie jak Akademia Wychowania Fizycznego im. Jerzego Kukuczki, Akademia Sztuk Pięknych czy wydziały Politechniki Śląskiej.
Komunikacja
Jak wygląda komunikacja w okolicy inwestycji Ceglana Park?
W Katowicach działa stacja kolejowa Katowice Główne (jedna z największych w Polsce), na której zatrzymują się wszystkie pociągi dalekobieżne, a także kilka mniejszych stacji kolejowych. Lotnisko Katowice-Pyrzowice znajduje się w odległości ok. 10 km od granic dzielnicy. Przez miasto biegnie autostrada A4, trasa E20, która zaczyna się we Francji, trasa E462 Polska-Czechy i trasa E75 kończąca bieg w Grecji. Po mieście kursują tramwaje i autobusy.
Przyszli mieszkańcy inwestycji Ceglana Park mogą korzystać z rozbudowanej sieci połączeń komunikacyjnych. W odległości 100 metrów od inwestycji Ceglana Park znajduje się najbliższy punkt komunikacyjny - Katowice Ceglana Szpital Kliniczny.
Edukacja
Czy w pobliżu inwestycji Ceglana Park znajdują się szkoły/przedszkola?
Mieszkańcy mogą korzystać z bogatej oferty edukacyjnej. W najbliższej okolicy inwestycji Ceglana Park znajduje się 14 placówek edukacyjnych. Najbliżej położone to: Miejskie Przedszkole nr 92 im. Wandy Chotomskiej w odległości 690 m, Miejskie Przedszkole Nr 3 w odległości 695 m, przedszkole w odległości 752 m.
Opieka medyczna
Dużym atutem inwestycji Ceglana Park jest bliskość ośrodków zdrowotnych. Dostęp do opieki medycznej zapewnią położone w pobliżu: Uniwersyteckie Centrum Kliniczne im. prof. K. Gibińskiego Śląskiego Uniwersytetu Medycznego w Katowicach w odległości 100 m.
Sklepy i usługi
Jak daleko jest do najbliższego sklepu?
Na infrastrukturę handlowo-usługową inwestycji Ceglana Park składa się wiele punktów. Nieopodal, w odległości 50 m znajduje się Żabka, w odległości 100 m znajduje się Zachcianka.
Sport
Bliskość terenów rekreacyjnych oraz obiektów sportowych to mocna strona tej lokalizacji. W najbliższej okolicy inwestycji Ceglana Park w odległości 200 m znajduje się boisko / kort, w odległości 300 m znajduje się siłownia na świeżym powietrzu, w odległości 300 m znajduje się centrum sportowe.
Develia
Strona internetowa inwestycjiAdres biura sprzedaży:
Ul. Ceglana 70/4, 40-514 KatowiceGodziny otwarcia biura sprzedaży:
- Poniedziałek: 09:00 - 17:00
- Wtorek: 09:00 - 17:00
- Środa: 09:00 - 17:00
- Czwartek: 09:00 - 17:00
- Piątek: 09:00 - 17:00
Oferty, które mogą Cię zainteresować
Polecane Lokalizacje
Inwestycje w pobliżu w Brynowie
- Rondo Ceglana etap II (54 oferty)
- Barbary 19 (20 ofert)
- Francuska Park IX (125 ofert)
- Kozielska Park (40 ofert)
- VIDOK (128 ofert)
- Belg Apartamenty etap II (175 ofert)
- Park Przy Stawach (10 ofert)
- Mieszkaj w Mieście - Załęska od Nowa (115 ofert)
- Global Apartments (18 ofert)
- O27 Apartamenty Opolska (322 oferty)
- Mikato (111 ofert)
- INSPIRE ETAP V – bud. F, G (15 ofert)





