Unikat Apartamenty C
Oferta archiwalna
Mieszkania na sprzedaż oferowane bezpośrednio przez Rutkowski Development Sp. J.
Gdańsk, Piecki-Migowo, ul. Belgradzka 114C
Gdańsk, Piecki-Migowo, ul. Belgradzka 114C
Oferta archiwalna
Uwaga! Wizytówka niniejszej inwestycji jest nieaktywna. Informacje na jej temat pomagają nam jednak tworzyć wiarygodną bazę informacji na temat lokalnego rynku nieruchomości.
Mamy dla Ciebie 463 oferty w najbliższej okolicy!
Podobne oferty w najbliższej okolicy
Prezentacja oferty archiwalnej
Unikat Apartamenty C
Gdańsk, Piecki-Migowo, ul. Belgradzka 114C
Udogodnienia Inwestycji
Standard i bezpieczeństwo
- winda
- monitoring
- rowerownia
- wózkarnia
- Standard deweloperski
Instalacje i energetyka
- miejsce do ładowania samochodów elektrycznych
- videodomofon
Rekreacja
- plac zabaw
Przyroda w okolicy
- 3 parki w okolicy
Szczegóły inwestycji
Realizacja inwestycji: | rozpoczęcie budowy w 2 kw. 2025 roku,
planowane oddanie do użytkowania w 3 kw. 2027 roku |
|---|---|
Liczba budynków: | cała inwestycja składa się z 1 budynku |
Liczba kondygnacji: | budynek posiada 6 kondygnacji naziemnych wraz z parterem oraz 1 kondygnację podziemną |
Liczba mieszkań: | cała inwestycja składa się z 37 lokali mieszkalnych |
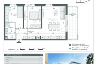
Wysokość pomieszczeń: | w zależności od kondygnacji od 260 do 280 cm wysokości |
Standard wykończenia | standard deweloperski Ogrzewanie miejskie |
Rodzaj własności: | informacja u dewelopera |
Powierzchnie dodatkowe: | nie przewidziano powierzchni dodatkowych |
Komórki lokatorskie: | posiada (45): 6 komórek na akcesoria, 39 komórek lokatorskich, pomieszczenie na rowery jest wspólny dla wszystkich mieszkańców |
Miejsca postojowe: | w inwestycji przewidziano:
|
Przyroda: | informacja u dewelopera |
Opis inwestycji
W zielonej części dzielnicy Piecki-Migowo, przy Parku „Słoneczniki”, powstaje unikatowy projekt architektoniczny z widokiem na Zatokę. Jasne elewacje, duża liczba przeszkleń, baffle w kolorze naturalnego drewna oraz prywatne, przestronne tarasy, to tylko część walorów projektu.
Ulica Belgradzka. Unikatowy punkt widzenia.
Unikat Apartamenty to nowoczesna, ponadczasowa architektura w sąsiedztwie terenów zielonych przy ul. Belgradzkiej. To miejsce wygodne do życia zarówno dla singli, jak i dla rodzin z dziećmi. Projekt architektoniczny docenia także inwestorzy, którzy pragną korzystnie ulokować swój kapitał.
Prywatne, zielone tarasy, przestronne loggie i słoneczne balkony to przestrzeń, dzięki której zrelaksujesz się po długim dniu poza domem.
Ponadczasowa architektura budynków z jasnymi elewacjami i liczymy przeszkleniami oraz wykończeniem z naturalnych materiałów w połączeniu z widokiem na miasto i morze oraz zaprojektowaną zielenią czyni projekt unikatowym.
ZAKOŃCZENIE BUDOWY -30.04.2027r.
ROZPOCZĘCIE ODBIORÓW – nie później niż do dnia 31.08.2027r.
Inwestycja Unikat Apartamenty C znajduje się na Pieckach-Migowo, ul. Belgradzka 114C (4 km od centrum Gdańska), jest realizowana przez Rutkowski Development Sp. J.
Inwestycja obecnie jest w trakcie budowy z planowanym na 3 kw. 2027 roku terminem oddania do użytkowania.
Cały projekt składa się z 37 nowych mieszkań znajdujących się w 1 budynku. Budynek posiada 6 kondygnacji naziemnych wraz z parterem oraz 1 kondygnację podziemną.
Aktualnie w inwestycji Unikat Apartamenty C nie ma nowych mieszkań w sprzedaży.
Dla przyszłych mieszkańców Unikat Apartamenty C deweloper przewidział:
- miejsca postojowe podziemne (36 miejsc)
- miejsca postojowe naziemne (9 miejsc)
W inwestycji znajduje się 45 komórek lokatorskich 6 komórek na akcesoria, 39 komórek lokatorskich, pomieszczenie na rowery jest wspólny dla wszystkich mieszkańców.
Lokalizacja inwestycji
Piecki-Migowo to dzielnica Gdańska o powierzchni nieco ponad 4 km kw i liczbie ludności 22 tys. Ta niewielka dzielnica położona jest w środkowej części Gdańska, pomiędzy dzielnicami Brętowo, Wrzeszcz Górny, Suchanino, Siedlce, Ujeścisko-Łostowice i Jasień. Znajdują się tu liczne zbiorniki wodne, m. in. Staw Pistolet i Wileńska. Znajduje się tu też Gdański Park Naukowo-Technologiczny, miejskie ogródki działkowe i spore tereny zielone. Największą arterią dzielnicy jest przecinająca ją na pół ul. Rakoczego z licznymi kawiarniami czy restauracjami. Znajdują się tu też liczne zabytki wojskowe z okresu II wojny światowej. W dzielnicy mieści się centrum handlowe Morena a także supermarket Tesco. Najbliższymi szkołami wyższymi są Gdański Uniwersytet Medyczny, Wyższa Szkoła Turystyki i Hotelarstwa a także Wyższa Szkoła Bankowa mieszczące się w odległości ok. 2 km od granicy dzielnicy. Dobry dojazd do innych dzielnic zapewniają trzy pętle autobusowe i kilkanaście linii autobusów przejeżdżających przez Piecki – Migowo.
Komunikacja
Jak wygląda komunikacja w okolicy inwestycji Unikat Apartamenty C?
Na tutejszych trzech pętlach autobusowych zatrzymuje się 5 autobusów, a po dzielnicy kursuje kilkanaście autobusów miejskich. Przy ul. Rakoczego funkcjonuje przystanek Pomorskiej Kolei Metropolitalnej „Gdańsk Brętowo”.
Przyszli mieszkańcy inwestycji Unikat Apartamenty C mogą korzystać z rozbudowanej sieci połączeń komunikacyjnych. W odległości 200 metrów od inwestycji Unikat Apartamenty C znajduje się najbliższy punkt komunikacyjny - Belgradzka 03.
Edukacja
Czy w pobliżu inwestycji Unikat Apartamenty C znajdują się szkoły/przedszkola?
Mieszkańcy mogą korzystać z bogatej oferty edukacyjnej. W najbliższej okolicy inwestycji Unikat Apartamenty C znajduje się 35 placówek edukacyjnych. Najbliżej położone to: Przedszkole nr 84 w odległości 200 m.
Opieka medyczna
Dużym atutem inwestycji Unikat Apartamenty C jest bliskość ośrodków zdrowotnych. Dostęp do opieki medycznej zapewnią położone w pobliżu: gabinet lekarski / przychodnia / szpital w odległości 200 m.
Sklepy i usługi
Jak daleko jest do najbliższego sklepu?
Na infrastrukturę handlowo-usługową inwestycji Unikat Apartamenty C składa się wiele punktów. Nieopodal, w odległości 200 m znajduje się Lidl, w odległości 200 m znajduje się Żabka.
Sport
Bliskość terenów rekreacyjnych oraz obiektów sportowych to mocna strona tej lokalizacji. W najbliższej okolicy inwestycji Unikat Apartamenty C w odległości 100 m znajduje się boisko / kort.
Pobliskie lokalizacje
- Mieszkania na sprzedaż Aniołki (185 ofert)
- Mieszkania na sprzedaż Brętowo (128 ofert)
- Mieszkania na sprzedaż Brzeźno (143 oferty)
- Mieszkania na sprzedaż Chełm (128 ofert)
- Mieszkania na sprzedaż Jasień (388 ofert)
- Mieszkania na sprzedaż Kokoszki (59 ofert)
- Mieszkania na sprzedaż Krakowiec-Górki Zachodnie (59 ofert)
- Mieszkania na sprzedaż Letnica (34 oferty)
- Mieszkania na sprzedaż Młyniska (343 oferty)
- Mieszkania na sprzedaż Nowy Port (34 oferty)
- Mieszkania na sprzedaż Olszynka (46 ofert)
- Mieszkania na sprzedaż Orunia Górna - Gdańsk Południe (824 oferty)
- Mieszkania na sprzedaż Orunia-Św. Wojciech-Lipce (124 oferty)
- Mieszkania na sprzedaż Osowa (147 ofert)
- Mieszkania na sprzedaż Przeróbka (66 ofert)
- Mieszkania na sprzedaż Przymorze Wielkie (179 ofert)
- Mieszkania na sprzedaż Rudniki (27 ofert)
Inwestycje w pobliżu na Pieckach-Migowo
- Rakoczego 17 (81 ofert)
- Centralpark (71 ofert)
- 3 lipy (28 ofert)
- Osiedle Synteza etap IV (21 ofert)
- Kusocińskiego - Budynek A (23 oferty)
- Kusocińskiego - Budynek B (125 ofert)
- GreenLine (77 ofert)
- Olchova (4 oferty)
- Murapol Scarpa (25 ofert)
- Osiedle Warszawska (2 oferty)
- Osiedle Warszawska etap III (14 ofert)
- Osiedle Warszawska etap II (33 oferty)





