Gdańsk, Piecki-Migowo, ul. Belgradzka 114D
Gdańsk, Piecki-Migowo, ul. Belgradzka 114D
:format(jpg)/offers/offer/19355/main_image/unikat-apartamenty-d_0e07f8.jpg)
:format(jpg)/offers/offer/19355/main_image/unikat-apartamenty-d_0e07f8.jpg)
1 zdjęcie
Termin oddania
3 kw. 2027
Powierzchnie
30 - 97/m2
Przedział pokoi
1 - 5
Kondygnacje
6
Budynki
1
Stand. wykończenia
Standard deweloperski
Mieszkania w inwestycji (41)
od 14 390 zł/m2
Sortuj
Stacja kolejowa - Gdańsk Brętowo - 1354 m
Przystanek Tramwajowy - 186 m
Przystanek Autobusowy - 175 m
Dojazd do centrum: pokaż
W pobliżu 1 km od tej inwestycji znajdują się:
40 kawiarni i restauracji, 69 sklepów, 56 obiektów sportowych, 16 placówek medycznych, 35 placówek edukacyjnych, 65 placów zabaw
Zdjęcia z budowy
Zobacz na jakim etapie budowy jest ta inwestycja
Udogodnienia Inwestycji
Standard i bezpieczeństwo
- monitoring
- winda
- rowerownia
- wózkarnia
- Standard deweloperski
Instalacje i energetyka
- videodomofon
- miejsce do ładowania samochodów elektrycznych
Rekreacja
- plac zabaw
Przyroda w okolicy
- 3 parki w okolicy
Szczegóły inwestycji
Realizacja inwestycji:
Liczba budynków:
Liczba kondygnacji:
Liczba mieszkań:
Wysokość pomieszczeń:
Standard wykończenia
standard deweloperski
Ogrzewanie
miejskie
Rodzaj własności:
Powierzchnie dodatkowe:
Komórki lokatorskie:
Miejsca postojowe:
- miejsca postojowe podziemne
- miejsca postojowe naziemne
Przyroda:
Aktualna oferta
Dostępne mieszkania:
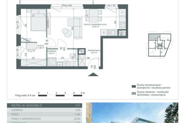
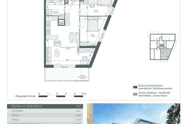
Powierzchnie mieszkań:
Liczba pokoi:
Ceny mieszkań:
- kształtują się w zakresie od 514 669 do 1 797 228 zł
- koszt metra kwadratowego wynosi od 14 390 do 18 790 zł
Opis płatności:
Warunki rezerwacji:
Zabezpieczenie środków klienta:
Wysokość czynszu:
Opis inwestycji
W zielonej części dzielnicy Piecki-Migowo, przy Parku „Słoneczniki”, powstaje unikatowy projekt architektoniczny z widokiem na Zatokę. Jasne elewacje, duża liczba przeszkleń, baffle w kolorze naturalnego drewna oraz prywatne, przestronne tarasy, to tylko część walorów projektu.
Ulica Belgradzka. Unikatowy punkt widzenia.
Unikat Apartamenty to nowoczesna, ponadczasowa architektura w sąsiedztwie terenów zielonych przy ul. Belgradzkiej. To miejsce wygodne do życia zarówno dla singli, jak i dla rodzin z dziećmi. Projekt architektoniczny docenia także inwestorzy, którzy pragną korzystnie ulokować swój kapitał.
Prywatne, zielone tarasy, przestronne loggie i słoneczne balkony to przestrzeń, dzięki której zrelaksujesz się po długim dniu poza domem.
Ponadczasowa architektura budynków z jasnymi elewacjami i liczymy przeszkleniami oraz wykończeniem z naturalnych materiałów w połączeniu z widokiem na miasto i morze oraz zaprojektowaną zielenią czyni projekt unikatowym.
Inwestycja Unikat Apartamenty D znajduje się na Pieckach-Migowo, ul. Belgradzka 114D (4 km od centrum Gdańska), jest realizowana przez Rutkowski Development Sp. J.
Inwestycja obecnie jest w trakcie planowania z planowanym na 3 kw. 2027 roku terminem oddania do użytkowania.
Cały projekt składa się z 51 nowych mieszkań znajdujących się w 1 budynku. Budynek posiada 6 kondygnacji naziemnych wraz z parterem oraz 1 kondygnację podziemną.
Aktualnie w inwestycji Unikat Apartamenty D w sprzedaży jest 41 nowych mieszkań o powierzchni od 30 do 97 metrów kwadratowych , w cenie od 14 390 zł za metr kwadratowy.
Dla przyszłych mieszkańców Unikat Apartamenty D deweloper przewidział:
- miejsca postojowe podziemne
- miejsca postojowe naziemne
W inwestycji znajdują się komórki lokatorskie.
Lokalizacja inwestycji
Piecki-Migowo to dzielnica Gdańska o powierzchni nieco ponad 4 km kw i liczbie ludności 22 tys. Ta niewielka dzielnica położona jest w środkowej części Gdańska, pomiędzy dzielnicami Brętowo, Wrzeszcz Górny, Suchanino, Siedlce, Ujeścisko-Łostowice i Jasień. Znajdują się tu liczne zbiorniki wodne, m. in. Staw Pistolet i Wileńska. Znajduje się tu też Gdański Park Naukowo-Technologiczny, miejskie ogródki działkowe i spore tereny zielone. Największą arterią dzielnicy jest przecinająca ją na pół ul. Rakoczego z licznymi kawiarniami czy restauracjami. Znajdują się tu też liczne zabytki wojskowe z okresu II wojny światowej. W dzielnicy mieści się centrum handlowe Morena a także supermarket Tesco. Najbliższymi szkołami wyższymi są Gdański Uniwersytet Medyczny, Wyższa Szkoła Turystyki i Hotelarstwa a także Wyższa Szkoła Bankowa mieszczące się w odległości ok. 2 km od granicy dzielnicy. Dobry dojazd do innych dzielnic zapewniają trzy pętle autobusowe i kilkanaście linii autobusów przejeżdżających przez Piecki – Migowo.
Komunikacja
Jak wygląda komunikacja w okolicy inwestycji Unikat Apartamenty D?
Na tutejszych trzech pętlach autobusowych zatrzymuje się 5 autobusów, a po dzielnicy kursuje kilkanaście autobusów miejskich. Przy ul. Rakoczego funkcjonuje przystanek Pomorskiej Kolei Metropolitalnej „Gdańsk Brętowo”.
Przyszli mieszkańcy inwestycji Unikat Apartamenty D mogą korzystać z rozbudowanej sieci połączeń komunikacyjnych. W odległości 200 metrów od inwestycji Unikat Apartamenty D znajduje się najbliższy punkt komunikacyjny - Belgradzka 03.
Edukacja
Czy w pobliżu inwestycji Unikat Apartamenty D znajdują się szkoły/przedszkola?
Mieszkańcy mogą korzystać z bogatej oferty edukacyjnej. W najbliższej okolicy inwestycji Unikat Apartamenty D znajduje się 35 placówek edukacyjnych. Najbliżej położone to: Przedszkole nr 84 w odległości 200 m.
Opieka medyczna
Dużym atutem inwestycji Unikat Apartamenty D jest bliskość ośrodków zdrowotnych. Dostęp do opieki medycznej zapewnią położone w pobliżu: gabinet lekarski / przychodnia / szpital w odległości 200 m.
Sklepy i usługi
Jak daleko jest do najbliższego sklepu?
Na infrastrukturę handlowo-usługową inwestycji Unikat Apartamenty D składa się wiele punktów. Nieopodal, w odległości 200 m znajduje się Lidl, w odległości 300 m znajduje się Żabka.
Sport
Bliskość terenów rekreacyjnych oraz obiektów sportowych to mocna strona tej lokalizacji. W najbliższej okolicy inwestycji Unikat Apartamenty D w odległości 100 m znajduje się boisko / kort.
Rutkowski Development Sp. J.
Strona internetowa inwestycjiAdres biura sprzedaży:
ul. Eugeniusza Węgrzyna 4/U4, GdańskGodziny otwarcia biura sprzedaży:
- Poniedziałek: 08:00 - 17:00
- Wtorek: 08:00 - 17:00
- Środa: 08:00 - 17:00
- Czwartek: 08:00 - 17:00
- Piątek: 08:00 - 17:00
- Sobota: 09:00 - 14:00
Salony otwarte w każdą ostatnią sobotę miesiąca!
Oferty, które mogą Cię zainteresować
Polecane Lokalizacje
- Mieszkania na sprzedaż Aniołki (257 ofert)
- Mieszkania na sprzedaż Brętowo (174 oferty)
- Mieszkania na sprzedaż Brzeźno (127 ofert)
- Mieszkania na sprzedaż Chełm (58 ofert)
- Mieszkania na sprzedaż Jasień (481 ofert)
- Mieszkania na sprzedaż Kokoszki (6 ofert)
- Mieszkania na sprzedaż Krakowiec-Górki Zachodnie (60 ofert)
- Mieszkania na sprzedaż Letnica (51 ofert)
- Mieszkania na sprzedaż Matarnia (1 ofertę)
- Mieszkania na sprzedaż Młyniska (491 ofert)
- Mieszkania na sprzedaż Nowy Port (39 ofert)
- Mieszkania na sprzedaż Oliwa (14 ofert)
- Mieszkania na sprzedaż Olszynka (48 ofert)
- Mieszkania na sprzedaż Orunia Górna - Gdańsk Południe (955 ofert)
- Mieszkania na sprzedaż Orunia-Św. Wojciech-Lipce (142 oferty)
- Mieszkania na sprzedaż Osowa (91 ofert)
- Mieszkania na sprzedaż Przeróbka (108 ofert)
- Mieszkania na sprzedaż Rudniki (43 oferty)
Inwestycje w pobliżu na Pieckach-Migowo
- Unikat Apartamenty C (23 oferty)
- Rakoczego 17 (126 ofert)
- Centralpark (15 ofert)
- Osiedle Synteza etap III (5 ofert)
- 3 lipy (27 ofert)
- Osiedle Synteza etap IV (51 ofert)
- Kusocińskiego - Budynek A (38 ofert)
- Kusocińskiego - Budynek B (150 ofert)
- GreenLine (105 ofert)
- Wzgórze Hoplity etap II (8 ofert)
- Wzgórze Hoplity (4 oferty)
- Olchova (4 oferty)





