Wolne Miasto etap VII
Mieszkania na sprzedaż oferowane bezpośrednio przez ECO Classic Sp. z o.o.
Gdańsk, Ujeścisko-Łostowice, ul. Cedrowa 35
Gdańsk, Ujeścisko-Łostowice, ul. Cedrowa 35
:format(jpg)/offers/offer/None/main_image/wolne-miasto-etap-vii_3613f8.jpg)
:format(jpg)/offers/offer/None/main_image/wolne-miasto-etap-vii_3613f8.jpg)
1 zdjęcie
W sprzedaży
Termin oddania
Gotowe
Powierzchnie
69 - 73/m2
Przedział pokoi
3 - 4
Kondygnacje
4
Budynki
1
Stand. wykończenia
Standard deweloperski
Mieszkania w inwestycji (5)
Sortuj
Stacja kolejowa - Gdańsk Jasień - 2899 m
Przystanek Tramwajowy - 700 m
Przystanek Autobusowy - 175 m
Dojazd do centrum: pokaż
W pobliżu 1 km od tej inwestycji znajdują się:
4 kawiarnie i restauracje, 16 sklepów, 11 obiektów sportowych, 6 placówek medycznych, 9 placówek edukacyjnych, 38 placów zabaw
Zdjęcia z budowy
Zobacz na jakim etapie budowy jest ta inwestycja
Udogodnienia Inwestycji
Standard i bezpieczeństwo
- ochrona całodobowa
- monitoring
- winda
- Standard deweloperski
Rekreacja
- plac zabaw
- siłownia plenerowa
Szczegóły inwestycji
Realizacja inwestycji: | rozpoczęcie budowy w 4 kw. 2023 roku, inwestycja została oddana do użytkowania w 4 kw. 2025 roku |
|---|---|
Liczba budynków: | cała inwestycja składa się z 1 budynku |
Liczba kondygnacji: | budynek posiada 4 kondygnacje naziemne wraz z parterem oraz 1 kondygnację podziemną |
Liczba mieszkań: | cała inwestycja składa się z 91 lokali mieszkalnych |
Wysokość pomieszczeń: | w zależności od kondygnacji od 260 do 280 cm wysokości |
Standard wykończenia | standard deweloperski |
Rodzaj własności: | odrębna własność z własnością gruntu |
Powierzchnie dodatkowe: | balkon |
Komórki lokatorskie: | posiada: wielkość: 3-7,8 m2 |
Miejsca postojowe: | w inwestycji przewidziano:
|
Przyroda: | informacja u dewelopera |
Aktualna oferta
Dostępne mieszkania: | aktualnie dostępnych jest 5 mieszkań |
|---|---|
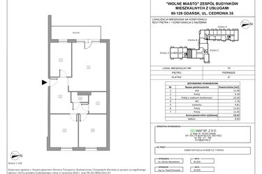
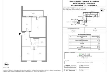
Powierzchnie mieszkań: | od 69 do 73 m² |
Liczba pokoi: | dostępne są mieszkania 3, 4-pokojowe |
Opis płatności: | Informacja u dewelopera |
Warunki rezerwacji: | Informacja u dewelopera |
Zabezpieczenie środków klienta: | otwarty mieszkaniowy rachunek powierniczy |
Wysokość czynszu: | informacja u dewelopera |
Opis inwestycji
Zlokalizowane w Gdańsku przy ul. Cedrowej osiedle Wolne Miasto składać się będzie z ośmiu budynków wielorodzinnych mieszkalno-usługowych. W zaprojektowanym układzie znajduje się ok.1200 mieszkań co nadaje zespołowi rangę samodzielnego osiedla. Oddalona niespełna 5 km od centrum miasta inwestycja, została zaprojektowana na kształt tradycyjnego, pełnego zieleni miasteczka z reprezentacyjną aleją główną, uliczkami wewnętrznymi i placem centralnym.
INFRASTRUKTURA
Budowa osiedla rozpoczęła się w 2011 roku a do tej pory powstało już 6 z 8 planowanych etapów inwestycji, które zapewniają obecnym i przyszłym mieszkańcom pełną infrastrukturę. Lokale usługowe zlokalizowane na parterze wzdłuż głównej alei inwestycji, dają mieszkańcom dostęp do usług takich jak salon kosmetyczny, sklep spożywczy, piekarnia, gabinet dietetyczny, biuro rachunkowe, przychodnia lekarska, gabinet stomatologiczny, przedszkole, szkoła językowa i wiele innych.
OTOCZENIE I TERENY REKREACYJNE:
Ogromną wagę przyłożyliśmy do zapewnienia na osiedlu terenów zielonych i rekreacyjnych. Pomiędzy budynkami pozostawiliśmy wiele miejsc do wypoczynku, zielonych skwerków, a część drzewostanu to dawny sad owocowy. Na terenie osiedla powstały też budki lęgowe dla wielu gatunków ptaków. Z myślą o najmłodszych przygotowaliśmy kilka różnorodnych placów zabaw oraz liczne ścieżki piesze sprzyjające spacerom. Do dyspozycji mieszkańców pozostaje także boisko do koszykówki a w pobliżu znajduje się siłownia plenerowa oraz uroczy staw z zagospodarowanym dookoła terenem zielonym. Centralnym elementem inwestycji, a zarazem doskonałym miejscem do spędzania wspólnie wolnego czasu, jest Plac Fontanny a na nim niezwykła i zaskakująca rzeźba - fontanna z brązu, przedstawiająca trzy konie.
OBECNIE W OFERCIE:
Obecnie w ofercie posiadamy Etap VII osiedla Wolne Miasto (Budynek G), który znajduje się w dzielnicy Ujeścisko-Łostowice ul. Cedrowa (zaledwie 5 km od centrum Gdańska) i jest realizowany przez ECO Classic Sp. z o.o. Inwestycja jest w trakcie budowy z planowanym na drugą połowę 2025 roku terminem zakończenia budowy.
Etap VII to 3 piętrowy budynek z windami oraz garażem podziemnym. Każde z mieszkań posiada balkon lub loggie, natomiast mieszkania na parterze zielone ogródki.
W sprzedaży dostępne są mieszkania
- 2-pokojowe o powierzchni od 33 do 47 m2
- 3-pokojowe o powierzchni od 58 do 74 m2
- 4-pokojowe o powierzchni od 72 do 82 m2
- 5-pokojowe o powierzchni 83 m2
Dla przyszłych mieszkańców ECO Classic Sp. z o.o. przewidział również:
- miejsca postojowe podziemne i naziemne
- komórki lokatorskie
Inwestycja Wolne Miasto etap VII znajduje się na Ujeścisku-Łostowicach, ul. Cedrowa 35 (4.2 km od centrum Gdańska), została zrealizowana przez ECO Classic Sp. z o.o.
Inwestycja Wolne Miasto etap VII została wybudowana i oddana do użytkowania w 4 kw. 2025 roku.
Cały projekt składa się z 91 nowych mieszkań znajdujących się w 1 budynku. Budynek posiada 4 kondygnacje naziemne wraz z parterem oraz 1 kondygnację podziemną.
Aktualnie w inwestycji Wolne Miasto etap VII w sprzedaży jest 5 nowych mieszkań o powierzchni od 69 do 73 metrów kwadratowych , w cenie od 10 960 zł za metr kwadratowy.
Dla przyszłych mieszkańców Wolne Miasto etap VII deweloper przewidział:
- miejsca postojowe podziemne
- miejsca postojowe naziemne
W inwestycji znajdują się komórki lokatorskie wielkość: 3-7,8 m2.
Lokalizacja inwestycji
Gdańsk to miasto położone na północy Polski w bezpośrednim sąsiedztwie Morza Bałtyckiego (Zatoka Gdańska). Ok 100 m. dzieli granice Gdańska od Pruszcza Gdańskiego, 30 km od Elbląga, 7 km od Sopotu i 12 km od Gdyni. Panorama Gdańska to zarówno przedwojenne zabytki jak i kamienice odbudowane po wojnie, a także bloki i domki jednorodzinne. Gdańsk składa się z kilkudziesięciu dzielnic, w tym Aniołki, Oliwa, Przymorze Wielkie, Strzyża, Śródmieście, Ujeścisko-Łostowice i Wyspa Sobieszewska. To ważny ośrodek naukowy z Uniwersytetem Gdańskim, Politechniką Gdańską czy Gdańskim Uniwersytetem Medycznym na czele. Za kulturę odpowiada m.in. Filharmonia Bałtycka, Opera Bałtycka, Teatr Wybrzeże, Gdański Teatr Szekspirowski oraz Muzeum Narodowe. Ofertę kulturalną uzupełniają zabytki od średniowiecznych po te najnowsze (Stocznia Gdańska).
Komunikacja
Jak wygląda komunikacja w okolicy inwestycji Wolne Miasto etap VII?
Szybka Kolej Miejska łączy Gdańsk z Gdynią i Sopotem, z kolei dworzec Gdańsk Główny pozwala dojechać do każdego miasta w kraju. Z Gdańska można też dostać się promem do położonego w odległości 22 km Helu, a także do miejsc położonych w Szwecji. Przez miasto przebiegają drogi: europejska E28, E75 i E77, a także droga krajowa 91. W Gdańsku kursuje też kilkadziesiąt linii autobusów, w tym autobusy nocne. Znajduje się tu też Port Lotniczy Gdańsk Rębiechowo im. Lecha Wałęsy – trzeci pod względem wielkości w kraju.
Przyszli mieszkańcy inwestycji Wolne Miasto etap VII mogą korzystać z rozbudowanej sieci połączeń komunikacyjnych. W odległości 200 metrów od inwestycji Wolne Miasto etap VII znajduje się najbliższy punkt komunikacyjny - Cedrowa 02.
Edukacja
Czy w pobliżu inwestycji Wolne Miasto etap VII znajdują się szkoły/przedszkola?
Mieszkańcy mogą korzystać z bogatej oferty edukacyjnej. W najbliższej okolicy inwestycji Wolne Miasto etap VII znajduje się 9 placówek edukacyjnych. Najbliżej położone to: Przedszkole Mali Przyjaciele w odległości 500 m.
Opieka medyczna
Dużym atutem inwestycji Wolne Miasto etap VII jest bliskość ośrodków zdrowotnych. Dostęp do opieki medycznej zapewnią położone w pobliżu: Przychodnia Wolne Miasto - filia w odległości 50 m.
Sklepy i usługi
Jak daleko jest do najbliższego sklepu?
Na infrastrukturę handlowo-usługową inwestycji Wolne Miasto etap VII składa się wiele punktów. Nieopodal, w odległości 100 m znajduje się Eres, w odległości 100 m znajduje się Żabka.
Sport
Bliskość terenów rekreacyjnych oraz obiektów sportowych to mocna strona tej lokalizacji. W najbliższej okolicy inwestycji Wolne Miasto etap VII w odległości 200 m znajduje się boisko / kort, w odległości 400 m znajduje się siłownia na świeżym powietrzu.
ECO Classic Sp. z o.o.
Strona internetowa inwestycjiAdres biura sprzedaży:
ul. Cedrowa 27, 80-126 GdańskGodziny otwarcia biura sprzedaży:
- Poniedziałek: 09:00 - 17:00
- Wtorek: 09:00 - 17:00
- Środa: 10:00 - 18:00
- Czwartek: 10:00 - 18:00
- Piątek: 09:00 - 17:00
- Sobota: 09:00 - 14:00
Oferty, które mogą Cię zainteresować
Polecane Lokalizacje
- Mieszkania na sprzedaż Aniołki (249 ofert)
- Mieszkania na sprzedaż Brętowo (152 oferty)
- Mieszkania na sprzedaż Brzeźno (87 ofert)
- Mieszkania na sprzedaż Chełm (155 ofert)
- Mieszkania na sprzedaż Jasień (398 ofert)
- Mieszkania na sprzedaż Kokoszki (5 ofert)
- Mieszkania na sprzedaż Krakowiec-Górki Zachodnie (60 ofert)
- Mieszkania na sprzedaż Letnica (34 oferty)
- Mieszkania na sprzedaż Młyniska (444 oferty)
- Mieszkania na sprzedaż Nowy Port (34 oferty)
- Mieszkania na sprzedaż Oliwa (21 ofert)
- Mieszkania na sprzedaż Olszynka (39 ofert)
- Mieszkania na sprzedaż Orunia Górna - Gdańsk Południe (929 ofert)
- Mieszkania na sprzedaż Orunia-Św. Wojciech-Lipce (205 ofert)
- Mieszkania na sprzedaż Osowa (97 ofert)
- Mieszkania na sprzedaż Piecki-Migowo (492 oferty)
- Mieszkania na sprzedaż Przeróbka (80 ofert)
Inwestycje w pobliżu na Ujeścisku-Łostowicach
- Osiedle Warszawska (21 ofert)
- Osiedle Warszawska etap III (27 ofert)
- Osiedle Warszawska etap II (54 oferty)
- ROSA Residence etap II (4 oferty)
- Olchova (4 oferty)
- ROSA Residence (3 oferty)
- Wzgórze Hoplity etap II (4 oferty)
- Osiedle Synteza etap IV (37 ofert)
- Osiedle Synteza etap III (4 oferty)
- Kaskada Jasień - etap II (1 oferta)
- 3 lipy (25 ofert)
- Osiedle Przyjemne IV (87 ofert)





