Stalowa 76
Oferta archiwalna
Mieszkania na sprzedaż oferowane bezpośrednio przez Wrocław Investment
Wrocław, Fabryczna, Gajowice, ul. Stalowa 76
Wrocław, Fabryczna, Gajowice, ul. Stalowa 76
Oferta archiwalna
Uwaga! Wizytówka niniejszej inwestycji jest nieaktywna. Informacje na jej temat pomagają nam jednak tworzyć wiarygodną bazę informacji na temat lokalnego rynku nieruchomości.
Mamy dla Ciebie 156 ofert w najbliższej okolicy!
Podobne oferty w najbliższej okolicy
Prezentacja oferty archiwalnej
Stalowa 76
Wrocław, Fabryczna, Gajowice, ul. Stalowa 76
Udogodnienia Inwestycji
Standard i bezpieczeństwo
- usługi w budynku
- winda
- Standard deweloperski podwyższony
Przyroda w okolicy
- park
Szczegóły inwestycji
Realizacja inwestycji: | rozpoczęcie budowy w 1 kw. 2025 roku,
planowane oddanie do użytkowania w 3 kw. 2027 roku |
|---|---|
Liczba budynków: | cała inwestycja składa się z 1 budynku |
Liczba kondygnacji: | budynek posiada 6 kondygnacji naziemnych wraz z parterem oraz 1 kondygnację podziemną |
Liczba mieszkań: | cała inwestycja składa się z 51 lokali mieszkalnych |
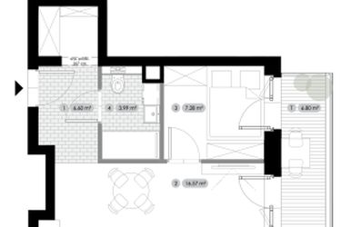
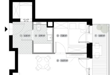
Wysokość pomieszczeń: | w zależności od kondygnacji od 260 do 280 cm wysokości |
Standard wykończenia | standard deweloperski podwyższony Ogrzewanie miejskie |
Rodzaj własności: | informacja u dewelopera |
Powierzchnie dodatkowe: | nie przewidziano powierzchni dodatkowych |
Komórki lokatorskie: | nie przewidziano |
Miejsca postojowe: | w inwestycji przewidziano:
|
Przyroda: | w okolicy inwestycji znajduje się park |
Opis inwestycji
Stalowa 76 to projekt łączący nowoczesną architekturę z miejskim stylem życia. Elegancki, pięciokondygnacyjny budynek zaprojektowany z myślą o mieszkańcach ceniących wygodę, estetykę i funkcjonalność. Na pięciu kondygnacjach znajdzie się 50 wysokiej klasy mieszkań o zróżnicowanych metrażach – od przytulnych kawalerek po bardziej przestronne, idealne dla rodzin apartamenty. Parter oraz kondygnacja podziemna zostały przeznaczone na parking oraz przestrzeń usługową co dodatkowo zwiększy komfort codziennego życia. Wnętrza części wspólnych wyróżniać się będą subtelnym industrialnym sznytem i wyjątkowym poczuciem prywatności.
Wysoka jakość zastosowanych materiałów, dbałość o detale, duże balkony oraz przemyślane układy apartamentów to gwarancja komfortu i trwałości, które będą służyć mieszkańcom przez lata.
Istnieje możliwość wykończenia mieszkania pod klucz.
Inwestycja Stalowa 76 znajduje się na Gajowicach, ul. Stalowa 76 (2.8 km od centrum Wrocławia), jest realizowana przez Wrocław Investment.
Inwestycja obecnie jest w trakcie budowy z planowanym na 3 kw. 2027 roku terminem oddania do użytkowania.
Cały projekt składa się z 51 nowych mieszkań znajdujących się w 1 budynku. Budynek posiada 6 kondygnacji naziemnych wraz z parterem oraz 1 kondygnację podziemną.
Aktualnie w inwestycji Stalowa 76 nie ma nowych mieszkań w sprzedaży.
Dla przyszłych mieszkańców Stalowa 76 deweloper przewidział:
- miejsca postojowe podziemne (51 miejsc)
Lokalizacja inwestycji
Wrocław Fabryczna to największa dzielnica w mieście. Obejmuje całą północno - zachodnią część miasta. Zamieszkuję ją blisko 200 tysięcy mieszkańców. Na terenie Fabrycznej znajduję się najwięcej osiedli mieszkaniowych. Ich nazwy pochodzą od wsi i miast, które włączane były w granice administracyjne miasta. Przy ulicy Trzemielowickiej znajdziemy dawne obiekty koszarowe. Jest to też dzielnica rekreacyjna, głównie ze względu na dużą ilość terenów zielonych takich jak Las Leśnicki czy Las Ratyński. Wschodnia granica tej dzielnicy przebiega wzdłuż Odry. Ceniący sobie zdrowy tryb życia znajdą tu wiele obiektów sportowych jak Centrum Basenowo – Sportowe czy liczne orliki, kluby fitness i siłownie. W północnej części dzielnicy znajduje się Stadion Miejski, który był jedną z aren Euro 2012. Przez Fabryczną przebiega droga krajowa nr 94 oraz obwodnica miasta. Dzielnica jest dobrze skomunikowana z centrum miasta poprzez liczne trasy autobusowe oraz tramwajowe. Znajduję się tu również międzynarodowe lotnisko – Copernicus Airport.
Komunikacja
Jak wygląda komunikacja w okolicy inwestycji Stalowa 76?
Wrocław Fabryczna jest dobrze połączona komunikacyjnie z pozostałymi częściami miasta – autobusy i tramwaje łączą bezpośrednio dzielnicę z centrum. Dla miłośników jednośladów, Fabryczna posiada wiele ścieżek rowerowych, którymi bez problemu można przedostać się na drugą część miasta. Przebiega tędy również Autostradowa Obwodnica Wrocławia.
Przyszli mieszkańcy inwestycji Stalowa 76 mogą korzystać z rozbudowanej sieci połączeń komunikacyjnych. W odległości 200 metrów od inwestycji Stalowa 76 znajduje się najbliższy punkt komunikacyjny - Stalowa.
Edukacja
Czy w pobliżu inwestycji Stalowa 76 znajdują się szkoły/przedszkola?
Mieszkańcy mogą korzystać z bogatej oferty edukacyjnej. W najbliższej okolicy inwestycji Stalowa 76 znajduje się 45 placówek edukacyjnych. Najbliżej położone to: Przedszkole nr 94 w odległości 100 m.
Opieka medyczna
Dużym atutem inwestycji Stalowa 76 jest bliskość ośrodków zdrowotnych. Dostęp do opieki medycznej zapewnią położone w pobliżu: Dolnośląskie Centrum Chorób Płuc w odległości 300 m.
Sklepy i usługi
Jak daleko jest do najbliższego sklepu?
Na infrastrukturę handlowo-usługową inwestycji Stalowa 76 składa się wiele punktów. Nieopodal, w odległości 100 m znajduje się Żabka, w odległości 100 m znajduje się Zieleniak na Spiżowej.
Sport
Bliskość terenów rekreacyjnych oraz obiektów sportowych to mocna strona tej lokalizacji. W najbliższej okolicy inwestycji Stalowa 76 w odległości 300 m znajduje się siłownia na świeżym powietrzu.
Pobliskie lokalizacje
- Mieszkania na sprzedaż Grabiszyn-Grabiszynek (21 ofert)
- Mieszkania na sprzedaż Kuźniki (34 oferty)
- Mieszkania na sprzedaż Marszowice (93 oferty)
- Mieszkania na sprzedaż Maślice (141 ofert)
- Mieszkania na sprzedaż Muchobór Mały (214 ofert)
- Mieszkania na sprzedaż Nowy Dwór (34 oferty)
- Mieszkania na sprzedaż Pilczyce (190 ofert)
- Mieszkania na sprzedaż Popowice (162 oferty)
- Mieszkania na sprzedaż Pracze Odrzańskie (9 ofert)
- Mieszkania na sprzedaż Stabłowice (120 ofert)
Inwestycje w pobliżu na Gajowicach
- Stalova (107 ofert)
- ATAL Grabiszyn (49 ofert)
- Atrium - Nowy Szczepin (150 ofert)
- Braniborska 80 (1 oferta)
- Nowe Centrum Południowe etap IV (107 ofert)
- Ogrody Grabiszyńskie etap II, klatka B (21 ofert)
- Murapol Motivo (177 ofert)
- Sudea (49 ofert)
- Nowa Pabianicka (50 ofert)
- Czysta 4 (2 oferty)
- Legnicka Vita (78 ofert)
- Apartamenty nad Rzeką (4 oferty)





