Łódź, Górna, Piastów-Kurak, ul. Strycharska 6
Łódź, Górna, Piastów-Kurak, ul. Strycharska 6
:format(jpg)/offers/offer/None/main_image/nowa-strycharska-str-6_f44ed7.jpg)
:format(jpg)/offers/offer/None/main_image/nowa-strycharska-str-6_f44ed7.jpg)
1 zdjęcie
Termin oddania
2 kw. 2026
Powierzchnie
28 - 87/m2
Przedział pokoi
1 - 4
Kondygnacje
5
Budynki
1
Stand. wykończenia
Standard deweloperski
Mieszkania w inwestycji (33)
od 9 700 zł/m2
Sortuj
Stacja kolejowa - Łódź Chojny - 1165 m
Przystanek Tramwajowy - 162 m
Przystanek Autobusowy - 451 m
Dojazd do centrum: pokaż
W pobliżu 1 km od tej inwestycji znajdują się:
18 kawiarni i restauracji, 62 sklepy, 45 obiektów sportowych, 32 placówki medyczne, 38 placówek edukacyjnych, 40 placów zabaw
Zdjęcia z budowy
Zobacz na jakim etapie budowy jest ta inwestycja
Udogodnienia Inwestycji
Standard i bezpieczeństwo
- teren ogrodzony
- winda
- rowerownia
- Standard deweloperski
Instalacje i energetyka
- miejsce do ładowania samochodów elektrycznych
- pompa ciepła
Przyroda w okolicy
- 6 parków w okolicy
- park
Szczegóły inwestycji
Realizacja inwestycji:
Liczba budynków:
Liczba kondygnacji:
Liczba mieszkań:
Wysokość pomieszczeń:
Standard wykończenia
standard deweloperski
Ogrzewanie
centralne
Rodzaj własności:
Powierzchnie dodatkowe:
Komórki lokatorskie:
Miejsca postojowe:
- miejsca postojowe podziemne (32 miejsca) w cenie 50 000 zł : nieobowiązkowy zakup
Przyroda:
Aktualna oferta
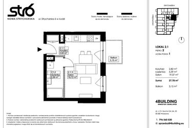
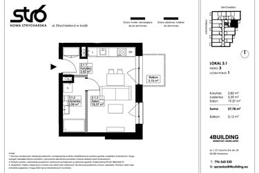
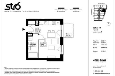
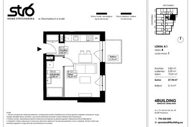
Dostępne mieszkania:
Powierzchnie mieszkań:
Liczba pokoi:
Ceny mieszkań:
- kształtują się w zakresie od 293 004 do 922 269 zł
- koszt metra kwadratowego wynosi od 9 700 do 12 075 zł
Opis płatności:
Warunki rezerwacji:
Zabezpieczenie środków klienta:
Wysokość czynszu:
Opis inwestycji
Nowa Strycharska | STR 6 to miejsce, gdzie pozytywna energia mieszkańców naturalnie przeplata się z nowoczesną architekturą miejską. Znakiem rozpoznawczym budynków jest nowoczesna architektura o charakterystycznej geometrii elementów fasady – przestrzeń zaprojektowana w dobrym guście.
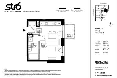
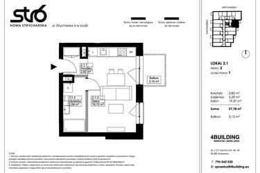
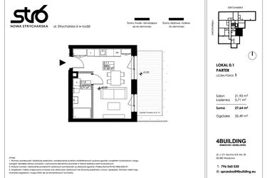
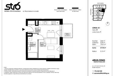
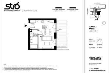
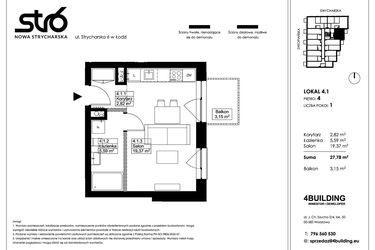
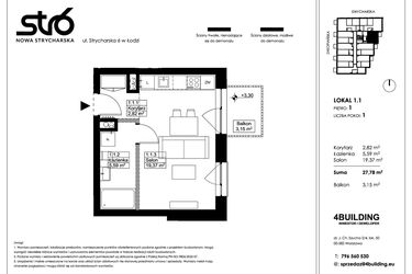
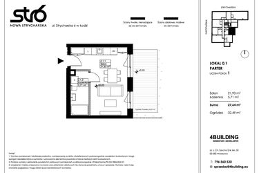
Inwestycja zlokalizowana jest przy ul. Strycharskiej 6 w Łodzi. To propozycja dla osób ceniących sobie dostęp do oferty handlowo-usługowej, a także dogodną komunikację z resztą miasta. W jednym 5-kondygnacyjnych budynku znajdą się łącznie 38 mieszkania i 3 lokale usługowe. Oferta obejmuje lokale 1-, 2-, 3-pokojowe o powierzchni od 27 m² do 67 m². Wybrane mieszkania posiadają indywidualne ogródki z widokiem na patio, dzięki którym ich właściciele zyskają dodatkową przestrzeń do odpoczynku i relaksu.
W trosce o komfort mieszkańców na parterze znajdą się lokale usługowe, zielone patio oraz elementy małej architektury. W inwestycji zaprojektowano również halę garażową, komórki lokatorskie, parkingi dla rowerów oraz miejsca ładowania samochodów elektrycznych.
Bądź Eko – Udogodnienia
1) Parking dla rowerów
Dla miłośników aktywnego trybu życia i ekologicznego transportu, Nowa Strycharska | STR 6 oferuje wygodną rowerownię. To doskonałe miejsce do przechowywania i konserwacji rowerów, zachęcając mieszkańców do korzystania z tego przyjaznego dla środowiska środka transportu.
2) Zielone Patio
Oaza zieleni w samym sercu inwestycji! Nasze zielone patio to miejsce, które wiosną będzie cieszyć zielenią, a jesienią pobudzi zmysły czerwienią i żółcią. To miejsce pozwoli cieszyć się naturą w otoczeniu miejskiego zgiełku.
3) Stanowiska do Ładowania Samochodów Elektrycznych
Nowoczesne podejście do mobilności! Dbamy o naszą planetę, dlatego zapewniamy mieszkańcom możliwość ładowania swoich samochodów elektrycznych na specjalnie przystosowanym stanowiskach, do których można zamontować indywidualne stacje ładowania. To inwestycja w przyszłość, która idzie w parze z nowoczesnym stylem życia.
Inwestycja Nowa Strycharska | STR 6 znajduje się na Piastowie-Kuraku, ul. Strycharska 6 (3.4 km od centrum Łodzi), jest realizowana przez 4 BUILDING 1 Sp. z o.o.
Inwestycja obecnie jest w trakcie budowy z planowanym na 2 kw. 2026 roku terminem oddania do użytkowania.
Cały projekt składa się z 38 nowych mieszkań znajdujących się w 1 budynku. Budynek posiada 5 kondygnacji naziemnych wraz z parterem oraz 1 kondygnację podziemną.
Aktualnie w inwestycji Nowa Strycharska | STR 6 w sprzedaży są 33 nowe mieszkania o powierzchni od 28 do 87 metrów kwadratowych , w cenie od 9 700 zł za metr kwadratowy.
Dla przyszłych mieszkańców Nowa Strycharska | STR 6 deweloper przewidział:
- miejsca postojowe podziemne (32 miejsca) w cenie 50 000 zł
W inwestycji znajduje się 17 komórek lokatorskich nieobowiązkowy zakup 5000 zł/brutto za m2.
Lokalizacja inwestycji
Lokalizacja bliska centrum miasta
1) Dostęp do Komunikacji Miejskiej
Nowa Strycharska | STR 6 to miejsce, gdzie mobilność staje się wygodą. Znajdujemy się w bliskiej odległości od głównych linii komunikacji miejskiej, co sprawia, że podróżowanie po Łodzi staje się łatwe i efektywne. Bezproblemowy dostęp do transportu publicznego to klucz do swobody i wygody.
2) Bliskość Centrum Miasta
Zaledwie krok od pulsu miejskiego życia! Nowa Strycharska | STR 6 jest strategicznie położona w bliskiej odległości od centrum miasta. To idealne miejsce dla tych, którzy cenią szybki dostęp do kulturalnych wydarzeń, restauracji, i atrakcji, a jednocześnie pragną cieszyć się spokojem życia jakie daje Łódź Górna.
3) Lokalizacja w Sercu Miasta
Nasza inwestycja gwarantuje nie tylko łatwy dostęp do wszystkich udogodnień, ale także zapewnia spokój i bezpieczeństwo. Znajdujemy się w sercu miasta, tworząc idealne miejsce dla tych, którzy chcą być blisko wszystkiego, co ważne, nie rezygnując jednocześnie z prywatności i spokoju.
Dołącz do naszej społeczności, gdzie nowoczesność spotyka się z ekologią, a życie miejskie nabiera nowego, ekscytującego wymiaru. Nowa Strycharska | STR 6 – Twój nowy dom w samym sercu Łodzi!
Południowa część Łodzi rozciągnięta na powierzchni ok. 70 km. kw i zamieszkana jest przez 170 tys. osób. Dzielnica dzieli się na rejony Chojny-Dąbrowa, Chojny, Górniak, Piastów-Kurak, Rokicie, Ruda, Nad Nerem, Wiskitno. Główne ulice dzielnicy to u. Pabianicka, ul. Rzgowska i odchodząca od niej w kierunku wschodnim ul. Jarosława Dąbrowskiego. To dzielnica bogata w parki i ośrodki rekreacyjne, takie jak Stawy Jana, Młynek, Rudzka Góra czy Las Ruda Popioły. Na terenie dzielnicy znajdują się też zabytki takie, jak dwór Benedykta Górskiego, Muzeum Włókiennictwa, Willa Ferdynanda Koninga czy liczne parki. Dzielnica jest doskonale skomunikowana dzięki sieci komunikacji miejskiej ale też dworcowi PKP Łódź Chojny i położonego we wschodniej części dzielnicy portowi lotniczemu. Dzielnica ma dobry odstęp do punktów usługowych dzięki kilku hipermarketom, centrum handlowemu Guliwer i supermarketom budowlanym. Zabudowa mieszkalna to głównie bloki, przedwojenne kamienice i robotnicze domki jednorodzinne. Mieszczą się tu też cmentarze katolickie i ewangelicko-augsburski. Główne centrum handlowe to Guliwer z hipermarketem Carrefour.
Komunikacja
Jak wygląda komunikacja w okolicy inwestycji Nowa Strycharska | STR 6?
Na terenie dzielnicy znajduje się międzynarodowy Port Lotniczy im. Władysława Reymonta a także stacja PKP Łódź Chojny, z której odjeżdżają pociągi do największych polskich miast. Na terenie dzielnicy znajdują się też liczne przystanki autobusowe i tramwajowe.
Przyszli mieszkańcy inwestycji Nowa Strycharska | STR 6 mogą korzystać z rozbudowanej sieci połączeń komunikacyjnych. W odległości 200 metrów od inwestycji Nowa Strycharska | STR 6 znajduje się najbliższy punkt komunikacyjny - Paderewskiego - Tuszyńska.
Edukacja
Czy w pobliżu inwestycji Nowa Strycharska | STR 6 znajdują się szkoły/przedszkola?
Mieszkańcy mogą korzystać z bogatej oferty edukacyjnej. W najbliższej okolicy inwestycji Nowa Strycharska | STR 6 znajduje się 38 placówek edukacyjnych. Najbliżej położone to: Studium Języków Obcych ALMA w odległości 50 m, szkoła w odległości 100 m.
Opieka medyczna
Dużym atutem inwestycji Nowa Strycharska | STR 6 jest bliskość ośrodków zdrowotnych. Dostęp do opieki medycznej zapewnią położone w pobliżu: IKS-DENT w odległości 100 m.
Sklepy i usługi
Jak daleko jest do najbliższego sklepu?
Na infrastrukturę handlowo-usługową inwestycji Nowa Strycharska | STR 6 składa się wiele punktów. Nieopodal, w odległości 50 m znajduje się odido, w odległości 100 m znajduje się Netto.
Sport
Bliskość terenów rekreacyjnych oraz obiektów sportowych to mocna strona tej lokalizacji. W najbliższej okolicy inwestycji Nowa Strycharska | STR 6 w odległości 100 m znajduje się boisko / kort.
4 BUILDING 1 Sp. z o.o.
Strona internetowa inwestycjiAdres biura sprzedaży:
ul. Polskiej Organizacji Wojskowej 25 (klatka II), 90-248 ŁódźGodziny otwarcia biura sprzedaży:
- Poniedziałek: 10:00 - 18:00
- Wtorek: 08:00 - 16:00
- Środa: 08:00 - 16:00
- Czwartek: 08:00 - 16:00
- Piątek: 08:00 - 16:00
Oferty, które mogą Cię zainteresować
Polecane Lokalizacje
Inwestycje w pobliżu na Piastowie-Kuraku
- Pryncypalna 66 (47 ofert)
- Ogrody Geyera Apartamenty (334 oferty)
- Wólczańska 248 - etap II (81 ofert)
- Wólczańska 248 (3 oferty)
- Rejtana Park (4 oferty)
- Duo Park (16 ofert)
- Śląska Park (52 oferty)
- ART MODERN etap III - bud. H (35 ofert)
- Apartamenty Dębowa (80 ofert)
- Hi Tower (21 ofert)
- Fuzja Lofty (47 ofert)
- Fuzja Mieszkania Loftowe (46 ofert)





