Mieszkanie na sprzedaż 2 pokoje o powierzchni 42,4 m² - numer 2.4443 499 zł10 460 zł/m2Estymowana rata kredytu: 2 243 zł
Estymowana rata kredytu: 2 243 zł
Promocja
Inwestycja:
Nowa Strycharska | STR 6Deweloper:
4 BUILDING 1 Sp. z o.o.Łódź, Górna, Piastów-Kurak, ul. Strycharska 6
Łódź, Górna, Piastów-Kurak, ul. Strycharska 6
:format(jpg)/properties/planimagepage/image/1170371/1acd7f.png)
:format(jpg)/offers/offer/None/main_image/nowa-strycharska-str-6_f44ed7.jpg)
1 zdjęcie
Oddanie
2 kw. 2026
Ilość pokoi
2 pokoje
Metraż
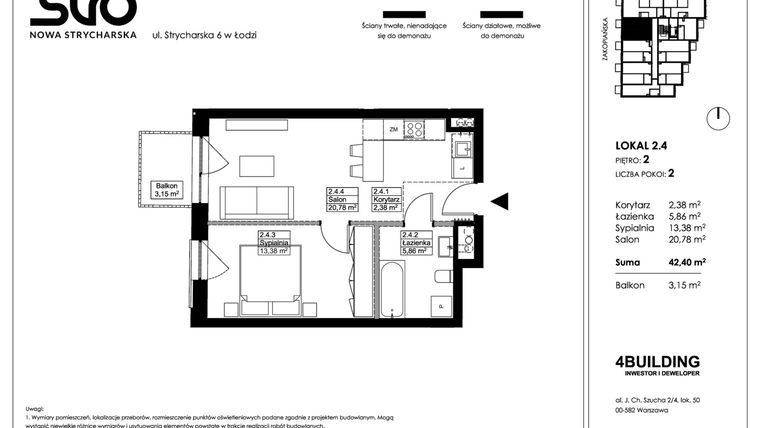
42,4 m²
Piętro
2 piętro
Strona świata
zachód
Dodatkowe
Balkon
Kuchnia
otwarta kuchnia
Wysokość
od 260 do 280 cm wysokości
Poziomy
1 poziom
Oznaczenie oferty
2.4

Raport o deweloperze
Poznaj dewelopera bliżej! Pobierz raport, w którym znajdziesz kluczowe informacje o firmie, jej doświadczeniu, nagrodach oraz aktualnych i zrealizowanych inwestycjach.
Budynek i otoczenie
Miejsca postojowe
- miejsca postojowe podziemne (32 miejsca): nieobowiązkowy zakup
Komórki lokatorskie
Standard wykończenia
standard deweloperski
Ogrzewanie
centralne
Realizacja inwestycji
Udogodnienia
Przyroda
Charakterystyka energetyczna nieruchomości
- Jednostkowa wielkość emisji CO2 (E CO2): ECO2= 0 t CO2/(m2 * rok)
- Wskaźnik rocznego zapotrzebowania na energię końcową (EK): EK= 0 kWh/(m2 * rok)
- Wskaźnik rocznego zapotrzebowania na nieodnawialną energię pierwotną (EP): EP= 0 kWh/(m2 * rok)
- Wskaźnik rocznego zapotrzebowania na energię użytkową (EU): EU= 0 kWh/(m2 * rok)
Rezerwacja i finanse
Rodzaj własności
Wysokość czynszu
Warunki rezerwacji
Zabezpieczenie środków
Postępy i zdjęcia z budowy
Zobacz na jakim etapie budowy jest ta inwestycja
Lokalizacja inwestycji
Stacja kolejowa - Łódź Chojny - 1165 m
Przystanek Tramwajowy - 162 m
Przystanek Autobusowy - 451 m
Dojazd do centrum: pokaż
W pobliżu 1 km od tej inwestycji znajdują się:
18 kawiarni i restauracji, 62 sklepy, 45 obiektów sportowych, 32 placówki medyczne, 38 placówek edukacyjnych, 40 placów zabaw
Przeczytaj więcej o lokalizacji
Lokalizacja bliska centrum miasta 1) Dostęp do Komunikacji Miejskiej Nowa Strycharska | STR 6 to miejsce, gdzie mobilność staje się wygodą. Znajdujemy się w bliskiej odległości od głównych linii komunikacji miejskiej, co sprawia, że podróżowanie po Łodzi staje się łatwe i efektywne. Bezproblemowy dostęp do transportu publicznego to klucz do swobody i wygody. 2) Bliskość Centrum Miasta Zaledwie krok od pulsu miejskiego życia! Nowa Strycharska | STR 6 jest strategicznie położona w bliskiej odległości od centrum miasta. To idealne miejsce dla tych, którzy cenią szybki dostęp do kulturalnych wydarzeń, restauracji, i atrakcji, a jednocześnie pragną cieszyć się spokojem życia jakie daje Łódź Górna. 3) Lokalizacja w Sercu Miasta Nasza inwestycja gwarantuje nie tylko łatwy dostęp do wszystkich udogodnień, ale także zapewnia spokój i bezpieczeństwo. Znajdujemy się w sercu miasta, tworząc idealne miejsce dla tych, którzy chcą być blisko wszystkiego, co ważne, nie rezygnując jednocześnie z prywatności i spokoju. Dołącz do naszej społeczności, gdzie nowoczesność spotyka się z ekologią, a życie miejskie nabiera nowego, ekscytującego wymiaru. Nowa Strycharska | STR 6 – Twój nowy dom w samym sercu Łodzi!
Południowa część Łodzi rozciągnięta na powierzchni ok. 70 km. kw i zamieszkana jest przez 170 tys. osób. Dzielnica dzieli się na rejony Chojny-Dąbrowa, Chojny, Górniak, Piastów-Kurak, Rokicie, Ruda, Nad Nerem, Wiskitno. Główne ulice dzielnicy to u. Pabianicka, ul. Rzgowska i odchodząca od niej w kierunku wschodnim ul. Jarosława Dąbrowskiego. To dzielnica bogata w parki i ośrodki rekreacyjne, takie jak Stawy Jana, Młynek, Rudzka Góra czy Las Ruda Popioły. Na terenie dzielnicy znajdują się też zabytki takie, jak dwór Benedykta Górskiego, Muzeum Włókiennictwa, Willa Ferdynanda Koninga czy liczne parki. Dzielnica jest doskonale skomunikowana dzięki sieci komunikacji miejskiej ale też dworcowi PKP Łódź Chojny i położonego we wschodniej części dzielnicy portowi lotniczemu. Dzielnica ma dobry odstęp do punktów usługowych dzięki kilku hipermarketom, centrum handlowemu Guliwer i supermarketom budowlanym. Zabudowa mieszkalna to głównie bloki, przedwojenne kamienice i robotnicze domki jednorodzinne. Mieszczą się tu też cmentarze katolickie i ewangelicko-augsburski. Główne centrum handlowe to Guliwer z hipermarketem Carrefour.
Opis oferty
Mieszkanie o powierzchni 42,40 m², położone na 2 piętrze budynku w inwestycji Nowa Strycharska | STR6
przy ul. Strycharskiej 6 w Łodzi Górnej. Lokal składa się z 2 pokoi i posiada balkon, który zapewnia dodatkową
przestrzeń na relaks. Stan deweloperski mieszkania daje możliwość dostosowania wnętrza do indywidualnych potrzeb.
Planowany termin zakończenia prac: 30.04.2026 roku.
Planowany termin przekazania kluczy: 30.06.2026 roku.
Budynek będzie ogrodzony, na terenie obiektu znajdziemy parking dla rowerów, zielone patio oraz stanowiska
do ładowania samochodów elektrycznych w wybranych miejscach postojowych przez Państwa.
Nowe 2-pokojowe mieszkanie na sprzedaż o powierzchni 42,4 m² znajduje się w nowo budowanej inwestycji deweloperskiej Nowa Strycharska | STR 6 na Piastowie-Kuraku, ul. Strycharska 6 (3.4 km od centrum Łodzi).
Inwestycja jest realizowana przez 4 BUILDING 1 Sp. z o.o.
Cała inwestycja składa się z 1 budynku, w którym łącznie znajduje się 38 nowych mieszkań.
Na sprzedaż pozostają 32 oferty o powierzchni od 28 do 87 m².
W budynku jest 5 kondygnacji naziemnych oraz 1 kondygnacja podziemna.
Inwestycja Nowa Strycharska | STR 6 jest w trakcie budowy z planowanym na 2 kw. 2026 roku terminem oddania do użytkowania.
Nowe mieszkanie o oznaczeniu 2.4 znajduje się na 2 piętrze i jest 1-poziomowe. Pomieszczenia mają od 260 do 280 centymetrów wysokości. W mieszkaniu znajdują się 2 pokoje.
Do mieszkania przewidziano możliwość zakupu komórki lokatorskiej, którą można zagospodarować na spiżarnię, warsztat czy składzik.
Okna w mieszkaniu wychodzą na zachód.
Zachodnia ekspozycja to gwarancja intensywnego popołudniowego światła, które nadaje wnętrzom przytulności i ciepła. Idealne dla miłośników słonecznych wieczorów, którzy pragną cieszyć się pięknymi zachodami słońca we własnym domu. Zachodnie światło podkreśla kolory i faktury w aranżacji wnętrz, tworząc atmosferę sprzyjającą relaksowi po długim dniu.
Dla przyszłych mieszkańców Nowa Strycharska | STR 6 deweloper przewidział miejsca postojowe podziemne.
Dzięki temu przyszli właściciele nie będą musieli poszukiwać wolnej przestrzeni parkingowej. Dodatkowo, miejsce postojowe w garażu podziemnym zabezpiecza przed niekorzystnymi warunkami atmosferycznymi.
Cena ofertowa mieszkania wynosi 443 499 zł (10 460 zł/m²).
Opis Inwestycji
Okazyjna cena
Tereny zielone
Pow. dodatkowe
Nowa Strycharska | STR 6 to miejsce, gdzie pozytywna energia mieszkańców naturalnie przeplata się z nowoczesną architekturą miejską. Znakiem rozpoznawczym budynków jest nowoczesna architektura o charakterystycznej geometrii elementów fasady – przestrzeń zaprojektowana w dobrym guście.
Inwestycja zlokalizowana jest przy ul. Strycharskiej 6 w Łodzi. To propozycja dla osób ceniących sobie dostęp do oferty handlowo-usługowej, a także dogodną komunikację z resztą miasta. W jednym 5-kondygnacyjnych budynku znajdą się łącznie 38 mieszkania i 3 lokale usługowe. Oferta obejmuje lokale 1-, 2-, 3-pokojowe o powierzchni od 27 m² do 67 m². Wybrane mieszkania posiadają indywidualne ogródki z widokiem na patio, dzięki którym ich właściciele zyskają dodatkową przestrzeń do odpoczynku i relaksu.
W trosce o komfort mieszkańców na parterze znajdą się lokale usługowe, zielone patio oraz elementy małej architektury. W inwestycji zaprojektowano również halę garażową, komórki lokatorskie, parkingi dla rowerów oraz miejsca ładowania samochodów elektrycznych.
Bądź Eko – Udogodnienia
1) Parking dla rowerów
Dla miłośników aktywnego trybu życia i ekologicznego transportu, Nowa Strycharska | STR 6 oferuje wygodną rowerownię. To doskonałe miejsce do przechowywania i konserwacji rowerów, zachęcając mieszkańców do korzystania z tego przyjaznego dla środowiska środka transportu.
2) Zielone Patio
Oaza zieleni w samym sercu inwestycji! Nasze zielone patio to miejsce, które wiosną będzie cieszyć zielenią, a jesienią pobudzi zmysły czerwienią i żółcią. To miejsce pozwoli cieszyć się naturą w otoczeniu miejskiego zgiełku.
3) Stanowiska do Ładowania Samochodów Elektrycznych
Nowoczesne podejście do mobilności! Dbamy o naszą planetę, dlatego zapewniamy mieszkańcom możliwość ładowania swoich samochodów elektrycznych na specjalnie przystosowanym stanowiskach, do których można zamontować indywidualne stacje ładowania. To inwestycja w przyszłość, która idzie w parze z nowoczesnym stylem życia.
Mieszkanie znajduje się w inwestycji Nowa Strycharska | STR 6, w której znajduje się w sprzedaży jeszcze 15 podobnych nowych mieszkań.
Kup to mieszkanie na kredyt
Symulacja miesięcznej raty kredytowej
Wkład własny
Większość banków wymaga wkładu własnego na poziomie 20% ceny nieruchomości
%
zł
Okres kredytowania
Rata miesięczna jest zależna od długości okresu kredytowania
Kalkulator wylicza orientacyjną ratę Twojego kredytu przy założeniu, że średnie oprocentowanie kredytu wraz z WIBOR i marżą banku wynosi 6.5% (oprocentowanie stałe w okresie 5 lat).
Twoja miesięczna rata kredytu
2 243 zł
Kalkulacja raty kredytowej została oparta o estymowaną cenę nieruchomości (443 499 zł) na podstawie ostatnich danych od dewelopera i naszych danych analitycznych
4 BUILDING 1 Sp. z o.o.
Strona internetowa inwestycjiAdres biura sprzedaży:
ul. Polskiej Organizacji Wojskowej 25 (klatka II), 90-248 ŁódźGodziny otwarcia biura sprzedaży:
- Poniedziałek: 10:00 - 18:00
- Wtorek: 08:00 - 16:00
- Środa: 08:00 - 16:00
- Czwartek: 08:00 - 16:00
- Piątek: 08:00 - 16:00





