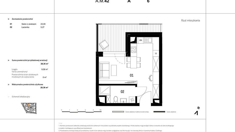
Mieszkanie na sprzedaż 1 pokój o powierzchni 29,34 m² numer A.M.42
Inwestycja:
VIDOKDeweloper:
Platforma Mieszkaniowa
Inwestycja:
VIDOKDeweloper:
Platforma MieszkaniowaKatowice, Śródmieście, ul. Kozielska
Katowice, Śródmieście, ul. Kozielska
Termin oddania
3 kw. 2027
Ilość pokoi
1 pokój
Metraż
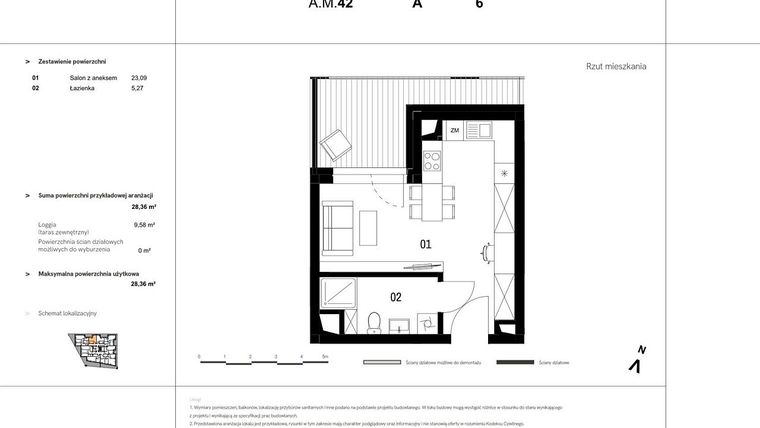
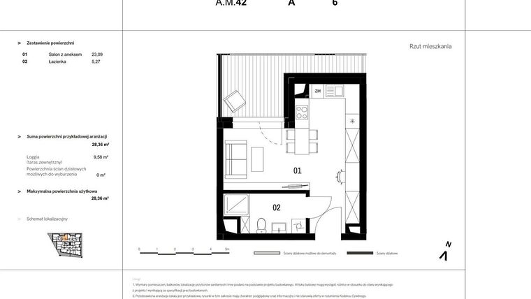
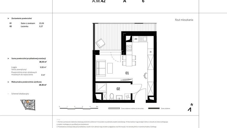
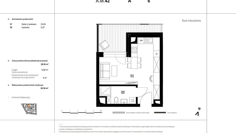
29,34 m²
Piętro
6 piętro
Powierzchnie dodatkowe
Loggia
Kuchnia
otwarta kuchnia
Wysokość pomieszczeń
od 260 do 280 cm wysokości
Ilość poziomów
1 poziom
Oznaczenie oferty
A.M.42

Raport o deweloperze
Poznaj dewelopera bliżej! Pobierz raport, w którym znajdziesz kluczowe informacje o firmie, jej doświadczeniu, nagrodach oraz aktualnych i zrealizowanych inwestycjach.
Budynek i otoczenie
Miejsca postojowe | |
|---|---|
Komórki lokatorskie | dostępne |
Standard wykończenia | standard deweloperski Ogrzewanie podłogowe |
Realizacja inwestycji | rozpoczęcie budowy w 1 kw. 2022 roku, planowane oddanie do użytkowania w 3 kw. 2027 roku |
Udogodnienia | monitoring, usługi w budynku, miejsce do ładowania samochodów elektrycznych |
Przyroda | informacja u dewelopera |
Charakterystyka energetyczna nieruchomości | informacja u dewelopera |
Rezerwacja i finanse
Rodzaj własności | Odrębna własność z własnością gruntu |
|---|---|
Wysokość czynszu | informacja u dewelopera |
Warunki rezerwacji | Informacja u dewelopera |
Zabezpieczenie środków | Informacja u dewelopera |
Zdjęcia z budowy
Zobacz na jakim etapie budowy jest ta inwestycja
Lokalizacja inwestycji
Stacja kolejowa - Katowice - 631 m
Przystanek Tramwajowy - 501 m
Przystanek Autobusowy - 253 m
Dojazd do centrum: pokaż
W pobliżu 1 km od tej inwestycji znajdują się:
163 kawiarnie i restauracje, 113 sklepów, 26 obiektów sportowych, 43 placówki medyczne, 50 placówek edukacyjnych, 11 placów zabaw
Przeczytaj więcej o lokalizacji
Katowice to miasto w województwie śląskim o powierzchni 164 km kw i liczbie mieszkańców ponad 300 tys. osób. Zabudowa miasta to głównie powojenne bloki i typowe dla Śląska zabytkowe kamienice. Katowice dzielą się na dzielnice pogrupowane w zespoły dzielnic: zespół północny, śródmiejski, południowy, wschodni i zachodni. Miasto jest wojewódzkim centrum medycznym, z kilkunastoma szpitalami, w tym Centralnym Szpitalem Klinicznym im. Kornela Gibińskiego, Szpitalem Klinicznym im. Andrzeja Mieleckiego, Uniwersyteckim Centrum Okulistyki i Onkologii, Szpitalem Klinicznym nr 6 czy Górnośląskim Centrum Zdrowia Dziecka. Działają tu też liczne uniwersytety, takie jak Akademia Wychowania Fizycznego im. Jerzego Kukuczki, Akademia Sztuk Pięknych czy wydziały Politechniki Śląskiej.
Opis oferty
Nowe 1-pokojowe mieszkanie na sprzedaż o powierzchni 29,34 m² znajduje się w nowo budowanej inwestycji deweloperskiej VIDOK w Śródmieście, ul. Kozielska (1.4 km od centrum Katowic).
Sprzedaż prowadzi Platforma Mieszkaniowa.
Cała inwestycja składa się z 2 budynków, w których łącznie znajduje się 151 nowych mieszkań.
Na sprzedaż pozostaje 129 ofert o powierzchni od 25 do 128 m².
W budynkach jest 10 kondygnacji naziemnych oraz 1 kondygnacja podziemna.
Inwestycja VIDOK jest w trakcie budowy z planowanym na 3 kw. 2027 roku terminem oddania do użytkowania.
Nowe mieszkanie o oznaczeniu A.M.42 znajduje się na 6 piętrze i jest 1-poziomowe. Pomieszczenia mają od 260 do 280 centymetrów wysokości. W mieszkaniu znajduje się 1 pokój.
Dla przyszłych mieszkańców VIDOK deweloper przewidział miejsca postojowe podziemne, miejsca postojowe naziemne.
Dzięki temu przyszli właściciele nie będą musieli poszukiwać wolnej przestrzeni parkingowej. Dodatkowo, miejsce postojowe w garażu podziemnym zabezpiecza przed niekorzystnymi warunkami atmosferycznymi.
Opis Inwestycji
Okazyjna cena
Tereny zielone
Pow. dodatkowe
Luksus w sercu miasta – Nowoczesna architektura, najwyższy standard wykończenia i prestiżowa lokalizacja w śródmieściu Katowic.
Bogata strefa premium – Siłownia, SPA, wellness, taras widokowy i restauracja w budynku – wszystko dla Twojej wygody.
Zrównoważone technologie – Stacje ładowania aut elektrycznych, energooszczędne rozwiązania i zielone tarasy.
Bezpieczeństwo i komfort – Monitoring, windy, podziemny parking oraz lokale usługowe dostępne na miejscu.
Mieszkanie znajduje się w inwestycji VIDOK, w której znajduje się w sprzedaży jeszcze 38 podobnych nowych mieszkań.





