Kozielska Park
Mieszkania na sprzedaż oferowane bezpośrednio przez Platforma Mieszkaniowa
Katowice, Śródmieście, ul. Kozielska 11
Katowice, Śródmieście, ul. Kozielska 11
:format(jpg)/offers/offer/15238/main_image/kozielska-park_b4758e.jpg)
:format(jpg)/offers/offer/15238/main_image/kozielska-park_b4758e.jpg)
1 zdjęcie
Termin oddania
2 kw. 2026
Powierzchnie
40 - 83/m2
Przedział pokoi
1 - 3
Kondygnacje
7
Budynki
1
Stand. wykończenia
Standard deweloperski
Mieszkania w inwestycji (40)
Sortuj
Stacja kolejowa - Katowice - 546 m
Przystanek Tramwajowy - 462 m
Przystanek Autobusowy - 215 m
Dojazd do centrum: pokaż
W pobliżu 1 km od tej inwestycji znajdują się:
187 kawiarni i restauracji, 123 sklepy, 24 obiekty sportowe, 46 placówek medycznych, 56 placówek edukacyjnych, 13 placów zabaw
Zdjęcia z budowy
Zobacz na jakim etapie budowy jest ta inwestycja
Udogodnienia Inwestycji
Standard i bezpieczeństwo
- teren ogrodzony
- winda
- Standard deweloperski
Rekreacja
- plac zabaw
Przyroda w okolicy
- 7 parków w okolicy
Szczegóły inwestycji
Realizacja inwestycji: | rozpoczęcie budowy w 2 kw. 2024 roku,
planowane oddanie do użytkowania w 2 kw. 2026 roku |
|---|---|
Liczba budynków: | cała inwestycja składa się z 1 budynku |
Liczba kondygnacji: | budynek posiada 7 kondygnacji naziemnych wraz z parterem oraz nie posiada kondygnacji podziemnych |
Liczba mieszkań: | cała inwestycja składa się z 67 lokali mieszkalnych |
Wysokość pomieszczeń: | w zależności od kondygnacji od 260 do 280 cm wysokości |
Standard wykończenia | standard deweloperski Ogrzewanie miejskie |
Rodzaj własności: | odrębna własność z własnością gruntu |
Powierzchnie dodatkowe: | balkon, taras |
Komórki lokatorskie: | nie przewidziano |
Miejsca postojowe: | w inwestycji przewidziano:
|
Przyroda: | informacja u dewelopera |
Aktualna oferta
Dostępne mieszkania: | aktualnie dostępnych jest 40 mieszkań |
|---|---|
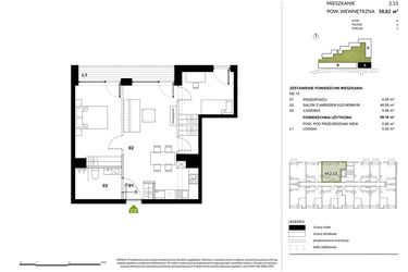
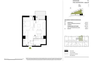
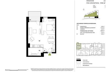
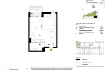
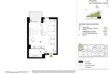
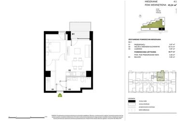
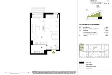
Powierzchnie mieszkań: | od 40 do 83 m² |
Liczba pokoi: | dostępne są mieszkania 1, 2, 3-pokojowe |
Opis płatności: | Informacja u dewelopera |
Warunki rezerwacji: | Informacja u dewelopera |
Zabezpieczenie środków klienta: | otwarty mieszkaniowy rachunek powierniczy i gwarancję bankową |
Wysokość czynszu: | informacja u dewelopera |
Opis inwestycji
Postaw na komfort i wygodę
Jeśli szukasz ekskluzywnego mieszkania w centrum, wysokiej klasy budownictwa i wyjątkowego designu, KOZIELSKA PARK jest właśnie dla Ciebie. Swoje miejsce na ziemi znajdą tutaj zarówno rodziny z dziećmi, jak i osoby, które postawiły na swój rozwój zawodowy w Katowicach i szukają mieszkania blisko pracy. Nasza inwestycja łączy w sobie komfort mieszkania w sercu miasta i spokój podmiejskiej zabudowy.
Szlachetny dizajn inspirowany architektoniczną tradycją Śląska
Ceglana elewacja nawiązująca do charakterystycznej dla Katowic tradycji architektonicznej to jedynie zapowiedź tego, co zobaczysz w środku. Dzięki nowoczesnej i wysmakowanej stylistyce inwestycja idealnie współgra z otoczeniem, zachowując jednocześnie indywidualność.
Dosłownie chwila dzieli Cię od ścisłego centrum wydarzeń
Bezsprzecznym walorem KOZIELSKA PARK jest lokalizacja. Trudno wyobrazić sobie, że można czerpać z tego co w wielkomiejskim życiu najlepsze, nie rezygnując z komfortu i prywatności.
Inwestycja Kozielska Park znajduje się w Śródmieście, ul. Kozielska 11 (1.3 km od centrum Katowic), sprzedaż prowadzi Platforma Mieszkaniowa.
Inwestycja obecnie jest w trakcie budowy z planowanym na 2 kw. 2026 roku terminem oddania do użytkowania.
Cały projekt składa się z 67 nowych mieszkań znajdujących się w 1 budynku. Budynek posiada 7 kondygnacji naziemnych wraz z parterem oraz nie posiada kondygnacji podziemnych.
Aktualnie w inwestycji Kozielska Park w sprzedaży jest 40 nowych mieszkań o powierzchni od 40 do 83 metrów kwadratowych , w cenie od 11 590 zł za metr kwadratowy.
Dla przyszłych mieszkańców Kozielska Park deweloper przewidział:
- miejsca postojowe podziemne
Lokalizacja inwestycji
Katowice to miasto w województwie śląskim o powierzchni 164 km kw i liczbie mieszkańców ponad 300 tys. osób. Zabudowa miasta to głównie powojenne bloki i typowe dla Śląska zabytkowe kamienice. Katowice dzielą się na dzielnice pogrupowane w zespoły dzielnic: zespół północny, śródmiejski, południowy, wschodni i zachodni. Miasto jest wojewódzkim centrum medycznym, z kilkunastoma szpitalami, w tym Centralnym Szpitalem Klinicznym im. Kornela Gibińskiego, Szpitalem Klinicznym im. Andrzeja Mieleckiego, Uniwersyteckim Centrum Okulistyki i Onkologii, Szpitalem Klinicznym nr 6 czy Górnośląskim Centrum Zdrowia Dziecka. Działają tu też liczne uniwersytety, takie jak Akademia Wychowania Fizycznego im. Jerzego Kukuczki, Akademia Sztuk Pięknych czy wydziały Politechniki Śląskiej.
Komunikacja
Jak wygląda komunikacja w okolicy inwestycji Kozielska Park?
W Katowicach działa stacja kolejowa Katowice Główne (jedna z największych w Polsce), na której zatrzymują się wszystkie pociągi dalekobieżne, a także kilka mniejszych stacji kolejowych. Lotnisko Katowice-Pyrzowice znajduje się w odległości ok. 10 km od granic dzielnicy. Przez miasto biegnie autostrada A4, trasa E20, która zaczyna się we Francji, trasa E462 Polska-Czechy i trasa E75 kończąca bieg w Grecji. Po mieście kursują tramwaje i autobusy.
Przyszli mieszkańcy inwestycji Kozielska Park mogą korzystać z rozbudowanej sieci połączeń komunikacyjnych. W odległości 200 metrów od inwestycji Kozielska Park znajduje się najbliższy punkt komunikacyjny - Katowice Mikołowska.
Edukacja
Czy w pobliżu inwestycji Kozielska Park znajdują się szkoły/przedszkola?
Mieszkańcy mogą korzystać z bogatej oferty edukacyjnej. W najbliższej okolicy inwestycji Kozielska Park znajduje się 56 placówek edukacyjnych. Najbliżej położone to: Akademia Wychowania Fizycznego w odległości 100 m, szkoła w odległości 200 m.
Opieka medyczna
Dużym atutem inwestycji Kozielska Park jest bliskość ośrodków zdrowotnych. Dostęp do opieki medycznej zapewnią położone w pobliżu: Regionalne Centrum Krwiodawstwa i Krwiolecznictwa w odległości 200 m.
Sklepy i usługi
Jak daleko jest do najbliższego sklepu?
Na infrastrukturę handlowo-usługową inwestycji Kozielska Park składa się wiele punktów. Nieopodal, w odległości 200 m znajduje się Delikatesy „pod 3”, w odległości 200 m znajduje się Piekarnia Cukiernia Wocławek.
Sport
Bliskość terenów rekreacyjnych oraz obiektów sportowych to mocna strona tej lokalizacji. W najbliższej okolicy inwestycji Kozielska Park w odległości 100 m znajduje się boisko / kort, w odległości 200 m znajduje się Laserhouse Katowice, w odległości 200 m znajduje się bieżnia / tor.
Oferty, które mogą Cię zainteresować
Polecane Lokalizacje
Inwestycje w pobliżu w Śródmieście
- VIDOK (128 ofert)
- O27 Apartamenty Opolska (322 oferty)
- Global Apartments (20 ofert)
- Barbary 19 (20 ofert)
- Mikato (111 ofert)
- Apartamenty Grundmanna (188 ofert)
- Rondo Ceglana etap II (54 oferty)
- Ceglana Park (171 ofert)
- Villa Widok (2 oferty)
- Belg Apartamenty etap II (175 ofert)
- Mieszkaj w Mieście - Załęska od Nowa (115 ofert)
- ATAL Olimpijska (292 oferty)





