SEAHall
Oferta archiwalna
Mieszkania na sprzedaż oferowane bezpośrednio przez Platforma Mieszkaniowa
Gdańsk, Wrzeszcz, al. gen. Józefa Hallera 169
Gdańsk, Wrzeszcz, al. gen. Józefa Hallera 169
Oferta archiwalna
Uwaga! Wizytówka niniejszej inwestycji jest nieaktywna. Informacje na jej temat pomagają nam jednak tworzyć wiarygodną bazę informacji na temat lokalnego rynku nieruchomości.
Mamy dla Ciebie 440 ofert w najbliższej okolicy!
Podobne oferty w najbliższej okolicy
Prezentacja oferty archiwalnej
SEAHall
Gdańsk, Wrzeszcz, al. gen. Józefa Hallera 169
Udogodnienia Inwestycji
Standard i bezpieczeństwo
- ochrona całodobowa
- monitoring
- recepcja
- usługi w budynku
- winda
- rowerownia
- wózkarnia
- Standard deweloperski
Instalacje i energetyka
- miejsce do ładowania samochodów elektrycznych
Przyroda w okolicy
- 4 parki w okolicy
- park
- morze
Szczegóły inwestycji
Realizacja inwestycji: | rozpoczęcie budowy w 2 kw. 2023 roku, inwestycja została oddana do użytkowania w 3 kw. 2025 roku |
|---|---|
Liczba budynków: | cała inwestycja składa się z 1 budynku |
Liczba kondygnacji: | budynek posiada 11 kondygnacji naziemnych wraz z parterem oraz 1 kondygnację podziemną |
Liczba mieszkań: | cała inwestycja składa się z 98 lokali mieszkalnych |
Wysokość pomieszczeń: | na wszystkich kondygnacjach po 265 cm wysokości |
Standard wykończenia | standard deweloperski Ogrzewanie miejskie |
Rodzaj własności: | informacja u dewelopera |
Powierzchnie dodatkowe: | nie przewidziano powierzchni dodatkowych |
Komórki lokatorskie: | posiada |
Miejsca postojowe: | w inwestycji przewidziano:
|
Przyroda: | w okolicy inwestycji znajduje się park, morze |
Opis inwestycji
SEAHall to nie tylko budynek - to bezpieczny port, w którym rozkwitnie niezmierzone bogactwo przyjemności.
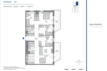
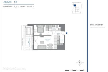
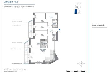
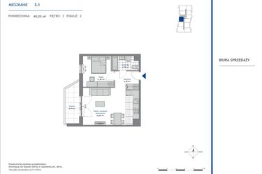
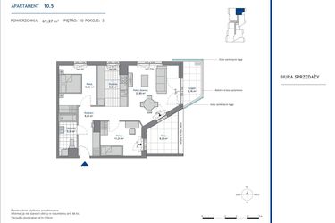
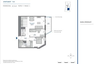
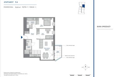
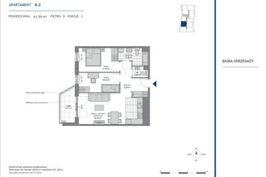
Ta dziesięciopiętrowa inwestycja, usytuowana przy al. Hallera 169, będzie oferować mieszkania i apartamenty o powierzchni od 42 do 130 m². Każde z nich będzie wyposażone w przestronne balkony, loggie z lumonami i tarasy nawet do 49 m². Ponadto, lokale usługowe na parterze budynku zapewnią komfort i staną się doskonałą przestrzenią do codziennych spotkań.
Projekt wnętrz, stworzony we współpracy z renomowaną pracownią SIKORA Wnętrza, został starannie przemyślany. Wysoka jakość materiałów i kolorystyka inspirowana plażą dopełnią nadmorski klimat tego miejsca.
Inwestycja SEAHall znajduje się we Wrzeszczu, al. gen. Józefa Hallera 169 (4.4 km od centrum Gdańska).
Inwestycja SEAHall znajduje się we Wrzeszczu, al. gen. Józefa Hallera 169 (4.4 km od centrum Gdańska), sprzedaż prowadzi Platforma Mieszkaniowa.
Inwestycja SEAHall została wybudowana i oddana do użytkowania w 3 kw. 2025 roku.
Cały projekt składa się z 98 nowych mieszkań znajdujących się w 1 budynku. Budynek posiada 11 kondygnacji naziemnych wraz z parterem oraz 1 kondygnację podziemną.
Aktualnie w inwestycji SEAHall nie ma nowych mieszkań w sprzedaży.
Dla przyszłych mieszkańców SEAHall deweloper przewidział:
- miejsca postojowe podziemne
- miejsca postojowe naziemne
W inwestycji znajdują się komórki lokatorskie.
Lokalizacja inwestycji
Gdańsk Wrzeszcz to jedna z najbardziej pożądanych dzielnic do życia i inwestycji w Trójmieście. Zlokalizowany zaledwie kilka kilometrów od historycznego centrum Gdańska, ten urokliwy obszar łączy w sobie bogatą historię, nowoczesność oraz wyjątkową atmosferę. Położony na północny-zachód od serca miasta, Gdańsk Wrzeszcz oferuje doskonałe połączenia komunikacyjne zarówno z centrum Gdańska, jak i z resztą Trójmiasta. Znajduje się tu główna stacja kolejowa Gdańsk Wrzeszcz, umożliwiająca szybkie i wygodne podróże zarówno lokalne(SKM), jak i dalekobieżne. Ponadto, łatwy dostęp do tras szybkiego ruchu sprawia, że podróżowanie samochodem jest wyjątkowo komfortowe. Na terenie Wrzeszcza odpocząć można w Parku Jaśkowej Doliny i Parku Akademickim.
SEAHall powstanie w miejscu wyjątkowym. Zaledwie 10 minut jazdy rowerem wystarczy, aby cieszyć się urokami piaszczystej plaży w Brzeźnie, spokojem zielonego Parku Reagana czy pięknem klimatycznych uliczek Wrzeszcza.
Windsurfing lub żeglowanie, jazda na rolkach wśród zieleni lub rowerowe wycieczki wzdłuż morskiego brzegu - lista możliwości zdaje się nie mieć końca, a tylko od Ciebie zależy, którą atrakcję wybierzesz.
Największe galerie handlowe Wrzeszcza to CH Manhattan i Galeria Bałtycka, w których łącznie znajduje się ponad 200 sklepów.
Gdańsk Wrzeszcz to dzielnica o powierzchni 10 km kw położona pomiędzy Trójmiejskim Parkiem Krajobrazowym, dzielnicą Aniołki, Zaspa i Letnica. Mieszka tu 50 tys. mieszkańców. Dzielnicę przecina droga wojewódzka E472, linia kolejowa przy której mieści się stacja Gdańsk Wrzeszcz, która jest ważnym węzłem komunikacyjnym miasta i biegnąca do niej równolegle Aleja Zwycięstwa. Na terenie Wrzeszcza odpocząć można w Parku Jaśkowej Doliny i Parku Akademickim. Największą uczelnią w okolicy jest Politechnika Gdańska a najciekawsze zabytki to Cerkiew Prawosławna pw. Św. Mikołaja, Browar we Wrzeszczu czy Westerplatte, oddalone od granic Wrzeszcza o ok. 100 metrów. Gdański Wrzeszcz ma dobry dostęp do rzeki Martwa Wisła (ok. 100 metrów) a także Morza Bałtyckiego (500 m.). Największe galerie handlowe Wrzeszcza to CH Manhattan i Galeria Bałtycka, w których łącznie znajduje się ponad 200 sklepów.
Komunikacja
Jak wygląda komunikacja w okolicy inwestycji SEAHall?
Przyszli mieszkańcy inwestycji SEAHall mogą korzystać z rozbudowanej sieci połączeń komunikacyjnych. W odległości 657 metrów od inwestycji SEAHall znajduje się najbliższy punkt komunikacyjny - Gdańsk Stadion Expo. W odległości do 200 m znajdują się przystanki tramwajowe oraz autobusowe, gwarantujące bezpośredni dojazd do Śródmieścia, Oliwy, Brzeźna oraz Centrum Wrzeszcza. Tuż przy inwestycji jest również ścieżka rowerowa, umożliwiająca sprawne przemieszczanie się po całym Trójmieście.
Edukacja
Czy w pobliżu inwestycji SEAHall znajdują się szkoły/przedszkola?
Mieszkańcy mogą korzystać z bogatej oferty edukacyjnej. W najbliższej okolicy inwestycji SEAHall znajduje się wiele placówek edukacyjnych. Najbliżej położone to: Szkoła Podstawowa nr 52 im. Tadeusza Kościuszki(220m), Żłobek Nr 9 Guliwer(500m) czy Liceum Ogólnokształcące nr XIX im. Mariana Mokwy(ok 1500m).
Opieka medyczna
Dużym atutem inwestycji SEAHall jest bliskość ośrodków zdrowotnych. Dostęp do opieki medycznej zapewnią położone w pobliżu: Przychodnia Mickiewicza w odległości 800 m, Pure Dental Clinic (750m) oraz Stomatologia Dziecięca i Rodzinna Wiewiór (3km).
Sklepy i usługi
Jak daleko jest do najbliższego sklepu?
Na infrastrukturę handlowo-usługową inwestycji SEAHall składa się wiele punktów. Nieopodal znajduje się Biedronka (ok. 100 m), Żabka (450 m), Lidl (600m).
Sport
Bliskość terenów rekreacyjnych oraz obiektów sportowych to mocna strona tej lokalizacji. W najbliższej okolicy inwestycji SEAHall znajduje się siłownia na świeżym powietrzu (100 m), Centrum tenisa (1300 m) oraz centrum sportowe (1700 m).
Polecane Lokalizacje
- Mieszkania na sprzedaż Aniołki (195 ofert)
- Mieszkania na sprzedaż Brętowo (132 oferty)
- Mieszkania na sprzedaż Brzeźno (105 ofert)
- Mieszkania na sprzedaż Chełm (117 ofert)
- Mieszkania na sprzedaż Jasień (412 ofert)
- Mieszkania na sprzedaż Kokoszki (64 oferty)
- Mieszkania na sprzedaż Krakowiec-Górki Zachodnie (60 ofert)
- Mieszkania na sprzedaż Letnica (29 ofert)
- Mieszkania na sprzedaż Młyniska (366 ofert)
- Mieszkania na sprzedaż Nowy Port (29 ofert)
- Mieszkania na sprzedaż Olszynka (58 ofert)
- Mieszkania na sprzedaż Orunia Górna - Gdańsk Południe (714 ofert)
- Mieszkania na sprzedaż Orunia-Św. Wojciech-Lipce (113 ofert)
- Mieszkania na sprzedaż Osowa (140 ofert)
- Mieszkania na sprzedaż Piecki-Migowo (492 oferty)
- Mieszkania na sprzedaż Przeróbka (70 ofert)
- Mieszkania na sprzedaż Przymorze Wielkie (179 ofert)
Inwestycje w pobliżu we Wrzeszczu
- Żywiecka Vita (115 ofert)
- Leszczyńskich 2 (61 ofert)
- Hallera 140 (10 ofert)
- Przystań Brzeźno (16 ofert)
- Przystań Brzeźno etap 1.2 (38 ofert)
- Kobieli 4 (13 ofert)
- Jesionowa Vita (43 oferty)
- Murapol Stoczniova (114 ofert)
- Bulvar Apartments - etap II (148 ofert)
- Remedium (26 ofert)
- Letnicka Residence (23 oferty)
- Bulvar Apartments - etap I (12 ofert)





