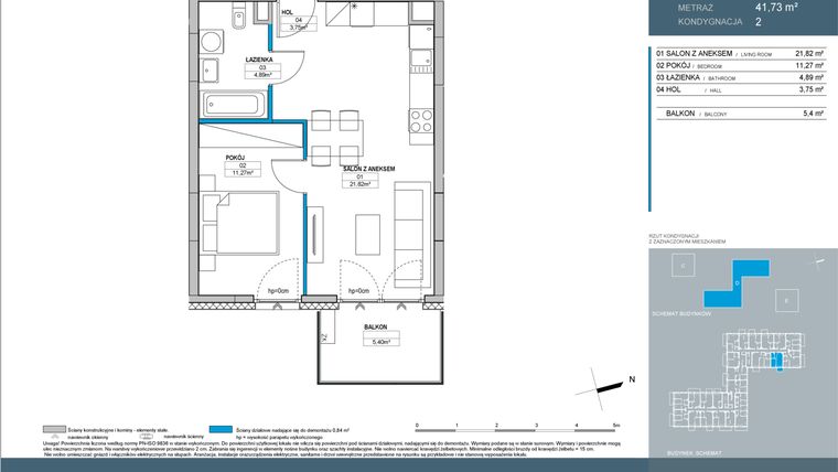
Mieszkanie na sprzedaż 2 pokoje o powierzchni 41,74 m² numer D2.2.10
Inwestycja:
Nordic Bemowo - etap IVDeweloper:
YIT Development Sp. z o.o.
Inwestycja:
Nordic Bemowo - etap IVDeweloper:
YIT Development Sp. z o.o.Warszawa, Bemowo, Chrzanów, ul. Orlińskiego
Warszawa, Bemowo, Chrzanów, ul. Orlińskiego
Termin oddania
4 kw. 2026
Ilość pokoi
2 pokoje
Metraż
41,74 m²
Piętro
1 piętro
Powierzchnie dodatkowe
Balkon
Kuchnia
otwarta kuchnia
Wysokość pomieszczeń
od 260 do 280 cm wysokości
Ilość poziomów
1 poziom
Oznaczenie oferty
D2.2.10

Raport o deweloperze
Poznaj dewelopera bliżej! Pobierz raport, w którym znajdziesz kluczowe informacje o firmie, jej doświadczeniu, nagrodach oraz aktualnych i zrealizowanych inwestycjach.
Budynek i otoczenie
Miejsca postojowe | |
|---|---|
Standard wykończenia | standard deweloperski |
Realizacja inwestycji | rozpoczęcie budowy w 2 kw. 2025 roku, planowane oddanie do użytkowania w 4 kw. 2026 roku |
Udogodnienia | winda |
Przyroda | informacja u dewelopera |
Charakterystyka energetyczna nieruchomości | informacja u dewelopera |
Rezerwacja i finanse
Rodzaj własności | Odrębna własność z własnością gruntu |
|---|---|
Wysokość czynszu | informacja u dewelopera |
Warunki rezerwacji | Informacja u dewelopera |
Zabezpieczenie środków | Informacja u dewelopera |
Zdjęcia z budowy
Zobacz na jakim etapie budowy jest ta inwestycja
Lokalizacja inwestycji
Metro - Bemowo - 1400 m
Przystanek Tramwajowy - 440 m
Przystanek Autobusowy - 115 m
Dojazd do centrum: pokaż
W pobliżu 1 km od tej inwestycji znajdują się:
33 kawiarnie i restauracje, 32 sklepy, 39 obiektów sportowych, 8 placówek medycznych, 35 placówek edukacyjnych, 55 placów zabaw
Przeczytaj więcej o lokalizacji
Rozciągająca się u zachodnich granic Warszawy dzielnica Bemowo to miejsce zamieszkania ok. 116 tys. ludzi. Zabudowa mieszkaniowa jest dość zróżnicowana. Do architektury z okresu międzywojennego należą: skupisko domów jednorodzinnych Boernerowo oraz fragment miasta-ogrodu Stare Jelonki. Wysokie bloki występują na osiedlach: Lazurowa, Jelonki, Górczewska czy Nowe Bemowo. Z kolei Groty, Górce i Chrzanów to tereny, na których obecnie rozwija się nowoczesne budownictwo. Charakterystycznymi miejscami Bemowa są obiekty wojskowe lub lotnicze: zabytkowe forty (Fort Radiowo, Fort Bema, Fort Blizne), Lotnisko Babice, Wojskowe Zakłady Lotnicze oraz Wojskowa Akademia Techniczna. Na lotnisku organizowane są widowiska i koncerty o charakterze masowym, zaś zieloną strefę dzielnicy stanowi Las Bemowski. Dogodny dojazd do centrum umożliwiają: dobrze rozwinięta sieć dróg, linie autobusowe i tramwajowe oraz II linia metra. Do najważniejszych arterii należą ulice: Połczyńska, Górczewska oraz Powstańców Śląskich.
Opis oferty
Nowe 2-pokojowe mieszkanie na sprzedaż o powierzchni 41,74 m² znajduje się w nowo budowanej inwestycji deweloperskiej Nordic Bemowo - etap IV na Chrzanowie, ul. Orlińskiego (8 km od centrum Warszawy).
Inwestycja jest realizowana przez YIT Development Sp. z o.o.
Cała inwestycja składa się z 3 budynków, w których łącznie znajdują się 132 nowe mieszkania.
Na sprzedaż pozostaje 39 ofert o powierzchni od 39 do 120 m².
W budynkach jest 5 kondygnacji naziemnych oraz 1 kondygnacja podziemna.
Inwestycja Nordic Bemowo - etap IV jest w trakcie budowy z planowanym na 4 kw. 2026 roku terminem oddania do użytkowania.
Nowe mieszkanie o oznaczeniu D2.2.10 znajduje się na 1 piętrze i jest 1-poziomowe. Pomieszczenia mają od 260 do 280 centymetrów wysokości. W mieszkaniu znajdują się 2 pokoje.
Dla przyszłych mieszkańców Nordic Bemowo - etap IV deweloper przewidział miejsca postojowe podziemne.
Dzięki temu przyszli właściciele nie będą musieli poszukiwać wolnej przestrzeni parkingowej. Dodatkowo, miejsce postojowe w garażu podziemnym zabezpiecza przed niekorzystnymi warunkami atmosferycznymi.
Opis Inwestycji
Pow. dodatkowe
Nordic Bemowo etap IV to inwestycja największego fińskiego dewelopera – YIT.
Jest to projekt niezwykle ambitny i dogłębnie przemyślany, oparty o stworzenie tętniącego życiem placu miejskiego pomiędzy drogą łączącą ulicę Lazurową z ulicą Coopera. Charakteryzuje go nordycka architektura, fińskie akcenty, liczne udogodnienia dla mieszkańców, bogata zieleń oraz mnóstwo detali, które tworzą spójną całość. Wszystko to sprawia, że Nordic Bemowo jest unikalnym projektem w tej okolicy.
Ogromnym atutem lokalizacji inwestycji Nordic Bemowo jest budowana stacja linii metra M2. Dzięki niej mieszkańcy naszego osiedla będą mogli sprawnie przemieszczać się po mieście nawet w godzinach szczytu.
Mieszkanie znajduje się w inwestycji Nordic Bemowo - etap IV, w której znajdują się w sprzedaży jeszcze 22 podobne nowe mieszkania.
YIT Development Sp. z o.o.
Strona internetowa inwestycjiAdres biura sprzedaży:
ul. Pory 53, 02-757 WarszawaGodziny otwarcia biura sprzedaży:
- Poniedziałek: 10:00 - 18:00
- Wtorek: 10:00 - 18:00
- Środa: 10:00 - 18:00
- Czwartek: 10:00 - 18:00
- Piątek: 10:00 - 18:00
- Sobota: 10:00 - 15:00





