Mieszkanie na sprzedaż 4 pokoje o powierzchni 101,53 m² numer 3.1.24
Oferta archiwalna
Inwestycja:
Włodarzewska 59Deweloper:
VINCI Immobilier Polska
Inwestycja:
Włodarzewska 59Deweloper:
VINCI Immobilier PolskaWarszawa, Ochota, Szczęśliwice, ul. Włodarzewska 59
Warszawa, Ochota, Szczęśliwice, ul. Włodarzewska 59
Nieruchomość została sprzedana
Zobacz pozostałe mieszkania w inwestycji Włodarzewska 59 lub inne propozycje na Szczęśliwicach
Najbliższe inwestycje
- Zlokalizowana na warszawskim Rakowie „Stilla” nawiązuje swą nazwą do szwedzkiego słowa symbolizującego ciszę i harmonię. Inwestycja ta to dwa starannie zaprojektowane budynki, cztero- i ośmiopiętrowy, oraz wewnętrzne patio. Przestrzeń wspólna została zaprojektowana w taki sposób, by sprzyjać integracji. Dziedziniec, z jednej strony osłonięty przez starodrzew, przemyślany jest w taki sposób, by
Stilla
od 16 273 zł/m²
gotowe
Warszawa, Włochy, Raków,
ul. Fajansowa 5
1-4 pokoje, Metraż 28-74 m2
- DOLCE VITA, CZYLI SŁODKIE ŻYCIE Osiedle Urbino to inwestycja, której nazwa nawiązuje do współczesnej myśli urbanistycznej. Wyróżnia ją nowoczesna architektura, intrygujący design, wszechobecna zieleń i wygodne części wspólne. Nieprzypadkowo na lokalizację naszego osiedla została wybrana dzielnica Włochy, jako jeden z najbardziej zielonych terenów Warszawy. To propozycja dla miłośników miejskiego
Osiedle Urbino etap 1.4
od 14 700 zł/m²
4 kwartał 2026
Warszawa, Włochy, Raków,
ul. Równoległa 16
1-3 pokoje, Metraż 34-69 m2
- Kup mieszkanie – my zajmiemy się wynajmem! Kup mieszkanie w Develii, a my zajmiemy się jego wynajmem! W promocji „Pół roku najmu za 1 zł” zapewniamy znalezienie pierwszego najemcy i pół roku obsługi najmu za jedyne 1 zł! Szczegóły oferty w biurze sprzedaży. Oferta W ramach inwestycji powstanie łącznie 417 mieszkań o przemyślanych i funkcjonalnych rozkładach: od kompaktowych kawalerek, po
Krakowska Vita
od 15 999 zł/m²
3 kwartał 2027
Warszawa, Włochy, Raków,
al. Krakowska 279
2-4 pokoje, Metraż 34-107 m2
Termin oddania
Gotowe
Ilość pokoi
4 pokoje
Metraż
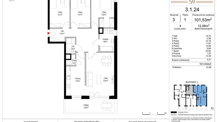
101,53 m²
Piętro
1 piętro
Powierzchnie dodatkowe
Loggia
Kuchnia
otwarta kuchnia
Wysokość pomieszczeń
300 cm wysokości
Ilość poziomów
1 poziom
Oznaczenie oferty
3.1.24

Raport o deweloperze
Poznaj dewelopera bliżej! Pobierz raport, w którym znajdziesz kluczowe informacje o firmie, jej doświadczeniu, nagrodach oraz aktualnych i zrealizowanych inwestycjach.
Budynek i otoczenie
Miejsca postojowe | |
|---|---|
Komórki lokatorskie | dostępne (59): powierzchnia: 2 - 6 m2;
cena: 6.000 zł/m2 |
Standard wykończenia | standard deweloperski Ogrzewanie własna kotłownia |
Realizacja inwestycji | rozpoczęcie budowy w 3 kw. 2022 roku, inwestycja została oddana do użytkowania w 3 kw. 2024 roku |
Udogodnienia | ochrona całodobowa, plac zabaw, monitoring, teren ogrodzony, usługi concierge, internet, klimatyzacja, przystosowane dla niepełnosprawnych, recepcja, TV kablowa, usługi w budynku, winda, rowerownia, videodomofon, własna kotłownia, patio / dziedziniec |
Przyroda | w okolicy inwestycji znajduje się park, jezioro |
Charakterystyka energetyczna nieruchomości |
|
Rezerwacja i finanse
Rodzaj własności | Odrębna własność z własnością gruntu |
|---|---|
Wysokość czynszu | informacja u dewelopera |
Warunki rezerwacji | Informacja u dewelopera |
Zabezpieczenie środków | Otwarty mieszkaniowy rachunek powierniczy |
Lokalizacja inwestycji
Stacja kolejowa - Warszawa Aleje Jerozolimskie WKD - 910 m
Przystanek Tramwajowy - 858 m
Przystanek Autobusowy - 125 m
Dojazd do centrum: pokaż
W pobliżu 1 km od tej inwestycji znajdują się:
41 kawiarni i restauracji, 45 sklepów, 32 obiekty sportowe, 6 placówek medycznych, 36 placówek edukacyjnych, 41 placów zabaw
Przeczytaj więcej o lokalizacji
Uchodząca za jedną spośród najbardziej atrakcyjnych dzielnic lewobrzeżnej części stolicy, Ochota, to niewielki i zarazem najgęściej zaludniony obszar miasta. Znaczną część dzielnicy zajmują strefy zieleni, zwłaszcza parki i skwery, wśród których warto wymienić Park im. Marszałka Piłsudskiego, Park Szczęśliwicki czy Park Wielkopolski. Enklawy zieleni stanowią przestrzeń zaadaptowaną do uprawiania sportu i rekreacji, toteż nie brakuje placów zabaw, ścieżek rowerowych, alei spacerowych czy boisk. Uroku nadaje okolicy niska, kameralna i często zabytkowa architektura. Na szczególną uwagę zasługują osiedla-ogrody: Staszica i Lubeckiego oraz przedwojenne kamienice. Na południowej Ochocie powstają nowe, harmonijnie wkomponowane w pejzaż, osiedla mieszkaniowe. Ośrodkiem o znacznym natężeniu miejskiego ruchu są Aleje Jerozolimskie (jedna z głównych arterii stolicy), a także ulice: Grójecka, Żwirki i Wigury. Na terenie dzielnicy znajdują się centra handlowe, teatry, muzea i uczelnie wyższe .
Opis oferty
Nowe 4-pokojowe mieszkanie na sprzedaż o powierzchni 101,53 m² znajduje się w nowo budowanej inwestycji deweloperskiej Włodarzewska 59 na Szczęśliwicach, ul. Włodarzewska 59 (5 km od centrum Warszawy).
Inwestycja jest realizowana przez VINCI Immobilier Polska.
Cała inwestycja składa się z 6 budynków, w których łącznie znajduje się 59 nowych mieszkań.
Inwestycja jest już wyprzedana.
W budynkach jest 5 kondygnacji naziemnych oraz 1 kondygnacja podziemna.
Inwestycja Włodarzewska 59 została wybudowana i oddana do użytkowania w 3 kw. 2024 roku.
Nowe mieszkanie o oznaczeniu 3.1.24 znajduje się na 1 piętrze i jest 1-poziomowe. Pomieszczenia mają 300 centymetrów wysokości. W mieszkaniu znajdują się 4 pokoje.
Do mieszkania przewidziano możliwość zakupu komórki lokatorskiej, którą można zagospodarować na spiżarnię, warsztat czy składzik.
Dla przyszłych mieszkańców Włodarzewska 59 deweloper przewidział miejsca postojowe podziemne.
Dzięki temu przyszli właściciele nie będą musieli poszukiwać wolnej przestrzeni parkingowej. Dodatkowo, miejsce postojowe w garażu podziemnym zabezpiecza przed niekorzystnymi warunkami atmosferycznymi.
Mieszkanie znajduje się w inwestycji Włodarzewska 59.





