Miasto Polskich Mistrzów Olimpijskich II
Mieszkania na sprzedaż oferowane bezpośrednio przez PROFBUD
piaseczyński, Mysiadło, ul. Olimpijska
piaseczyński, Mysiadło, ul. Olimpijska
:format(jpg)/offers/offer/19722/main_image/miasto-polskich-mistrzow-olimpijskich-ii_e665fc.jpg)
:format(jpg)/offers/offer/19722/main_image/miasto-polskich-mistrzow-olimpijskich-ii_e665fc.jpg)
1 zdjęcie
Termin oddania
1 kw. 2028
Powierzchnie
29 - 176/m2
Przedział pokoi
1 - 5
Kondygnacje
6
Budynki
1
Stand. wykończenia
Standard deweloperski
Mieszkania w inwestycji (213)
Sortuj
Stacja kolejowa - Warszawa Jeziorki - 1651 m
Przystanek Autobusowy - 400 m
Dojazd do centrum Warszawy: pokaż
W pobliżu 1 km od tej inwestycji znajdują się:
19 kawiarni i restauracji, 16 sklepów, 26 obiektów sportowych, 4 placówki medyczne, 22 placówki edukacyjne, 12 placów zabaw
Zdjęcia z budowy
Zobacz na jakim etapie budowy jest ta inwestycja
Udogodnienia Inwestycji
Standard i bezpieczeństwo
- ochrona całodobowa
- monitoring
- recepcja
- usługi w budynku
- rowerownia
- Standard deweloperski
Instalacje i energetyka
- miejsce do ładowania samochodów elektrycznych
Rekreacja
- własny akwen
- plac zabaw
- boisko
- korty tenisowe
- siłownia plenerowa
Przyroda w okolicy
- park
- las
- jezioro
Szczegóły inwestycji
Realizacja inwestycji: | rozpoczęcie budowy w 4 kw. 2025 roku,
planowane oddanie do użytkowania w 1 kw. 2028 roku |
|---|---|
Liczba budynków: | cała inwestycja składa się z 1 budynku |
Liczba kondygnacji: | budynek posiada 6 kondygnacji naziemnych wraz z parterem oraz 2 kondygnacje podziemne |
Liczba mieszkań: | cała inwestycja składa się z 278 lokali mieszkalnych |
Wysokość pomieszczeń: | w zależności od kondygnacji od 275 do 330 cm wysokości |
Standard wykończenia | standard deweloperski Ogrzewanie miejskie |
Rodzaj własności: | informacja u dewelopera |
Powierzchnie dodatkowe: | balkon, loggia, ogródek, taras |
Komórki lokatorskie: | posiada |
Miejsca postojowe: | w inwestycji przewidziano:
|
Przyroda: | w okolicy inwestycji znajduje się park, las, jezioro |
Aktualna oferta
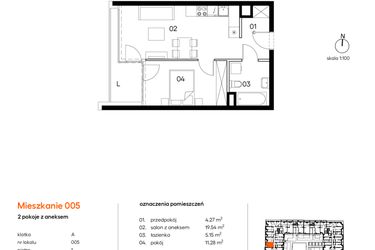
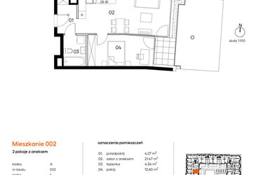
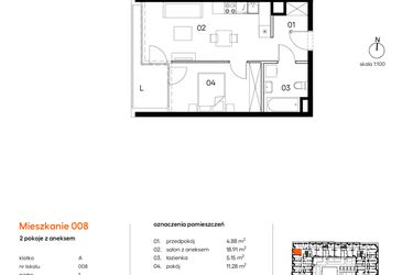
Dostępne mieszkania: | aktualnie dostępnych jest 213 mieszkań |
|---|---|
Powierzchnie mieszkań: | od 29 do 176 m² |
Liczba pokoi: | dostępne są mieszkania 1, 2, 3, 4, 5-pokojowe |
Opis płatności: | Informacja u dewelopera |
Warunki rezerwacji: | Informacja u dewelopera |
Zabezpieczenie środków klienta: | informacja u dewelopera |
Wysokość czynszu: | informacja u dewelopera |
Opis inwestycji
Witaj w Mieście Polskich Mistrzów Olimpijskich – miejscu, gdzie codzienność przenika duch sportu i pasja. To przestrzeń, która budzi ambicje, inspiruje do marzeń i motywuje do działania. Przyjaźń, szacunek, samodoskonalenie się tworzą tu unikalne miejsce do życia.
„Paryż” – to harmonia zieleni i elegancji, inspirowana magią Champs-Élysées. Spacerując zielonym deptakiem, poczujesz atmosferę paryskiej swobody, gdzie kawiarenki zapraszają na chwilę wytchnienia. Planowana Aleja Polskich Mistrzów Olimpijskich, biegnąca wzdłuż dzielnicy, dedykowana olimpijczykom, będzie hołdem dla sportowych poświęceń i sukcesów na światowej arenie.
Inwestycja Miasto Polskich Mistrzów Olimpijskich II znajduje się w Mysiadle, ul. Olimpijska (0.3 km od Warszawy), jest realizowana przez PROFBUD.
Inwestycja obecnie jest w trakcie budowy z planowanym na 1 kw. 2028 roku terminem oddania do użytkowania.
Cały projekt składa się z 278 nowych mieszkań znajdujących się w 1 budynku. Budynek posiada 6 kondygnacji naziemnych wraz z parterem oraz 2 kondygnacje podziemne.
Aktualnie w inwestycji Miasto Polskich Mistrzów Olimpijskich II w sprzedaży jest 213 nowych mieszkań o powierzchni od 29 do 176 metrów kwadratowych , w cenie od 12 500 zł za metr kwadratowy.
Dla przyszłych mieszkańców Miasto Polskich Mistrzów Olimpijskich II deweloper przewidział:
- miejsca postojowe podziemne
W inwestycji znajdują się komórki lokatorskie.
Lokalizacja inwestycji
Powiat piaseczyński znajduje się w środkowej części województwa mazowieckiego i należy do najbogatszych oraz najintensywniej rozwijających się powiatów w Polsce. W jego obrębie znajdują się miasta: Piaseczno, Konstancin-Jeziorna, Góra Kalwaria, Tarczyn oraz 223 wsie. Obszar o powierzchni 621 km2 przecinają liczne rzeki, m.in. Wisła, Jeziorka, Czarna, Utrata, a w ich dolinach występują łąki i torfowiska. Znaczne połacie terenu zajmują lasy, np. Chojnowskie, zaś pejzaż urozmaicają stawy, zalewy i wydmy. Warunki naturalne sprzyjają turystce i rekreacji, toteż w powiecie znajdują się liczne obiekty i kluby sportowe, tereny do jazdy konnej, kąpielisko Zalesie Górne oraz dobrze rozwinięta baza noclegowa i gastronomiczna. Dominuje niska zabudowa mieszkaniowa i usługowo-handlowa, a do obiektów zabytkowych należą m.in. Zamek w Czersku, wille i dwory. Ważne arterie to trasa E77 oraz drogi krajowe: nr 79 i nr 50. Do stolicy kursuje stąd 18 linii autobusowych warszawskiej komunikacji miejskiej.
Komunikacja
Jak wygląda komunikacja w okolicy inwestycji Miasto Polskich Mistrzów Olimpijskich II?
Powiat piaseczyński posiada dogodne połączenie ze stolicą dzięki 18 liniom autobusowym warszawskiej komunikacji miejskiej. W obrębie powiatu kursują również autobusy PKS, busy i pociągi, zaś do ważniejszych arterii należą: trasa europejska E77 oraz drogi krajowe: nr 50 (Tranzytowa Obwodnica Warszawy) i nr 79 (Warszawa – Kraków – Bytom).
Przyszli mieszkańcy inwestycji Miasto Polskich Mistrzów Olimpijskich II mogą korzystać z rozbudowanej sieci połączeń komunikacyjnych. W odległości 400 metrów od inwestycji Miasto Polskich Mistrzów Olimpijskich II znajduje się najbliższy punkt komunikacyjny - Dąbrówka 01.
Edukacja
Czy w pobliżu inwestycji Miasto Polskich Mistrzów Olimpijskich II znajdują się szkoły/przedszkola?
Mieszkańcy mogą korzystać z bogatej oferty edukacyjnej. W najbliższej okolicy inwestycji Miasto Polskich Mistrzów Olimpijskich II znajdują się 22 placówki edukacyjne. Najbliżej położone to: Gminne Przedszkole w Mysiadle w odległości 400 m.
Opieka medyczna
Dużym atutem inwestycji Miasto Polskich Mistrzów Olimpijskich II jest bliskość ośrodków zdrowotnych. Dostęp do opieki medycznej zapewnią położone w pobliżu: Centrum Medyczne "Puławska" w odległości 600 m.
Sklepy i usługi
Jak daleko jest do najbliższego sklepu?
Na infrastrukturę handlowo-usługową inwestycji Miasto Polskich Mistrzów Olimpijskich II składa się wiele punktów. Nieopodal, w odległości 500 m znajduje się Biedronka, w odległości 600 m znajduje się Źródła Smaku.
Sport
Bliskość terenów rekreacyjnych oraz obiektów sportowych to mocna strona tej lokalizacji. W najbliższej okolicy inwestycji Miasto Polskich Mistrzów Olimpijskich II w odległości 500 m znajduje się siłownia na świeżym powietrzu, w odległości 500 m znajduje się boisko / kort.
PROFBUD
Strona internetowa inwestycjiAdres biura sprzedaży:
ul. Olimpijska, MysiadłoGodziny otwarcia biura sprzedaży:
- Poniedziałek: 09:30 - 17:30
- Wtorek: 09:30 - 17:30
- Środa: 09:30 - 17:30
- Czwartek: 09:30 - 17:30
- Piątek: 09:30 - 17:30
- Sobota: 09:30 - 15:00
Oferty, które mogą Cię zainteresować
Artykuły powiązane:
:format(jpg)/articles/gallery/image/10115/6a9cf7.jpg)
Atrakcyjna przestrzeń wspólna
Motyw zadbanej i efektownej przestrzeni wspólnej zyskuje na znaczeniu. Osoby rozglądające się za idealnym mieszkaniem obok metrażu, rozkładu pokoi, piętra czy lokalizacji, w jakiej znajduje się inwestycja, coraz bardziej interesują się też jej bliskim otoczeniem. Ludzie chcą mieszkać w ciekawych...
12 lipca 2018
Profbud
Polecane Lokalizacje
Inwestycje w pobliżu w Mysiadle
- Miasto Polskich Mistrzów Olimpijskich (92 oferty)
- Jabłonova (78 ofert)
- Miasteczko Julianów (61 ofert)
- Zielone Zamienie IX (44 oferty)
- Zielone Zamienie X (92 oferty)
- Julianów Verde (23 oferty)
- Zespół willowy Zielona Polana - etap 6 (31 ofert)
- Apartamenty Pustułeczki (21 ofert)
- Apartamenty Pustułeczki (9 ofert)





