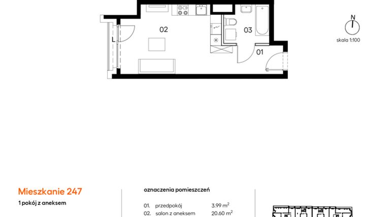
Mieszkanie na sprzedaż 1 pokój o powierzchni 29,37 m² numer A.G247
Inwestycja:
Miasto Polskich Mistrzów Olimpijskich IIDeweloper:
PROFBUD
Inwestycja:
Miasto Polskich Mistrzów Olimpijskich IIDeweloper:
PROFBUDpiaseczyński, Mysiadło, ul. Olimpijska
piaseczyński, Mysiadło, ul. Olimpijska
Termin oddania
1 kw. 2028
Ilość pokoi
1 pokój
Metraż
29,37 m²
Piętro
5 piętro
Powierzchnie dodatkowe
Loggia
Kuchnia
otwarta kuchnia
Wysokość pomieszczeń
275 cm wysokości
Ilość poziomów
1 poziom
Oznaczenie oferty
A.G247

Raport o deweloperze
Poznaj dewelopera bliżej! Pobierz raport, w którym znajdziesz kluczowe informacje o firmie, jej doświadczeniu, nagrodach oraz aktualnych i zrealizowanych inwestycjach.
Budynek i otoczenie
Miejsca postojowe | |
|---|---|
Komórki lokatorskie | dostępne |
Standard wykończenia | standard deweloperski Ogrzewanie miejskie |
Realizacja inwestycji | rozpoczęcie budowy w 4 kw. 2025 roku, planowane oddanie do użytkowania w 1 kw. 2028 roku |
Udogodnienia | własny akwen, ochrona całodobowa, plac zabaw, monitoring, boisko, korty tenisowe, recepcja, usługi w budynku, rowerownia, siłownia plenerowa, miejsce do ładowania samochodów elektrycznych |
Przyroda | w okolicy inwestycji znajduje się park, las, jezioro |
Charakterystyka energetyczna nieruchomości | informacja u dewelopera |
Rezerwacja i finanse
Rodzaj własności | informacja u dewelopera |
|---|---|
Wysokość czynszu | informacja u dewelopera |
Warunki rezerwacji | Informacja u dewelopera |
Zabezpieczenie środków | Informacja u dewelopera |

Zdjęcia z budowy i widok 3D
Zobacz na jakim etapie budowy jest ta inwestycja
Lokalizacja inwestycji
Stacja kolejowa - Warszawa Jeziorki - 1651 m
Przystanek Autobusowy - 400 m
Dojazd do centrum Warszawy: pokaż
W pobliżu 1 km od tej inwestycji znajdują się:
19 kawiarni i restauracji, 16 sklepów, 26 obiektów sportowych, 4 placówki medyczne, 22 placówki edukacyjne, 12 placów zabaw
Przeczytaj więcej o lokalizacji
Powiat piaseczyński znajduje się w środkowej części województwa mazowieckiego i należy do najbogatszych oraz najintensywniej rozwijających się powiatów w Polsce. W jego obrębie znajdują się miasta: Piaseczno, Konstancin-Jeziorna, Góra Kalwaria, Tarczyn oraz 223 wsie. Obszar o powierzchni 621 km2 przecinają liczne rzeki, m.in. Wisła, Jeziorka, Czarna, Utrata, a w ich dolinach występują łąki i torfowiska. Znaczne połacie terenu zajmują lasy, np. Chojnowskie, zaś pejzaż urozmaicają stawy, zalewy i wydmy. Warunki naturalne sprzyjają turystce i rekreacji, toteż w powiecie znajdują się liczne obiekty i kluby sportowe, tereny do jazdy konnej, kąpielisko Zalesie Górne oraz dobrze rozwinięta baza noclegowa i gastronomiczna. Dominuje niska zabudowa mieszkaniowa i usługowo-handlowa, a do obiektów zabytkowych należą m.in. Zamek w Czersku, wille i dwory. Ważne arterie to trasa E77 oraz drogi krajowe: nr 79 i nr 50. Do stolicy kursuje stąd 18 linii autobusowych warszawskiej komunikacji miejskiej.
Opis oferty
Nowe 1-pokojowe mieszkanie na sprzedaż o powierzchni 29,37 m² znajduje się w nowo budowanej inwestycji deweloperskiej Miasto Polskich Mistrzów Olimpijskich II w Mysiadle, ul. Olimpijska (0.3 km od Warszawy).
Inwestycja jest realizowana przez PROFBUD.
Cała inwestycja składa się z 1 budynku, w którym łącznie znajduje się 278 nowych mieszkań.
Na sprzedaż pozostają 233 oferty o powierzchni od 29 do 169 m².
W budynku jest 6 kondygnacji naziemnych oraz 2 kondygnacje podziemne.
Inwestycja Miasto Polskich Mistrzów Olimpijskich II jest w trakcie budowy z planowanym na 1 kw. 2028 roku terminem oddania do użytkowania.
Nowe mieszkanie o oznaczeniu A.G247 znajduje się na 5 piętrze i jest 1-poziomowe. Pomieszczenia mają 275 centymetrów wysokości. W mieszkaniu znajduje się 1 pokój.
Dla przyszłych mieszkańców Miasto Polskich Mistrzów Olimpijskich II deweloper przewidział miejsca postojowe podziemne.
Dzięki temu przyszli właściciele nie będą musieli poszukiwać wolnej przestrzeni parkingowej. Dodatkowo, miejsce postojowe w garażu podziemnym zabezpiecza przed niekorzystnymi warunkami atmosferycznymi.
Opis Inwestycji
Pow. dodatkowe
Witaj w Mieście Polskich Mistrzów Olimpijskich – miejscu, gdzie codzienność przenika duch sportu i pasja. To przestrzeń, która budzi ambicje, inspiruje do marzeń i motywuje do działania. Przyjaźń, szacunek, samodoskonalenie się tworzą tu unikalne miejsce do życia.
„Paryż” – to harmonia zieleni i elegancji, inspirowana magią Champs-Élysées. Spacerując zielonym deptakiem, poczujesz atmosferę paryskiej swobody, gdzie kawiarenki zapraszają na chwilę wytchnienia. Planowana Aleja Polskich Mistrzów Olimpijskich, biegnąca wzdłuż dzielnicy, dedykowana olimpijczykom, będzie hołdem dla sportowych poświęceń i sukcesów na światowej arenie.
Mieszkanie znajduje się w inwestycji Miasto Polskich Mistrzów Olimpijskich II, w której znajduje się w sprzedaży jeszcze 7 podobnych nowych mieszkań.
PROFBUD
Strona internetowa inwestycjiAdres biura sprzedaży:
ul. Olimpijska, MysiadłoGodziny otwarcia biura sprzedaży:
- Poniedziałek: 09:30 - 17:30
- Wtorek: 09:30 - 17:30
- Środa: 09:30 - 17:30
- Czwartek: 09:30 - 17:30
- Piątek: 09:30 - 17:30
- Sobota: 09:30 - 15:00
Artykuły powiązane:
:format(jpg)/articles/gallery/image/10115/6a9cf7.jpg)
Atrakcyjna przestrzeń wspólna
Motyw zadbanej i efektownej przestrzeni wspólnej zyskuje na znaczeniu. Osoby rozglądające się za idealnym mieszkaniem obok metrażu, rozkładu pokoi, piętra czy lokalizacji, w jakiej znajduje się inwestycja, coraz bardziej interesują się też jej bliskim otoczeniem. Ludzie chcą mieszkać w ciekawych...
12 lipca 2018
Profbud





