Mieszkanie na sprzedaż 3 pokoje o powierzchni 51,56 m² numer K1.13
Inwestycja:
Korkowa 146Deweloper:
POLARIS DEVELOPMENT
Inwestycja:
Korkowa 146Deweloper:
POLARIS DEVELOPMENTWarszawa, Wawer, Marysin Wawerski, ul. Korkowa 146
Warszawa, Wawer, Marysin Wawerski, ul. Korkowa 146
Termin oddania
4 kw. 2027
Ilość pokoi
3 pokoje
Metraż
51,56 m²
Piętro
2 piętro
Wysokość pomieszczeń
od 260 do 280 cm wysokości
Ilość poziomów
1 poziom
Oznaczenie oferty
K1.13

Raport o deweloperze
Poznaj dewelopera bliżej! Pobierz raport, w którym znajdziesz kluczowe informacje o firmie, jej doświadczeniu, nagrodach oraz aktualnych i zrealizowanych inwestycjach.
Budynek i otoczenie
Miejsca postojowe | |
|---|---|
Komórki lokatorskie | dostępne: 9720 zł/m2 |
Standard wykończenia | standard deweloperski Ogrzewanie miejskie |
Realizacja inwestycji | rozpoczęcie budowy w 1 kw. 2026 roku, planowane oddanie do użytkowania w 4 kw. 2027 roku |
Udogodnienia | monitoring, teren ogrodzony, usługi w budynku, winda, rowerownia, wózkarnia, instalacja fotowoltaiczna |
Przyroda | w okolicy inwestycji znajduje się park, las, rezerwat przyrody |
Charakterystyka energetyczna nieruchomości | informacja u dewelopera |
Rezerwacja i finanse
Rodzaj własności | Odrębna własność z własnością gruntu |
|---|---|
Wysokość czynszu | informacja u dewelopera |
Warunki rezerwacji | Informacja u dewelopera |
Zabezpieczenie środków | Otwarty mieszkaniowy rachunek powierniczy i gwarancję bankową |
Zdjęcia z budowy
Zobacz na jakim etapie budowy jest ta inwestycja
Lokalizacja inwestycji
Stacja kolejowa - Warszawa Gocławek 02 - 1495 m
Przystanek Tramwajowy - 2584 m
Przystanek Autobusowy - 40 m
Dojazd do centrum: pokaż
W pobliżu 1 km od tej inwestycji znajdują się:
4 kawiarnie i restauracje, 7 sklepów, 21 obiektów sportowych, 2 placówki medyczne, 9 placówek edukacyjnych, 14 placów zabaw
Przeczytaj więcej o lokalizacji
Wawer to dzielnica w południowo-wschodniej części Warszawy wyróżniająca się największym obszarem terytorialnym – ok. 80 km2. Jednocześnie jest to jeden z tych rejonów miasta, w których znajduje się najwięcej zielonej przestrzeni. Rozległe obszary naturalnego krajobrazu, na które składają się: Mazowiecki Park Krajobrazowy, Rezerwat im. Króla Jana III Sobieskiego oraz Zakole Wawerskie, a także dominacja niskiej, przeważnie willowej zabudowy, to czynniki decydujące o niewielkiej gęstości zaludnienia. Wawer jest spokojnym, malowniczym miejscem, w którym można odpocząć od miejskiego gwaru lub spędzić czas na świeżym powietrzu, rozkoszując się pięknem przyrody. Na terenie Wawra znajduje się aż 7 stacji kolejowych, toteż pociągi Szybkiej Kolei Miejskiej stanowią najwygodniejszy środek transportu do centrum miasta. Ważnymi arteriami są m.in.: Most Siekierkowski, Wał Miedzeszyński, ul. Płowiecka.
Opis oferty
Korkowa 146 to nowoczesny projekt mieszkaniowy w sercu warszawskiej dzielnicy Wawer. Powstał z myślą o osobach, które szukają balansu pomiędzy naturą a miastem. Z jednej strony bezpośrednie sąsiedztwo lasu, z drugiej sprawna komunikacja z centrum Warszawy.
Kameralna zabudowa
W budynku znajdą się zaledwie 64 mieszkania oraz 4 lokale usługowe. Niewielka skala zabudowy pozwala cieszyć się intymnością, kameralną atmosferą i codziennym spokojem, bez zgiełku typowego dla dużych osiedli.
Funkcjonalne i bezpieczne otoczenie
Na mieszkańców czekają udogodnienia zwiększające wygodę codziennego życia: 68 miejsc postojowych, komórki lokatorskie, udogodnienia dla osób z niepełnosprawnościami, monitoring oraz szlaban zapewniający kontrolę dostępu. Każde mieszkanie posiada również balkon lub ogródek, które stanowią dodatkową przestrzeń do codziennego użytkowania.
Korkowa 146 powstaje jako miejsce, w którym mieszkańcy mogą czuć się swobodnie i bezpiecznie.
Monitoring, kontrolowany dostęp oraz starannie zaprojektowane części wspólne sprzyjają codziennemu poczuciu spokoju.
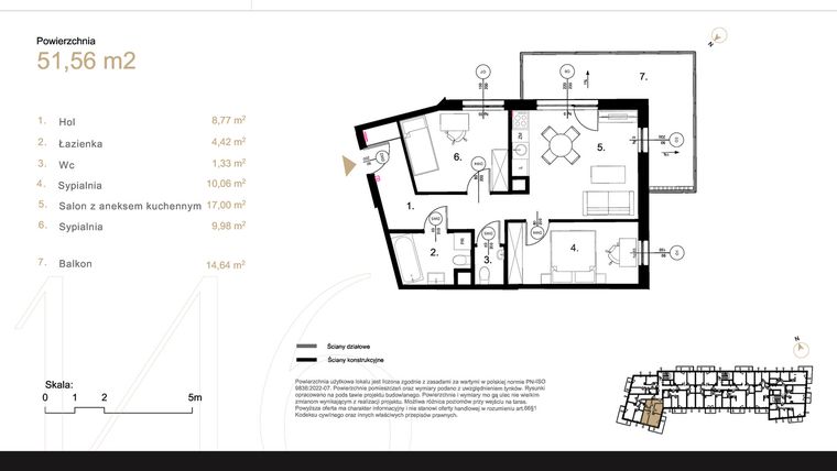
Nowe 3-pokojowe mieszkanie na sprzedaż o powierzchni 51,56 m² znajduje się w nowo budowanej inwestycji deweloperskiej Korkowa 146 na Marysinie Wawerskim, ul. Korkowa 146 (10 km od centrum Warszawy).
Inwestycja jest realizowana przez POLARIS DEVELOPMENT.
Cała inwestycja składa się z 1 budynku, w którym łącznie znajdują się 64 nowe mieszkania.
Na sprzedaż pozostaje 51 ofert o powierzchni od 46 do 76 m².
W budynku jest 5 kondygnacji naziemnych oraz 1 kondygnacja podziemna.
Inwestycja Korkowa 146 jest w trakcie budowy z planowanym na 4 kw. 2027 roku terminem oddania do użytkowania.
Nowe mieszkanie o oznaczeniu K1.13 znajduje się na 2 piętrze i jest 1-poziomowe. Pomieszczenia mają od 260 do 280 centymetrów wysokości. W mieszkaniu znajdują się 3 pokoje.
Dla przyszłych mieszkańców Korkowa 146 deweloper przewidział miejsca postojowe podziemne, miejsca postojowe naziemne.
Dzięki temu przyszli właściciele nie będą musieli poszukiwać wolnej przestrzeni parkingowej. Dodatkowo, miejsce postojowe w garażu podziemnym zabezpiecza przed niekorzystnymi warunkami atmosferycznymi.
Opis Inwestycji
Kameralna zabudowa
W budynku znajdą się zaledwie 64 mieszkania oraz 4 lokale usługowe. Niewielka skala zabudowy pozwala cieszyć się intymnością, kameralną atmosferą i codziennym spokojem, bez zgiełku typowego dla dużych osiedli.
Funkcjonalne i bezpieczne otoczenie
Na mieszkańców czekają udogodnienia zwiększające wygodę codziennego życia: 68 miejsc postojowych, komórki lokatorskie, udogodnienia dla osób z niepełnosprawnościami, monitoring oraz szlaban zapewniający kontrolę dostępu. Każde mieszkanie posiada również balkon lub ogródek, które stanowią dodatkową przestrzeń do codziennego użytkowania.
Korkowa 146 powstaje jako miejsce, w którym mieszkańcy mogą czuć się swobodnie i bezpiecznie.
Monitoring, kontrolowany dostęp oraz starannie zaprojektowane części wspólne sprzyjają codziennemu poczuciu spokoju
Mieszkanie znajduje się w inwestycji Korkowa 146, w której znajduje się w sprzedaży jeszcze 45 podobnych nowych mieszkań.
POLARIS DEVELOPMENT
Strona internetowa inwestycjiAdres biura sprzedaży:
ul. Korkowa 146, 04-549 WarszawaGodziny otwarcia biura sprzedaży:
- Poniedziałek: 10:00 - 18:00
- Wtorek: 10:00 - 18:00
- Środa: 10:00 - 18:00
- Czwartek: 10:00 - 18:00
- Piątek: 10:00 - 18:00
- Sobota: 10:00 - 14:00





