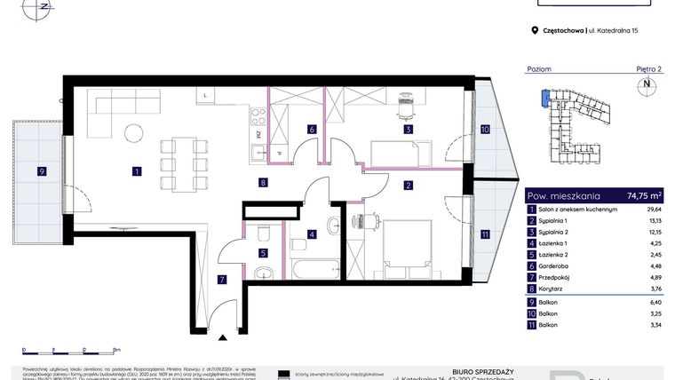
Mieszkanie na sprzedaż 3 pokoje o powierzchni 74,75 m² numer 15/52
Inwestycja:
Osiedle NeonoweDeweloper:
Pekabex Development Sp. z o.o.
Inwestycja:
Osiedle NeonoweDeweloper:
Pekabex Development Sp. z o.o.Częstochowa, ul. Katedralna 16
Częstochowa, ul. Katedralna 16
Termin oddania
Gotowe
Ilość pokoi
3 pokoje
Metraż
74,75 m²
Piętro
2 piętro
Powierzchnie dodatkowe
Balkon
Kuchnia
otwarta kuchnia
Wysokość pomieszczeń
od 260 do 280 cm wysokości
Ilość poziomów
1 poziom
Oznaczenie oferty
15/52

Raport o deweloperze
Poznaj dewelopera bliżej! Pobierz raport, w którym znajdziesz kluczowe informacje o firmie, jej doświadczeniu, nagrodach oraz aktualnych i zrealizowanych inwestycjach.
Budynek i otoczenie
Miejsca postojowe | |
|---|---|
Komórki lokatorskie | dostępne (32): komórki lokatorskie i boksy; powierzchnia: 1,8 - 4,0 m2 |
Standard wykończenia | standard deweloperski, wykończenie pod klucz |
Realizacja inwestycji | rozpoczęcie budowy w 4 kw. 2022 roku, inwestycja została oddana do użytkowania w 3 kw. 2024 roku |
Udogodnienia | plac zabaw, teren ogrodzony, internet, przystosowane dla niepełnosprawnych, usługi w budynku, winda, patio / dziedziniec |
Przyroda | w okolicy inwestycji znajduje się park |
Charakterystyka energetyczna nieruchomości |
|
Rezerwacja i finanse
Rodzaj własności | Odrębna własność z własnością gruntu |
|---|---|
Wysokość czynszu | informacja u dewelopera |
Warunki rezerwacji | informacja u dewelopera |
Zabezpieczenie środków | Informacja u dewelopera |
Zdjęcia z budowy
Zobacz na jakim etapie budowy jest ta inwestycja
Lokalizacja inwestycji
Stacja kolejowa - Częstochowa - 278 m
Przystanek Tramwajowy - 384 m
Przystanek Autobusowy - 48 m
Dojazd do centrum: pokaż
W pobliżu 1 km od tej inwestycji znajdują się:
100 kawiarni i restauracji, 75 sklepów, 14 obiektów sportowych, 21 placówek medycznych, 31 placówek edukacyjnych, 15 placów zabaw
Przeczytaj więcej o lokalizacji
Osiedle Neonowe zlokalizowane jest przy ulicy Katedralnej, w samym sercu Starego Miasta w Częstochowie. Ta położona na lewym brzegu rzeki Warty dzielnica miasta, jest miejscem, w którym przeszłość spotyka się z przyszłością. Z jednej strony można tu podziwiać unikatowy, średniowieczny układ urbanistyczny, z drugiej – żyć nowocześnie, mając pod ręką wszystkie udogodnienia oferowane przez miasto, takie jak sklepy, urzędy, placówki edukacyjne oraz służby zdrowia, kawiarenki i restauracje. A kiedy przyjdzie nam ochota obcować ze sztuką, zaspokoimy tę potrzebę, odwiedzając pobliską galerię sztuki lub Filharmonię albo po prostu pójdziemy z przyjaciółmi do kina.
Częstochowa to miasto leżące na Wyżynie Krakowsko-Częstochowskiej, w woj. śląskim. Przez miasto przepływa Warta. Częstochowa słynie z Sanktuarium Jasnogórskiego, do którego rokrocznie pielgrzymuje ok. 5 mln osób, ale warto zwrócić uwagę na jej pozostałe atuty. Jako centrum Częstochowskiego Okręgu Przemysłowego cieszy się wysokim stopniem rozwoju gospodarczego. Regularny układ miejski z centralnie zlokalizowanym Śródmieściem, od południa i północy otoczonym skupiskami zabudowy mieszkalnej, zapewnia ład przestrzenny. Wiele jest tu terenów zielonych, a do popularniejszych należy Promenada Czesława Niemena i Park Leśnych Aniołów. Miasto posiada rozbudowaną infrastrukturę społeczną, na którą składa się m.in. ponad 100 szkół różnego szczebla, w tym kilka szkół wyższych, a także rozwinięte zaplecze sportowe i kulturalne. Częstochowa leży na węźle komunikacyjnym składającym się z trzech dróg krajowych, trasy europejskiej i pięciu dróg wojewódzkich. Kursują tu pociągi PKP, autobusy PKS i komunikacja miejska oraz podmiejska.
Opis oferty
Mieszkanie 8%
Nowe 3-pokojowe mieszkanie na sprzedaż o powierzchni 74,75 m² znajduje się w nowo budowanej inwestycji deweloperskiej Osiedle Neonowe w Częstochowie, ul. Katedralna 16 (0.3 km od centrum Częstochowy).
Inwestycja jest realizowana przez Pekabex Development Sp. z o.o.
Cała inwestycja składa się z 1 budynku, w którym łącznie znajduje się 77 nowych mieszkań.
Na sprzedaż pozostają 24 oferty o powierzchni od 38 do 98 m².
W budynku jest 6 kondygnacji naziemnych oraz 1 kondygnacja podziemna.
Inwestycja Osiedle Neonowe została wybudowana i oddana do użytkowania w 3 kw. 2024 roku.
Nowe mieszkanie o oznaczeniu 15/52 znajduje się na 2 piętrze i jest 1-poziomowe. Pomieszczenia mają od 260 do 280 centymetrów wysokości. W mieszkaniu znajdują się 3 pokoje.
Do mieszkania przewidziano możliwość zakupu komórki lokatorskiej, którą można zagospodarować na spiżarnię, warsztat czy składzik.
Dla przyszłych mieszkańców Osiedle Neonowe deweloper przewidział miejsca postojowe podziemne.
Dzięki temu przyszli właściciele nie będą musieli poszukiwać wolnej przestrzeni parkingowej. Dodatkowo, miejsce postojowe w garażu podziemnym zabezpiecza przed niekorzystnymi warunkami atmosferycznymi.
Opis Inwestycji
Tereny zielone
Pow. dodatkowe
Osiedle Neonowe to najnowocześniejsza inwestycja mieszkaniowa w Częstochowie, która powstała z myślą o osobach ceniących sobie jakość i komfort życia.
Modernistyczna bryła budynku wyróżnia się na tle okolicznej zabudowy i nadaje nową jakość ul. Katedralnej. Unikatowa architektura, stylowe wykończenie części wspólnych oraz udogodnienia na terenie inwestycji sprawiają, że jest to idealne miejsce do życia, ale i też stanowi doskonałą lokatę kapitału.
Z myślą o jak największym komforcie mieszkańców, budynek został zaprojektowany w kształcie litery C, dzięki czemu wydzielone zostało wewnętrzne patio. Zieleń połączona z miejscem do odpoczynku oraz bezpieczny plac zabaw wraz ze ścieżką sensoryczną tworzą miejsce relaksu i spotkań dla mieszkańców.
W starannie zaprojekowanym obiekcie znajdują się mieszkania i apartamenty o zróżnicowanej strukturze od 1 do 4 pokoi i powierzchniach od 31 do 137 m.kw.
W standardzie inwestycji znajdują się następujące rozwiązania:
• drzwi wejściowe o podwyższonej odporności na włamanie
• trzyszybowe duże i wysokie okna nadające wnętrzom odpowiednie nasłonecznienie i naturalne światło
• niskie progi przy wyjściach na tarasy i balkony, zaprojektowane z myślą o komforcie i dostępności dla osób z niepełnosprawnościami
• przynależne do każdego mieszkania balkony, tarasy, a na parterze ogródki
• kilkudziesięciometrowe tarasy na najwyższym piętrze z widokiem na miasto
• hala garażowa
• wideodomofony
• zadaszone stojaki na rowery
• panele fotowoltaiczne
• ekologiczne oświetlenie LED w częściach wspólnych
• zamknięte i ogrodzone osiedle
W ofercie dostępne są mieszkania kompleksowo wykończone i urządzone, zaprojektowane z dbałością o estetykę i funkcjonalność przez renomowane biuro projektowe. Lokale są gotowe do zamieszkania od razu po odbiorze kluczy, bez potrzeby angażowania się w czasochłonny proces aranżacji wnętrz.
Do wyboru są trzy starannie opracowane style wykończenia:
• natural – ciepły, przytulny klimat z dominacją drewna i jasnych tonów,
• monochrom – nowoczesna elegancja w odcieniach czerni, granatu, bieli i szarości,
• premium - wyrafinowany minimalizm z luksusowymi akcentami
Każdy z wariantów uwzględnia spójną aranżację salonu z aneksem kuchennym, łazienki oraz sypialni – z wysokiej klasy materiałami i stylowymi meblami wkomponowanymi w wybrany motyw.
Tak przygotowane apartamenty stanowią doskonałe rozwiązanie zarówno dla osób poszukujących gotowego mieszkania, jak i dla inwestorów, którzy chcą rozpocząć wynajem natychmiast po odbiorze nieruchomości.
Technologia modułowa wykorzystana przy budowie osiedla NEONOWE to zaleta zarówno dla mieszkańców, jak i dla środowiska. Mniejsza emisja zanieczyszczeń jest możliwa dzięki ścisłej kontroli procesu produkcji.
Wykorzystanie materiałów najwyższej jakości sprawia, że budynki wymagają mniejszych nakładów na fundusz remontowy. Energooszczędność konstrukcji pozwala zmniejszyć wydatki na ogrzewanie i zwiększyć komfort termiczny mieszkańców.
Mieszkanie znajduje się w inwestycji Osiedle Neonowe, w której znajduje się w sprzedaży jeszcze 13 podobnych nowych mieszkań.
Pekabex Development Sp. z o.o.
Strona internetowa inwestycjiAdres biura sprzedaży:
ul. Katedralna 16, 42-202 CzęstochowaGodziny otwarcia biura sprzedaży:
- Poniedziałek: 10:00 - 17:00
- Wtorek: 10:00 - 17:00
- Środa: 10:00 - 17:00
- Czwartek: 10:00 - 17:00
- Piątek: 10:00 - 17:00
W soboty po umówieniu spotkania





