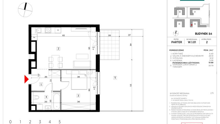
Mieszkanie na sprzedaż 2 pokoje o powierzchni 51,68 m² numer W.1.01
Inwestycja:
CityFlow etap IIDeweloper:
Okam Capital Sp. z o.o.
Inwestycja:
CityFlow etap IIDeweloper:
Okam Capital Sp. z o.o.Warszawa, Wola, Ulrychów, ul. Redutowa 7
Warszawa, Wola, Ulrychów, ul. Redutowa 7
Oddanie
Gotowe
Ilość pokoi
2 pokoje
Metraż
51,68 m²
Piętro
Parter
Kuchnia
otwarta kuchnia
Wysokość
od 270 do 290 cm wysokości
Poziomy
1 poziom
Oznaczenie oferty
W.1.01

Raport o deweloperze
Poznaj dewelopera bliżej! Pobierz raport, w którym znajdziesz kluczowe informacje o firmie, jej doświadczeniu, nagrodach oraz aktualnych i zrealizowanych inwestycjach.
Budynek i otoczenie
Miejsca postojowe | |
|---|---|
Komórki lokatorskie | dostępne (288): obowiązkowy zakup |
Standard wykończenia | standard deweloperski Ogrzewanie miejska sieć ciepłownicza |
Realizacja inwestycji | rozpoczęcie budowy w 1 kw. 2024 roku, inwestycja została oddana do użytkowania w 1 kw. 2026 roku |
Udogodnienia | ochrona całodobowa, plac zabaw, monitoring, teren ogrodzony, recepcja, usługi w budynku, winda, rowerownia, inteligentny dom, siłownia plenerowa, sala fitness, miejsce do ładowania samochodów elektrycznych |
Przyroda | w okolicy inwestycji znajduje się park |
Charakterystyka energetyczna nieruchomości |
|
Rezerwacja i finanse
Rodzaj własności | Odrębna własność z własnością gruntu |
|---|---|
Wysokość czynszu | informacja u dewelopera |
Warunki rezerwacji | Informacja u dewelopera |
Zabezpieczenie środków | Informacja u dewelopera |
Postępy i zdjęcia z budowy
Zobacz na jakim etapie budowy jest ta inwestycja
Lokalizacja inwestycji
Metro - Księcia Janusza - 1175 m
Przystanek Tramwajowy - 442 m
Przystanek Autobusowy - 153 m
Dojazd do centrum: pokaż
W pobliżu 1 km od tej inwestycji znajdują się:
65 kawiarni i restauracji, 90 sklepów, 71 obiektów sportowych, 29 placówek medycznych, 53 placówki edukacyjne, 66 placów zabaw
Przeczytaj więcej o lokalizacji
Znajdująca się w lewobrzeżnej części Warszawy, w bezpośrednim sąsiedztwie Śródmieścia, dzielnica Wola należy do najgęściej i najliczniej zaludnionych rejonów miasta. Dawny teren przemysłowy, na którym niegdyś powstały wielkie blokowiska, do dnia dzisiejszego stanowi skupisko wysokościowców. Współczesna architektura to przede wszystkim nowoczesne, postmodernistyczne biurowce, jak Atrium, budynki Kredyt Banku czy najwyższy na Woli drapacz – Warsaw Trade Tower. Atrakcyjne położenie dzielnicy sprzyja również dynamicznemu rozwojowi wysokiego budownictwa mieszkaniowego. Współczesna Wola to także ważny ośrodek życia kulturalnego, gdyż znajdują się tu znane w kraju i na świecie placówki muzealne: Muzeum Powstania Warszawskiego, Muzeum Historii Żydów Polskich oraz Muzeum Więzienia Pawiak, a ponadto: teatry, galerie sztuki i klubokawiarnie. Na tereny zielone dzielnicy składają się 4 parki i Lasek na Kole, a najważniejsze arterie to Al. Jana Pawła II i Trasa W-Z.
Opis oferty
Nowe 2-pokojowe mieszkanie na sprzedaż o powierzchni 51,68 m² znajduje się w nowo budowanej inwestycji deweloperskiej CityFlow etap II na Ulrychowie, ul. Redutowa 7 (4.8 km od centrum Warszawy).
Inwestycja jest realizowana przez Okam Capital Sp. z o.o.
Cała inwestycja składa się z 2 budynków, w których łącznie znajduje się 416 nowych mieszkań.
Na sprzedaż pozostaje 7 ofert o powierzchni od 52 do 115 m².
W budynkach jest 9 kondygnacji naziemnych oraz 2 kondygnacje podziemne.
Inwestycja CityFlow etap II została wybudowana i oddana do użytkowania w 1 kw. 2026 roku.
Nowe mieszkanie o oznaczeniu W.1.01 znajduje się na parterze i jest 1-poziomowe. Pomieszczenia mają od 270 do 290 centymetrów wysokości. W mieszkaniu znajdują się 2 pokoje.
Do mieszkania przewidziano możliwość zakupu komórki lokatorskiej, którą można zagospodarować na spiżarnię, warsztat czy składzik.
Dla przyszłych mieszkańców CityFlow etap II deweloper przewidział miejsca postojowe podziemne.
Dzięki temu przyszli właściciele nie będą musieli poszukiwać wolnej przestrzeni parkingowej. Dodatkowo, miejsce postojowe w garażu podziemnym zabezpiecza przed niekorzystnymi warunkami atmosferycznymi.
Opis Inwestycji
Tereny zielone
Żyj lepiej! Zamieszkaj w przestrzeni, która oferuje więcej niż mieszkanie.
CITYFLOW łączy energię miejskiego życia z urokami rozległych terenów zielonych. Osiedle to - zlokalizowane bezpośrednio przy 8-hektarowym Parku Powstańców Warszawy i zaprojektowane z myślą o mieszkańcach – jest nowatorskim projektem z licznymi udogodnieniami, wpisanym w zielone otoczenie rozwijającej się dzielnicy Wola przy ulicy Redutowej.
CITYFLOW obejmuje łącznie 4 budynki, budowane w dwóch etapach. Etap 1 został już wybudowany, etap 2 jest w trakcie realizacji.
Osiedle CITYFLOW:
• 750 mieszkań w 4 budynkach (od 4 do 8 pięter)
• 926 miejsc postojowych w garażu podziemnym
• 407 komórek lokatorskich
• 40% działki to powierzchnia biologicznie czynna
• Eko-rozwiązania i liczne udogodnienia
Etap II - w liczbach
• 2 budynki z garażem podziemnym
• 416 mieszkań w standardzie SMART
• zróżnicowane układy mieszkań od 1 do 7-pokojowych
• szeroki wybór powierzchni od 32 do 178m2
CITYFLOW – udogodnienia dla Ciebie
Wychodząc naprzeciw mieszkańcom wprowadzono szereg udogodnień, ponieważ dom to nie tylko mury. Wśród nich znajdą się:
• system inteligentnego domu Appartme w każdym mieszkaniu,
• lokal mieszkańca z salą spotkań,
• wypożyczalnia rowerów,
• stacja serwisu rowerowego,
• punkt do ładowania samochodów elektrycznych,
• punkt CAR SPA,
• osiedle z ochroną
Poczuj zielone FLOW w centrum miasta
Mieszkańcy CITYFLOW odnajdą tu swoje miejsce do życia! Na terenie osiedla zaplanowano rozległe tereny zielone, dające możliwości spędzenia czasu na świeżym powietrzu:
• strefa relaksu z leżakami i hamakami,
• amfiteatr i plac z mgłą wodną,
• ogródek warzywny,
• plac zabaw dla dzieci,
• street workout.
Odbierz klucze do swojego mieszkania w I poł 2026 roku.
Mieszkanie znajduje się w inwestycji CityFlow etap II, w której znajduje się w sprzedaży jeszcze 1 podobne nowe mieszkanie.
Okam Capital Sp. z o.o.
Strona internetowa inwestycjiAdres biura sprzedaży:
ul. Redutowa 9, WarszawaGodziny otwarcia biura sprzedaży:
- Poniedziałek: 10:00 - 18:00
- Wtorek: 10:00 - 18:00
- Środa: 10:00 - 18:00
- Czwartek: 10:00 - 18:00
- Piątek: 10:00 - 18:00
- Sobota: 10:00 - 15:00
Artykuły powiązane:
:format(jpg)/articles/gallery/image/700/co-sie-buduje-w-katowicach_8dd3c8.jpg)
Co buduje się w Katowicach?
Katowice wyróżnia innowacja, przedsiębiorczość i wszechobecny przemysł. W stolicy województwa śląskiego i Górnośląskiego Okręgu Przemysłowego odbywa się wiele międzynarodowych imprez, na które ściągają tłumy z całego świata. Bogata oferta edukacyjna i przemysłowa zachęca młodych ludzi do zamieszkania i rozpoczęcia kariery zawodowej w Katowicach. Inwestycje mieszkaniowe to kolejny atut miasta.
02 marca 2022
Redakcja





