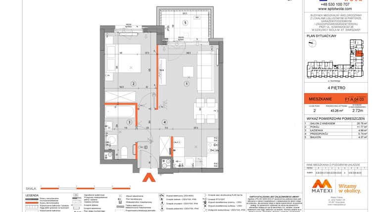
Mieszkanie na sprzedaż 2 pokoje o powierzchni 43,26 m² numer F1.A.04.03
Inwestycja:
Splot WolaDeweloper:
Matexi Polska Sp. z o.o.
Inwestycja:
Splot WolaDeweloper:
Matexi Polska Sp. z o.o.Warszawa, Wola, Odolany, ul. Sowińskiego 28
Warszawa, Wola, Odolany, ul. Sowińskiego 28
Termin oddania
3 kw. 2026
Ilość pokoi
2 pokoje
Metraż
43,26 m²
Piętro
4 piętro
Strona świata
południe
Powierzchnie dodatkowe
Balkon
Kuchnia
otwarta kuchnia
Wysokość pomieszczeń
272 cm wysokości
Ilość poziomów
1 poziom
Oznaczenie oferty
F1.A.04.03

Raport o deweloperze
Poznaj dewelopera bliżej! Pobierz raport, w którym znajdziesz kluczowe informacje o firmie, jej doświadczeniu, nagrodach oraz aktualnych i zrealizowanych inwestycjach.
Budynek i otoczenie
Miejsca postojowe | |
|---|---|
Komórki lokatorskie | dostępne: wielkość: 2,3 - 7,46 m2 |
Standard wykończenia | standard deweloperski Ogrzewanie miejskie |
Realizacja inwestycji | rozpoczęcie budowy w 4 kw. 2024 roku, planowane oddanie do użytkowania w 3 kw. 2026 roku |
Udogodnienia | ochrona całodobowa, monitoring, usługi w budynku, winda, rowerownia, siłownia plenerowa, instalacja fotowoltaiczna |
Przyroda | informacja u dewelopera |
Charakterystyka energetyczna nieruchomości | informacja u dewelopera |
Rezerwacja i finanse
Rodzaj własności | Odrębna własność z użytkowaniem wieczystym gruntu |
|---|---|
Wysokość czynszu | informacja u dewelopera |
Warunki rezerwacji | Informacja u dewelopera |
Zabezpieczenie środków | Informacja u dewelopera |

Zdjęcia z budowy i widok 3D
Zobacz na jakim etapie budowy jest ta inwestycja
Lokalizacja inwestycji
Metro - Księcia Janusza - 1778 m
Przystanek Tramwajowy - 191 m
Przystanek Autobusowy - 177 m
Dojazd do centrum: pokaż
W pobliżu 1 km od tej inwestycji znajdują się:
61 kawiarni i restauracji, 67 sklepów, 31 obiektów sportowych, 24 placówki medyczne, 31 placówek edukacyjnych, 47 placów zabaw
Przeczytaj więcej o lokalizacji
Osiedle powstaje na styku Odolan i Ulrychowa, u splotu ulic Wolskiej i Sowińskiego, vis-à-vis parku Powstańców Warszawy. Bliskie otoczenie parków, terenów rekreacji oraz przyjazna infrastruktura nowych osiedli sprzyja życiowej równowadze. Niedaleko stąd również do biznesowego centrum przy rondzie Daszyńskiego i głównych miejskich tras – żyjąc tutaj, pozostajesz w centrum miejskich wydarzeń. - 5 min do Centrum Handlowego Fort Wola - 10 min do pracy przy rondzie Daszyńskiego - 12 min do Parku Wodnego Moczydło - 20 min do Lotniska Okęcie
Znajdująca się w lewobrzeżnej części Warszawy, w bezpośrednim sąsiedztwie Śródmieścia, dzielnica Wola należy do najgęściej i najliczniej zaludnionych rejonów miasta. Dawny teren przemysłowy, na którym niegdyś powstały wielkie blokowiska, do dnia dzisiejszego stanowi skupisko wysokościowców. Współczesna architektura to przede wszystkim nowoczesne, postmodernistyczne biurowce, jak Atrium, budynki Kredyt Banku czy najwyższy na Woli drapacz – Warsaw Trade Tower. Atrakcyjne położenie dzielnicy sprzyja również dynamicznemu rozwojowi wysokiego budownictwa mieszkaniowego. Współczesna Wola to także ważny ośrodek życia kulturalnego, gdyż znajdują się tu znane w kraju i na świecie placówki muzealne: Muzeum Powstania Warszawskiego, Muzeum Historii Żydów Polskich oraz Muzeum Więzienia Pawiak, a ponadto: teatry, galerie sztuki i klubokawiarnie. Na tereny zielone dzielnicy składają się 4 parki i Lasek na Kole, a najważniejsze arterie to Al. Jana Pawła II i Trasa W-Z.
Opis oferty
Nowe 2-pokojowe mieszkanie na sprzedaż o powierzchni 43,26 m² znajduje się w nowo budowanej inwestycji deweloperskiej Splot Wola na Odolanach, ul. Sowińskiego 28 (5.1 km od centrum Warszawy).
Inwestycja jest realizowana przez Matexi Polska Sp. z o.o.
Cała inwestycja składa się z 1 budynku, w którym łącznie znajdują się 103 nowe mieszkania.
Na sprzedaż pozostają 33 oferty o powierzchni od 37 do 128 m².
W budynku jest od 6 do 8 kondygnacji naziemnych oraz 2 kondygnacje podziemne.
Inwestycja Splot Wola jest w trakcie budowy z planowanym na 3 kw. 2026 roku terminem oddania do użytkowania.
Nowe mieszkanie o oznaczeniu F1.A.04.03 znajduje się na 4 piętrze i jest 1-poziomowe. Pomieszczenia mają 272 centymetrów wysokości. W mieszkaniu znajdują się 2 pokoje.
Okna w mieszkaniu wychodzą na południe.
Okna wychodzące na południe gwarantują maksymalną ilość naturalnego światła, co czyni wnętrza jasnymi i ciepłymi. Dodatkowo południowa ekspozycja pomaga obniżyć koszty ogrzewania w zimie. Okna na południe są idealne dla osób pragnących cieszyć się jasnym otoczeniem, które sprzyja dobremu samopoczuciu oraz pozytywnej energii.
Dla przyszłych mieszkańców Splot Wola deweloper przewidział miejsca postojowe podziemne.
Dzięki temu przyszli właściciele nie będą musieli poszukiwać wolnej przestrzeni parkingowej. Dodatkowo, miejsce postojowe w garażu podziemnym zabezpiecza przed niekorzystnymi warunkami atmosferycznymi.
Opis Inwestycji
Tereny zielone
Pow. dodatkowe
Splot Wola łączy dla Ciebie wszystkie dobre pierwiastki dzielnicy z nowoczesnym podejściem do projektowania miejsc do mieszkania. Otwarte, przyjazne, wypełnione zielenią osiedle idealnie wpisze się we współczesny styl życia. Codzienny komfort mieszkańców splata się tu z troską o ekologię, a dobrze wyważona, estetyczna architektura z przemyślaną funkcjonalnością. By mieszkać wygodnie, przyjemnie i czerpać z życia to, co się lubi najbardziej.
Pierwszy etap to mieszkania na warszawskiej Woli, które doskonale zaspokoją potrzeby różnych pokoleń, we wszelkich rodzinnych konfiguracjach. Etap ten tworzy budynek przylegający do ulicy Sowińskiego o kaskadowej bryle liczącej od sześciu do ośmiu kondygnacji. Znajdą się w nim 103 mieszkania na sprzedaż o zróżnicowanych metrażach, od 2 do 5 pokojowych. Na ostatnich piętrach zaplanowano kilka mieszkań dwupoziomowych.
Mieszkanie znajduje się w inwestycji Splot Wola, w której znajdują się w sprzedaży jeszcze 23 podobne nowe mieszkania.
Matexi Polska Sp. z o.o.
Strona internetowa inwestycjiAdres biura sprzedaży:
al. Jana Pawła II 29, 00-867 WarszawaGodziny otwarcia biura sprzedaży:
- Poniedziałek: 09:00 - 19:00
- Wtorek: 09:00 - 19:00
- Środa: 12:00 - 17:00
- Czwartek: 09:00 - 19:00
- Piątek: 09:00 - 19:00
- Sobota: 09:00 - 14:00





