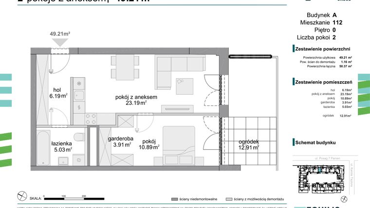
Mieszkanie na sprzedaż 2 pokoje o powierzchni 49,21 m² numer 112
Inwestycja:
Osiedle Fokus UrsusDeweloper:
Equilis Poland
Inwestycja:
Osiedle Fokus UrsusDeweloper:
Equilis PolandWarszawa, Ursus, Szamoty, ul. Posag 7 Panien
Warszawa, Ursus, Szamoty, ul. Posag 7 Panien
Termin oddania
2 kw. 2026
Ilość pokoi
2 pokoje
Metraż
49,21 m²
Piętro
Parter
Strona świata
południe
Powierzchnie dodatkowe
Ogródek
Kuchnia
otwarta kuchnia
Wysokość pomieszczeń
265 cm wysokości
Ilość poziomów
1 poziom
Oznaczenie oferty
112

Raport o deweloperze
Poznaj dewelopera bliżej! Pobierz raport, w którym znajdziesz kluczowe informacje o firmie, jej doświadczeniu, nagrodach oraz aktualnych i zrealizowanych inwestycjach.
Budynek i otoczenie
Miejsca postojowe | |
|---|---|
Komórki lokatorskie | dostępne (68) |
Standard wykończenia | standard deweloperski Ogrzewanie miejskie |
Realizacja inwestycji | rozpoczęcie budowy w 2 kw. 2024 roku, planowane oddanie do użytkowania w 2 kw. 2026 roku |
Udogodnienia | plac zabaw, monitoring, teren ogrodzony, klimatyzacja, usługi w budynku, winda |
Przyroda | w okolicy inwestycji znajduje się park |
Charakterystyka energetyczna nieruchomości |
|
Rezerwacja i finanse
Rodzaj własności | Odrębna własność z własnością gruntu |
|---|---|
Wysokość czynszu | informacja u dewelopera |
Warunki rezerwacji | Informacja u dewelopera |
Zabezpieczenie środków | Otwarty mieszkaniowy rachunek powierniczy |

Zdjęcia z budowy i widok 3D
Zobacz na jakim etapie budowy jest ta inwestycja
Lokalizacja inwestycji
Stacja kolejowa - Warszawa Ursus - 936 m
Przystanek Autobusowy - 46 m
Dojazd do centrum: pokaż
W pobliżu 1 km od tej inwestycji znajdują się:
43 kawiarnie i restauracje, 62 sklepy, 47 obiektów sportowych, 16 placówek medycznych, 36 placówek edukacyjnych, 51 placów zabaw
Przeczytaj więcej o lokalizacji
Ursus położony jest w zachodniej części Warszawy i należy do najmniejszych dzielnic miasta, zajmując obszar o powierzchni ok. 9,4 km2. Rejon znany dawniej jako ośrodek przemysłu z zakładami mechanicznymi i cegielnią, dziś pełni przede wszystkim funkcje mieszkaniowe. Dzielnicę zamieszkuje obecnie ok. 55 tys. osób, a nowe budynki mieszkalne powstają na odrolnionych terenach Skoroszy oraz na postindustrialnym obszarze Szamot. Niska zabudowa domów jednorodzinnych dominuje w Gołąbkach, zaś wysokie bloki występują na osiedlu Niedźwiadek oraz na Skoroszach. W dzielnicy znajdują się 3 centra handlowe: Factory Ursus, Skorosze oraz Galeria Gawra, a także siedziba firmy Oriflame. Tereny miejskiej zieleni to parki: Czechowicki, Hassów i Achera. Odległość do centrum miasta wynosi 9 km, toteż najszybciej można tam dojechać pociągami Szybkiej Kolei Miejskiej i Warszawskiej Kolei Dojazdowej. Ursus położony jest u zbiegu międzynarodowych arterii: Trasy poznańskiej E-30 i Trasy katowickiej E-67.
Opis oferty
Nowe 2-pokojowe mieszkanie na sprzedaż o powierzchni 49,21 m² znajduje się w nowo budowanej inwestycji deweloperskiej Osiedle Fokus Ursus na Szamotach, ul. Posag 7 Panien (9.8 km od centrum Warszawy).
Inwestycja jest realizowana przez Equilis Poland.
Cała inwestycja składa się z 1 budynku, w którym łącznie znajdują się 284 nowe mieszkania.
Na sprzedaż pozostaje 69 ofert o powierzchni od 38 do 77 m².
W budynku jest 7 kondygnacji naziemnych oraz 2 kondygnacje podziemne.
Inwestycja Osiedle Fokus Ursus jest w trakcie budowy z planowanym na 2 kw. 2026 roku terminem oddania do użytkowania.
Nowe mieszkanie o oznaczeniu 112 znajduje się na parterze i jest 1-poziomowe. Pomieszczenia mają 265 centymetrów wysokości. W mieszkaniu znajdują się 2 pokoje.
Do mieszkania przewidziano możliwość zakupu komórki lokatorskiej, którą można zagospodarować na spiżarnię, warsztat czy składzik.
Okna w mieszkaniu wychodzą na południe.
Okna wychodzące na południe gwarantują maksymalną ilość naturalnego światła, co czyni wnętrza jasnymi i ciepłymi. Dodatkowo południowa ekspozycja pomaga obniżyć koszty ogrzewania w zimie. Okna na południe są idealne dla osób pragnących cieszyć się jasnym otoczeniem, które sprzyja dobremu samopoczuciu oraz pozytywnej energii.
Dla przyszłych mieszkańców Osiedle Fokus Ursus deweloper przewidział miejsca postojowe podziemne, miejsca postojowe naziemne.
Dzięki temu przyszli właściciele nie będą musieli poszukiwać wolnej przestrzeni parkingowej. Dodatkowo, miejsce postojowe w garażu podziemnym zabezpiecza przed niekorzystnymi warunkami atmosferycznymi.
Opis Inwestycji
Okazyjna cena
Tereny zielone
Pow. dodatkowe
WEŹ FOKUS NA URSUS!
Osiedle Fokus Ursus położone jest w najnowszej części Ursusa, przy ul. Posagu 7 Panien oraz ul. Karola Taylora. Najbliższe sąsiedztwo jest niemal kompletną i samowystarczalną dzielnicą z szeroką ofertą edukacyjną, z licznymi sklepami, supermarketami i centrami handlowymi np. Factory Ursus.
Dużym walorem dzielnicy jest sprawna komunikacja miejska: autobusy i przystanki Szybkiej Kolei Miejskiej oraz Kolei Mazowieckich. Dzięki nowym trasom szybkiego ruchu (S8) łatwo także dojechać do centrum lub wyjechać z miasta (A2, E77).
Według studium rozbudowy warszawskiego metra, w naszym sąsiedztwie planowane są przystanki dwóch nowych linii metra.
WYSMAKOWANA ARCHITEKTURA DLA KAŻDEGO
Budynek pierwszego etapu to bryła o wysokości – od 4 do 6 pięter. Charakterystyczną cechą elewacji są bardzo duże okna oraz balkony tworzące przemyślaną kompozycję. Zróżnicowanie ciekawej formy wynika także z zastosowania różnych kolorów tynków na elewacjach, utrzymanych w eleganckiej i klasycznej stylistyce bieli, beży i brązów.
NATURALNIE TAK JAK LUBISZ
Inwestycja Fokus Ursus będzie składać się nowoczesnych budynków, pomiędzy którymi powstanie obszerny zielony pasaż – szeroki pas zagospodarowanej, ogólnodostępnej przestrzeni. To, co wyróżnia urbanistykę osiedla, to właśnie zielona przestrzeń pozbawiona komunikacji samochodowej, urozmaicona wniesieniami terenu wokół budynków. Znajdzie się tam również plac zabaw z atrakcjami dla najmłodszych i strefy relaksu dla starszych, stojaki rowerowe oraz drobne formy architektoniczne.
Mieszkania na parterze otrzymają dodatkową porcję zieleni w postaci prywatnych ogródków.
W pierwszym etapie osiedla FOKUS URSUS zaprojektowaliśmy 284 mieszkania dwu-, trzy- i czteropokojowe o funkcjonalnych i skrupulatnie przemyślanych rozkładach pomieszczeń oraz w zróżnicowanych metrażach. Cześć mieszkań daje jednocześnie możliwości kształtowania układu funkcjonalnego według swojego upodobania.
Dzięki dużym przeszkleniom zapewnione zostanie odpowiednie nasłonecznie wnętrz.
Większość mieszkań posiadać będzie balkon lub loggię. Dla miłośników roślinności lub posiadaczy zwierząt domowych zaprojektowaliśmy mieszkania na parterach z prywatnymi ogródkami.
Część klatek schodowych doświetlamy naturalnym światłem, ograniczając konieczność sztucznego doświetlania. Przestrzenie wspólne wykończone będą gresem w klasycznej, ciepłej stylistyce z geometrycznymi wzorami. Portale do wind i wejścia do mieszkań będą wyeksponowane subtelnymi elementami dekoracyjnymi dopasowanymi do całości projektu.
Dla wygody mieszkańców i z myślą o zielonym charakterze inwestycji zaprojektowaliśmy dwu-kondygnacyjny garaż podziemny ze stanowiskami dla samochodów i schowkami na rowery.
Na parterze zaplanowaliśmy niezbędne sklepy i punkty usługowe, które ułatwią codzienne życie.
Wszystkie budynki OSIEDLA FOKUS URSUS posiadać będą certyfikat Breeam na poziomie Very Good, gwarantujący wysoki standard zrównoważonego i ekologicznego budownictwa.
Mieszkanie znajduje się w inwestycji Osiedle Fokus Ursus, w której znajduje się w sprzedaży jeszcze 36 podobnych nowych mieszkań.
Equilis Poland
Strona internetowa inwestycjiAdres biura sprzedaży:
ul. Gierdziejowskiego / ul. Posag 7 Panien, 02-495 WarszawaGodziny otwarcia biura sprzedaży:
- Poniedziałek: 09:00 - 18:00
- Wtorek: 09:00 - 18:00
- Środa: 09:00 - 18:00
- Czwartek: 09:00 - 18:00
- Piątek: 09:00 - 18:00
- Sobota: 10:00 - 15:00





