Rokokowa Vita
Mieszkania na sprzedaż oferowane bezpośrednio przez Develia
Warszawa, Bielany, Huta, ul. Rokokowa 132
Warszawa, Bielany, Huta, ul. Rokokowa 132
:format(jpg)/offers/offer/None/main_image/rokokowa-vita_5423a4.jpg)
:format(jpg)/offers/offer/None/main_image/rokokowa-vita_5423a4.jpg)
1 zdjęcie
Termin oddania
1 kw. 2026
Powierzchnie
93 - 182/m2
Przedział pokoi
4 - 5
Kondygnacje
3
Budynki
22
Stand. wykończenia
Standard deweloperski
Mieszkania w inwestycji (21)
Sortuj
Metro - Młociny - 1250 m
Przystanek Tramwajowy - 577 m
Przystanek Autobusowy - 204 m
Dojazd do centrum: pokaż
W pobliżu 1 km od tej inwestycji znajdują się:
13 kawiarni i restauracji, 12 sklepów, 3 obiekty sportowe, 1 placówka medyczna, 5 placówek edukacyjnych, 7 placów zabaw
Zdjęcia z budowy
Zobacz na jakim etapie budowy jest ta inwestycja
Udogodnienia Inwestycji
Standard i bezpieczeństwo
- teren ogrodzony
- Standard deweloperski
Przyroda w okolicy
- park
- las
- rezerwat przyrody
Szczegóły inwestycji
Realizacja inwestycji: | rozpoczęcie budowy w 4 kw. 2024 roku,
planowane oddanie do użytkowania w 1 kw. 2026 roku |
|---|---|
Liczba budynków: | cała inwestycja składa się z 22 budynków |
Liczba kondygnacji: | budynki posiadają 3 kondygnacje naziemne wraz z parterem oraz nie posiadają kondygnacji podziemnych |
Liczba mieszkań: | cała inwestycja składa się z 38 lokali mieszkalnych |
Wysokość pomieszczeń: | na wszystkich kondygnacjach po 260 cm wysokości |
Standard wykończenia | standard deweloperski Ogrzewanie gazowe |
Rodzaj własności: | odrębna własność z własnością gruntu |
Powierzchnie dodatkowe: | nie przewidziano powierzchni dodatkowych |
Komórki lokatorskie: | nie przewidziano |
Miejsca postojowe: | w inwestycji przewidziano:
|
Przyroda: | w okolicy inwestycji znajduje się park, las, rezerwat przyrody |
Aktualna oferta
Dostępne mieszkania: | aktualnie dostępnych jest 21 mieszkań |
|---|---|
Powierzchnie mieszkań: | od 93 do 182 m² |
Liczba pokoi: | dostępne są mieszkania 4, 5-pokojowe |
Opis płatności: | zgodnie z harmonogramem / kamienie milowe |
Warunki rezerwacji: | umowa rezerwacyjna i wpłata 2 tys. do czasu umowy deweloperskiej |
Zabezpieczenie środków klienta: | otwarty mieszkaniowy rachunek powierniczy |
Wysokość czynszu: | informacja u dewelopera |
Opis inwestycji
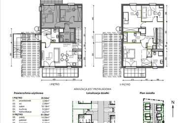
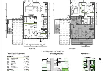
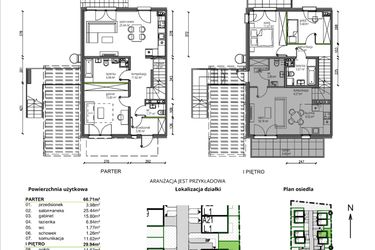
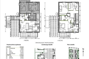
Rokokowa Vita zaoferuje 38 komfortowych lokali, które powstaną w 16 kameralnych, 3-kondygnacyjnych willach miejskich o eleganckiej, dopracowanej architekturze. W ofercie znajdą się komfortowe przestrzenie o zróżnicowanych metrażach. Wybierać można spośród a 3-pokojowych mieszkań o powierzchni 63 m kw. z własnym ogrodem, dwupoziomowych apartamentów 4-pokojowych o powierzchniach od 92 do 123 m kw. z ogrodami lub tarasami. Dla najbardziej wymagających powstaną domy w zabudowie bliźniaczej o powierzchni ok. 182 m kw. z garażami oraz przynależnymi ogrodami. To doskonała i unikalna propozycja przede wszystkim dla rodzin z dziećmi, szukających większej przestrzeni. Rokokowa Vita oferuje jednocześnie łatwy i szybki dostęp do bogatej okolicznej infrastruktury miejskiej.
Położenie w otoczeniu niskiej, jednorodzinnej zabudowy gwarantuje atmosferę spokoju i relaksu, bez konieczności opuszczania pulsującego życiem miasta.
Termin zakończenia budowy osiedla:
I kwartał 2026
Atuty
• Atrakcyjna lokalizacja na warszawskich Bielanach
• Tylko 4 minuty jazdy do stacji metra Młociny
• Sąsiedztwo terenów zielonych
• Spokojna okolica w otoczeniu domów jednorodzinnych
• Bliskość Galerii Młociny
Niniejszy materiał nie stanowi oferty w rozumieniu Kodeksu cywilnego i ma charakter wyłącznie informacyjny.
Szczegóły inwestycji oraz pełna oferta dostępne są na stronie internetowej:
https://develia.pl/pl/
Inwestycja Rokokowa Vita znajduje się na Hucie, ul. Rokokowa 132 (9.1 km od centrum Warszawy), jest realizowana przez Develia.
Inwestycja obecnie jest w trakcie budowy z planowanym na 1 kw. 2026 roku terminem oddania do użytkowania.
Cały projekt składa się z 38 nowych mieszkań znajdujących się w 22 budynkach. Budynki posiadają 3 kondygnacje naziemne wraz z parterem oraz nie posiadają kondygnacji podziemnych.
Aktualnie w inwestycji Rokokowa Vita w sprzedaży jest 21 nowych mieszkań o powierzchni od 93 do 182 metrów kwadratowych , w cenie od 12 099 zł za metr kwadratowy.
Dla przyszłych mieszkańców Rokokowa Vita deweloper przewidział:
- miejsca postojowe naziemne
Lokalizacja inwestycji
Rokokowa Vita to najnowsza propozycja Develii realizowana na warszawskich Bielanach. To jedna z najbardziej pożądanych dzielnic wśród osób poszukujących mieszkań i domów. Inwestycja położona jest w spokojnej i kameralnej okolicy w otoczeniu domów jednorodzinnych. To gwarancja ciszy i komfortu. Stwarza ona jednocześnie szerokie możliwości korzystania z bogatych uroków natury. W niedalekim sąsiedztwie znajduje się Las Młociński, Las Bielański, a także las Bemowski z rezerwatem przyrody Łosiowe Błota. Po zachodniej stronie Warszawy położony jest również olbrzymi obszar Kampinoskiego Parku Narodowego. Do jego granic jest jedynie nieco ponad 4 km. To jeden z najpiękniejszych zespołów leśnych w Polsce, a jednocześnie wspaniałe miejsce do wypoczynku i rekreacji.
W okolicy nie brakuje sklepów (zaledwie 150 metrów od osiedla znajduje się supermarket), punktów usługowych, placówek edukacyjnych i ochrony zdrowia. W ciągu kilku minut dojedziemy do Galerii Młociny, jednego z największych i najnowocześniejszych centrów handlowych w kraju. Wielką zaletą jest też rozbudowana infrastruktura komunikacyjna. W okolicy kursują liczne linie autobusowe i tramwajowe, a tylko kilkunastominutowy spacer dzieli nas od stacji końcowej I linii metra na Młocinach. Z terenu osiedla będzie można łatwo dojechać również do drogi ekspresowej S7, będącej częścią obwodnicy Warszawy.
„Zielona dzielnica” Bielany usytuowana jest na lewobrzeżnych tarasach Wisły i pod względem liczby ludności plasuje się na piątym miejscu wśród innych rejonów stolicy. Jedynie połowę powierzchni zajmują zabudowania, zaś 28% stanowią obszary lasów, parków i rezerwatów, m.in.: Las Bielański, Las i Park Młociński czy Zespół Przyrodniczo-Krajobrazowy „Olszyna”. Bielany sąsiadują także z Kampinoskim Parkiem Narodowym. Pośród zielonego pejzażu przebiegają liczne szlaki rowerowe i turystyczne. Niewielka ilość wysokiej architektury występuje na osiedlach: Chomiczówka, Marymont-Ruda, Stare Bielany, Wawrzyszew. Niskie, willowe budownictwo dominuje na Młocinach i Radiowie, zaś na osiedlu Piaski powstają nowe budynki mieszkalne. Dzięki przystankom autobusowym i tramwajowym, a także czterem stacjom metra, zaciszne Bielany połączone są z centrum miasta. Główną arterią jest Trasa Armii Krajowej, a ośrodkiem przemysłowym – Huta Warszawa.
Komunikacja
Jak wygląda komunikacja w okolicy inwestycji Rokokowa Vita?
Najważniejszymi arteriami Bielan są: Trasa Armii Krajowej i trasa wylotowa nr 7 w kierunku Gdańska. Komunikacja z centrum stolicy możliwa jest za pomocą środków transportu publicznego: metra, autobusów czy tramwajów.
Przyszli mieszkańcy inwestycji Rokokowa Vita mogą korzystać z rozbudowanej sieci połączeń komunikacyjnych. W odległości 200 metrów od inwestycji Rokokowa Vita znajduje się najbliższy punkt komunikacyjny - Rokokowa 02.
Edukacja
Czy w pobliżu inwestycji Rokokowa Vita znajdują się szkoły/przedszkola?
Mieszkańcy mogą korzystać z bogatej oferty edukacyjnej. W najbliższej okolicy inwestycji Rokokowa Vita znajduje się 5 placówek edukacyjnych. Najbliżej położone to: Integracyjne Przedszkole "Świat Dziecka" w odległości 908 m, Przedszkole nr 340 "Kasztanowego Ludka" w odległości 954 m, Sealart - Szkoła rysunku w odległości 967 m.
Opieka medyczna
Dużym atutem inwestycji Rokokowa Vita jest bliskość ośrodków zdrowotnych. Dostęp do opieki medycznej zapewnią położone w pobliżu: gabinet lekarski / przychodnia / szpital w odległości 900 m.
Sklepy i usługi
Jak daleko jest do najbliższego sklepu?
Na infrastrukturę handlowo-usługową inwestycji Rokokowa Vita składa się wiele punktów. Nieopodal, w odległości 200 m znajduje się Netto, w odległości 700 m znajduje się Żabka.
Sport
Bliskość terenów rekreacyjnych oraz obiektów sportowych to mocna strona tej lokalizacji. W najbliższej okolicy inwestycji Rokokowa Vita w odległości 300 m znajduje się Saturn Fitness, w odległości 1000 m znajduje się boisko / kort.
Develia
Strona internetowa inwestycjiAdres biura sprzedaży:
ul. Podskarbińska 32, 03-829 Warszawa (Lokal usługowy U6, wejście od ul. Drwęckiej)Godziny otwarcia biura sprzedaży:
- Poniedziałek: 10:00 - 18:00
- Wtorek: 10:00 - 18:00
- Środa: 10:00 - 18:00
- Czwartek: 10:00 - 18:00
- Piątek: 09:00 - 17:00
Oferty, które mogą Cię zainteresować
Polecane Lokalizacje
- Mieszkania na sprzedaż Chomiczówka (62 oferty)
- Mieszkania na sprzedaż Marymont Kaskada (103 oferty)
- Mieszkania na sprzedaż Piaski (65 ofert)
- Mieszkania na sprzedaż Radiowo (45 ofert)
- Mieszkania na sprzedaż Słodowiec (103 oferty)
- Mieszkania na sprzedaż Stare Bielany (124 oferty)
- Mieszkania na sprzedaż Wawrzyszew (86 ofert)
Inwestycje w pobliżu na Hucie
- Nocznickiego 29 bud. A (10 ofert)
- Conrada 30 (41 ofert)
- Apartamenty Świt (21 ofert)
- Apartamenty Rudnickiego (20 ofert)
- Apartamenty Literacka (2 oferty)
- Nordic Powstańców Śląskich (91 ofert)
- Apartamenty Literacka etap 2 (14 ofert)
- Marimonte (25 ofert)
- Marimonte - apartamenty inwestycyjne (58 ofert)
- UNO Bemowo (68 ofert)
- Osiedle Myśliborska (142 oferty)
- Sady Żoliborz II (44 oferty)





