Mieszkanie na sprzedaż 5 pokoi o powierzchni 181,56 m² numer A10.L1
Inwestycja:
Rokokowa VitaDeweloper:
Develia
Inwestycja:
Rokokowa VitaDeweloper:
DeveliaWarszawa, Bielany, Huta, ul. Rokokowa 132
Warszawa, Bielany, Huta, ul. Rokokowa 132
Termin oddania
1 kw. 2026
Ilość pokoi
5 pokoi
Metraż
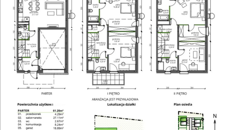
181,56 m²
Piętro
Parter
Kuchnia
otwarta kuchnia
Wysokość pomieszczeń
260 cm wysokości
Ilość poziomów
2 poziomy
Oznaczenie oferty
A10.L1

Raport o deweloperze
Poznaj dewelopera bliżej! Pobierz raport, w którym znajdziesz kluczowe informacje o firmie, jej doświadczeniu, nagrodach oraz aktualnych i zrealizowanych inwestycjach.
Budynek i otoczenie
Miejsca postojowe | |
|---|---|
Standard wykończenia | standard deweloperski Ogrzewanie gazowe |
Realizacja inwestycji | rozpoczęcie budowy w 4 kw. 2024 roku, planowane oddanie do użytkowania w 1 kw. 2026 roku |
Udogodnienia | teren ogrodzony |
Przyroda | w okolicy inwestycji znajduje się park, las, rezerwat przyrody |
Charakterystyka energetyczna nieruchomości |
|
Rezerwacja i finanse
Rodzaj własności | Odrębna własność z własnością gruntu |
|---|---|
Wysokość czynszu | informacja u dewelopera |
Warunki rezerwacji | umowa rezerwacyjna i wpłata 2 tys. do czasu umowy deweloperskiej |
Zabezpieczenie środków | Otwarty mieszkaniowy rachunek powierniczy |
Zdjęcia z budowy
Zobacz na jakim etapie budowy jest ta inwestycja
Lokalizacja inwestycji
Metro - Młociny - 1250 m
Przystanek Tramwajowy - 577 m
Przystanek Autobusowy - 204 m
Dojazd do centrum: pokaż
W pobliżu 1 km od tej inwestycji znajdują się:
13 kawiarni i restauracji, 12 sklepów, 3 obiekty sportowe, 1 placówka medyczna, 5 placówek edukacyjnych, 7 placów zabaw
Przeczytaj więcej o lokalizacji
Rokokowa Vita to najnowsza propozycja Develii realizowana na warszawskich Bielanach. To jedna z najbardziej pożądanych dzielnic wśród osób poszukujących mieszkań i domów. Inwestycja położona jest w spokojnej i kameralnej okolicy w otoczeniu domów jednorodzinnych. To gwarancja ciszy i komfortu. Stwarza ona jednocześnie szerokie możliwości korzystania z bogatych uroków natury. W niedalekim sąsiedztwie znajduje się Las Młociński, Las Bielański, a także las Bemowski z rezerwatem przyrody Łosiowe Błota. Po zachodniej stronie Warszawy położony jest również olbrzymi obszar Kampinoskiego Parku Narodowego. Do jego granic jest jedynie nieco ponad 4 km. To jeden z najpiękniejszych zespołów leśnych w Polsce, a jednocześnie wspaniałe miejsce do wypoczynku i rekreacji. W okolicy nie brakuje sklepów (zaledwie 150 metrów od osiedla znajduje się supermarket), punktów usługowych, placówek edukacyjnych i ochrony zdrowia. W ciągu kilku minut dojedziemy do Galerii Młociny, jednego z największych i najnowocześniejszych centrów handlowych w kraju. Wielką zaletą jest też rozbudowana infrastruktura komunikacyjna. W okolicy kursują liczne linie autobusowe i tramwajowe, a tylko kilkunastominutowy spacer dzieli nas od stacji końcowej I linii metra na Młocinach. Z terenu osiedla będzie można łatwo dojechać również do drogi ekspresowej S7, będącej częścią obwodnicy Warszawy.
„Zielona dzielnica” Bielany usytuowana jest na lewobrzeżnych tarasach Wisły i pod względem liczby ludności plasuje się na piątym miejscu wśród innych rejonów stolicy. Jedynie połowę powierzchni zajmują zabudowania, zaś 28% stanowią obszary lasów, parków i rezerwatów, m.in.: Las Bielański, Las i Park Młociński czy Zespół Przyrodniczo-Krajobrazowy „Olszyna”. Bielany sąsiadują także z Kampinoskim Parkiem Narodowym. Pośród zielonego pejzażu przebiegają liczne szlaki rowerowe i turystyczne. Niewielka ilość wysokiej architektury występuje na osiedlach: Chomiczówka, Marymont-Ruda, Stare Bielany, Wawrzyszew. Niskie, willowe budownictwo dominuje na Młocinach i Radiowie, zaś na osiedlu Piaski powstają nowe budynki mieszkalne. Dzięki przystankom autobusowym i tramwajowym, a także czterem stacjom metra, zaciszne Bielany połączone są z centrum miasta. Główną arterią jest Trasa Armii Krajowej, a ośrodkiem przemysłowym – Huta Warszawa.
Opis oferty
Nowe 5-pokojowe mieszkanie na sprzedaż o powierzchni 181,56 m² znajduje się w nowo budowanej inwestycji deweloperskiej Rokokowa Vita na Hucie, ul. Rokokowa 132 (9.1 km od centrum Warszawy).
Inwestycja jest realizowana przez Develia.
Cała inwestycja składa się z 22 budynków, w których łącznie znajduje się 38 nowych mieszkań.
Na sprzedaż pozostaje 20 ofert o powierzchni od 93 do 182 m².
W budynkach są 3 kondygnacje naziemne. Budynek nie posiada kondygnacji podziemnych.
Inwestycja Rokokowa Vita jest w trakcie budowy z planowanym na 1 kw. 2026 roku terminem oddania do użytkowania.
Nowe mieszkanie o oznaczeniu A10.L1 znajduje się na parterze i jest 2-poziomowe. Pomieszczenia mają 260 centymetrów wysokości. W mieszkaniu znajduje się 5 pokoi.
Dla przyszłych mieszkańców Rokokowa Vita deweloper przewidział miejsca postojowe naziemne.
Dzięki temu przyszli właściciele nie będą musieli poszukiwać wolnej przestrzeni parkingowej.
Opis Inwestycji
Rokokowa Vita zaoferuje 38 komfortowych lokali, które powstaną w 16 kameralnych, 3-kondygnacyjnych willach miejskich o eleganckiej, dopracowanej architekturze. W ofercie znajdą się komfortowe przestrzenie o zróżnicowanych metrażach. Wybierać można spośród a 3-pokojowych mieszkań o powierzchni 63 m kw. z własnym ogrodem, dwupoziomowych apartamentów 4-pokojowych o powierzchniach od 92 do 123 m kw. z ogrodami lub tarasami. Dla najbardziej wymagających powstaną domy w zabudowie bliźniaczej o powierzchni ok. 182 m kw. z garażami oraz przynależnymi ogrodami. To doskonała i unikalna propozycja przede wszystkim dla rodzin z dziećmi, szukających większej przestrzeni. Rokokowa Vita oferuje jednocześnie łatwy i szybki dostęp do bogatej okolicznej infrastruktury miejskiej.
Położenie w otoczeniu niskiej, jednorodzinnej zabudowy gwarantuje atmosferę spokoju i relaksu, bez konieczności opuszczania pulsującego życiem miasta.
Termin zakończenia budowy osiedla:
I kwartał 2026
Atuty
• Atrakcyjna lokalizacja na warszawskich Bielanach
• Tylko 4 minuty jazdy do stacji metra Młociny
• Sąsiedztwo terenów zielonych
• Spokojna okolica w otoczeniu domów jednorodzinnych
• Bliskość Galerii Młociny
Niniejszy materiał nie stanowi oferty w rozumieniu Kodeksu cywilnego i ma charakter wyłącznie informacyjny.
Szczegóły inwestycji oraz pełna oferta dostępne są na stronie internetowej:
https://develia.pl/pl/
Mieszkanie znajduje się w inwestycji Rokokowa Vita, w której znajduje się w sprzedaży jeszcze 5 podobnych nowych mieszkań.
Develia
Strona internetowa inwestycjiAdres biura sprzedaży:
ul. Podskarbińska 32, 03-829 Warszawa (Lokal usługowy U6, wejście od ul. Drwęckiej)Godziny otwarcia biura sprzedaży:
- Poniedziałek: 10:00 - 18:00
- Wtorek: 10:00 - 18:00
- Środa: 10:00 - 18:00
- Czwartek: 10:00 - 18:00
- Piątek: 09:00 - 17:00





