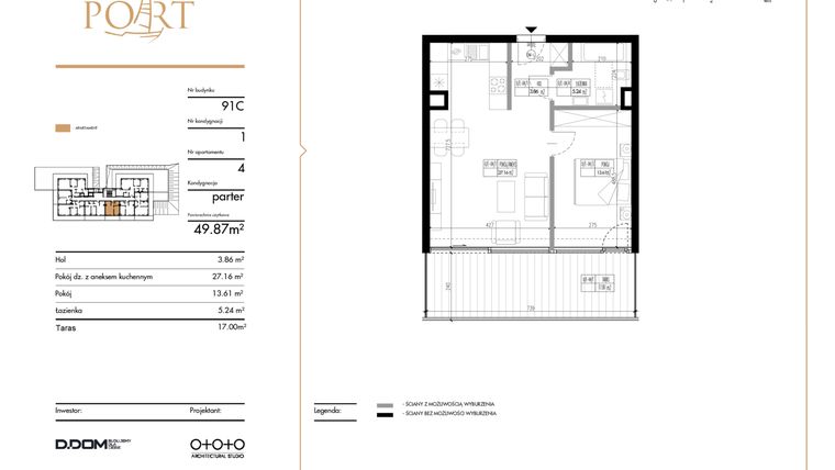
Mieszkanie na sprzedaż 2 pokoje o powierzchni 49,87 m² numer 4
Rezerwacja
Inwestycja:
Warmiński Port etap IIIDeweloper:
D.DOM Sp. z o.o.
Inwestycja:
Warmiński Port etap IIIDeweloper:
D.DOM Sp. z o.o.Olsztyn, Likusy, ul. Bałtycka 91C
Olsztyn, Likusy, ul. Bałtycka 91C
Termin oddania
Gotowe
Ilość pokoi
2 pokoje
Metraż
49,87 m²
Piętro
Parter
Strona świata
zachód, południe
Powierzchnie dodatkowe
Taras
Kuchnia
otwarta kuchnia
Wysokość pomieszczeń
280 cm wysokości
Ilość poziomów
1 poziom
Oznaczenie oferty
4

Raport o deweloperze
Poznaj dewelopera bliżej! Pobierz raport, w którym znajdziesz kluczowe informacje o firmie, jej doświadczeniu, nagrodach oraz aktualnych i zrealizowanych inwestycjach.
Budynek i otoczenie
Miejsca postojowe | |
|---|---|
Komórki lokatorskie | dostępne (9): od 1,9 do 3,1 m2; gratis do apartamentu; przewidziane do każdego apartamentu |
Standard wykończenia | standard deweloperski Ogrzewanie podłogowe |
Realizacja inwestycji | rozpoczęcie budowy w 3 kw. 2023 roku, inwestycja została oddana do użytkowania w 2 kw. 2025 roku |
Udogodnienia | plac zabaw, monitoring, teren ogrodzony, basen, klimatyzacja, sauna, winda, inteligentny dom, instalacja fotowoltaiczna, miejsce do ładowania samochodów elektrycznych, pompa ciepła, TV kablowa, internet |
Przyroda | w okolicy inwestycji znajduje się park, las, jezioro |
Charakterystyka energetyczna nieruchomości | informacja u dewelopera |
Rezerwacja i finanse
Rodzaj własności | Odrębna własność z własnością gruntu |
|---|---|
Wysokość czynszu | informacja u dewelopera |
Warunki rezerwacji | rezerwacja ustna na 5 dni |
Zabezpieczenie środków | Otwarty mieszkaniowy rachunek powierniczy |
Zdjęcia z budowy
Zobacz na jakim etapie budowy jest ta inwestycja
Lokalizacja inwestycji
Stacja kolejowa - Olsztyn Redykajny - 493 m
Przystanek Autobusowy - 220 m
Dojazd do centrum: pokaż
W pobliżu 1 km od tej inwestycji znajdują się:
4 kawiarnie i restauracje, 4 sklepy, 3 obiekty sportowe, 1 placówka edukacyjna, 1 plac zabaw
Przeczytaj więcej o lokalizacji
Olsztyn jest stolicą województwa warmińsko-mazurskiego. Znajduje się w nim siedziba władz ziemskiego powiatu olsztyńskiego, kurii archidiecezji warmińskiej i luterańskiej diecezji mazurskiej. Podzielone jest na kilkadziesiąt osiedli - jednostek pomocniczych gminy, które są najniższym, pomocniczym szczeblem samorządu miejskiego. Ich działanie obejmuje załatwianie spraw publicznych o zasięgu lokalnym. Około 30 procent powierzchni całego miasta zajmują lasy. Ponad połowa z tego to zwarty kompleks Lasu Miejskiego, który pełni głównie funkcje terenów rekreacyjno-wypoczynkowych oraz turystyczno-krajoznawczych.
Opis oferty
Nowe 2-pokojowe mieszkanie na sprzedaż o powierzchni 49,87 m² znajduje się w nowo budowanej inwestycji deweloperskiej Warmiński Port etap III na Likusach, ul. Bałtycka 91C (4 km od centrum Olsztyna).
Inwestycja jest realizowana przez D.DOM Sp. z o.o.
Cała inwestycja składa się z 2 budynków, w których łącznie znajdują się 23 nowe mieszkania.
Na sprzedaż pozostaje 8 ofert o powierzchni od 50 do 108 m².
W budynkach są 3 kondygnacje naziemne oraz 1 kondygnacja podziemna.
Inwestycja Warmiński Port etap III została wybudowana i oddana do użytkowania w 2 kw. 2025 roku.
Nowe mieszkanie o oznaczeniu 4 znajduje się na parterze i jest 1-poziomowe. Pomieszczenia mają 280 centymetrów wysokości. W mieszkaniu znajdują się 2 pokoje.
Do mieszkania przewidziano możliwość zakupu komórki lokatorskiej, którą można zagospodarować na spiżarnię, warsztat czy składzik.
Okna w mieszkaniu wychodzą na zachód, południe.
Okna wychodzące na południe gwarantują maksymalną ilość naturalnego światła, co czyni wnętrza jasnymi i ciepłymi. Dodatkowo południowa ekspozycja pomaga obniżyć koszty ogrzewania w zimie. Okna na południe są idealne dla osób pragnących cieszyć się jasnym otoczeniem, które sprzyja dobremu samopoczuciu oraz pozytywnej energii.
Zachodnia ekspozycja to gwarancja intensywnego popołudniowego światła, które nadaje wnętrzom przytulności i ciepła. Idealne dla miłośników słonecznych wieczorów, którzy pragną cieszyć się pięknymi zachodami słońca we własnym domu. Zachodnie światło podkreśla kolory i faktury w aranżacji wnętrz, tworząc atmosferę sprzyjającą relaksowi po długim dniu.
Dla przyszłych mieszkańców Warmiński Port etap III deweloper przewidział miejsca postojowe podziemne, miejsca postojowe naziemne.
Dzięki temu przyszli właściciele nie będą musieli poszukiwać wolnej przestrzeni parkingowej. Dodatkowo, miejsce postojowe w garażu podziemnym zabezpiecza przed niekorzystnymi warunkami atmosferycznymi.
Mieszkanie znajduje się w inwestycji Warmiński Port etap III, w której znajdują się w sprzedaży jeszcze 3 podobne nowe mieszkania.
D.DOM Sp. z o.o.
Adres biura sprzedaży:
ul Bałtycka 91F/7, OlsztynGodziny otwarcia biura sprzedaży:
- Poniedziałek: 08:00 - 17:00
- Wtorek: 08:00 - 17:00
- Środa: 08:00 - 17:00
- Czwartek: 08:00 - 17:00
- Piątek: 08:00 - 17:00





