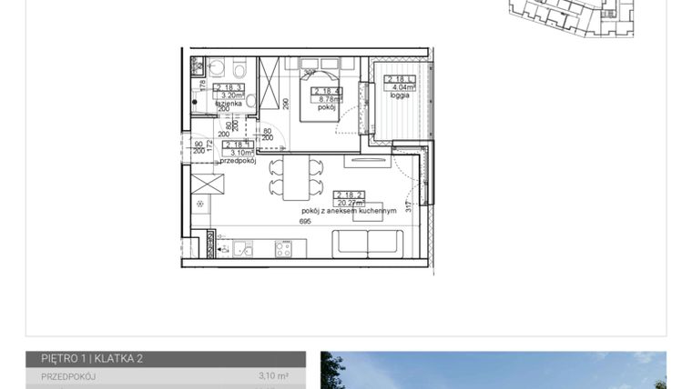
Mieszkanie na sprzedaż 2 pokoje o powierzchni 35,35 m² numer 49
Inwestycja:
Wave etap IIDeweloper:
Rutkowski Development Sp. J.
Inwestycja:
Wave etap IIDeweloper:
Rutkowski Development Sp. J.Giżycko, ul. Armii Krajowej
Giżycko, ul. Armii Krajowej
Termin oddania
3 kw. 2026
Ilość pokoi
2 pokoje
Metraż
35,35 m²
Piętro
1 piętro
Kuchnia
otwarta kuchnia
Wysokość pomieszczeń
od 260 do 270 cm wysokości
Ilość poziomów
1 poziom
Oznaczenie oferty
49

Raport o deweloperze
Poznaj dewelopera bliżej! Pobierz raport, w którym znajdziesz kluczowe informacje o firmie, jej doświadczeniu, nagrodach oraz aktualnych i zrealizowanych inwestycjach.
Budynek i otoczenie
Miejsca postojowe | |
|---|---|
Komórki lokatorskie | dostępne (165) |
Standard wykończenia | standard deweloperski podwyższony Ogrzewanie miejskie |
Realizacja inwestycji | rozpoczęcie budowy w 4 kw. 2024 roku, planowane oddanie do użytkowania w 3 kw. 2026 roku |
Udogodnienia | winda, plac zabaw, internet, monitoring, videodomofon, miejsca parkingowe dla gości, patio / dziedziniec, przystosowane dla niepełnosprawnych, TV kablowa |
Przyroda | w okolicy inwestycji znajduje się jezioro |
Charakterystyka energetyczna nieruchomości | informacja u dewelopera |
Rezerwacja i finanse
Rodzaj własności | Odrębna własność z użytkowaniem wieczystym gruntu |
|---|---|
Wysokość czynszu | informacja u dewelopera |
Warunki rezerwacji | Informacja u dewelopera |
Zabezpieczenie środków | Otwarty mieszkaniowy rachunek powierniczy |
Zdjęcia z budowy
Zobacz na jakim etapie budowy jest ta inwestycja
Lokalizacja inwestycji
Stacja kolejowa - Giżycko - 283 m
Przystanek Autobusowy - 189 m
Dojazd do centrum: pokaż
W pobliżu 1 km od tej inwestycji znajdują się:
44 kawiarnie i restauracje, 32 sklepy, 33 obiekty sportowe, 7 placówek medycznych, 30 placówek edukacyjnych, 14 placów zabaw
Przeczytaj więcej o lokalizacji
Giżycko to miasto położone w województwie warmińsko-mazurskim. Stolica Krainy Wielkich Jezior Mazurskich leży na wąskim przesmyku pomiędzy jeziorami Niegocin i Kisajno. Część miasta jest zlokalizowana na Wyspie Giżyckiej. Miasto jest największym ośrodkiem wczasowo-turystycznym na Mazurach. Znajduje się tu kilka plaż i liczne miejsca do wędkowania. Giżycko określane jest mianem Wodniackiej Stolicy Polski. Malowniczy krajobraz, czysta woda i zdrowe powietrze przyciągają co roku kilka tysięcy osób. Giżycko to miasto, w którym miłośnicy różnego rodzaju sportów i aktywności poczują się jak u siebie w domu. Miasto posiada dobrze rozbudowaną infrastrukturę handlowo-usługową. Na terenie Giżycka znajdują się liczne centra handlowe. Pod koniec lata organizowane są imprezy związane z obchodami Dni Giżycka. Dodatkowym atutem jest bogata oferta edukacyjna. Miasto posiada kilka szkół podstawowych, w tym Szkołę Muzyczną I stopnia, kilka szkół średnich oraz szkoły wyższe.
Opis oferty
Nowe 2-pokojowe mieszkanie na sprzedaż o powierzchni 35,35 m² znajduje się w nowo budowanej inwestycji deweloperskiej Wave etap II w Giżycku, ul. Armii Krajowej (0.7 km od centrum Giżycka).
Inwestycja jest realizowana przez Rutkowski Development Sp. J.
Cała inwestycja składa się z 1 budynku, w którym łącznie znajduje się 81 nowych mieszkań.
Na sprzedaż pozostaje 49 ofert o powierzchni od 35 do 114 m².
W budynku są 4 kondygnacje naziemne oraz 1 kondygnacja podziemna.
Inwestycja Wave etap II jest w trakcie budowy z planowanym na 3 kw. 2026 roku terminem oddania do użytkowania.
Nowe mieszkanie o oznaczeniu 49 znajduje się na 1 piętrze i jest 1-poziomowe. Pomieszczenia mają od 260 do 270 centymetrów wysokości. W mieszkaniu znajdują się 2 pokoje.
Do mieszkania przewidziano możliwość zakupu komórki lokatorskiej, którą można zagospodarować na spiżarnię, warsztat czy składzik.
Dla przyszłych mieszkańców Wave etap II deweloper przewidział miejsca postojowe podziemne.
Dzięki temu przyszli właściciele nie będą musieli poszukiwać wolnej przestrzeni parkingowej. Dodatkowo, miejsce postojowe w garażu podziemnym zabezpiecza przed niekorzystnymi warunkami atmosferycznymi.
Opis Inwestycji
Świta, słyszysz śpiew ptaków i rechot żab, jeszcze kilka kroków i poczujesz wiatr w żaglach i słońce na twarzy. Łódź czeka, widzisz jak spokojnie kołysze się na wodzie, gdy wchodzisz do portu. Odcumowujesz, płyniesz. Odwracasz głowę w stronę lądu.
Twój apartament żegna Cię czerwonym uśmiechem róż na tarasie.
Poznaj Wave – niech poniesie Cię fala przyjemności z mieszkania na Mazurach.
Kaskadowy kształt budynku Wave oparto na kwadracie z otwartym dziedzińcem w środku. Ciekawe architektoniczne rozwiązanie przypominające z profilu falę, nadaje projektowi niepowtarzalnego charakteru, wyróżniającego się na tle okolicznej, miejskiej zabudowy. W ofercie znajduje się szeroki wybór metraży od około 30 m² do 113 m², co stanowi doskonałą propozycję do zamieszkania zarówno dla singli, jak i rodzin z dziećmi, a ze względu na lokalizację do inwestycji.
Mieszkania z antresolą zapewniającą dodatkową przestrzeń z pewnością zainteresują wielbicieli dobrego designu.
*W OSTATNIĄ SOBOTĘ MIESIĄCA WSZYSTKIE BIURA SPRZEDAŻY SĄ OTWARTE W GODZINACH 9-14. ZAPRASZAMY!*
Mieszkanie znajduje się w inwestycji Wave etap II, w której znajduje się w sprzedaży jeszcze 17 podobnych nowych mieszkań.
Rutkowski Development Sp. J.
Strona internetowa inwestycjiAdres biura sprzedaży:
ul. Armii Krajowej 7B / U6, 19-300 EłkGodziny otwarcia biura sprzedaży:
- Poniedziałek: 08:00 - 17:00
- Wtorek: 08:00 - 17:00
- Środa: 08:00 - 17:00
- Czwartek: 08:00 - 17:00
- Piątek: 08:00 - 17:00
- Sobota: 09:00 - 14:00
Salony otwarte w każdą ostatnią sobotę miesiąca!





