Mieszkanie na sprzedaż 4 pokoje o powierzchni 82,26 m² numer 67
Inwestycja:
Medyków 32Deweloper:
Platforma Mieszkaniowa
Inwestycja:
Medyków 32Deweloper:
Platforma MieszkaniowaKatowice, Ligota-Panewniki, ul. Medyków 32
Katowice, Ligota-Panewniki, ul. Medyków 32
Termin oddania
Gotowe
Ilość pokoi
4 pokoje
Metraż
82,26 m²
Piętro
3 piętro
Strona świata
wschód, północ
Kuchnia
otwarta kuchnia
Wysokość pomieszczeń
od 260 do 280 cm wysokości
Ilość poziomów
1 poziom
Oznaczenie oferty
67

Raport o deweloperze
Poznaj dewelopera bliżej! Pobierz raport, w którym znajdziesz kluczowe informacje o firmie, jej doświadczeniu, nagrodach oraz aktualnych i zrealizowanych inwestycjach.
Budynek i otoczenie
Miejsca postojowe | |
|---|---|
Standard wykończenia | standard deweloperski |
Realizacja inwestycji | rozpoczęcie budowy w 3 kw. 2023 roku, inwestycja została oddana do użytkowania w 4 kw. 2025 roku |
Udogodnienia | winda, instalacja fotowoltaiczna |
Przyroda | w okolicy inwestycji znajduje się park, las |
Charakterystyka energetyczna nieruchomości |
|
Rezerwacja i finanse
Rodzaj własności | Odrębna własność z własnością gruntu |
|---|---|
Wysokość czynszu | informacja u dewelopera |
Warunki rezerwacji | Informacja u dewelopera |
Zabezpieczenie środków | Informacja u dewelopera |
Zdjęcia z budowy
Zobacz na jakim etapie budowy jest ta inwestycja
Lokalizacja inwestycji
Stacja kolejowa - Katowice Piotrowice - 1208 m
Przystanek Tramwajowy - 2645 m
Przystanek Autobusowy - 90 m
Dojazd do centrum: pokaż
W pobliżu 1 km od tej inwestycji znajdują się:
22 kawiarnie i restauracje, 24 sklepy, 32 obiekty sportowe, 21 placówek medycznych, 13 placówek edukacyjnych, 11 placów zabaw
Przeczytaj więcej o lokalizacji
Katowice to miasto w województwie śląskim o powierzchni 164 km kw i liczbie mieszkańców ponad 300 tys. osób. Zabudowa miasta to głównie powojenne bloki i typowe dla Śląska zabytkowe kamienice. Katowice dzielą się na dzielnice pogrupowane w zespoły dzielnic: zespół północny, śródmiejski, południowy, wschodni i zachodni. Miasto jest wojewódzkim centrum medycznym, z kilkunastoma szpitalami, w tym Centralnym Szpitalem Klinicznym im. Kornela Gibińskiego, Szpitalem Klinicznym im. Andrzeja Mieleckiego, Uniwersyteckim Centrum Okulistyki i Onkologii, Szpitalem Klinicznym nr 6 czy Górnośląskim Centrum Zdrowia Dziecka. Działają tu też liczne uniwersytety, takie jak Akademia Wychowania Fizycznego im. Jerzego Kukuczki, Akademia Sztuk Pięknych czy wydziały Politechniki Śląskiej.
Opis oferty
Nowe 4-pokojowe mieszkanie na sprzedaż o powierzchni 82,26 m² znajduje się w nowo budowanej inwestycji deweloperskiej Medyków 32 w Ligocie, ul. Medyków 32 (6.7 km od centrum Katowic).
Sprzedaż prowadzi Platforma Mieszkaniowa.
Cała inwestycja składa się z 1 budynku, w którym łącznie znajduje się 90 nowych mieszkań.
Na sprzedaż pozostaje 14 ofert o powierzchni od 41 do 83 m².
W budynku jest 5 kondygnacji naziemnych oraz 1 kondygnacja podziemna.
Inwestycja Medyków 32 została wybudowana i oddana do użytkowania w 4 kw. 2025 roku.
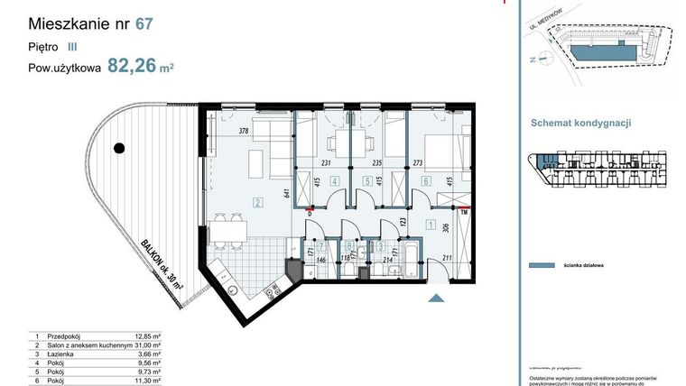
Nowe mieszkanie o oznaczeniu 67 znajduje się na 3 piętrze i jest 1-poziomowe. Pomieszczenia mają od 260 do 280 centymetrów wysokości. W mieszkaniu znajdują się 4 pokoje.
Okna w mieszkaniu wychodzą na wschód, północ.
Północna ekspozycja to idealny wybór dla osób ceniących przytulne i klimatyczne wnętrza. Delikatne, rozproszone światło sprzyja harmonii i stwarza doskonałe warunki do relaksu lub pracy. Okna na północ zapewnią równomierne oświetlenie przez cały dzień.
Wschodnia orientacja zapewnia dostęp do łagodnego porannego światła, idealnego dla rozpoczęcia dnia pełnego energii. Wnętrza pozostają jasne, ale nieprzegrzane, co sprzyja utrzymaniu komfortowej temperatury. Przebywanie w pomieszczeniu z oknami na wschód inspiruje do działania i pozytywnie wpływa na poranny rytuał.
Dla przyszłych mieszkańców Medyków 32 deweloper przewidział miejsca postojowe podziemne, miejsca postojowe naziemne.
Dzięki temu przyszli właściciele nie będą musieli poszukiwać wolnej przestrzeni parkingowej. Dodatkowo, miejsce postojowe w garażu podziemnym zabezpiecza przed niekorzystnymi warunkami atmosferycznymi.
Opis Inwestycji
Okazyjna cena
Tereny zielone
Inwestycja Apartamenty Medyków 32 oferuje 90 mieszkań o zróżnicowanych metrażach, od 40 do 82 m2, które zapewniają przestrzeń dostosowaną do indywidualnych potrzeb każdego mieszkańca. Przestronne tarasy to doskonałe miejsce na poranną kawę z widokiem na otaczającą przyrodę, a duże przeszklenia okien zapewniają obfitą ilość naturalnego światła.
Budynek Apartamenty Medyków 32 to prawdziwa perełka architektoniczna. Został zaprojektowany w duchu modernizmu, co nadaje mu wyjątkowy charakter i elegancję. Wnętrza mieszkań to kwintesencja komfortu i funkcjonalności, przy jednoczesnym zachowaniu estetycznego piękna. Dbałość o detale architektoniczne i nowoczesne rozwiązania technologiczne sprawiają, że jest to miejsce, które zachwyca zarówno wyglądem, jak i funkcjonalnością.
W Apartamentach Medyków 32 znalazło się wiele udogodnień dla mieszkańców. Dwie windy, parking podziemny, doskonale zaprojektowana mała architektura zapewniają wygodę i komfort codziennego życia. Dopełnieniem jest elegancka i nowoczesna elewacja, która nadaje budynkowi wyjątkowego charakteru.
Ekologiczne aspekty inwestycji są niezwykle ważne. Położone w niedalekim sąsiedztwie Park Zadole, Dolina Ślepiotki oraz kompleks Lasów Panewnickich to miejsca, gdzie natura spotyka się z nowoczesnością. Inwestycja jest także wyposażona w instalację fotowoltaiczną, co pozwala na bardziej efektywne wykorzystanie energii słonecznej i zmniejszenie wpływu na środowisko.
Mieszkanie znajduje się w inwestycji Medyków 32, w której znajdują się w sprzedaży jeszcze 4 podobne nowe mieszkania.





