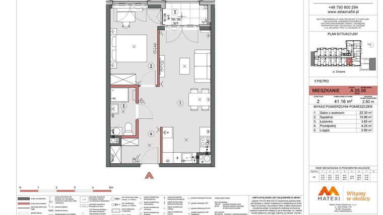
Mieszkanie na sprzedaż 2 pokoje o powierzchni 41,16 m² numer A.05.06
Inwestycja:
Żelazna 54Deweloper:
Matexi Polska Sp. z o.o.
Inwestycja:
Żelazna 54Deweloper:
Matexi Polska Sp. z o.o.Warszawa, Wola, Mirów, ul. Żelazna 54
Warszawa, Wola, Mirów, ul. Żelazna 54
Termin oddania
1 kw. 2026
Ilość pokoi
2 pokoje
Metraż
41,16 m²
Piętro
5 piętro
Kuchnia
otwarta kuchnia
Wysokość pomieszczeń
od 280 do 290 cm wysokości
Ilość poziomów
1 poziom
Oznaczenie oferty
A.05.06

Raport o deweloperze
Poznaj dewelopera bliżej! Pobierz raport, w którym znajdziesz kluczowe informacje o firmie, jej doświadczeniu, nagrodach oraz aktualnych i zrealizowanych inwestycjach.
Budynek i otoczenie
Miejsca postojowe | |
|---|---|
Komórki lokatorskie | dostępne (42): nieobowiązkowy zakup |
Standard wykończenia | standard deweloperski Ogrzewanie miejskie |
Realizacja inwestycji | rozpoczęcie budowy w 1 kw. 2024 roku, planowane oddanie do użytkowania w 1 kw. 2026 roku |
Udogodnienia | ochrona całodobowa, monitoring, usługi concierge, klimatyzacja, recepcja, usługi w budynku, winda, instalacja fotowoltaiczna |
Przyroda | informacja u dewelopera |
Charakterystyka energetyczna nieruchomości |
|
Rezerwacja i finanse
Rodzaj własności | Odrębna własność z użytkowaniem wieczystym gruntu |
|---|---|
Wysokość czynszu | informacja u dewelopera |
Warunki rezerwacji | Informacja u dewelopera |
Zabezpieczenie środków | Otwarty mieszkaniowy rachunek powierniczy |
Zdjęcia z budowy
Zobacz na jakim etapie budowy jest ta inwestycja
Lokalizacja inwestycji
Metro - Rondo ONZ - 465 m
Przystanek Tramwajowy - 223 m
Przystanek Autobusowy - 57 m
Dojazd do centrum: pokaż
W pobliżu 1 km od tej inwestycji znajdują się:
426 kawiarni i restauracji, 203 sklepy, 65 obiektów sportowych, 102 placówki medyczne, 81 placówek edukacyjnych, 43 place zabaw
Przeczytaj więcej o lokalizacji
Znajdująca się w lewobrzeżnej części Warszawy, w bezpośrednim sąsiedztwie Śródmieścia, dzielnica Wola należy do najgęściej i najliczniej zaludnionych rejonów miasta. Dawny teren przemysłowy, na którym niegdyś powstały wielkie blokowiska, do dnia dzisiejszego stanowi skupisko wysokościowców. Współczesna architektura to przede wszystkim nowoczesne, postmodernistyczne biurowce, jak Atrium, budynki Kredyt Banku czy najwyższy na Woli drapacz – Warsaw Trade Tower. Atrakcyjne położenie dzielnicy sprzyja również dynamicznemu rozwojowi wysokiego budownictwa mieszkaniowego. Współczesna Wola to także ważny ośrodek życia kulturalnego, gdyż znajdują się tu znane w kraju i na świecie placówki muzealne: Muzeum Powstania Warszawskiego, Muzeum Historii Żydów Polskich oraz Muzeum Więzienia Pawiak, a ponadto: teatry, galerie sztuki i klubokawiarnie. Na tereny zielone dzielnicy składają się 4 parki i Lasek na Kole, a najważniejsze arterie to Al. Jana Pawła II i Trasa W-Z.
Opis oferty
Nowe 2-pokojowe mieszkanie na sprzedaż o powierzchni 41,16 m² znajduje się w nowo budowanej inwestycji deweloperskiej Żelazna 54 na Mirowie, ul. Żelazna 54 (1.4 km od centrum Warszawy).
Inwestycja jest realizowana przez Matexi Polska Sp. z o.o.
Cała inwestycja składa się z 1 budynku, w którym łącznie znajduje się 141 nowych mieszkań.
Na sprzedaż pozostają 54 oferty o powierzchni od 29 do 131 m².
W budynku jest 9 kondygnacji naziemnych oraz 1 kondygnacja podziemna.
Inwestycja Żelazna 54 jest w trakcie budowy z planowanym na 1 kw. 2026 roku terminem oddania do użytkowania.
Nowe mieszkanie o oznaczeniu A.05.06 znajduje się na 5 piętrze i jest 1-poziomowe. Pomieszczenia mają od 280 do 290 centymetrów wysokości. W mieszkaniu znajdują się 2 pokoje.
Do mieszkania przewidziano możliwość zakupu komórki lokatorskiej, którą można zagospodarować na spiżarnię, warsztat czy składzik.
Dla przyszłych mieszkańców Żelazna 54 deweloper przewidział miejsca postojowe podziemne.
Dzięki temu przyszli właściciele nie będą musieli poszukiwać wolnej przestrzeni parkingowej. Dodatkowo, miejsce postojowe w garażu podziemnym zabezpiecza przed niekorzystnymi warunkami atmosferycznymi.
Opis Inwestycji
Tereny zielone
Na progu Żelaznej 54. wita nas estetyczna wnęka, powstała przez cofnięcie elewacji i stylowe drzwi karuzelowe, nawiązujące do klasyki prestiżowego budownictwa. Za nimi czeka przestronny, elegancki hol, urządzony z bezpretensjonalnym rozmachem. Przeszklone, wysokie witryny zapraszają do lokali handlowych, dostępnych z poziomu ulicy. Lokale usługowe usytuowane w głębi kamienicy dostępne są z holu głównego, zapewniając klientom kameralną atmosferę i kojący zmysły widok na malowniczy, zazieleniony dziedziniec. Na wyższe piętra, oprócz stylowej windy, zapraszają klatki schodowe z portalami na pełną wysokość i artystyczną aranżacją ścian. To wnętrze, które już na pierwszy rzut oka urzeka nienarzucającą się, lecz niepodważalną elegancją. Wystarczy spojrzeć, by dostrzec najwyższą jakość użytych materiałów i dbałość o najdrobniejsze detale.
W imponującej bryle 8-piętrowej kamienicy znajdzie się przestrzeń dla 141 mieszkań o zróżnicowanych metrażach oraz różnej liczbie pomieszczeń (od 1- do 4 pokojowych). Wyższa niż standardowa wysokość lokali mieszkalnych, od 280 do 300 cm, pozwoli na wprowadzenie niecodziennych i oryginalnych rozwiązań aranżacyjnych.
Mieszkanie znajduje się w inwestycji Żelazna 54, w której znajduje się w sprzedaży jeszcze 29 podobnych nowych mieszkań.
Matexi Polska Sp. z o.o.
Strona internetowa inwestycjiAdres biura sprzedaży:
al. Jana Pawła II 29, WarszawaGodziny otwarcia biura sprzedaży:
- Poniedziałek: 09:00 - 19:00
- Wtorek: 09:00 - 19:00
- Środa: 12:00 - 17:00
- Czwartek: 09:00 - 19:00
- Piątek: 09:00 - 19:00
- Sobota: 09:00 - 14:00





