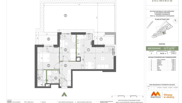
Mieszkanie na sprzedaż 3 pokoje o powierzchni 64,93 m² numer F2.C.00.02
Inwestycja:
Sady Żoliborz IIDeweloper:
Matexi Polska Sp. z o.o.
Inwestycja:
Sady Żoliborz IIDeweloper:
Matexi Polska Sp. z o.o.Warszawa, Żoliborz, Sady Żoliborskie, ul. Krasińskiego 43
Warszawa, Żoliborz, Sady Żoliborskie, ul. Krasińskiego 43
Termin oddania
4 kw. 2026
Ilość pokoi
3 pokoje
Metraż
64,93 m²
Piętro
Parter
Powierzchnie dodatkowe
Taras, Ogródek
Kuchnia
otwarta kuchnia
Wysokość pomieszczeń
272 cm wysokości
Ilość poziomów
1 poziom
Oznaczenie oferty
F2.C.00.02

Raport o deweloperze
Poznaj dewelopera bliżej! Pobierz raport, w którym znajdziesz kluczowe informacje o firmie, jej doświadczeniu, nagrodach oraz aktualnych i zrealizowanych inwestycjach.
Budynek i otoczenie
Miejsca postojowe | |
|---|---|
Komórki lokatorskie | dostępne (41): Informacje u dewelopera |
Standard wykończenia | standard deweloperski Ogrzewanie miejskie |
Realizacja inwestycji | rozpoczęcie budowy w 1 kw. 2025 roku, planowane oddanie do użytkowania w 4 kw. 2026 roku |
Udogodnienia | usługi w budynku, winda, rowerownia, instalacja fotowoltaiczna |
Przyroda | informacja u dewelopera |
Charakterystyka energetyczna nieruchomości | informacja u dewelopera |
Rezerwacja i finanse
Rodzaj własności | Odrębna własność z użytkowaniem wieczystym gruntu |
|---|---|
Wysokość czynszu | informacja u dewelopera |
Warunki rezerwacji | Informacja u dewelopera |
Zabezpieczenie środków | Informacja u dewelopera |

Zdjęcia z budowy i widok 3D
Zobacz na jakim etapie budowy jest ta inwestycja
Lokalizacja inwestycji
Metro - Marymont - 1076 m
Przystanek Tramwajowy - 279 m
Przystanek Autobusowy - 126 m
Dojazd do centrum: pokaż
W pobliżu 1 km od tej inwestycji znajdują się:
71 kawiarni i restauracji, 80 sklepów, 63 obiekty sportowe, 57 placówek medycznych, 60 placówek edukacyjnych, 70 placów zabaw
Przeczytaj więcej o lokalizacji
Najmniejsza wśród warszawskich dzielnic znajduje się nad samą Wisłą, w lewobrzeżnej części miasta i słynie z piękna willowej zabudowy harmonijnie wkomponowanej w zieleń parków i ogrodów, stąd nazwa Żoliborz, czyli „piękny brzeg” (joli bord). Żoliborz to miejsce kameralne i pełne uroku – na jedną osobę przypada 50 m2 zieleni, a zarazem dzielnica ekskluzywna, w której mieszkały niegdyś elity intelektualne. Oprócz willi, występuje tutaj niska zabudowa wielorodzinna, a w postindustrialnej części powstają nowe osiedla mieszkaniowe. Wysokie bloki znajdują się jedynie na Marymoncie. Do najpiękniejszych zakątków należy miasto-ogród Żoliborz Oficerski, ciekawym rozwiązaniem architektonicznym jest Centrum Sztuki Fort Sokolnickiego, a ważnym miejscem pamięci – Cmentarz na Powązkach. Osadzona na piaszczystej skarpie plaża z Boogaloo Beach Barem to popularna strefa rekreacyjna. Atutem Żoliborza jest niewielka odległość do centrum, gdzie w kilka minut można dojechać autobusem, tramwajem lub metrem.
Opis oferty
Nowe 3-pokojowe mieszkanie na sprzedaż o powierzchni 64,93 m² znajduje się w nowo budowanej inwestycji deweloperskiej Sady Żoliborz II na Sadach Żoliborskich, ul. Krasińskiego 43 (4.6 km od centrum Warszawy).
Inwestycja jest realizowana przez Matexi Polska Sp. z o.o.
Cała inwestycja składa się z 1 budynku, w którym łącznie znajduje się 66 nowych mieszkań.
Na sprzedaż pozostają 32 oferty o powierzchni od 38 do 127 m².
W budynku jest 5 kondygnacji naziemnych oraz 2 kondygnacje podziemne.
Inwestycja Sady Żoliborz II jest w trakcie budowy z planowanym na 4 kw. 2026 roku terminem oddania do użytkowania.
Nowe mieszkanie o oznaczeniu F2.C.00.02 znajduje się na parterze i jest 1-poziomowe. Pomieszczenia mają 272 centymetrów wysokości. W mieszkaniu znajdują się 3 pokoje.
Do mieszkania przewidziano możliwość zakupu komórki lokatorskiej, którą można zagospodarować na spiżarnię, warsztat czy składzik.
Dla przyszłych mieszkańców Sady Żoliborz II deweloper przewidział miejsca postojowe podziemne.
Dzięki temu przyszli właściciele nie będą musieli poszukiwać wolnej przestrzeni parkingowej. Dodatkowo, miejsce postojowe w garażu podziemnym zabezpiecza przed niekorzystnymi warunkami atmosferycznymi.
Opis Inwestycji
Tereny zielone
Pow. dodatkowe
Sady Żoliborz to nowy projekt Matexi powstający u zbiegu ulic Anny German i Krasińskiego, a który zaprojektowany został z myślą o szukających wysokiego standardu, wygody i nowoczesnych rozwiązań w prostej i eleganckiej oprawie architektonicznej.
Układ przestrzenny dwuetapowej inwestycji stworzą trzy budynki mieszkalne przeplecione wewnętrznymi dziedzińcami. Projekt pierwszego etapu zakłada budowę dwóch budynków wielorodzinnych o wysokości od 5 do 8 kondygnacji na łącznie 112 lokali o różnej powierzchni użytkowej, z 2-poziomowym parkingiem podziemnym na 134 miejsca postojowe i 4 lokalami usługowymi w parterach budynków. Wśród mieszkań będą mieszkania 1-, 2-, 3- i 4-pokojowe, a większość mieszkań na parterze będzie miała przynależne, prywatne ogródki. W projekcie przygotowanym przez pracownię architektury LATERGRUPA zaplanowaliśmy duży, zielony taras na piątej kondygnacji jednego z budynków. Przestrzeń ta będzie ogólnodostępna.
Osiedle nie będzie ogrodzone, ale układ budynków, jak i planowane nasadzenia stworzą spójną architektonicznie enklawę oddzieloną od najbliższego sąsiedztwa.
W obszarze całego przedsięwzięcia znalazło się miejsce dla terenu rekreacyjnego, placu zabaw oraz wydzielonych stref wypoczynkowych z małą architekturą, a także ogródka gastronomicznego.
Mieszkanie znajduje się w inwestycji Sady Żoliborz II, w której znajduje się w sprzedaży jeszcze 14 podobnych nowych mieszkań.
Matexi Polska Sp. z o.o.
Strona internetowa inwestycjiAdres biura sprzedaży:
Al. Jana Pawła II 29, WarszawaGodziny otwarcia biura sprzedaży:
- Poniedziałek: 09:00 - 19:00
- Wtorek: 09:00 - 19:00
- Środa: 12:00 - 17:00
- Czwartek: 09:00 - 19:00
- Piątek: 09:00 - 19:00
- Sobota: 09:00 - 14:00





