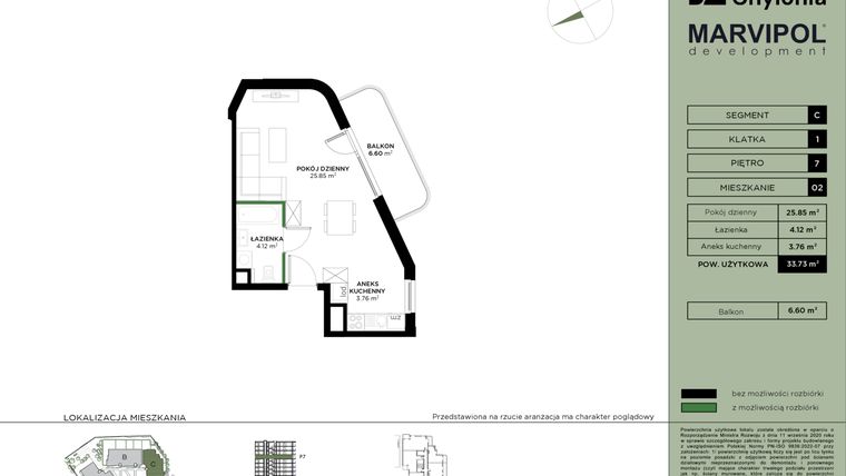
Mieszkanie na sprzedaż 1 pokój o powierzchni 33,73 m² numer C-7-02
Inwestycja:
Nowa ChyloniaDeweloper:
Marvipol Development
Inwestycja:
Nowa ChyloniaDeweloper:
Marvipol DevelopmentGdynia, Chylonia, ul. Pucka 4
Gdynia, Chylonia, ul. Pucka 4
Oddanie
4 kw. 2027
Ilość pokoi
1 pokój
Metraż
33,73 m²
Piętro
7 piętro
Strona świata
zachód, południe
Kuchnia
otwarta kuchnia
Wysokość
262 cm wysokości
Poziomy
1 poziom
Oznaczenie oferty
C-7-02

Raport o deweloperze
Poznaj dewelopera bliżej! Pobierz raport, w którym znajdziesz kluczowe informacje o firmie, jej doświadczeniu, nagrodach oraz aktualnych i zrealizowanych inwestycjach.
Budynek i otoczenie
Miejsca postojowe | |
|---|---|
Komórki lokatorskie | dostępne (214) |
Standard wykończenia | standard deweloperski |
Realizacja inwestycji | rozpoczęcie budowy w 4 kw. 2025 roku, planowane oddanie do użytkowania w 4 kw. 2027 roku |
Udogodnienia | monitoring, teren ogrodzony, winda, inteligentny dom, sala fitness, wózkarnia |
Przyroda | w okolicy inwestycji znajduje się park |
Charakterystyka energetyczna nieruchomości | informacja u dewelopera |
Rezerwacja i finanse
Rodzaj własności | Odrębna własność z własnością gruntu |
|---|---|
Wysokość czynszu | informacja u dewelopera |
Warunki rezerwacji | Informacja u dewelopera |
Zabezpieczenie środków | Informacja u dewelopera |
Postępy i zdjęcia z budowy
Zobacz na jakim etapie budowy jest ta inwestycja
Lokalizacja inwestycji
Stacja kolejowa - Gdynia Chylonia - 390 m
Przystanek Autobusowy - 490 m
Dojazd do centrum: pokaż
W pobliżu 1 km od tej inwestycji znajdują się:
14 kawiarni i restauracji, 52 sklepy, 19 obiektów sportowych, 3 placówki medyczne, 18 placówek edukacyjnych, 22 place zabaw
Przeczytaj więcej o lokalizacji
Chylonia to największa dzielnica Gdyni pod względem liczby ludności: mieszka tu około 25 300 osób. Zajmuje powierzchnię prawie 4 kilometrów kwadratowych. Gęstość zaludnienia należy do najwyższych w Gdyni i wynosi 6 381 osób na kilometr kwadratowy (według danych z końca 2011 roku). Zabudowę Chyloni stanowią przede wszystkim bloki i domy jednorodzinne. Największym terenem rekreacyjnym jest park Kiloński, w którym wyznaczono alejki spacerowe, ścieżki rowerowe, trzy boiska i place zabaw. Z dzielnicą sąsiadują lasy Trójmiejskiego Parku Krajobrazowego. Do największych zalet mieszkania na Chyloni należą dobrze rozwinięta infrastruktura usługowa i bliskość Śródmieścia.
Opis oferty
Nowe 1-pokojowe mieszkanie na sprzedaż o powierzchni 33,73 m² znajduje się w nowo budowanej inwestycji deweloperskiej Nowa Chylonia na Chyloni, ul. Pucka 4 (5.4 km od centrum Gdyni).
Inwestycja jest realizowana przez Marvipol Development.
Cała inwestycja składa się z 1 budynku, w którym łącznie znajduje się 214 nowych mieszkań.
Na sprzedaż pozostaje 186 ofert o powierzchni od 25 do 72 m².
W budynku jest 11 kondygnacji naziemnych oraz 2 kondygnacje podziemne.
Inwestycja Nowa Chylonia jest w trakcie budowy z planowanym na 4 kw. 2027 roku terminem oddania do użytkowania.
Nowe mieszkanie o oznaczeniu C-7-02 znajduje się na 7 piętrze i jest 1-poziomowe. Pomieszczenia mają 262 centymetrów wysokości. W mieszkaniu znajduje się 1 pokój.
Do mieszkania przewidziano możliwość zakupu komórki lokatorskiej, którą można zagospodarować na spiżarnię, warsztat czy składzik.
Okna w mieszkaniu wychodzą na zachód, południe.
Okna wychodzące na południe gwarantują maksymalną ilość naturalnego światła, co czyni wnętrza jasnymi i ciepłymi. Dodatkowo południowa ekspozycja pomaga obniżyć koszty ogrzewania w zimie. Okna na południe są idealne dla osób pragnących cieszyć się jasnym otoczeniem, które sprzyja dobremu samopoczuciu oraz pozytywnej energii.
Zachodnia ekspozycja to gwarancja intensywnego popołudniowego światła, które nadaje wnętrzom przytulności i ciepła. Idealne dla miłośników słonecznych wieczorów, którzy pragną cieszyć się pięknymi zachodami słońca we własnym domu. Zachodnie światło podkreśla kolory i faktury w aranżacji wnętrz, tworząc atmosferę sprzyjającą relaksowi po długim dniu.
Dla przyszłych mieszkańców Nowa Chylonia deweloper przewidział miejsca postojowe podziemne.
Dzięki temu przyszli właściciele nie będą musieli poszukiwać wolnej przestrzeni parkingowej. Dodatkowo, miejsce postojowe w garażu podziemnym zabezpiecza przed niekorzystnymi warunkami atmosferycznymi.
Opis Inwestycji
Okazyjna cena
Nowa Chylonia to inwestycja mieszkaniowa powstająca w Gdyni przy ul. Puckiej 4. W ramach projektu zaplanowano budowę nowoczesnego, 10-piętrowego budynku, w którym znajdzie się 214 mieszkań o zróżnicowanych układach – od 1- do 4-pokojowych – o powierzchniach od 25 do 83 m².
Architektura budynku inspirowana jest modernizmem – łączy funkcjonalność z elegancką prostotą form. Części wspólne zaprojektowano w stonowanej, harmonijnej kolorystyce.
Mieszkańcy będą mieli do dyspozycji liczne udogodnienia: klub mieszkańca, prywatną siłownię, ogród zewnętrzny ze strefami relaksu, stojaki na rowery, rowerownię ze stacją napraw oraz warsztat do majsterkowania.
Mieszkanie znajduje się w inwestycji Nowa Chylonia, w której znajduje się w sprzedaży jeszcze 50 podobnych nowych mieszkań.
Marvipol Development
Strona internetowa inwestycjiAdres biura sprzedaży:
Gdynia, ul. Pucka 4Godziny otwarcia biura sprzedaży:
- Poniedziałek: 09:00 - 18:00
- Wtorek: 09:00 - 18:00
- Środa: 09:00 - 18:00
- Czwartek: 09:00 - 18:00
- Piątek: 09:00 - 18:00
- Sobota: 10:00 - 14:00
Artykuły powiązane:
:format(jpg)/articles/gallery/image/6677/45c84a.jpg)
Apartamenty pokazowe, czyli jak zwizualizować wyobrażenia
Jak powinien wyglądać apartament pokazowy? Zobacz propozycję dewelopera Marvipol. Kupując mieszkanie, nie lada wyzwaniem okazuje się zagospodarowanie w nim przestrzeni, tak aby była funkcjonalna i estetyczna. Problem polega na tym, że na etapie decydowania się na zakup mieszkania z rynku...
17 sierpnia 2016
Publicon PR





