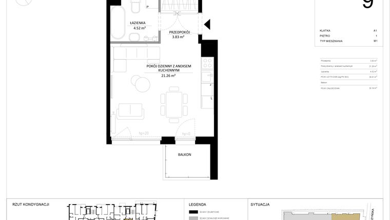
Mieszkanie na sprzedaż 1 pokój o powierzchni 29,61 m² numer 9
Inwestycja:
SILODeweloper:
Imperial Capital
Inwestycja:
SILODeweloper:
Imperial CapitalKraków, Dębniki, ul. Kobierzyńska
Kraków, Dębniki, ul. Kobierzyńska
Termin oddania
3 kw. 2027
Ilość pokoi
1 pokój
Metraż
29,61 m²
Piętro
1 piętro
Powierzchnie dodatkowe
Balkon
Kuchnia
otwarta kuchnia
Wysokość pomieszczeń
600 cm wysokości
Ilość poziomów
2 poziomy
Oznaczenie oferty
9

Raport o deweloperze
Poznaj dewelopera bliżej! Pobierz raport, w którym znajdziesz kluczowe informacje o firmie, jej doświadczeniu, nagrodach oraz aktualnych i zrealizowanych inwestycjach.
Budynek i otoczenie
Miejsca postojowe | |
|---|---|
Komórki lokatorskie | dostępne (67): nieobowiązkowy zakup; od 2,66 do 5,09 m2 |
Standard wykończenia | standard deweloperski podwyższony Ogrzewanie miejskie |
Realizacja inwestycji | oddanie do użytkowania w 3 kw. 2027 roku |
Udogodnienia | winda |
Przyroda | w okolicy inwestycji znajduje się park, las, jezioro |
Charakterystyka energetyczna nieruchomości | informacja u dewelopera |
Rezerwacja i finanse
Rodzaj własności | Odrębna własność z własnością gruntu |
|---|---|
Wysokość czynszu | informacja u dewelopera |
Warunki rezerwacji | Informacja u dewelopera |
Zabezpieczenie środków | Informacja u dewelopera |
Zdjęcia z budowy
Zobacz na jakim etapie budowy jest ta inwestycja
Lokalizacja inwestycji
Stacja kolejowa - Kraków Łagiewniki - 1892 m
Przystanek Tramwajowy - 589 m
Przystanek Autobusowy - 174 m
Dojazd do centrum: pokaż
W pobliżu 1 km od tej inwestycji znajdują się:
41 kawiarni i restauracji, 41 sklepów, 35 obiektów sportowych, 16 placówek medycznych, 37 placówek edukacyjnych, 45 placów zabaw
Przeczytaj więcej o lokalizacji
Leżące w południowo-zachodniej części Krakowa Dębniki to dzielnica VIII, zajmująca obszar 4618,87 ha i zamieszkana przez 59 395 osób. Jest to teren bardzo zróżnicowany pod względem zagospodarowania. Zachodnia połowa dzielnicy to pełne malowniczych krajobrazów Lasy Tynieckie, przez które przepływa Wisła, natomiast wschodnia część Dębnik jest zdecydowanie bardziej zurbanizowana. Obok starych budowli, w tym kamienic i budynków typu dworkowego, znajdziemy tu nowe nieruchomości, takie jak osiedla mieszkaniowe, domy jednorodzinne oraz wille. Na Dębnikach kwitnie życie sportowe i kulturalne. Znajduje się tu m.in. Ośrodek Olimpijski „Kolna” i 3 centra sportowe oraz 2 muzea i centrum kultury. Na terenie dzielnicy VIII mieszczą się również 3 wydziały Uniwersytetu Jagiellońskiego. Niedaleka odległość od centrum sprawia, że na Dębnikach skutecznie działa komunikacja miejska. Odbywają się tu kursy linii autobusowych i tramwajowych. Przez dzielnicę przebiega droga krajowa nr 7, a na niewielkim fragmencie także droga krajowa nr 44, natomiast wzdłuż północnej granicy biegnie droga wojewódzka nr 780.
Opis oferty
Nowe 1-pokojowe mieszkanie na sprzedaż o powierzchni 29,61 m² znajduje się w nowo wybudowanej inwestycji deweloperskiej SILO na Dębnikach, ul. Kobierzyńska (5.6 km od centrum Krakowa).
Inwestycja została zrealizowana przez Imperial Capital.
Cała inwestycja składa się z 1 budynku, w którym łącznie znajduje się 69 nowych mieszkań.
Na sprzedaż pozostają 64 oferty o powierzchni od 26 do 97 m².
W budynku są 4 kondygnacje naziemne oraz 1 kondygnacja podziemna.
Inwestycja SILO jest w trakcie budowy z planowanym na 3 kw. 2027 roku terminem oddania do użytkowania.
Nowe mieszkanie o oznaczeniu 9 znajduje się na 1 piętrze i jest 2-poziomowe. Pomieszczenia mają 600 centymetrów wysokości. W mieszkaniu znajduje się 1 pokój.
Do mieszkania przewidziano możliwość zakupu komórki lokatorskiej, którą można zagospodarować na spiżarnię, warsztat czy składzik.
Dla przyszłych mieszkańców SILO deweloper przewidział miejsca postojowe podziemne.
Dzięki temu przyszli właściciele nie będą musieli poszukiwać wolnej przestrzeni parkingowej. Dodatkowo, miejsce postojowe w garażu podziemnym zabezpiecza przed niekorzystnymi warunkami atmosferycznymi.
Opis Inwestycji
Pow. dodatkowe
SILO by Imperial Capital to wyjątkowa inwestycja, która powstała z myślą o osobach pragnących żyć blisko natury, nie rezygnując z udogodnień Krakowa. Położone przy ulicy Kobierzyńskiej, osiedle oferuje unikatowe połączenie industrialnego dziedzictwa z nowoczesną elegancją. To tutaj odważna architektura spotyka się z funkcjonalnością, tworząc propozycję dla osób poszukujących mieszkania z charakterem w dynamicznie rozwijającej się części miasta.
Funkcjonalność, przestrzeń i niebanalna architektura
SILO wyróżnia się przemyślaną formą, gdzie surowe linie i duże przeszklenia tworzą estetykę czerpiącą z industrialnego dziedzictwa. Zewnetrzne żaluzje fasadowe to element wyrazistego designu, który zapada w pamięć, ale nie przytłacza otoczenia.
Przestronne i jasne wnętrza:
● Mieszkania z antresolami – idealne dla osób ceniących niebanalny styl wykończenia i potrzebujących dodatkowej przestrzeni.
● Duże przeszklenia i balkony – sprawiają, że światło naturalne swobodnie dociera do wnętrz.
● Design i charakter – forma budynku jest równie dopracowana, co układy mieszkań, stanowiąc gratkę dla miłośników nowoczesnego stylu.
Nowoczesne rozwiązania dla Twojej wygody:
● Idea miasta 15-minutowego – wszystko, co potrzebne do życia, znajduje się w zasięgu krótkiego spaceru lub przejażdżki rowerem.
● Bliskość natury – lokalizacja zapewnia łatwy dostęp do rozległych terenów zielonych i rekreacyjnych.
Komunikacja:
Lokalizacja SILO to kompromis między miejską dynamiką a spokojem, zapewniający błyskawiczny wyjazd z miasta oraz sprawny dojazd do centrum.
● Trasa Łagiewnicka – szybki dostęp do głównych arterii komunikacyjnych ułatwia podróże do pracy i weekendowe wypady.
● Autostrada (Borek Fałęcki) – 10 min autem.
● Centrum miasta (Wawel) – 30 min autem.
Edukacja:
Mieszkańcy mogą korzystać z bogatej oferty edukacyjnej.
Samorządowe Przedszkole nr 5 – 3 minuty pieszo.
Żłobek Małe Cuda / Żłobek Kraina Odkrywcy – 5 minut pieszo.
Publiczne Przedszkole Źródełko – 6 minut pieszo.
Szkoła Podstawowa nr 40 – 8 minut pieszo.
Kampus Uniwersytetu Jagiellońskiego – 5 minut rowerem.
Opieka medyczna:
Stomatologia Patykiewicz – 1 minuta pieszo.
Klinika Krakowska (Przychodnia specjalistyczna) – 5 minut pieszo.
Scanmed UJ – 10 minut pieszo.
Sklepy i usługi:
Jak daleko jest do najbliższego sklepu?
Biedronka / Żabka – 5 minut pieszo.
Lidl – 6 minut pieszo.
Pasaż Ruczaj – 9 minut pieszo.
CH Zakopianka – 7 minut autem.
CH Bonarka – 11 minut autem.
Sport:
Bliskość terenów rekreacyjnych oraz obiektów sportowych to mocna strona tej lokalizacji.
Centrum Sportu i Rekreacji Cascada – 6 minut pieszo.
Zakrzówek i Skałki Twardowskiego – 5-13 minut rowerem (idealne na spacer, rower czy wspinaczkę).
Las Borkowski (70 ha zieleni) – 5 minut rowerem.
Górka Pychowicka – punkt widokowy z panoramą na Tatry i Wawel w zasięgu krótkiej przejażdżki.
Wisła i nabrzeże – malownicze ścieżki rowerowe wzdłuż rzeki.
Mieszkanie znajduje się w inwestycji SILO, w której znajduje się w sprzedaży jeszcze 5 podobnych nowych mieszkań.
Adres biura sprzedaży:
ul. Wadowicka 7, KrakówGodziny otwarcia biura sprzedaży:
- Poniedziałek: 09:00 - 17:00
- Wtorek: 09:00 - 17:00
- Środa: 09:00 - 17:00
- Czwartek: 09:00 - 17:00
- Piątek: 09:00 - 17:00
- Sobota: 09:00 - 13:00





