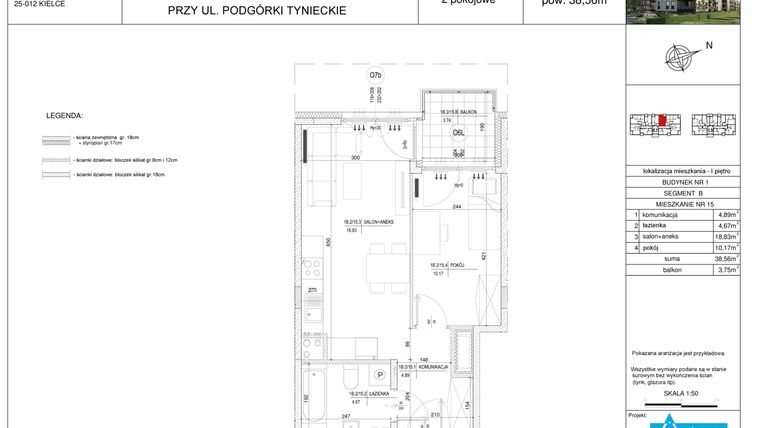
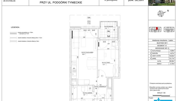
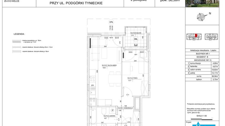
Mieszkanie na sprzedaż 2 pokoje o powierzchni 38,56 m² numer B15
Inwestycja:
Podgórki TynieckieDeweloper:
HSD Inwestycje
Inwestycja:
Podgórki TynieckieDeweloper:
HSD InwestycjeKraków, Dębniki, ul. Podgórki Tynieckie
Kraków, Dębniki, ul. Podgórki Tynieckie
Termin oddania
4 kw. 2027
Ilość pokoi
2 pokoje
Metraż
38,56 m²
Piętro
1 piętro
Powierzchnie dodatkowe
Balkon
Kuchnia
otwarta kuchnia
Wysokość pomieszczeń
256 cm wysokości
Ilość poziomów
1 poziom
Oznaczenie oferty
B15

Raport o deweloperze
Poznaj dewelopera bliżej! Pobierz raport, w którym znajdziesz kluczowe informacje o firmie, jej doświadczeniu, nagrodach oraz aktualnych i zrealizowanych inwestycjach.
Budynek i otoczenie
Miejsca postojowe | |
|---|---|
Komórki lokatorskie | dostępne |
Standard wykończenia | standard deweloperski |
Realizacja inwestycji | rozpoczęcie budowy w 3 kw. 2025 roku, planowane oddanie do użytkowania w 4 kw. 2027 roku |
Udogodnienia | winda |
Przyroda | w okolicy inwestycji znajduje się las |
Charakterystyka energetyczna nieruchomości | informacja u dewelopera |
Rezerwacja i finanse
Rodzaj własności | Odrębna własność z własnością gruntu |
|---|---|
Wysokość czynszu | informacja u dewelopera |
Warunki rezerwacji | umowy rezerwacyjne - opłata rezerwacyjna 5 000 zł |
Zabezpieczenie środków | Informacja u dewelopera |
Zdjęcia z budowy
Zobacz na jakim etapie budowy jest ta inwestycja
Lokalizacja inwestycji
Stacja kolejowa - Skawina Jagielnia - 1748 m
Przystanek Autobusowy - 360 m
Dojazd do centrum: pokaż
W pobliżu 1 km od tej inwestycji znajdują się:
2 kawiarnie i restauracje, 1 sklep
Przeczytaj więcej o lokalizacji
Leżące w południowo-zachodniej części Krakowa Dębniki to dzielnica VIII, zajmująca obszar 4618,87 ha i zamieszkana przez 59 395 osób. Jest to teren bardzo zróżnicowany pod względem zagospodarowania. Zachodnia połowa dzielnicy to pełne malowniczych krajobrazów Lasy Tynieckie, przez które przepływa Wisła, natomiast wschodnia część Dębnik jest zdecydowanie bardziej zurbanizowana. Obok starych budowli, w tym kamienic i budynków typu dworkowego, znajdziemy tu nowe nieruchomości, takie jak osiedla mieszkaniowe, domy jednorodzinne oraz wille. Na Dębnikach kwitnie życie sportowe i kulturalne. Znajduje się tu m.in. Ośrodek Olimpijski „Kolna” i 3 centra sportowe oraz 2 muzea i centrum kultury. Na terenie dzielnicy VIII mieszczą się również 3 wydziały Uniwersytetu Jagiellońskiego. Niedaleka odległość od centrum sprawia, że na Dębnikach skutecznie działa komunikacja miejska. Odbywają się tu kursy linii autobusowych i tramwajowych. Przez dzielnicę przebiega droga krajowa nr 7, a na niewielkim fragmencie także droga krajowa nr 44, natomiast wzdłuż północnej granicy biegnie droga wojewódzka nr 780.
Opis oferty
Nowe 2-pokojowe mieszkanie na sprzedaż o powierzchni 38,56 m² znajduje się w nowo budowanej inwestycji deweloperskiej Podgórki Tynieckie na Dębnikach, ul. Podgórki Tynieckie (10.2 km od centrum Krakowa).
Inwestycja jest realizowana przez HSD Inwestycje.
Cała inwestycja składa się z 2 budynków, w których łącznie znajduje się 50 nowych mieszkań.
Na sprzedaż pozostaje 36 ofert o powierzchni od 37 do 74 m².
W budynkach są 3 kondygnacje naziemne oraz 1 kondygnacja podziemna.
Inwestycja Podgórki Tynieckie jest w trakcie budowy z planowanym na 4 kw. 2027 roku terminem oddania do użytkowania.
Nowe mieszkanie o oznaczeniu B15 znajduje się na 1 piętrze i jest 1-poziomowe. Pomieszczenia mają 256 centymetrów wysokości. W mieszkaniu znajdują się 2 pokoje.
Dla przyszłych mieszkańców Podgórki Tynieckie deweloper przewidział miejsca postojowe podziemne, miejsca postojowe naziemne.
Dzięki temu przyszli właściciele nie będą musieli poszukiwać wolnej przestrzeni parkingowej. Dodatkowo, miejsce postojowe w garażu podziemnym zabezpiecza przed niekorzystnymi warunkami atmosferycznymi.
Opis Inwestycji
Okazyjna cena
Pow. dodatkowe
Inwestycja przy ul. Podgórki Tynieckie położona jest w sąsiedztwie zabudowy jednorodzinnej, skomunikowana jest z centrum Krakowa liniami autobusowymi numer 213, 223, 253, 263, 283, 733, 903 a przystanek zlokalizowany jest w odległości ok 500 metrów. Szybki dojazd na węzeł obwodnicy Kraków – Skawina zapewnia dobrą komunikację zarówno z północną jak i południową częścią Krakowa.
W bliskiej odległości znajdują się sklepy spożywcze, KFC, paczkomat. Dodatkowo liczne ścieżki rowerowe, spacerowe zlokalizowane w Lesie Tynieckim pozwalają na aktywny wypoczynek.
Pierwszy etap inwestycji składa się z 50 mieszkań o powierzchni od 37 m2 do 74 m2. Wszystkie mieszkania posiadają balkony. Zaprojektowany budynek posiada 3 kondygnacje a pod budynkiem zlokalizowana została hala garażowa a wszystkie kondygnacje połączone są windą.
Pełna zieleni, bezpieczna i spokojna okolica.
Mieszkanie znajduje się w inwestycji Podgórki Tynieckie, w której znajduje się w sprzedaży jeszcze 13 podobnych nowych mieszkań.





