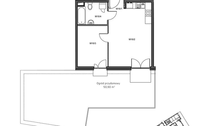
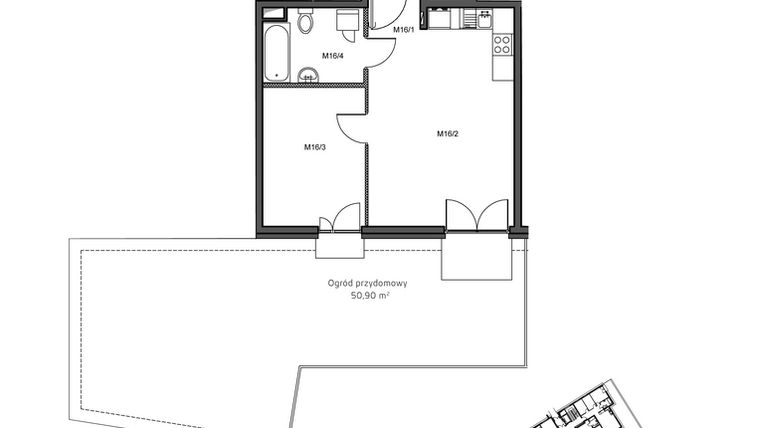
Mieszkanie na sprzedaż 2 pokoje o powierzchni 41,04 m² numer 16
Inwestycja:
Wzgórze Krzemionki IIDeweloper:
Grupa Matejek
Inwestycja:
Wzgórze Krzemionki IIDeweloper:
Grupa MatejekKraków, Podgórze, ul. Jerozolimska 4
Kraków, Podgórze, ul. Jerozolimska 4
Termin oddania
1 kw. 2026
Ilość pokoi
2 pokoje
Metraż
41,04 m²
Piętro
Parter
Powierzchnie dodatkowe
Balkon
Kuchnia
otwarta kuchnia
Wysokość pomieszczeń
od 260 do 280 cm wysokości
Ilość poziomów
1 poziom
Oznaczenie oferty
16

Raport o deweloperze
Poznaj dewelopera bliżej! Pobierz raport, w którym znajdziesz kluczowe informacje o firmie, jej doświadczeniu, nagrodach oraz aktualnych i zrealizowanych inwestycjach.
Budynek i otoczenie
Miejsca postojowe | |
|---|---|
Standard wykończenia | standard deweloperski |
Realizacja inwestycji | rozpoczęcie budowy w 1 kw. 2024 roku, planowane oddanie do użytkowania w 1 kw. 2026 roku |
Udogodnienia | plac zabaw, monitoring |
Przyroda | informacja u dewelopera |
Charakterystyka energetyczna nieruchomości | informacja u dewelopera |
Rezerwacja i finanse
Rodzaj własności | Odrębna własność z własnością gruntu |
|---|---|
Wysokość czynszu | informacja u dewelopera |
Warunki rezerwacji | Informacja u dewelopera |
Zabezpieczenie środków | Informacja u dewelopera |
Zdjęcia z budowy
Zobacz na jakim etapie budowy jest ta inwestycja
Lokalizacja inwestycji
Stacja kolejowa - Kraków Płaszów - 579 m
Przystanek Tramwajowy - 315 m
Przystanek Autobusowy - 276 m
Dojazd do centrum: pokaż
W pobliżu 1 km od tej inwestycji znajdują się:
15 kawiarni i restauracji, 22 sklepy, 14 obiektów sportowych, 4 placówki medyczne, 5 placówek edukacyjnych, 13 placów zabaw
Przeczytaj więcej o lokalizacji
Dzielnica Podgórze znajduje się w centrum Krakowa i jest zamieszkiwana przez 34 045 osób. Dzielnicę można podzielić na 3 podregiony, z których każdy cechuje się odmiennym typem zabudowy. Stare Podgórze pełne jest zabytków i budynków wzniesionych w XIX i na początku XXw., w Płaszowie dominują czterokondygnacyjne budynki z lat 90-tych XXw. oraz domy jednorodzinne, natomiast na Rybitwach domy jednorodzinne mieszają się z nieruchomościami przemysłowymi. Dzielnica rozwija się w szybkim tempie i może pochwalić się dobrze rozbudowaną infrastrukturą, czego przykładem jest niemal 20 szkół, 2 galerie, 2 muzea, Kino Teatr „Wrzos”, domy kultury. Odpocząć można tu na Plantach im. F. Nowackiego lub w Parku im. W. Bednarskiego. Dodatkowo Podgórze ma dobre połączenia komunikacyjne z pozostałymi dzielnicami Krakowa, a dojazdy ułatwiają przechodzące przez dzielnicę drogi: krajowa nr 7 i wojewódzka nr 776.
Opis oferty
Nowe 2-pokojowe mieszkanie na sprzedaż o powierzchni 41,04 m² znajduje się w nowo budowanej inwestycji deweloperskiej Wzgórze Krzemionki II na Podgórzu, ul. Jerozolimska 4 (3.6 km od centrum Krakowa).
Inwestycja jest realizowana przez Grupa Matejek.
Cała inwestycja składa się z 1 budynku, w którym łącznie znajdują się 62 nowe mieszkania.
Na sprzedaż pozostaje 35 ofert o powierzchni od 41 do 119 m².
W budynku jest 7 kondygnacji naziemnych oraz 1 kondygnacja podziemna.
Inwestycja Wzgórze Krzemionki II jest w trakcie budowy z planowanym na 1 kw. 2026 roku terminem oddania do użytkowania.
Nowe mieszkanie o oznaczeniu 16 znajduje się na parterze i jest 1-poziomowe. Pomieszczenia mają od 260 do 280 centymetrów wysokości. W mieszkaniu znajdują się 2 pokoje.
Dla przyszłych mieszkańców Wzgórze Krzemionki II deweloper przewidział miejsca postojowe podziemne.
Dzięki temu przyszli właściciele nie będą musieli poszukiwać wolnej przestrzeni parkingowej. Dodatkowo, miejsce postojowe w garażu podziemnym zabezpiecza przed niekorzystnymi warunkami atmosferycznymi.
Opis Inwestycji
Tereny zielone
Pow. dodatkowe
Inwestycja Wzgórze Krzemionki, zlokalizowana przy ulicy Jerozolimskiej 4 w Krakowie oferuje doskonałe połączenie bliskości centrum miasta i terenów zielonych. Stanowi idealne rozwiązanie dla osób poszukujących harmonii między dynamicznym życiem miejskim a bliskością natury.
Dogodne połączenia komunikacyjne i rozległe tereny rekreacyjne wokół inwestycji gwarantują nie tylko wygodę, ale także możliwość relaksu i aktywności na świeżym powietrzu.
Komfort i funkcjonalność
W budynku dostępne są 62 mieszkania zaprojektowane w sposób funkcjonalny, z dbałością o każdy szczegół. Do dyspozycji pozostawiamy mieszkania o zróżnicowanym metrażu: od 41 do 145 metrów kwadratowych. Każdy apartament został wyposażony w przestronny, przeszklony balkon lub przydomowy ogródek.
Do budynku przynależeć będzie również przestronny parking podziemny ze 80 miejscami postojowymi, zrealizowany dzięki współpracy z renomowaną firmą Klaus oferującą nowoczesne systemy parkowania.
Dodatkowym atutem będą przestronne i starannie wykończone części wspólne utrzymane w prostej i eleganckiej estetyce. Udogodnienia, takie jak infrastruktura dla dzieci oraz zielone ściany z pewnością będą sprzyjały relaksowi, oraz zapewnią dodatkowy komfort i wygodę przyszłym mieszkańcom.
Wzgórze Krzemionki to wyjątkowa inwestycja, która została stworzona przy użyciu materiałów najlepszej jakości pochodzących od renomowanych producentów. Jako zaufany krakowski deweloper, stawiamy na niezawodność i solidność, dlatego ścisła kontrola i nadzór powstających inwestycji jest dla nas priorytetem, który ma na celu zapewnienie bezpieczeństwa oraz trwałość naszych budynków.
Chcemy, aby mieszkańcy mogli w pełni korzystać z funkcjonalności oraz estetyki przez długie lata, dlatego przykładamy niezwykłą uwagę do jakości stosowanych materiałów.
Mieszkanie znajduje się w inwestycji Wzgórze Krzemionki II, w której znajduje się w sprzedaży jeszcze 5 podobnych nowych mieszkań.
Grupa Matejek
Strona internetowa inwestycjiAdres biura sprzedaży:
ul. Jerozolimska 2/LU 1, 30-555 Kraków




