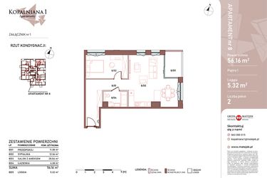
Mieszkanie na sprzedaż 2 pokoje o powierzchni 56,16 m² numer 8
Inwestycja:
KopalnianaDeweloper:
Grupa Matejek
Inwestycja:
KopalnianaDeweloper:
Grupa MatejekKatowice, Bogucice, ul. Kopalniana 1
Katowice, Bogucice, ul. Kopalniana 1
Termin oddania
4 kw. 2027
Ilość pokoi
2 pokoje
Metraż
56,16 m²
Piętro
1 piętro
Powierzchnie dodatkowe
Balkon
Kuchnia
otwarta kuchnia
Wysokość pomieszczeń
od 260 do 280 cm wysokości
Ilość poziomów
1 poziom
Oznaczenie oferty
8

Raport o deweloperze
Poznaj dewelopera bliżej! Pobierz raport, w którym znajdziesz kluczowe informacje o firmie, jej doświadczeniu, nagrodach oraz aktualnych i zrealizowanych inwestycjach.
Budynek i otoczenie
Miejsca postojowe | |
|---|---|
Standard wykończenia | standard deweloperski |
Realizacja inwestycji | rozpoczęcie budowy w 4 kw. 2024 roku, planowane oddanie do użytkowania w 4 kw. 2027 roku |
Udogodnienia | monitoring |
Przyroda | w okolicy inwestycji znajduje się park |
Charakterystyka energetyczna nieruchomości | informacja u dewelopera |
Rezerwacja i finanse
Rodzaj własności | Odrębna własność z własnością gruntu |
|---|---|
Wysokość czynszu | informacja u dewelopera |
Warunki rezerwacji | Informacja u dewelopera |
Zabezpieczenie środków | Informacja u dewelopera |
Zdjęcia z budowy
Zobacz na jakim etapie budowy jest ta inwestycja
Lokalizacja inwestycji
Stacja kolejowa - Katowice Zawodzie - 1254 m
Przystanek Tramwajowy - 616 m
Przystanek Autobusowy - 188 m
Dojazd do centrum: pokaż
W pobliżu 1 km od tej inwestycji znajdują się:
21 kawiarni i restauracji, 61 sklepów, 34 obiekty sportowe, 19 placówek medycznych, 30 placówek edukacyjnych, 19 placów zabaw
Przeczytaj więcej o lokalizacji
Katowice to miasto w województwie śląskim o powierzchni 164 km kw i liczbie mieszkańców ponad 300 tys. osób. Zabudowa miasta to głównie powojenne bloki i typowe dla Śląska zabytkowe kamienice. Katowice dzielą się na dzielnice pogrupowane w zespoły dzielnic: zespół północny, śródmiejski, południowy, wschodni i zachodni. Miasto jest wojewódzkim centrum medycznym, z kilkunastoma szpitalami, w tym Centralnym Szpitalem Klinicznym im. Kornela Gibińskiego, Szpitalem Klinicznym im. Andrzeja Mieleckiego, Uniwersyteckim Centrum Okulistyki i Onkologii, Szpitalem Klinicznym nr 6 czy Górnośląskim Centrum Zdrowia Dziecka. Działają tu też liczne uniwersytety, takie jak Akademia Wychowania Fizycznego im. Jerzego Kukuczki, Akademia Sztuk Pięknych czy wydziały Politechniki Śląskiej.
Opis oferty
Nowe 2-pokojowe mieszkanie na sprzedaż o powierzchni 56,16 m² znajduje się w nowo budowanej inwestycji deweloperskiej Kopalniana w Bogucicach, ul. Kopalniana 1 (1.3 km od centrum Katowic).
Inwestycja jest realizowana przez Grupa Matejek.
Cała inwestycja składa się z 1 budynku, w którym łącznie znajduje się 59 nowych mieszkań.
Na sprzedaż pozostaje 56 ofert o powierzchni od 36 do 126 m².
W budynku jest 9 kondygnacji naziemnych oraz 2 kondygnacje podziemne.
Inwestycja Kopalniana jest w trakcie budowy z planowanym na 4 kw. 2027 roku terminem oddania do użytkowania.
Nowe mieszkanie o oznaczeniu 8 znajduje się na 1 piętrze i jest 1-poziomowe. Pomieszczenia mają od 260 do 280 centymetrów wysokości. W mieszkaniu znajdują się 2 pokoje.
Dla przyszłych mieszkańców Kopalniana deweloper przewidział miejsca postojowe podziemne.
Dzięki temu przyszli właściciele nie będą musieli poszukiwać wolnej przestrzeni parkingowej. Dodatkowo, miejsce postojowe w garażu podziemnym zabezpiecza przed niekorzystnymi warunkami atmosferycznymi.
Opis Inwestycji
Tereny zielone
Pow. dodatkowe
Inwestycja Kopalniana zlokalizowana w samym sercu Katowic - przy ulicy Kopalnianej 1, to miejsce stworzone z myślą o mieszkańcach pragnących czerpać z miejskiego życia przy bliskim otoczeniu natury.
Wyjątkowa, historyczna lokalizacja zapewnia zarówno bliski dostęp do terenów zielonych, jak i w pełni umożliwia korzystanie z miejskich udogodnień.
Trwałość i unikatowa estetyka
W budynku zaplanowano 59 Apartamentów oraz 4 lokale usługowe o powierzchni od 36 do 218 m². Do dyspozycji mieszkańców będzie 69 miejsc postojowych. Każde z Apartamentów posiadać będzie taras, balkon, loggie lub ogród przydomowy, które zapewnią możliwość relaksu i komfortu.
Inwestycja Kopalniana 1 to niezwykłe połączenie nowoczesnej architektury z unikatowym dziedzictwem śląskiej kultury. Projekt powstał we współpracy z renomowanym biurem architektonicznym Wojciecha Wojciechowskiego, które stworzyło nowoczesną formę, oddającą hołd tej wyjątkowej tradycji.
Całość wyróżnia się dbałością o detale oraz funkcjonalnością, tworząc przestrzeń sprzyjającą komfortowemu życiu. Kopalniana 1 została zaprojektowana z myślą o tych, którzy cenią bliskość natury i tradycji, jednocześnie pragnąc korzystać z udogodnień centralnej lokalizacji w mieście.
Części wspólne
Na uwagę zasługują także starannie zaprojektowane części wspólne, dopracowane w każdym detalu. W garażach zastosowano specjalne elementy wizualne inspirowane historią Śląska, które podkreślają dziedzictwo regionu. Oświetlenie w przestrzeniach wspólnych zapewnia nie tylko funkcjonalność, lecz także dodaje wnętrzom elegancji.
W trosce o bezpieczeństwo mieszkańców budynek został wyposażony w monitoring, a drzwi wewnętrzne posiadają podwyższoną odporność na włamania.
Podczas realizacji inwestycji Kopalniana 1 zadbaliśmy również o ekologiczne rozwiązania, takie jak zieleń ekstensywna na dachu. Ten zabieg nie tylko podnosi walory estetyczne budynku, ale także przyczynia się do poprawy jakości powietrza oraz komfortu termicznego mieszkańców.
Mieszkanie znajduje się w inwestycji Kopalniana, w której znajduje się w sprzedaży jeszcze 16 podobnych nowych mieszkań.
Grupa Matejek
Strona internetowa inwestycjiAdres biura sprzedaży:
ul. Opolska 22, bud. B (wejście od ul. Jana III Sobieskiego), 40-084 KatowiceSpotkania w Salonie Sprzedaży odbywają się wyłącznie po wcześniejszym umówieniu.





