Jasielska 8C
Mieszkania na sprzedaż oferowane bezpośrednio przez Grupa Inwest
Poznań, Jeżyce, Podolany, ul. Jasielska 10a-c
Poznań, Jeżyce, Podolany, ul. Jasielska 10a-c
:format(jpg)/offers/offer/None/main_image/jasielska-8c_1391c7.jpg)
:format(jpg)/offers/offer/None/main_image/jasielska-8c_1391c7.jpg)
1 zdjęcie
Jasielska 8C
Poznań, Jeżyce, Podolany, ul. Jasielska 10a-c
Termin oddania
Gotowe
Powierzchnie
36 - 85/m2
Przedział pokoi
2 - 4
Kondygnacje
7
Budynki
1
Stand. wykończenia
Standard deweloperski
Mieszkania w inwestycji (15)
Sortuj
Stacja kolejowa - Poznań Podolany - 922 m
Przystanek Tramwajowy - 1225 m
Przystanek Autobusowy - 91 m
Dojazd do centrum: pokaż
W pobliżu 1 km od tej inwestycji znajdują się:
7 kawiarni i restauracji, 14 sklepów, 19 obiektów sportowych, 8 placówek medycznych, 10 placówek edukacyjnych, 18 placów zabaw
Zdjęcia z budowy
Zobacz na jakim etapie budowy jest ta inwestycja
Udogodnienia Inwestycji
Standard i bezpieczeństwo
- winda
- rowerownia
- Standard deweloperski
- Wykończenie pod klucz
Instalacje i energetyka
- miejsce do ładowania samochodów elektrycznych
Rekreacja
- plac zabaw
Przyroda w okolicy
- 4 parki w okolicy
- jezioro
Szczegóły inwestycji
Realizacja inwestycji: | rozpoczęcie budowy w 2 kw. 2023 roku, inwestycja została oddana do użytkowania w 4 kw. 2024 roku |
|---|---|
Liczba budynków: | cała inwestycja składa się z 1 budynku |
Liczba kondygnacji: | budynek posiada 7 kondygnacji naziemnych wraz z parterem oraz 2 kondygnacje podziemne |
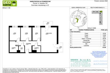
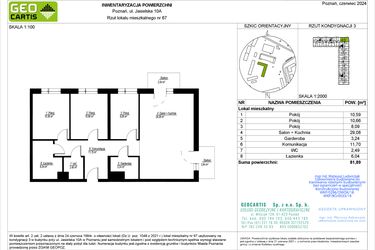
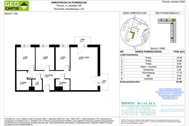
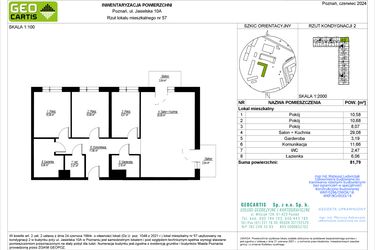
Liczba mieszkań: | cała inwestycja składa się z 166 lokali mieszkalnych |
Wysokość pomieszczeń: | w zależności od kondygnacji od 260 do 280 cm wysokości |
Standard wykończenia | standard deweloperski, wykończenie pod klucz Ogrzewanie cieplik miejski |
Rodzaj własności: | odrębna własność z własnością gruntu, odrębna własność z użytkowaniem wieczystym gruntu |
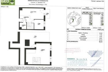
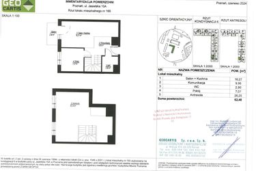
Powierzchnie dodatkowe: | antresola, ogródek, balkon, taras |
Komórki lokatorskie: | posiada: Opcjonalnie w zakupie: 4000 zł/m2 (3-8m2) |
Miejsca postojowe: | w inwestycji przewidziano:
|
Przyroda: | w okolicy inwestycji znajduje się jezioro |
Aktualna oferta
Dostępne mieszkania: | aktualnie dostępnych jest 15 mieszkań |
|---|---|
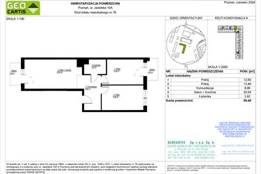
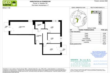
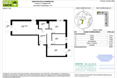
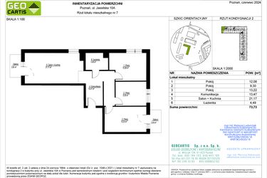
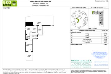
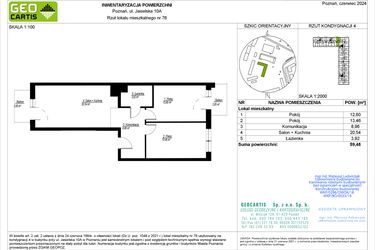
Powierzchnie mieszkań: | od 36 do 85 m² |
Liczba pokoi: | dostępne są mieszkania 2, 3, 4-pokojowe |
Opis płatności: | Informacja u dewelopera |
Warunki rezerwacji: | Informacja u dewelopera |
Zabezpieczenie środków klienta: | informacja u dewelopera |
Wysokość czynszu: | informacja u dewelopera |
Opis inwestycji
JASIELSKA 8C to nowa inwestycja mieszkaniowa realizowana przez dewelopera Grupa Inwest. Oferuje ona 374 lokali mieszkalnych 1-5 pokojowych, w tym także mieszkań dwupoziomowych z antresolami. Lokale będą wyposażone w balkony, tarasy lub ogródki. W ramach inwestycji przewidziana jest także podziemna hala garażowa z miejscami postojowymi oraz komórkami lokatorskimi.
Struktura budynku i mieszkań:
- 374 mieszkania,
- 28-116 m2,
- trzy budynki,
- V pięter + mieszkania dwupoziomowe na VI piętro,
- podziemna hala garażowa,
- miejsca postojowe nadziemne,
- komórki lokatorskie.
- ogródki dla mieszkań parterowych,
- tarasy dla lokali z antresolami,
- winda w każdej klatce.
Data zakończenia budowy: 30.11.2024
Inwestycja Jasielska 8C znajduje się na Podolanach, ul. Jasielska 10a-c (4.7 km od centrum Poznania), została zrealizowana przez Grupa Inwest.
Inwestycja Jasielska 8C została wybudowana i oddana do użytkowania w 4 kw. 2024 roku.
Cały projekt składa się z 166 nowych mieszkań znajdujących się w 1 budynku. Budynek posiada 7 kondygnacji naziemnych wraz z parterem oraz 2 kondygnacje podziemne.
Aktualnie w inwestycji Jasielska 8C w sprzedaży jest 15 nowych mieszkań o powierzchni od 36 do 85 metrów kwadratowych , w cenie od 8 990 zł za metr kwadratowy.
Dla przyszłych mieszkańców Jasielska 8C deweloper przewidział:
- miejsca postojowe podziemne
W inwestycji znajdują się komórki lokatorskie Opcjonalnie w zakupie: 4000 zł/m2 (3-8m2).
Lokalizacja inwestycji
Jeżyce to dzielnica Poznania rozmieszczona na planie niemal idealnego kwadratu. Na jego zachodzie można znaleźć Jezioro Kerskie, natomiast południową granicę wyznacza obszar Lotniska Poznań-Ławica. Na wschodzie dzielnicę ogranicza ul. Obornicka a na północy osiedla Suchy Las i Jelonek. Jeżyce składają się głównie z zabytkowych, przedwojennych kamienic, które coraz częściej dzięki renowacji okazują się być perełkami architektonicznymi miasta. Na Jeżycach na powierzchni 2 km kw mieszka ok. 24 tys. mieszkańców. Największy zakład opieki zdrowotnej to Szpital Rehabilitacyjny dla dzieci. W odległości ok. 500 metrów na wschód mieści się wydział Nauk Politycznych i Dziennikarstwa Uniwersytetu im. Adama Mickiewicza. W odległości ok. 1 km od granic dzielnicy można znaleźć liczne centra handlowe, kina i teatry. Największe centrum handlowe okolicy to Galeria Podolany, jednak w odległości ok. 1 km na południe i wschód można znaleźć inne sklepy wielkopowierzchniowe, takie jak CH Poznań Plaza, Galeria Pestka czy King Cross Marcelin.
Komunikacja
Jak wygląda komunikacja w okolicy inwestycji Jasielska 8C?
W dzielnicy kursują autobusy i tramwaje miejskie. Jednak o jej wyjątkowym charakterze świadczy lotnisko Poznań-Ławica, mieszczące się na jej południu. Samoloty odlatują stąd do 25 europejskich portów lotniczych. Dzielnicę ze wschodu na zachód przecina też droga krajowa nr 92.
Przyszli mieszkańcy inwestycji Jasielska 8C mogą korzystać z rozbudowanej sieci połączeń komunikacyjnych. W odległości 100 metrów od inwestycji Jasielska 8C znajduje się najbliższy punkt komunikacyjny - Jasielska II n/ż.
Edukacja
Czy w pobliżu inwestycji Jasielska 8C znajdują się szkoły/przedszkola?
Mieszkańcy mogą korzystać z bogatej oferty edukacyjnej. W najbliższej okolicy inwestycji Jasielska 8C znajduje się 10 placówek edukacyjnych. Najbliżej położone to: szkoła w odległości 200 m, Magiczna Kraina prywatne przedszkole w odległości 500 m.
Opieka medyczna
Dużym atutem inwestycji Jasielska 8C jest bliskość ośrodków zdrowotnych. Dostęp do opieki medycznej zapewnią położone w pobliżu: Chirurgia Poznańska w odległości 400 m.
Sklepy i usługi
Jak daleko jest do najbliższego sklepu?
Na infrastrukturę handlowo-usługową inwestycji Jasielska 8C składa się wiele punktów. Nieopodal, w odległości 100 m znajduje się Żabka, w odległości 100 m znajduje się Pod Strzechą.
Sport
Bliskość terenów rekreacyjnych oraz obiektów sportowych to mocna strona tej lokalizacji. W najbliższej okolicy inwestycji Jasielska 8C w odległości 300 m znajduje się boisko / kort, w odległości 500 m znajduje się Stacja Podolany.
Grupa Inwest
Strona internetowa inwestycjiAdres biura sprzedaży:
ul. Jasielska 10b, 60-476 PoznańGodziny otwarcia biura sprzedaży:
- Poniedziałek: 08:00 - 18:00
- Wtorek: 08:00 - 18:00
- Środa: 08:00 - 18:00
- Czwartek: 08:00 - 18:00
- Piątek: 08:00 - 18:00
Oferty, które mogą Cię zainteresować
Artykuły powiązane:
:format(jpg)/articles/gallery/image/700/co-sie-buduje-w-katowicach_8dd3c8.jpg)
Co buduje się w Katowicach?
Katowice wyróżnia innowacja, przedsiębiorczość i wszechobecny przemysł. W stolicy województwa śląskiego i Górnośląskiego Okręgu Przemysłowego odbywa się wiele międzynarodowych imprez, na które ściągają tłumy z całego świata. Bogata oferta edukacyjna i przemysłowa zachęca młodych ludzi do zamieszkania i rozpoczęcia kariery zawodowej w Katowicach. Inwestycje mieszkaniowe to kolejny atut miasta.
02 marca 2022
Redakcja
Polecane Lokalizacje
Inwestycje w pobliżu na Podolanach
- Jasielska 8C etap II (198 ofert)
- JA_SIELSKA V (103 oferty)
- Sielskie Podolany II (122 oferty)
- Sielskie Podolany (36 ofert)
- Strzeszyńska 77 (144 oferty)
- Witosa Park (189 ofert)
- Początek Piątkowo bud. F (34 oferty)
- Piątkowo Residence (7 ofert)
- Początek Piątkowo bud. E (15 ofert)
- Lechicka 65 (86 ofert)
- Rezydencja Winiary etap 2 (3 oferty)
- Wieża Jeżyce etap V (29 ofert)





