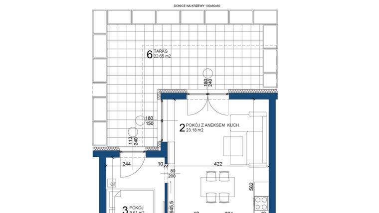
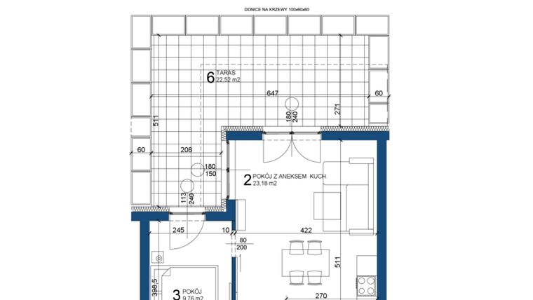
Mieszkanie na sprzedaż 2 pokoje o powierzchni 44,31 m² numer 84
Inwestycja:
Bursztynowy DomDeweloper:
DK-Development Sp. z o.o.
Inwestycja:
Bursztynowy DomDeweloper:
DK-Development Sp. z o.o.Kraków, Prądnik Czerwony, ul. Chałupnika 4
Kraków, Prądnik Czerwony, ul. Chałupnika 4
Termin oddania
Gotowe
Ilość pokoi
2 pokoje
Metraż
44,31 m²
Piętro
Parter
Powierzchnie dodatkowe
Taras
Kuchnia
otwarta kuchnia
Wysokość pomieszczeń
od 260 do 280 cm wysokości
Ilość poziomów
1 poziom
Oznaczenie oferty
84

Raport o deweloperze
Poznaj dewelopera bliżej! Pobierz raport, w którym znajdziesz kluczowe informacje o firmie, jej doświadczeniu, nagrodach oraz aktualnych i zrealizowanych inwestycjach.
Budynek i otoczenie
Miejsca postojowe | |
|---|---|
Standard wykończenia | standard deweloperski |
Realizacja inwestycji | rozpoczęcie budowy w 2 kw. 2008 roku, inwestycja została oddana do użytkowania w 1 kw. 2010 roku |
Udogodnienia | winda, monitoring, plac zabaw, teren ogrodzony |
Przyroda | informacja u dewelopera |
Charakterystyka energetyczna nieruchomości | informacja u dewelopera |
Rezerwacja i finanse
Rodzaj własności | Odrębna własność z własnością gruntu |
|---|---|
Wysokość czynszu | informacja u dewelopera |
Warunki rezerwacji | Informacja u dewelopera |
Zabezpieczenie środków | Informacja u dewelopera |
Zdjęcia z budowy
Zobacz na jakim etapie budowy jest ta inwestycja
Lokalizacja inwestycji
Stacja kolejowa - Kraków Główny - 1819 m
Przystanek Tramwajowy - 835 m
Przystanek Autobusowy - 411 m
Dojazd do centrum: pokaż
W pobliżu 1 km od tej inwestycji znajdują się:
34 kawiarnie i restauracje, 57 sklepów, 49 obiektów sportowych, 22 placówki medyczne, 48 placówek edukacyjnych, 42 place zabaw
Przeczytaj więcej o lokalizacji
Prądnik Czerwony to III dzielnica Krakowa. Jej terytorium liczy sobie 643,79 ha i zamieszkiwane jest przez 47 775 osób. To jedna z mniejszych dzielnic Krakowa, jednak jej bliska odległość od centrum sprawia, że rozwija się w zadowalającym tempie i może pochwalić się rozbudowaną infrastrukturą społeczną. Pod względem zabudowy dzielnica jest dość jednolita. Przez lata widoczne były tu głównie spółdzielcze osiedla z wielkiej płyty wybudowane na początku II połowy XXw. Obecnie na Prądniku Czerwonym zaczynają wyrastać coraz to nowe domy jednorodzinne oraz kompleksy budynków mieszkalnych. Mimo niedalekiej odległości od centrum miasta, jest tu spokojnie i nie brakuje terenów zielonych, a jednym z ciekawszych jest Park „Zaczarowanej Dorożki”. Działalność 2 klubów sportowych skutkuje natomiast istnieniem zaplecza sportowego w postaci m.in. boisk i kortów tenisowych.
Opis oferty
Nowe 2-pokojowe mieszkanie na sprzedaż o powierzchni 44,31 m² znajduje się w nowo budowanej inwestycji deweloperskiej Bursztynowy Dom na Prądniku Czerwonym, ul. Chałupnika 4 (2.2 km od centrum Krakowa).
Inwestycja jest realizowana przez DK-Development Sp. z o.o.
Cała inwestycja składa się z 1 budynku, w którym łącznie znajduje się 5 nowych mieszkań.
Na sprzedaż pozostaje 5 ofert o powierzchni od 34 do 73 m².
W budynku jest od 3 do 5 kondygnacji naziemnych oraz 1 kondygnacja podziemna.
Inwestycja Bursztynowy Dom została wybudowana i oddana do użytkowania w 1 kw. 2010 roku.
Nowe mieszkanie o oznaczeniu 84 znajduje się na parterze i jest 1-poziomowe. Pomieszczenia mają od 260 do 280 centymetrów wysokości. W mieszkaniu znajdują się 2 pokoje.
Dla przyszłych mieszkańców Bursztynowy Dom deweloper przewidział miejsca postojowe podziemne, miejsca postojowe naziemne.
Dzięki temu przyszli właściciele nie będą musieli poszukiwać wolnej przestrzeni parkingowej. Dodatkowo, miejsce postojowe w garażu podziemnym zabezpiecza przed niekorzystnymi warunkami atmosferycznymi.
Opis Inwestycji
Kameralny budynek
Tereny zielone
Pow. dodatkowe
Bursztynowy Dom jest budynkiem o zróżnicowanej wysokości od 3 do 5 pięter, z dwoma klatkami schodowymi i windami. W przyziemiu znajduje się objęty monitoringiem garaż wielostanowiskowy z dwoma wjazdami. Obok budynku urządzono plac zabaw dla dzieci i zielony skwer z ławkami, a od strony wjazdu parking z oznaczonymi miejscami dla mieszkańców. Cały teren inwestycji jest ogrodzony i monitorowany, dodatkowe bezpieczeństwo zapewniają brama i furtka sterowane pilotem i domofonem.
Obecnie oferujemy Państwu do sprzedaży 5 funkcjonalnych mieszkań na parterze o powierzchniach od 34m2 do 73m2. Mieszkania powstają w procesie zmiany sposobu użytkowania pomieszczeń z funkcji biurowej na mieszkalną.
W lokalach zostaną wykonane nowe ściany działowe, posadzki oraz komplet instalacji: C.O, wody, kanalizacji oraz elektryczna i teletechniczna. Zostanie urządzony nowoczesny, funkcjonalny hall wejściowy do wyłącznego użytku właścicieli nowych mieszkań, wyposażony w dodatkowe przestrzenie do przechowywania.
Wysoki standard będą spełniać również elementy stolarki (okna i drzwi) oraz części zewnętrzne: tarasy i elewacja.
Mieszkanie znajduje się w inwestycji Bursztynowy Dom, w której znajduje się w sprzedaży jeszcze 1 podobne nowe mieszkanie.
Artykuły powiązane:
:format(jpg)/articles/gallery/image/9455/dzielnice-luksusu-warszawa.jpg)
Dzielnice luksusu w Polsce
W 2025 roku luksusowe apartamenty w Polsce przestają być kojarzone wyłącznie z prestiżem dzielnic takich jak Powiśle w Warszawie czy Salwator w Krakowie. Inwestycji premium przybywa w nowych, szybko zyskujących na wartości lokalizacjach. Coraz więcej miast kreuje przyciągające wymagających nabywców enklawy, oferujące standard ultrapremium. Apartamenty za kilka milionów złotych nie są już tylko domeną stolicy. Dziś o luksusie decydują nie sam metraż i standard wykończenia, ale unikalny klimat dzielnicy. Widać wyraźny trend: ekskluzywne nieruchomości pojawiają się tam, gdzie jeszcze niedawno dominowała zabudowa średniego standardu.
06 sierpnia 2025
Marcin Moneta





