Mieszkanie na sprzedaż 3 pokoje o powierzchni 62,7 m² numer B.M.03
Inwestycja:
Łódzka OsiedleDeweloper:
Cognor Holding S.A. Sp. k.
Inwestycja:
Łódzka OsiedleDeweloper:
Cognor Holding S.A. Sp. k.Częstochowa, ul. Łódzka 198
Częstochowa, ul. Łódzka 198
Termin oddania
Gotowe
Ilość pokoi
3 pokoje
Metraż
62,7 m²
Piętro
Parter
Strona świata
zachód
Powierzchnie dodatkowe
Taras
Kuchnia
otwarta kuchnia
Wysokość pomieszczeń
278 cm wysokości
Ilość poziomów
1 poziom
Oznaczenie oferty
B.M.03

Raport o deweloperze
Poznaj dewelopera bliżej! Pobierz raport, w którym znajdziesz kluczowe informacje o firmie, jej doświadczeniu, nagrodach oraz aktualnych i zrealizowanych inwestycjach.
Budynek i otoczenie
Miejsca postojowe | |
|---|---|
Komórki lokatorskie | dostępne |
Standard wykończenia | standard deweloperski Ogrzewanie miejskie |
Realizacja inwestycji | rozpoczęcie budowy w 4 kw. 2023 roku, inwestycja została oddana do użytkowania w 4 kw. 2025 roku |
Udogodnienia | plac zabaw, winda, rowerownia, usługi w budynku |
Przyroda | informacja u dewelopera |
Charakterystyka energetyczna nieruchomości | informacja u dewelopera |
Rezerwacja i finanse
Rodzaj własności | Odrębna własność z własnością gruntu |
|---|---|
Wysokość czynszu | informacja u dewelopera |
Warunki rezerwacji | umowa rezerwacyjna |
Zabezpieczenie środków | Otwarty mieszkaniowy rachunek powierniczy |
Zdjęcia z budowy
Zobacz na jakim etapie budowy jest ta inwestycja
Lokalizacja inwestycji
Stacja kolejowa - Częstochowa - 2867 m
Przystanek Tramwajowy - 829 m
Przystanek Autobusowy - 174 m
Dojazd do centrum: pokaż
W pobliżu 1 km od tej inwestycji znajdują się:
21 kawiarni i restauracji, 33 sklepy, 11 obiektów sportowych, 12 placówek medycznych, 11 placówek edukacyjnych, 12 placów zabaw
Przeczytaj więcej o lokalizacji
Częstochowa to miasto leżące na Wyżynie Krakowsko-Częstochowskiej, w woj. śląskim. Przez miasto przepływa Warta. Częstochowa słynie z Sanktuarium Jasnogórskiego, do którego rokrocznie pielgrzymuje ok. 5 mln osób, ale warto zwrócić uwagę na jej pozostałe atuty. Jako centrum Częstochowskiego Okręgu Przemysłowego cieszy się wysokim stopniem rozwoju gospodarczego. Regularny układ miejski z centralnie zlokalizowanym Śródmieściem, od południa i północy otoczonym skupiskami zabudowy mieszkalnej, zapewnia ład przestrzenny. Wiele jest tu terenów zielonych, a do popularniejszych należy Promenada Czesława Niemena i Park Leśnych Aniołów. Miasto posiada rozbudowaną infrastrukturę społeczną, na którą składa się m.in. ponad 100 szkół różnego szczebla, w tym kilka szkół wyższych, a także rozwinięte zaplecze sportowe i kulturalne. Częstochowa leży na węźle komunikacyjnym składającym się z trzech dróg krajowych, trasy europejskiej i pięciu dróg wojewódzkich. Kursują tu pociągi PKP, autobusy PKS i komunikacja miejska oraz podmiejska.
Opis oferty
Nowe 3-pokojowe mieszkanie na sprzedaż o powierzchni 62,7 m² znajduje się w nowo budowanej inwestycji deweloperskiej Łódzka Osiedle w Częstochowie, ul. Łódzka 198 (2.5 km od centrum Częstochowy).
Inwestycja jest realizowana przez Cognor Holding S.A. Sp. k.
Cała inwestycja składa się z 3 budynków, w których łącznie znajduje się 131 nowych mieszkań.
Na sprzedaż pozostaje 50 ofert o powierzchni od 62 do 85 m².
W budynkach jest od 5 do 6 kondygnacji naziemnych oraz 1 kondygnacja podziemna.
Inwestycja Łódzka Osiedle została wybudowana i oddana do użytkowania w 4 kw. 2025 roku.
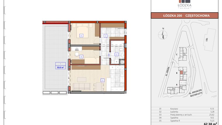
Nowe mieszkanie o oznaczeniu B.M.03 znajduje się na parterze i jest 1-poziomowe. Pomieszczenia mają 278 centymetrów wysokości. W mieszkaniu znajdują się 3 pokoje.
Okna w mieszkaniu wychodzą na zachód.
Zachodnia ekspozycja to gwarancja intensywnego popołudniowego światła, które nadaje wnętrzom przytulności i ciepła. Idealne dla miłośników słonecznych wieczorów, którzy pragną cieszyć się pięknymi zachodami słońca we własnym domu. Zachodnie światło podkreśla kolory i faktury w aranżacji wnętrz, tworząc atmosferę sprzyjającą relaksowi po długim dniu.
Dla przyszłych mieszkańców Łódzka Osiedle deweloper przewidział miejsca postojowe podziemne, miejsca postojowe naziemne.
Dzięki temu przyszli właściciele nie będą musieli poszukiwać wolnej przestrzeni parkingowej. Dodatkowo, miejsce postojowe w garażu podziemnym zabezpiecza przed niekorzystnymi warunkami atmosferycznymi.
Opis Inwestycji
Tereny zielone
Pow. dodatkowe
Łódzka Osiedle to nowoczesne budownictwo w doskonałym miejscu. Inwestycja zlokalizowana jest u zbiegu ulic Łódzkiej i Szajnowicza-Iwanowa – w pobliżu znajdują się liczne sklepy, centra handlowe, szkoły, przedszkola, przystanki autobusowe czy przychodnie. Charakteryzuje się nowoczesną architekturą, funkcjonalnie zaprojektowanymi wnętrzami oraz wysoką jakością materiałów.
W trzech budynkach powstaje 131 apartamentów z przestronnymi balkonami i tarasami. Lokale będą miały powierzchnię od 31 m² do 84 m². Całość zostanie otoczona starannie zaprojektowanymi terenami zielonymi wraz z placem zabaw i miejscem rekreacji dla seniorów. Tereny zielone wchodzące w skład osiedla będą ogrodzone, dzięki czemu będą pełnić funkcję swoistego, wewnętrznego dziedzińca przeznaczonego tylko dla mieszkańców. Teren osiedla będzie posiadał funkcjonalną komunikację wraz z oświetleniem.
Na parterze powstaje 11 lokali handlowo-usługowych o zróżnicowanej powierzchni od 68 m² do 215 m² z dogodnym dostępem dla pieszych, ale także zmotoryzowanych klientów tych lokali. Dla nich przewidziane są także miejsca parkingowe.
Inwestycja jest zrealizowana zgodnie z najnowszymi trendami architektonicznymi, z dbałością o najdrobniejsze szczegóły. Mieszkańcy będą mieli do dyspozycji komórki lokatorskie oraz podziemne i nadziemne miejsca parkingowe. Każdy lokal zapewnione ma przynajmniej jedno miejsce postojowe (dodatkowo płatne), a dla części apartamentów możliwy jest zakup dodatkowego miejsca parkingowego. Budynki zostaną wyposażone ponadto w cichobieżne windy, które zapewnią komfort przemieszczania się do swojego mieszkania. W garażu podziemnym przewidzieliśmy dwa pomieszczenia na rowery. Nie będzie potrzeby kłopotliwego wwożenia swojego jednośladu na wyższe piętra lub zajmowania miejsca w komórce lokatorskiej. Ogrzewanie mieszkań, części wspólnych oraz ciepła woda użytkowa zapewniona jest przez ciepło systemowe firmy Fortum. Wszystko po to, aby nowym mieszkańcom zapewnić jak najwyższy komfort codziennego funkcjonowania.
Mieszkanie znajduje się w inwestycji Łódzka Osiedle, w której znajduje się w sprzedaży jeszcze 31 podobnych nowych mieszkań.
Cognor Holding S.A. Sp. k.
Strona internetowa inwestycjiAdres biura sprzedaży:
ul. Łódzka 198, CzęstochowaGodziny otwarcia biura sprzedaży:
- Poniedziałek: 09:00 - 17:00
- Wtorek: 09:00 - 17:00
- Środa: 09:00 - 17:00
- Czwartek: 09:00 - 17:00
- Piątek: 09:00 - 17:00





