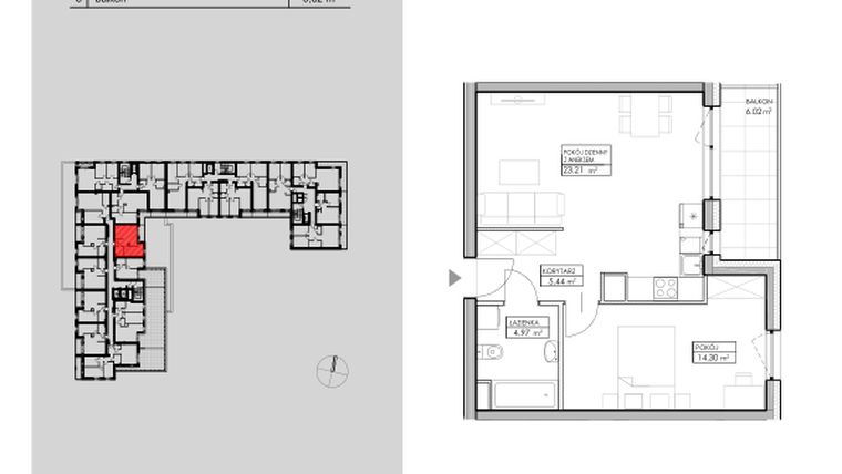
Mieszkanie na sprzedaż 2 pokoje o powierzchni 47,92 m² numer A8
Inwestycja:
Niebieski BursztynDeweloper:
ATAL S.A.
Inwestycja:
Niebieski BursztynDeweloper:
ATAL S.A.Reda, ul. Bosmańska
Reda, ul. Bosmańska
Termin oddania
Gotowe
Ilość pokoi
2 pokoje
Metraż
47,92 m²
Piętro
2 piętro
Strona świata
wschód
Powierzchnie dodatkowe
Balkon
Kuchnia
otwarta kuchnia
Wysokość pomieszczeń
od 260 do 280 cm wysokości
Ilość poziomów
1 poziom
Oznaczenie oferty
A8

Raport o deweloperze
Poznaj dewelopera bliżej! Pobierz raport, w którym znajdziesz kluczowe informacje o firmie, jej doświadczeniu, nagrodach oraz aktualnych i zrealizowanych inwestycjach.
Budynek i otoczenie
Miejsca postojowe | |
|---|---|
Komórki lokatorskie | dostępne |
Standard wykończenia | standard deweloperski Pakiety wykończeń:
Pakiet Classic – 950 zł/mkw
Pakiet Comfort – 1 150 zł/mkw
Pakiet Premium – 1 650 zł/mkw |
Realizacja inwestycji | rozpoczęcie budowy w 3 kw. 2022 roku, inwestycja została oddana do użytkowania w 4 kw. 2025 roku |
Udogodnienia | usługi w budynku, winda, rowerownia, wózkarnia |
Przyroda | informacja u dewelopera |
Charakterystyka energetyczna nieruchomości |
|
Rezerwacja i finanse
Rodzaj własności | Odrębna własność z własnością gruntu |
|---|---|
Wysokość czynszu | informacja u dewelopera |
Warunki rezerwacji | informacja u dewelopera |
Zabezpieczenie środków | Informacja u dewelopera |
Zdjęcia z budowy
Zobacz na jakim etapie budowy jest ta inwestycja
Lokalizacja inwestycji
Stacja kolejowa - Reda - 631 m
Przystanek Autobusowy - 276 m
Dojazd do centrum Gdyni: pokaż
W pobliżu 1 km od tej inwestycji znajdują się:
8 kawiarni i restauracji, 17 sklepów, 6 obiektów sportowych, 5 placówek medycznych, 8 placówek edukacyjnych, 19 placów zabaw
Przeczytaj więcej o lokalizacji
Reda to liczące sobie 33,45 km2 i ok. 22 300 mieszkańców miasteczko leżące w pow. Wejherowskim, na Pomorzu. Wchodzi w skład Aglomeracji Gdańskiej. Od wschodu i północy otoczone jest terenami zielonymi – łąkami Doliny Redy i lasami stanowiącymi część Puszczy Darżlubskiej. Łącznie zajmują one ok. 50% powierzchni miasta. Rozległe tereny wciąż są do zagospodarowania. Ze względu na przynależność miejscowości do Trójmiejskiego Regionu Metropolitarnego, zabudowa Redy jest typowa dla obszarów miejskich, z przewagą budynków mieszkalnych jedno- i wielorodzinnych. Tereny przemysłowe skupiają się na południu miasta, które na tle innych miejscowości „Małego Trójmiasta Kaszubskiego” wyróżnia się wysokim stopniem rozwoju gospodarczego. Reda jest miejscowością samowystarczalną. Znajdują się tu szkoły każdego szczebla, działa miejska przychodnia lekarska i dwa zakłady opieki zdrowotnej. Rozwija się tu kultura i sport, działa ponad 200 sklepów.
Opis oferty
Nowe 2-pokojowe mieszkanie na sprzedaż o powierzchni 47,92 m² znajduje się w nowo budowanej inwestycji deweloperskiej Niebieski Bursztyn w Redzie, ul. Bosmańska (5 km od Gdyni).
Inwestycja jest realizowana przez ATAL S.A.
Cała inwestycja składa się z 1 budynku, w którym łącznie znajduje się 185 nowych mieszkań.
Na sprzedaż pozostaje 35 ofert o powierzchni od 48 do 67 m².
W budynku jest od 5 do 17 kondygnacji naziemnych oraz 2 kondygnacje podziemne.
Inwestycja Niebieski Bursztyn została wybudowana i oddana do użytkowania w 4 kw. 2025 roku.
Nowe mieszkanie o oznaczeniu A8 znajduje się na 2 piętrze i jest 1-poziomowe. Pomieszczenia mają od 260 do 280 centymetrów wysokości. W mieszkaniu znajdują się 2 pokoje.
Okna w mieszkaniu wychodzą na wschód.
Wschodnia orientacja zapewnia dostęp do łagodnego porannego światła, idealnego dla rozpoczęcia dnia pełnego energii. Wnętrza pozostają jasne, ale nieprzegrzane, co sprzyja utrzymaniu komfortowej temperatury. Przebywanie w pomieszczeniu z oknami na wschód inspiruje do działania i pozytywnie wpływa na poranny rytuał.
Dla przyszłych mieszkańców Niebieski Bursztyn deweloper przewidział miejsca postojowe podziemne, miejsca postojowe naziemne.
Dzięki temu przyszli właściciele nie będą musieli poszukiwać wolnej przestrzeni parkingowej. Dodatkowo, miejsce postojowe w garażu podziemnym zabezpiecza przed niekorzystnymi warunkami atmosferycznymi.
Opis Inwestycji
Pow. dodatkowe
Inwestycja Niebieski Bursztyn powstająca w Redzie przy ulicy Bosmańskiej obejmie trzy budynki zaplanowane na 3 oddzielne etapy. Każdy z budynków składać się będzie z dwóch części: 5-piętrowej oraz 17-piętrowej dominanty. Optymalne doświetlenie mieszkań, nieszablonowa architektura oraz otwarta przestrzeń wspólna stanowią jej niezaprzeczalne atuty. Tym co wyróżni Niebieski Bursztyn na tle innych osiedli to przestronne tarasy na dachach budynków, dostępne wyłącznie dla ich mieszkańców Stworzą one niepowtarzalną możliwość podziwiania zarówno panoramy miasta, Trójmiejskiego Parku Krajobrazowego, jak również nadmorskiej okolicy Zatoki Gdańskiej.
Inspiracją dla projektu stał się niezwykle rzadki minerał – niebieski bursztyn. Charakterystyczną cechą elewacji budynków będzie zastosowanie rozwiązań nawiązujących do opalizującej, niebieskiej barwy tego szlachetnego kamienia. Wyjątkowy charakter niebieskiego bursztynu zostanie również wykorzystany w aranżacji części wspólnych.
W ramach pierwszego etapu powstaną komfortowe mieszkania o powierzchni od 33 do 81 mkw. oraz przestronnych układach od 2 do 4 pokoi z balkonami lub tarasami. Zmotoryzowani mieszkańcy będą mogli skorzystać z naziemnych miejsc postojowych oraz stanowisk zlokalizowanych w halach garażowych. Do dyspozycji przekazane zostaną komórki lokatorskie, rowerownia oraz wózkownia. Na parterze zaprojektowano lokal usługowy.
Projekt i wykończenie mieszkania zajmuje sporo czasu oraz pieniędzy.
Korzystnym rozwiązaniem jest przekazanie tego zadania naszym Specjalistom.
Ich zadaniem jest zaprojektowanie oraz wykończenie mieszkania w sposób nowoczesny i funkcjonalny.
Mieszkanie znajduje się w inwestycji Niebieski Bursztyn, w której znajduje się w sprzedaży jeszcze 27 podobnych nowych mieszkań.
ATAL S.A.
Strona internetowa inwestycjiAdres biura sprzedaży:
Plac Kaszubski 7, lok. 2 81-350 GdyniaGodziny otwarcia biura sprzedaży:
- Poniedziałek: 08:00 - 18:00
- Wtorek: 08:00 - 17:00
- Środa: 08:00 - 17:00
- Czwartek: 08:00 - 17:00
- Piątek: 08:00 - 17:00
Artykuły powiązane:
:format(jpg)/articles/gallery/image/9813/e54c4c.jpg)
Czy warto zamieszkać na peryferiach Wrocławia?
Jakie są zalety mieszkania na peryferiach? Sprawdźcie ofertę mieszkań od deweloperów na peryferiach Wrocławia! We Wrocławiu ceny nowych mieszkań w samym centrum lub stosunkowo blisko Rynku potrafią sięgać nawet 8 tys. złotych za metr kwadratowy. Średnia cena na rynku deweloperskim...
30 października 2019
Bartosz Moch





