Przystań Rumia
Estymowana rata kredytu: 2 423 zł
Mieszkania na sprzedaż oferowane bezpośrednio przez Platforma Mieszkaniowa
Rumia, ul. Owsiana 48
Rumia, ul. Owsiana 48
Przystań Rumia
Rumia, ul. Owsiana 48
Termin oddania
Gotowe
Powierzchnie
50 - 55/m2
Przedział pokoi
2
Kondygnacje
3
Budynki
3
Stand. wykończenia
Standard deweloperski
Mieszkania w inwestycji (2)
Sortuj
| Rzut | Numer | Pokoje | Metraż | Piętro | Cena | |
|---|---|---|---|---|---|---|
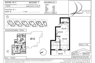
B10M4 | 2 | 50,24 m² | 1 | |||
B10M8 | 2 | 54,83 m² | 2 |
Stacja kolejowa - Reda - 1639 m
Przystanek Autobusowy - 171 m
Dojazd do centrum Gdyni: pokaż
W pobliżu 1 km od tej inwestycji znajdują się:
5 kawiarni i restauracji, 10 sklepów, 3 obiekty sportowe, 1 placówka medyczna, 2 placówki edukacyjne, 4 place zabaw
Zdjęcia z budowy
Zobacz na jakim etapie budowy jest ta inwestycja
Udogodnienia Inwestycji
Standard i bezpieczeństwo
- Standard deweloperski
Szczegóły inwestycji
Realizacja inwestycji: | rozpoczęcie budowy w 3 kw. 2023 roku, inwestycja została oddana do użytkowania w 1 kw. 2025 roku |
|---|---|
Liczba budynków: | cała inwestycja składa się z 3 budynków |
Liczba kondygnacji: | budynki posiadają 3 kondygnacje naziemne wraz z parterem oraz 1 kondygnację podziemną |
Liczba mieszkań: | cała inwestycja składa się z 33 lokali mieszkalnych |
Wysokość pomieszczeń: | w zależności od kondygnacji od 260 do 280 cm wysokości |
Standard wykończenia | standard deweloperski |
Rodzaj własności: | odrębna własność z własnością gruntu |
Powierzchnie dodatkowe: | nie przewidziano powierzchni dodatkowych |
Komórki lokatorskie: | posiada (1) Komórki lokatorskie w cenie 29 000 zł |
Miejsca postojowe: | w inwestycji przewidziano:
|
Przyroda: | informacja u dewelopera |
Aktualna oferta
Dostępne mieszkania: | aktualnie dostępne są 2 mieszkania |
|---|---|
Powierzchnie mieszkań: | od 50 do 55 m² |
Liczba pokoi: | dostępne są mieszkania 2-pokojowe |
Ceny mieszkań: |
|
Opis płatności: | Informacja u dewelopera |
Warunki rezerwacji: | Informacja u dewelopera |
Zabezpieczenie środków klienta: | informacja u dewelopera |
Wysokość czynszu: | informacja u dewelopera |
Opis inwestycji
Inwestycja w Rumii. Bliskość Trójmiasta, a jednocześnie kameralna zabudowa sprawiają, że to miasto przyciąga do siebie kolejnych mieszkańców. Wychodząc na przeciw oczekiwaniom i zainteresowaniu pragniemy zaprezentować inwestycję mieszkaniową przy ulicy Owsianej. Zaplanowaliśmy dla Państwa 33 mieszkania o powierzchni od 25 m2 do 60 m2. To obecnie najbardziej popularne metraże w zakupie. Do naszej inwestycji prowadzić będzie nowa droga dojazdowa, a całość prezentować się będzie niezwykle okazale.
Inwestycja Przystań Rumia znajduje się w Rumi, ul. Owsiana 48 (3.9 km od Gdyni), sprzedaż prowadzi Platforma Mieszkaniowa.
Inwestycja Przystań Rumia została wybudowana i oddana do użytkowania w 1 kw. 2025 roku.
Cały projekt składa się z 33 nowych mieszkań znajdujących się w 3 budynkach. Budynki posiadają 3 kondygnacje naziemne wraz z parterem oraz 1 kondygnację podziemną.
Aktualnie w inwestycji Przystań Rumia w sprzedaży są 2 nowe mieszkania o powierzchni od 50 do 55 metrów kwadratowych, w cenie od 9 534 zł za metr kwadratowy.
Dla przyszłych mieszkańców Przystań Rumia deweloper przewidział:
- miejsca postojowe podziemne
- miejsca postojowe naziemne
W inwestycji znajduje się 1 komórka lokatorska.
Lokalizacja inwestycji
Rumia to miasto o powierzchni 30,08 km2, które zamieszkuje ok. 43 700 osób. Leży w pow. wejherowskim, w woj. pomorskim i graniczy z Gdynią oraz Redą. Wchodzi w skład Aglomeracji Gdańskiej i jest jedną z miejscowości tworzących Małe Trójmiasto Kaszubskie. Częściowo leży na terenie Trójmiejskiego Parku Krajobrazowego, który zajmuje ok. 40% terytorium miasta. Centrum Rumi wciąż jeszcze nie jest w pełni ukształtowane, za to na obrzeżach miasta z każdym rokiem rozrasta się zabudowa mieszkalna. Znaczne obszary dopiero czekają na zagospodarowanie. Póki co, powoli rozbudowywane jest tu zaplecze oświatowe, na które składa się 15 przedszkoli i 15 szkół różnego szczebla. Działa tu poradnia medyczna i 7 zakładów opieki zdrowotnej. Miasto posiada najważniejsze elementy infrastruktury sportowej. Znajduje się tu także galeria handlowa i centrum handlowe.
Komunikacja
Jak wygląda komunikacja w okolicy inwestycji Przystań Rumia?
Rumia położona jest przy drodze krajowej nr 6, co zapewnia jej dobre połączenie z Trójmiastem i innymi, okolicznymi miejscowościami. Przez miasto przechodzi też droga wojewódzka nr 100. Znajduje się tu dworzec kolejowy, z którego odchodzą pociągi do Szczecina, Gdańska i na Hel. Ok. 10 km od Rumi znajduje się morski port pasażerski, a ok. 25 km stąd, w Gdańsku-Rębiechowie, znajduje się port lotniczy.
Przyszli mieszkańcy inwestycji Przystań Rumia mogą korzystać z rozbudowanej sieci połączeń komunikacyjnych. W odległości 200 metrów od inwestycji Przystań Rumia znajduje się najbliższy punkt komunikacyjny - Rumia C.H. "Port Rumia" 01.
Edukacja
Czy w pobliżu inwestycji Przystań Rumia znajdują się szkoły/przedszkola?
Mieszkańcy mogą korzystać z bogatej oferty edukacyjnej. W najbliższej okolicy inwestycji Przystań Rumia znajdują się 2 placówki edukacyjne. Najbliżej położone to: Powiatowy Zespół Szkół nr 2 im. Hipolita Roszczynialskiego w Rumi w odległości 600 m, .
Opieka medyczna
Dużym atutem inwestycji Przystań Rumia jest bliskość ośrodków zdrowotnych. Dostęp do opieki medycznej zapewnią położone w pobliżu: NZOZ Bursztynowa w odległości 700 m.
Sklepy i usługi
Jak daleko jest do najbliższego sklepu?
Na infrastrukturę handlowo-usługową inwestycji Przystań Rumia składa się wiele punktów. Nieopodal, w odległości 200 m znajduje się Cukiernia Sowa.
Sport
Bliskość terenów rekreacyjnych oraz obiektów sportowych to mocna strona tej lokalizacji. W najbliższej okolicy inwestycji Przystań Rumia w odległości 500 m znajduje się boisko / kort.
Oferty, które mogą Cię zainteresować
Pobliskie lokalizacje
Inwestycje w pobliżu w Rumi
- Novum Rumia - bud. 17 (14 ofert)
- Jeziorna 1 (11 ofert)
- Niebieski Bursztyn (34 oferty)
- Rumia Osiedle Zielone Zacisze (91 ofert)
- Wzgórze Markowca (85 ofert)
- Osiedle Przy Błoniach 3 etap IV (75 ofert)
- Osiedle Przy Błoniach 3 etap III (29 ofert)
- Altro A2/1 (1 oferta)
- Zielone Błonia III (23 oferty)
- Locus 2 (18 ofert)
- Locus 2 bud. B2 (58 ofert)





