Nowe Sady 85
Mieszkania na sprzedaż oferowane bezpośrednio przez ABM Deweloper
Łódź, Polesie, Lublinek-Pienista, ul. Nowe Sady 85
Łódź, Polesie, Lublinek-Pienista, ul. Nowe Sady 85
:format(jpg)/offers/offer/15985/main_image/nowe-sady-85_c0bec6.jpg)
:format(jpg)/offers/offer/15985/main_image/nowe-sady-85_c0bec6.jpg)
1 zdjęcie
Termin oddania
Gotowe
Powierzchnie
43 - 76/m2
Przedział pokoi
2 - 4
Kondygnacje
6
Budynki
1
Stand. wykończenia
Standard deweloperski podwyższony
Mieszkania w inwestycji (9)
Stacja kolejowa - Łódź Pabianicka - 1348 m
Przystanek Tramwajowy - 1333 m
Przystanek Autobusowy - 469 m
Dojazd do centrum: pokaż
W pobliżu 1 km od tej inwestycji znajdują się:
2 kawiarnie i restauracje, 15 sklepów, 18 obiektów sportowych, 5 placówek medycznych, 16 placówek edukacyjnych, 11 placów zabaw
Postępy i zdjęcia z budowy
Zobacz na jakim etapie budowy jest ta inwestycja
Udogodnienia Inwestycji
Standard i bezpieczeństwo
- usługi w budynku
- winda
- rowerownia
- Standard deweloperski podwyższony
Szczegóły inwestycji
Realizacja inwestycji: | rozpoczęcie budowy w 4 kw. 2022 roku, inwestycja została oddana do użytkowania w 3 kw. 2024 roku |
|---|---|
Liczba budynków: | cała inwestycja składa się z 1 budynku |
Liczba kondygnacji: | budynek posiada 6 kondygnacji naziemnych wraz z parterem oraz 1 kondygnację podziemną |
Liczba mieszkań: | cała inwestycja składa się z 70 lokali mieszkalnych |
Wysokość pomieszczeń: | na wszystkich kondygnacjach po 260 cm wysokości |
Standard wykończenia | standard deweloperski podwyższony Ogrzewanie miejskie |
Rodzaj własności: | odrębna własność z własnością gruntu |
Powierzchnie dodatkowe: | balkon |
Komórki lokatorskie: | posiada |
Miejsca postojowe: | w inwestycji przewidziano:
|
Przyroda: | informacja u dewelopera |
Aktualna oferta
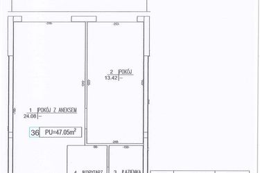
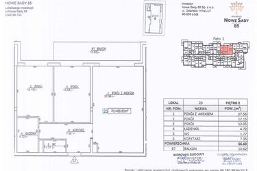
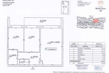
Dostępne mieszkania: | aktualnie dostępnych jest 9 mieszkań |
|---|---|
Powierzchnie mieszkań: | od 43 do 76 m² |
Liczba pokoi: | dostępne są mieszkania 2, 3, 4-pokojowe |
Opis płatności: | 1% przy rezerwacji, reszta po podpisaniu aktu |
Warunki rezerwacji: | wpłata 1% wartości |
Zabezpieczenie środków klienta: | informacja u dewelopera |
Wysokość czynszu: | informacja u dewelopera |
Opis inwestycji
KOMFORTOWE MIESZKANIA Z DOGODNĄ LOKALIZACJĄ
Osiedle Nowe Sady 85 to idealne rozwiązanie dla tych, którzy cenią sobie spokojną okolicę, jednocześnie nie rezygnując z dostępu do ważnych punktów w mieście. Zlokalizowane w niewielkiej odległości od centrum, osiedle zapewnia łatwy dostęp do wszystkich ważnych punktów w mieście, takich jak szkoły, uczelnie, sklepy, centra rozrywki i kulturalne oraz miejsca pracy.
W sąsiedztwie osiedla znajduje się wiele obszarów zielonych, parków oraz terenów rekreacyjnych, co pozwala mieszkańcom na relaks i wypoczynek na łonie natury, z dala od miejskiego zgiełku. Ponadto, w pobliżu osiedla dostępne są także place zabaw, stanowiące idealne miejsce rozrywki dla najmłodszych.
OSIEDLE NOWE SADY 85
To idealne miejsce dla tych, którzy szukają spokoju i jednocześnie chcą być w bliskim sąsiedztwie miasta. Z jednej strony mamy tutaj zieloną okolicę i wiele terenów rekreacyjnych, a z drugiej strony bardzo dobrą komunikację z centrum miasta. W pobliżu znajdują się sklepy, szkoły, przedszkola oraz liczne punkty usługowe, co sprawia, że codzienne życie w tej okolicy jest wygodne i komfortowe.
KOMFORT PRZEDE WSZYSTKIM
Części wspólne inwestycji Nowe Sady 85 są bardzo dobrze zaprojektowane i wykonane z wysokiej jakości materiałów. Klatka schodowa jest przestronna, oświetlona naturalnym światłem dziennym i wyposażona w nowoczesną windę. Dla wygody mieszkańców w budynku znajduje się również podziemny garaż, który umożliwia wygodne i bezpieczne parkowanie samochodów i rowerów.
Inwestycja Nowe Sady 85 znajduje się na Lublinku-Pienistej, ul. Nowe Sady 85 (3 km od centrum Łodzi), została zrealizowana przez ABM Deweloper.
Inwestycja Nowe Sady 85 została wybudowana i oddana do użytkowania w 3 kw. 2024 roku.
Cały projekt składa się z 70 nowych mieszkań znajdujących się w 1 budynku. Budynek posiada 6 kondygnacji naziemnych wraz z parterem oraz 1 kondygnację podziemną.
Aktualnie w inwestycji Nowe Sady 85 w sprzedaży jest 9 nowych mieszkań o powierzchni od 43 do 76 metrów kwadratowych , w cenie od 8 500 zł za metr kwadratowy.
Dla przyszłych mieszkańców Nowe Sady 85 deweloper przewidział:
- miejsca postojowe podziemne
W inwestycji znajdują się komórki lokatorskie.
Lokalizacja inwestycji
Łódź Polesie to dzielnica Łodzi o powierzchni 46 km. kw., w której mieszka ok. 140 tys. osób. W centralnym obszarze dzielnicy położony jest Park im. J. Piłsudskiego, dworzec Łódź Kaliska i droga E75. Dzielnicę okala od wschodu rzeka Ner, od południa port lotniczy im. W. Reymonta a od północy ul. Szczecińska i Rąbieńska. Polesie dzieli się na osiedla Złotno, Zdrowie-Mania, Karolew-Retkinia Wschód, Osiedla im. Montwiłła-Mireckiego, Retkinia Zachód, Lublinek, Stare Polesie i Koziny. O jej przyjaznym mieszkańcom charakterze świadczy położony tu największy łódzki park, Ogród Botaniczny, las Lublinek i 5 supermarketów i liczne punkty usługowe. Do tego dochodzi ciekawa oferta szkół wyższych z kampusem Politechniki Łódzkiej na czele.
Komunikacja
Jak wygląda komunikacja w okolicy inwestycji Nowe Sady 85?
Polesie to dzielnica dobrze skomunikowana z resztą miasta dzięki głównym ulicom Konstantynowskiej, Bandurskiego czy drodze E75. Zajezdnia autobusowa umożliwia dostanie się tym środkiem transportu do każdego punktu miasta. Znajduje się tu też stacja kolejowa Łódź Kaliska, z której dojechać można do każdego większego, polskiego miasta. Obok stacji Łódź Kaliska znajduje się też dworzec PKS na którym zatrzymują się ogólnopolskie autobusy prywatne i państwowe.
Przyszli mieszkańcy inwestycji Nowe Sady 85 mogą korzystać z rozbudowanej sieci połączeń komunikacyjnych. W odległości 500 metrów od inwestycji Nowe Sady 85 znajduje się najbliższy punkt komunikacyjny - Nowe Sady - Pustynna.
Edukacja
Czy w pobliżu inwestycji Nowe Sady 85 znajdują się szkoły/przedszkola?
Mieszkańcy mogą korzystać z bogatej oferty edukacyjnej. W najbliższej okolicy inwestycji Nowe Sady 85 znajduje się 16 placówek edukacyjnych. Najbliżej położone to: Przedszkole Zgromadzenia Sióstr Urszulanek SJK im. św. Urszuli Ledóchowskiej w odległości 700 m.
Opieka medyczna
Dużym atutem inwestycji Nowe Sady 85 jest bliskość ośrodków zdrowotnych. Dostęp do opieki medycznej zapewnią położone w pobliżu: NZOZ ARES w odległości 100 m.
Sklepy i usługi
Jak daleko jest do najbliższego sklepu?
Na infrastrukturę handlowo-usługową inwestycji Nowe Sady 85 składa się wiele punktów. Nieopodal, w odległości 500 m znajduje się Dino.
Sport
Bliskość terenów rekreacyjnych oraz obiektów sportowych to mocna strona tej lokalizacji. W najbliższej okolicy inwestycji Nowe Sady 85 w odległości 200 m znajduje się Orlik, w odległości 300 m znajduje się siłownia na świeżym powietrzu.
Oferty, które mogą Cię zainteresować
Polecane Lokalizacje
- Mieszkania na sprzedaż im. Józefa Montwiłła-Mireckiego (158 ofert)
- Mieszkania na sprzedaż Karolew-Retkinia Wschód (198 ofert)
- Mieszkania na sprzedaż Koziny (164 oferty)
- Mieszkania na sprzedaż Retkinia Zachód-Smulsko (178 ofert)
- Mieszkania na sprzedaż Stare Polesie (1929 ofert)
- Mieszkania na sprzedaż Zdrowie-Mania (405 ofert)
- Mieszkania na sprzedaż Złotno (167 ofert)
Inwestycje w pobliżu na Lublinku-Pienistej
- Stacja Łódź V – etap C2 (29 ofert)
- Duo Park (32 oferty)
- Moja Retkinia (25 ofert)
- Rejtana Park (2 oferty)
- Obywatelska 197 (9 ofert)
- Nowy Karolew (7 ofert)
- Inhome Osiedle ArtPark etap I (180 ofert)
- Port Jastarnia bud. 01, 04 (47 ofert)
- Murapol Osiedle Filo (7 ofert)
- Murapol Osiedle Filo etap II (125 ofert)
- Port Jastarnia bud. 02, 03 (10 ofert)
- Nowe Miasto Polesie IV B (52 oferty)





