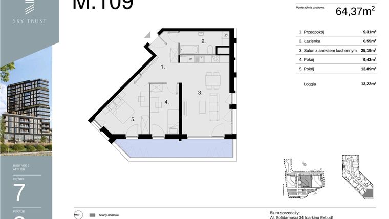
Apartament na sprzedaż 3 pokoje o powierzchni 64,37 m² numer M109
Inwestycja:
Sky Trust etap IIDeweloper:
Trust Investment
Inwestycja:
Sky Trust etap IIDeweloper:
Trust InvestmentKielce, al. Solidarności
Kielce, al. Solidarności
Termin oddania
4 kw. 2026
Ilość pokoi
3 pokoje
Metraż
64,37 m²
Piętro
7 piętro
Powierzchnie dodatkowe
Loggia
Wysokość pomieszczeń
od 260 do 280 cm wysokości
Ilość poziomów
1 poziom
Oznaczenie oferty
M109

Raport o deweloperze
Poznaj dewelopera bliżej! Pobierz raport, w którym znajdziesz kluczowe informacje o firmie, jej doświadczeniu, nagrodach oraz aktualnych i zrealizowanych inwestycjach.
Budynek i otoczenie
Miejsca postojowe | |
|---|---|
Komórki lokatorskie | dostępne: wielkość: 1,99-13,64 m2 |
Standard wykończenia | standard deweloperski Ogrzewanie miejskie |
Realizacja inwestycji | rozpoczęcie budowy w 3 kw. 2024 roku, planowane oddanie do użytkowania w 4 kw. 2026 roku |
Udogodnienia | monitoring, klimatyzacja, recepcja, winda, rowerownia, wózkarnia, miejsce do ładowania samochodów elektrycznych, paczkomat |
Przyroda | w okolicy inwestycji znajduje się park, rezerwat przyrody |
Charakterystyka energetyczna nieruchomości |
|
Rezerwacja i finanse
Rodzaj własności | Odrębna własność z własnością gruntu |
|---|---|
Wysokość czynszu | informacja u dewelopera |
Warunki rezerwacji | tylko umowa deweloperska / przedwstępna |
Zabezpieczenie środków | Otwarty mieszkaniowy rachunek powierniczy |
Zdjęcia z budowy
Zobacz na jakim etapie budowy jest ta inwestycja
Lokalizacja inwestycji
Stacja kolejowa - Kielce Piaski - 2308 m
Przystanek Autobusowy - 203 m
Dojazd do centrum: pokaż
W pobliżu 1 km od tej inwestycji znajdują się:
26 kawiarni i restauracji, 26 sklepów, 26 obiektów sportowych, 11 placówek medycznych, 32 placówki edukacyjne, 25 placów zabaw
Przeczytaj więcej o lokalizacji
Kielce to stolica województwa świętokrzyskiego. Główne zabytki miasta znajdują się w Śródmieściu, które jest typowym centrum administracyjnym, usługowym i kulturalnym Kielc. Obszary mieszkalne w postaci osiedli mieszkaniowych zlokalizowane są wokół centralnej części miasta, a osiedla domów jednorodzinnych leżą na przedmieściach. Kielce są jednym z najszybciej rozwijających się miast Polski, ale nie brakuje tu rozległych terenów zielonych. Kielecki Obszar Chronionego Krajobrazu zajmuje powierzchnię około 3856 ha. Składają się na niego liczne parki oraz Las Komunalny. Stały rozwój przekłada się na rozbudowę infrastruktury społecznej. Mieszczą się tu liczne galerie handlowe, a dzięki ciągłym inwestycjom, wzbogacane jest zaplecze oświatowe, kulturalne i medyczne. Działa tu m.in. kilkanaście szkół wyższych, kilka szpitali i kin. Bogata jest też oferta sportowa miasta.
Opis oferty
Nowy 3-pokojowy apartament na sprzedaż o powierzchni 64,37 m² znajduje się w nowo budowanej inwestycji deweloperskiej Sky Trust etap II w Kielcach, al. Solidarności (2.5 km od centrum Kielc).
Inwestycja jest realizowana przez Trust Investment.
Cała inwestycja składa się z 1 budynku, w którym łącznie znajduje się 111 nowych apartamentów.
Na sprzedaż pozostaje 31 ofert o powierzchni od 42 do 92 m².
W budynku jest 17 kondygnacji naziemnych oraz 2 kondygnacje podziemne.
Inwestycja Sky Trust etap II jest w trakcie budowy z planowanym na 4 kw. 2026 roku terminem oddania do użytkowania.
Nowy apartament o oznaczeniu M109 znajduje się na 7 piętrze i jest 1-poziomowy. Pomieszczenia mają od 260 do 280 centymetrów wysokości. W apartamencie znajdują się 3 pokoje.
Dla przyszłych mieszkańców Sky Trust etap II deweloper przewidział miejsca postojowe podziemne.
Dzięki temu przyszli właściciele nie będą musieli poszukiwać wolnej przestrzeni parkingowej. Dodatkowo, miejsce postojowe w garażu podziemnym zabezpiecza przed niekorzystnymi warunkami atmosferycznymi.
Apartament znajduje się w inwestycji Sky Trust etap II, w której znajduje się w sprzedaży jeszcze 12 podobnych nowych apartamentów.
Trust Investment
Adres biura sprzedaży:
Al. Solidarności 34 (parking Exbud), KielceGodziny otwarcia biura sprzedaży:
- Poniedziałek: 09:00 - 18:00
- Wtorek: 09:00 - 18:00
- Środa: 09:00 - 18:00
- Czwartek: 09:00 - 18:00
- Piątek: 09:00 - 18:00
- Sobota: 09:00 - 14:00





