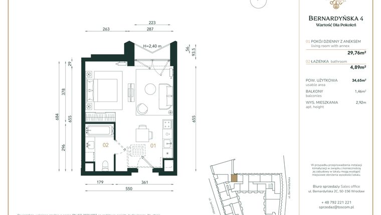
Mieszkanie na sprzedaż 1 pokój o powierzchni 34,65 m² numer A/4/02
Inwestycja:
Bernardyńska 4Deweloper:
Toscom Development
Inwestycja:
Bernardyńska 4Deweloper:
Toscom DevelopmentWrocław, Stare Miasto, ul. Bernardyńska 4
Wrocław, Stare Miasto, ul. Bernardyńska 4
Termin oddania
Gotowe
Ilość pokoi
1 pokój
Metraż
34,65 m²
Piętro
4 piętro
Kuchnia
otwarta kuchnia
Wysokość pomieszczeń
271 cm wysokości
Ilość poziomów
1 poziom
Oznaczenie oferty
A/4/02

Raport o deweloperze
Poznaj dewelopera bliżej! Pobierz raport, w którym znajdziesz kluczowe informacje o firmie, jej doświadczeniu, nagrodach oraz aktualnych i zrealizowanych inwestycjach.
Budynek i otoczenie
Miejsca postojowe | |
|---|---|
Komórki lokatorskie | dostępne: wielkość: 2,5 - 8 m2 |
Standard wykończenia | standard deweloperski podwyższony |
Realizacja inwestycji | rozpoczęcie budowy w 3 kw. 2021 roku, inwestycja została oddana do użytkowania w 3 kw. 2024 roku |
Udogodnienia | ochrona całodobowa, plac zabaw, monitoring, usługi concierge, basen, klimatyzacja, klub fitness, recepcja, sauna, usługi w budynku, winda, rowerownia, inteligentny dom, sala fitness, miejsce do ładowania samochodów elektrycznych |
Przyroda | w okolicy inwestycji znajduje się park |
Charakterystyka energetyczna nieruchomości |
|
Rezerwacja i finanse
Rodzaj własności | Odrębna własność z użytkowaniem wieczystym gruntu |
|---|---|
Wysokość czynszu | informacja u dewelopera |
Warunki rezerwacji | 7 dni bezpłatna, opcja: umowa rezerwacyjna na dni zaliczka 25 tys. zł zwrotna |
Zabezpieczenie środków | Otwarty mieszkaniowy rachunek powierniczy |
Zdjęcia z budowy
Zobacz na jakim etapie budowy jest ta inwestycja
Lokalizacja inwestycji
Stacja kolejowa - Wrocław Główny - 1307 m
Przystanek Tramwajowy - 184 m
Przystanek Autobusowy - 98 m
Dojazd do centrum: pokaż
W pobliżu 1 km od tej inwestycji znajdują się:
459 kawiarni i restauracji, 125 sklepów, 46 obiektów sportowych, 46 placówek medycznych, 100 placówek edukacyjnych, 48 placów zabaw
Przeczytaj więcej o lokalizacji
Inwestycja jest usytuowana w samym sercu Wrocławia, wkomponowując się w dawny zespół poklasztorny przy ulicy Bernardyńskiej. Jego stare mury pamiętają XV-wieczną tkankę miejską. Budynek jest unikatem wśród nowoczesnych inwestycji — zlokalizowany zaledwie 850 metrów od rynku, sąsiaduje ze strategicznymi punktami na mapie miasta: Placem Dominikańskim, Muzeum Architektury czy Halą Targową. Co więcej, nieopodal można znaleźć tak piękne i ważne miejsca, jak historyczny Ostrów Tumski, biegnący wzdłuż Odry nastrojowy bulwar Dunikowskiego, Muzeum Narodowe czy Panoramę Racławicką — malarski ewenement w skali kraju. Nieopodal inwestycji znajdują się luksusowe hotele (Raddison, Hilton), Park Słowackiego oraz enklawa zieleni dofinansowana przez TOSCOM, dzięki czemu mieszkańcy apartamentów będą mogli cieszyć się intymnym zakątkiem w centrum miasta. Intrygująca bryła budynku została z rozmysłem wkomponowana w zabudowę z duszą i historią, tworząc przestrzeń idealną dla mieszkańców, którym zależy nie tylko na świetnej lokalizacji i niezwykłym klimacie, ale również dużych, luksusowych mieszkaniach z unikalnym charakterem.
Wrocławskie Stare Miasto to najstarsza część lewobrzeżnej części miasta. Zajmuje prawie 7 km2 i zamieszkuje ją nieco ponad 52 tysiące osób. Do dzielnicy należą osiedla takie jak: Stare Miasto, Przedmieście Świdnickie oraz Szczepin. Przeważa tu architektura zabytkowa, jednak najmłodsze z osiedli, Szczepin to głównie wysokie, nowoczesne bloki mieszkalne. Na Starym Mieście znajduje się gmach główny Uniwersytetu Wrocławskiego oraz blisko 20 innych szkół wyższych. Swoją siedzibę mają tu wszystkie ważniejsze teatry oraz Opera Dolnośląska. Stare Miasto to główny punkt wycieczek turystycznych we Wrocławiu, dlatego posiada rozbudowaną ofertę rozrywkową oraz kulturalną. To tu występuje największe skupisko zabytków we Wrocławiu – z Panoramą Racławicką i Ratuszem na czele. Na Stare Miasto można dostać się zarówno tramwajem wodnym jak i tramwajami czy autobusami. W dzielnicy znajduję się także znany park Juliusza Słowackiego.
Opis oferty
Nowe 1-pokojowe mieszkanie na sprzedaż o powierzchni 34,65 m² znajduje się w nowo budowanej inwestycji deweloperskiej Bernardyńska 4 na Starym Mieście, ul. Bernardyńska 4 (0.3 km od centrum Wrocławia).
Inwestycja jest realizowana przez Toscom Development.
Cała inwestycja składa się z 1 budynku, w którym łącznie znajduje się 113 nowych mieszkań.
Na sprzedaż pozostaje 16 ofert o powierzchni od 33 do 112 m².
W budynku jest 5 kondygnacji naziemnych oraz 2 kondygnacje podziemne.
Inwestycja Bernardyńska 4 została wybudowana i oddana do użytkowania w 3 kw. 2024 roku.
Nowe mieszkanie o oznaczeniu A/4/02 znajduje się na 4 piętrze i jest 1-poziomowe. Pomieszczenia mają 271 centymetrów wysokości. W mieszkaniu znajduje się 1 pokój.
Dla przyszłych mieszkańców Bernardyńska 4 deweloper przewidział miejsca postojowe podziemne.
Dzięki temu przyszli właściciele nie będą musieli poszukiwać wolnej przestrzeni parkingowej. Dodatkowo, miejsce postojowe w garażu podziemnym zabezpiecza przed niekorzystnymi warunkami atmosferycznymi.
Opis Inwestycji
Tereny zielone
Bernardyńska 4 to prestiżowa inwestycja mieszkaniowa w samym sercu Wrocławia, tuż przy Muzeum Architektury, Panoramie Racławickiej i Parku Słowackiego. Projekt łączy historyczny kontekst miejsca z nowoczesną architekturą i wysokim standardem wykończenia.
W ofercie dostępne są komfortowe apartamenty o funkcjonalnych układach, z przestronnymi przeszkleniami, tarasami i widokami na zielone otoczenie lub zabytkową zabudowę. Inwestycja oferuje eleganckie części wspólne, reprezentacyjne lobby, siłownię, pokój relaksu, masażu i fizjoterapii, zielone patio oraz podziemny parking. W II etapie powstanie strefa SPA, coworking i pokój kinowy.
Bernardyńska 4 zapewnia wyjątkową lokalizację — kilka minut spacerem do Rynku, nad Odrę i do kluczowych instytucji kultury. To projekt premium dla osób szukających wygody, jakości i centralnego adresu.
Architektura z prestiżowymi nagrodami
Ponadczasowe piękno Bernardyńskiej 4 zostało wielokrotnie docenione przez jury prestiżowych konkursów architektonicznych – polskich i zagranicznych. Wśród tytułów, którymi może poszczycić się obiekt, znajdują się:
- Nagroda Główna w konkursie Fasada Roku 2025
- Architecture Hunter Awards Short List 2025
- wyróżnienie w konkursie Nagroda Roku Stowarzyszenia Architektów Polskich (SARP).
Mieszkanie znajduje się w inwestycji Bernardyńska 4, w której znajduje się w sprzedaży jeszcze 7 podobnych nowych mieszkań.
Toscom Development
Strona internetowa inwestycjiAdres biura sprzedaży:
ul. Bernardyńska 2c, 50-156 WrocławGodziny otwarcia biura sprzedaży:
- Poniedziałek: 08:00 - 16:00
- Wtorek: 08:00 - 16:00
- Środa: 08:00 - 16:00
- Czwartek: 08:00 - 16:00
- Piątek: 08:00 - 16:00
- Sobota: 10:00 - 14:00





