Wrocław, Stare Miasto, ul. Jodłowa 4
Wrocław, Stare Miasto, ul. Jodłowa 4
:format(jpg)/offers/offer/19023/main_image/apartamenty-nowy-targ_e17649.jpg)
:format(jpg)/offers/offer/19023/main_image/apartamenty-nowy-targ_e17649.jpg)
1 zdjęcie
Termin oddania
Gotowe
Powierzchnie
28 - 54/m2
Przedział pokoi
1 - 2
Kondygnacje
7
Budynki
1
Stand. wykończenia
Standard deweloperski
Mieszkania w inwestycji (20)
od 22 000 zł/m2
Sortuj
Stacja kolejowa - Wrocław Nadodrze - 1534 m
Przystanek Tramwajowy - 137 m
Przystanek Autobusowy - 141 m
Dojazd do centrum: pokaż
W pobliżu 1 km od tej inwestycji znajdują się:
539 kawiarni i restauracji, 141 sklepów, 46 obiektów sportowych, 51 placówek medycznych, 111 placówek edukacyjnych, 51 placów zabaw
Zdjęcia z budowy
Zobacz na jakim etapie budowy jest ta inwestycja
Udogodnienia Inwestycji
Standard i bezpieczeństwo
- monitoring
- Standard deweloperski
Instalacje i energetyka
- klimatyzacja
Przyroda w okolicy
- 10 parków w okolicy
Szczegóły inwestycji
Realizacja inwestycji:
Liczba budynków:
Liczba kondygnacji:
Liczba mieszkań:
Wysokość pomieszczeń:
Standard wykończenia
standard deweloperski
Ogrzewanie
miejskie
Rodzaj własności:
Powierzchnie dodatkowe:
Komórki lokatorskie:
Miejsca postojowe:
- miejsca postojowe naziemne
Przyroda:
Aktualna oferta
Dostępne mieszkania:
Powierzchnie mieszkań:
Liczba pokoi:
Ceny mieszkań:
- kształtują się w zakresie od 698 005 do 1 230 500 zł
- koszt metra kwadratowego wynosi od 22 000 do 27 000 zł
Opis płatności:
Warunki rezerwacji:
Zabezpieczenie środków klienta:
Wysokość czynszu:
Opis inwestycji
Nowy Targ Apartamenty to wyjątkowa inwestycja mieszkaniowa, która łączy elegancję miejskiej architektury z nowoczesnym standardem deweloperskim. Budynek, który do tej pory funkcjonował jako prestiżowy obiekt najmu krótkoterminowego, przechodzi obecnie kompleksową transformację — zaprojektowaną z myślą o nowych właścicielach.
Inwestycja Apartamenty Nowy Targ znajduje się na Starym Mieście, ul. Jodłowa 4 (0.5 km od centrum Wrocławia), została zrealizowana przez Shark Investment Sp. z o.o.
Inwestycja Apartamenty Nowy Targ została wybudowana i oddana do użytkowania w 2 kw. 2020 roku.
Cały projekt składa się z 35 nowych mieszkań znajdujących się w 1 budynku. Budynek posiada 7 kondygnacji naziemnych wraz z parterem oraz nie posiada kondygnacji podziemnych.
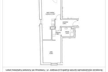
Aktualnie w inwestycji Apartamenty Nowy Targ w sprzedaży jest 20 nowych mieszkań o powierzchni od 28 do 54 metrów kwadratowych , w cenie od 22 000 zł za metr kwadratowy.
Dla przyszłych mieszkańców Apartamenty Nowy Targ deweloper przewidział:
- miejsca postojowe naziemne
Lokalizacja inwestycji
Wrocławskie Stare Miasto to najstarsza część lewobrzeżnej części miasta. Zajmuje prawie 7 km2 i zamieszkuje ją nieco ponad 52 tysiące osób. Do dzielnicy należą osiedla takie jak: Stare Miasto, Przedmieście Świdnickie oraz Szczepin. Przeważa tu architektura zabytkowa, jednak najmłodsze z osiedli, Szczepin to głównie wysokie, nowoczesne bloki mieszkalne. Na Starym Mieście znajduje się gmach główny Uniwersytetu Wrocławskiego oraz blisko 20 innych szkół wyższych. Swoją siedzibę mają tu wszystkie ważniejsze teatry oraz Opera Dolnośląska. Stare Miasto to główny punkt wycieczek turystycznych we Wrocławiu, dlatego posiada rozbudowaną ofertę rozrywkową oraz kulturalną. To tu występuje największe skupisko zabytków we Wrocławiu – z Panoramą Racławicką i Ratuszem na czele. Na Stare Miasto można dostać się zarówno tramwajem wodnym jak i tramwajami czy autobusami. W dzielnicy znajduję się także znany park Juliusza Słowackiego.
Komunikacja
Jak wygląda komunikacja w okolicy inwestycji Apartamenty Nowy Targ?
Na Stare Miasto można dostać się z każdej dzielnicy Wrocławia za pomocą 20 połączeń tramwajowych i autobusowych. Po Starym Mieście najlepiej poruszać się pieszo, rikszą lub tramwajem wodnym.
Przyszli mieszkańcy inwestycji Apartamenty Nowy Targ mogą korzystać z rozbudowanej sieci połączeń komunikacyjnych. W odległości 100 metrów od inwestycji Apartamenty Nowy Targ znajduje się najbliższy punkt komunikacyjny - Hala Targowa.
Edukacja
Czy w pobliżu inwestycji Apartamenty Nowy Targ znajdują się szkoły/przedszkola?
Mieszkańcy mogą korzystać z bogatej oferty edukacyjnej. W najbliższej okolicy inwestycji Apartamenty Nowy Targ znajduje się 111 placówek edukacyjnych. Najbliżej położone to: Uniwersytet Wrocławski w odległości 100 m.
Opieka medyczna
Dużym atutem inwestycji Apartamenty Nowy Targ jest bliskość ośrodków zdrowotnych. Dostęp do opieki medycznej zapewnią położone w pobliżu: Spółdzielcze Centrum Rehabilitacyjno-Medyczne "RESURS" w odległości 300 m.
Sklepy i usługi
Jak daleko jest do najbliższego sklepu?
Na infrastrukturę handlowo-usługową inwestycji Apartamenty Nowy Targ składa się wiele punktów. Nieopodal, w odległości 100 m znajduje się Delikatesy Centrum, w odległości 200 m znajduje się Żabka.
Sport
Bliskość terenów rekreacyjnych oraz obiektów sportowych to mocna strona tej lokalizacji. W najbliższej okolicy inwestycji Apartamenty Nowy Targ w odległości 100 m znajduje się siłownia na świeżym powietrzu.
Shark Investment Sp. z o.o.
Strona internetowa inwestycjiAdres biura sprzedaży:
ul. Zaolziańska 1, WrocławGodziny otwarcia biura sprzedaży:
- Poniedziałek: 09:30 - 17:00
- Wtorek: 09:30 - 17:00
- Środa: 09:30 - 17:00
- Czwartek: 09:30 - 17:00
- Piątek: 09:30 - 17:00





