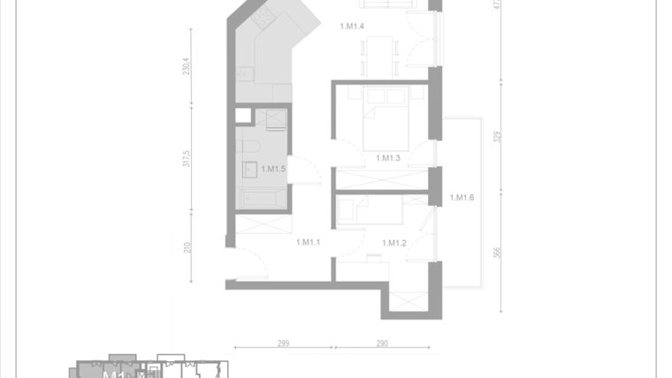
Mieszkanie na sprzedaż 3 pokoje o powierzchni 59,98 m² numer M1
Inwestycja:
Apartamenty Casa SoleDeweloper:
Smart Apartments Sp. z o.o.
Inwestycja:
Apartamenty Casa SoleDeweloper:
Smart Apartments Sp. z o.o.Kraków, Dębniki, ul. Kobierzyńska 193 E
Kraków, Dębniki, ul. Kobierzyńska 193 E
Termin oddania
Gotowe
Ilość pokoi
3 pokoje
Metraż
59,98 m²
Piętro
1 piętro
Powierzchnie dodatkowe
Balkon, Balkon
Kuchnia
otwarta kuchnia
Wysokość pomieszczeń
260 cm wysokości
Ilość poziomów
1 poziom
Oznaczenie oferty
M1

Raport o deweloperze
Poznaj dewelopera bliżej! Pobierz raport, w którym znajdziesz kluczowe informacje o firmie, jej doświadczeniu, nagrodach oraz aktualnych i zrealizowanych inwestycjach.
Budynek i otoczenie
Miejsca postojowe | |
|---|---|
Komórki lokatorskie | dostępne (14) |
Standard wykończenia | standard deweloperski |
Realizacja inwestycji | rozpoczęcie budowy w 2 kw. 2024 roku, inwestycja została oddana do użytkowania w 3 kw. 2025 roku |
Udogodnienia | winda |
Przyroda | informacja u dewelopera |
Charakterystyka energetyczna nieruchomości | informacja u dewelopera |
Rezerwacja i finanse
Rodzaj własności | Odrębna własność z własnością gruntu |
|---|---|
Wysokość czynszu | informacja u dewelopera |
Warunki rezerwacji | 1 miesięczna rezerwacja, opłata rezerwacyjna w wysokości 1 % wartości lokalu mieszkalnego |
Zabezpieczenie środków | Zamknięty mieszkaniowy rachunek powierniczy |
Zdjęcia z budowy
Zobacz na jakim etapie budowy jest ta inwestycja
Lokalizacja inwestycji
Stacja kolejowa - Kraków Swoszowice - 2448 m
Przystanek Tramwajowy - 866 m
Przystanek Autobusowy - 130 m
Dojazd do centrum: pokaż
W pobliżu 1 km od tej inwestycji znajdują się:
30 kawiarni i restauracji, 51 sklepów, 20 obiektów sportowych, 7 placówek medycznych, 26 placówek edukacyjnych, 43 place zabaw
Przeczytaj więcej o lokalizacji
Leżące w południowo-zachodniej części Krakowa Dębniki to dzielnica VIII, zajmująca obszar 4618,87 ha i zamieszkana przez 59 395 osób. Jest to teren bardzo zróżnicowany pod względem zagospodarowania. Zachodnia połowa dzielnicy to pełne malowniczych krajobrazów Lasy Tynieckie, przez które przepływa Wisła, natomiast wschodnia część Dębnik jest zdecydowanie bardziej zurbanizowana. Obok starych budowli, w tym kamienic i budynków typu dworkowego, znajdziemy tu nowe nieruchomości, takie jak osiedla mieszkaniowe, domy jednorodzinne oraz wille. Na Dębnikach kwitnie życie sportowe i kulturalne. Znajduje się tu m.in. Ośrodek Olimpijski „Kolna” i 3 centra sportowe oraz 2 muzea i centrum kultury. Na terenie dzielnicy VIII mieszczą się również 3 wydziały Uniwersytetu Jagiellońskiego. Niedaleka odległość od centrum sprawia, że na Dębnikach skutecznie działa komunikacja miejska. Odbywają się tu kursy linii autobusowych i tramwajowych. Przez dzielnicę przebiega droga krajowa nr 7, a na niewielkim fragmencie także droga krajowa nr 44, natomiast wzdłuż północnej granicy biegnie droga wojewódzka nr 780.
Opis oferty
Nowe 3-pokojowe mieszkanie na sprzedaż o powierzchni 59,98 m² znajduje się w nowo budowanej inwestycji deweloperskiej Apartamenty Casa Sole na Dębnikach, ul. Kobierzyńska 193 E (6.6 km od centrum Krakowa).
Inwestycja jest realizowana przez Smart Apartments Sp. z o.o.
Cała inwestycja składa się z 1 budynku, w którym łącznie znajduje się 11 nowych mieszkań.
Na sprzedaż pozostaje 6 ofert o powierzchni od 49 do 62 m².
W budynku są 3 kondygnacje naziemne oraz 1 kondygnacja podziemna.
Inwestycja Apartamenty Casa Sole została wybudowana i oddana do użytkowania w 3 kw. 2025 roku.
Nowe mieszkanie o oznaczeniu M1 znajduje się na 1 piętrze i jest 1-poziomowe. Pomieszczenia mają 260 centymetrów wysokości. W mieszkaniu znajdują się 3 pokoje.
Do mieszkania przewidziano możliwość zakupu komórki lokatorskiej, którą można zagospodarować na spiżarnię, warsztat czy składzik.
Dla przyszłych mieszkańców Apartamenty Casa Sole deweloper przewidział miejsca postojowe podziemne, miejsca postojowe naziemne.
Dzięki temu przyszli właściciele nie będą musieli poszukiwać wolnej przestrzeni parkingowej. Dodatkowo, miejsce postojowe w garażu podziemnym zabezpiecza przed niekorzystnymi warunkami atmosferycznymi.
Opis Inwestycji
Okazyjna cena
Kameralny budynek
Pow. dodatkowe
Casa Sole to nowoczesna, przyjazna architektura, przyjazna architektura zaprojektowana dla rodzin. Inwestycja obejmuje budowę czterokondygnacyjnego budynku mieszkalnego, wielorodzinnego, wykończonego trwałymi i eleganckimi materiałami z dbałością o wszelkie detale architektoniczne. Klienci mają do wyboru 11 mieszkań o zróżnicowanym układzie i powierzchni.
W ofercie znajdują się mieszkania z miejscami postojowymi w garażu podziemnym oraz komórkami lokatorskimi. Na parterze dostępne są 3 lokale usługowe. Budynek wyposażony jest w dwubiegową klatkę schodową i windę obsługującą wszystkie kondygnacje. Nieruchomość jest również przystosowana do potrzeb osób niepełnosprawnych.
Lokalizacja
Casa Sole to doskonałe miejsce dla osób poszukujących mieszkania w dobrze skomunikowanej lokalizacji, a jednocześnie na terenie, z niską, kameralną zabudową.
Nie bez znaczenia pozostaje bliskość Kampusu Uniwersytetu Jagiellońskiego, Krakowskiego Parku Technologicznego oraz licznych biur międzynarodowych korporacji.
Dzięki dobrej komunikacji autobusowej można bez problemu dotrzeć do centrum miasta. Pokonując krótki odcinek pieszo można dojść do szkół, przedszkoli, aptek, przychodni oraz do sklepów.
Tereny rekreacyjne , takie jak Krakowski Klub Jazdy Konnej , Skałki Twardowskiego, Las Żywiecki , Las Borkowski , centra sportu i rekreacji czy też ścieżki rowerowe sprzyjają aktywnemu wypoczynkowi.
W bliskim sąsiedztwie realizowane są inwestycje miejskie; Trasa Łagiewnicka, Dom kultury na Ruczaju.
Mieszkanie znajduje się w inwestycji Apartamenty Casa Sole, w której znajdują się w sprzedaży jeszcze 4 podobne nowe mieszkania.
Smart Apartments Sp. z o.o.
Strona internetowa inwestycjiAdres biura sprzedaży:
ul. Salwatorska 14/307, KrakówGodziny otwarcia biura sprzedaży:
- Poniedziałek: 09:00 - 16:00
- Wtorek: 09:00 - 16:00
- Środa: 09:00 - 16:00
- Czwartek: 09:00 - 16:00
- Piątek: 09:00 - 16:00





