Apartamenty Poligonowa etap 5
Oferta archiwalna
Mieszkania na sprzedaż oferowane bezpośrednio przez RWP
Lublin, Sławin, ul. Wędrowna 1
Lublin, Sławin, ul. Wędrowna 1
Oferta archiwalna
Uwaga! Wizytówka niniejszej inwestycji jest nieaktywna. Informacje na jej temat pomagają nam jednak tworzyć wiarygodną bazę informacji na temat lokalnego rynku nieruchomości.
Mamy dla Ciebie 22 oferty w najbliższej okolicy!
Podobne oferty w najbliższej okolicy
Prezentacja oferty archiwalnej
Apartamenty Poligonowa etap 5
Lublin, Sławin, ul. Wędrowna 1
Udogodnienia Inwestycji
Standard i bezpieczeństwo
- usługi w budynku
- Standard deweloperski
Rekreacja
- plac zabaw
Przyroda w okolicy
- park
- las
Szczegóły inwestycji
Realizacja inwestycji: | rozpoczęcie budowy w 4 kw. 2024 roku,
planowane oddanie do użytkowania w 4 kw. 2026 roku |
|---|---|
Liczba budynków: | cała inwestycja składa się z 2 budynków |
Liczba kondygnacji: | budynki posiadają 4 kondygnacje naziemne wraz z parterem oraz 1 kondygnację podziemną |
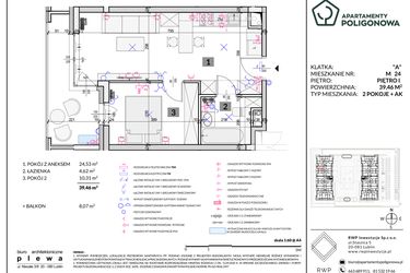
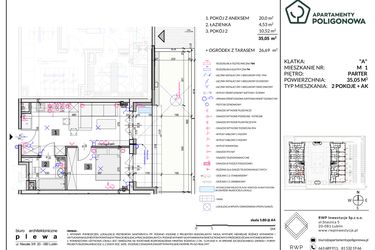
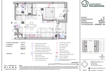
Liczba mieszkań: | cała inwestycja składa się z 110 lokali mieszkalnych |
Wysokość pomieszczeń: | w zależności od kondygnacji od 260 do 280 cm wysokości |
Standard wykończenia | standard deweloperski Ogrzewanie miejskie |
Rodzaj własności: | informacja u dewelopera |
Powierzchnie dodatkowe: | nie przewidziano powierzchni dodatkowych |
Komórki lokatorskie: | posiada (32): nieobowiązkowy zakup |
Miejsca postojowe: | w inwestycji przewidziano:
|
Przyroda: | w okolicy inwestycji znajduje się park, las |
Opis inwestycji
Inwestycja Apartamenty Poligonowa to nowoczesny projekt mieszkaniowy zlokalizowany w spokojnej dzielnicy Sławin w Lublinie, zapewniający komfort życia w otoczeniu zieleni i jednocześnie bliskość miejskiej infrastruktury.
Inwestycja obejmuje budowę czterokondygnacyjnych budynków mieszkalnych o zróżnicowanej ofercie mieszkań – od kawalerek po przestronne apartamenty. Lokale zostały zaprojektowane z myślą o funkcjonalności i estetyce, z dużymi przeszkleniami zapewniającymi naturalne doświetlenie oraz przemyślanym układem pomieszczeń, który pozwala na elastyczne aranżacje. Inwestycja charakteryzuje się nowoczesną architekturą oraz starannie zaplanowaną przestrzenią wokół budynków.
W ramach etapu 5, na parterze przewidziano również lokale usługowe, które zwiększają wygodę codziennego życia mieszkańców, zapewniając łatwy dostęp do potrzebnych usług. Dogodna lokalizacja inwestycji, w pobliżu terenów zielonych, ścieżek rowerowych, szkół i przedszkoli, sprawia, że jest to idealna propozycja zarówno dla rodzin, jak i osób aktywnych zawodowo.
Inwestycja Apartamenty Poligonowa etap 5 znajduje się na Sławinie, ul. Wędrowna 1 (3.9 km od centrum Lublina), jest realizowana przez RWP.
Inwestycja obecnie jest w trakcie budowy z planowanym na 4 kw. 2026 roku terminem oddania do użytkowania.
Cały projekt składa się z 110 nowych mieszkań znajdujących się w 2 budynkach. Budynki posiadają 4 kondygnacje naziemne wraz z parterem oraz 1 kondygnację podziemną.
Aktualnie w inwestycji Apartamenty Poligonowa etap 5 nie ma nowych mieszkań w sprzedaży.
Dla przyszłych mieszkańców Apartamenty Poligonowa etap 5 deweloper przewidział:
- miejsca postojowe podziemne (135 miejsc)
- miejsca postojowe naziemne (37 miejsc)
W inwestycji znajdują się 32 komórki lokatorskie nieobowiązkowy zakup.
Lokalizacja inwestycji
Lublin jest miastem powiatowym i stolicą woj. lubelskiego. To największy ośrodek miejski wschodniej Polski. Ze względu na bliskość Ukrainy i Białorusi, miasto wyróżnia się wielokulturowością, co widoczne jest m.in. w stylistyce architektonicznej miasta. Typ zabudowy jest natomiast zależny od dzielnicy, np. na Starym Mieście przeważają zabytkowe kamienice, Rury składają się niemal z samych osiedli mieszkalnych, a Zemborzyce to spokojna okolica otoczona przyrodą. Lublin to także ważny ośrodek akademicki. Mieści się tu kilkanaście szkół wyższych, takich jak Politechnika Lubelska, Uniwersytet Medyczny i Katolicki Uniwersytet Lubelski Jana Pawła II. Jest tu też kilkanaście szpitali, w tym kilka szpitali wojewódzkich i klinicznych. Pod względem rekreacyjnym miasto słynie z dróg rowerowych o łącznej długości ok. 100 km. Kwitnie tu życie kulturalne, działa filharmonia, wiele kin i teatrów. Mieści się tu również kilka galerii handlowych. Prężnie funkcjonuje komunikacja miejska, w tym trolejbusy, a z resztą kraju Lublin łączą dwie drogi krajowe, droga ekspresowa i okoliczna sieć ponad kilkunastu przecinających się dróg wojewódzkich.
Komunikacja
Jak wygląda komunikacja w okolicy inwestycji Apartamenty Poligonowa etap 5?
Lublin jest jedynym miastem na wschodzie Polski tak dobrze skomunikowanym z innymi częściami kraju. Przez jego centrum przechodzą drogi krajowe nr 19 i 82, a częścią wschodniej i całą północną granicą biegnie droga ekspresowa S12, która na tym odcinku jest fragmentem europejskiej trasy E373. Przez miasto biegnie też kilka dróg wojewódzkich (nr 809, 822, 830, 835, 747), ale w promieniu ok. 15 km od miasta biegną też drogi wojewódzkie nr 820, 828, 829, 834, 836, 837, 860. Cechą szczególną komunikacji miejskiej są tu - kursujące obok autobusów - trolejbusy, które jeżdżą tylko po trzech polskich miastach.
Przyszli mieszkańcy inwestycji Apartamenty Poligonowa etap 5 mogą korzystać z rozbudowanej sieci połączeń komunikacyjnych. W odległości 100 metrów od inwestycji Apartamenty Poligonowa etap 5 znajduje się najbliższy punkt komunikacyjny - Zielone Wzgórze 01.
Edukacja
Czy w pobliżu inwestycji Apartamenty Poligonowa etap 5 znajdują się szkoły/przedszkola?
Mieszkańcy mogą korzystać z bogatej oferty edukacyjnej. W najbliższej okolicy inwestycji Apartamenty Poligonowa etap 5 znajduje się 8 placówek edukacyjnych. Najbliżej położone to: Niepubliczna Szkoła Podstawowa z Oddziałami Integracyjnymi Bajkowa Akademia w odległości 200 m, Niepubliczne Przedszkole "Akademia Małych Artystów" w odległości 600 m.
Opieka medyczna
Dużym atutem inwestycji Apartamenty Poligonowa etap 5 jest bliskość ośrodków zdrowotnych. Dostęp do opieki medycznej zapewnią położone w pobliżu: AB Centrum Medyczne Relaksowa w odległości 500 m.
Sklepy i usługi
Jak daleko jest do najbliższego sklepu?
Na infrastrukturę handlowo-usługową inwestycji Apartamenty Poligonowa etap 5 składa się wiele punktów. Nieopodal, w odległości 300 m znajduje się Stokrotka, w odległości 400 m znajduje się Żabka.
Sport
Bliskość terenów rekreacyjnych oraz obiektów sportowych to mocna strona tej lokalizacji. W najbliższej okolicy inwestycji Apartamenty Poligonowa etap 5 w odległości 200 m znajduje się szachownica, w odległości 200 m znajduje się siłownia na świeżym powietrzu.
Pobliskie lokalizacje
- Mieszkania na sprzedaż Bronowice (37 ofert)
- Mieszkania na sprzedaż Czechów Północny (199 ofert)
- Mieszkania na sprzedaż Czechów Południowy (459 ofert)
- Mieszkania na sprzedaż Dziesiąta (64 oferty)
- Mieszkania na sprzedaż Felin (82 oferty)
- Mieszkania na sprzedaż Konstantynów (80 ofert)
- Mieszkania na sprzedaż Kośminek (83 oferty)
- Mieszkania na sprzedaż Ponikwoda (323 oferty)
- Mieszkania na sprzedaż Rury (4 oferty)
- Mieszkania na sprzedaż Sławinek (44 oferty)
- Mieszkania na sprzedaż Śródmieście (459 ofert)
- Mieszkania na sprzedaż Stare Miasto (36 ofert)
- Mieszkania na sprzedaż Szerokie (119 ofert)
Inwestycje w pobliżu na Sławinie
- Wędrowna (13 ofert)
- Koncertowe Wzgórze etap II (88 ofert)
- Kameralny Sławin etap VI (1 oferta)
- Nowy Czechów (94 oferty)
- Kwietny Ogród (78 ofert)
- Chodźki Residence 2 (86 ofert)
- Chodźki Residence 2 - apartamenty inwestycyjne (52 oferty)
- Morwowa 5 (40 ofert)
- Studio Residence (4 oferty)
- Północna 26 (15 ofert)
- Pączka 1 (75 ofert)
- Rezydencja Ogród Saski etap I i II (69 ofert)





