Mieszkanie na sprzedaż 4 pokoje o powierzchni 78,97 m² numer M27
Inwestycja:
Apartamenty Przystań bud. FDeweloper:
Rutkowski Development Sp. J.
Inwestycja:
Apartamenty Przystań bud. FDeweloper:
Rutkowski Development Sp. J.Giżycko, Al. 1 Maja 34
Giżycko, Al. 1 Maja 34
Termin oddania
1 kw. 2027
Ilość pokoi
4 pokoje
Metraż
78,97 m²
Piętro
5 piętro
Kuchnia
otwarta kuchnia
Wysokość pomieszczeń
od 260 do 280 cm wysokości
Ilość poziomów
1 poziom
Oznaczenie oferty
M27

Raport o deweloperze
Poznaj dewelopera bliżej! Pobierz raport, w którym znajdziesz kluczowe informacje o firmie, jej doświadczeniu, nagrodach oraz aktualnych i zrealizowanych inwestycjach.
Budynek i otoczenie
Miejsca postojowe | |
|---|---|
Komórki lokatorskie | dostępne |
Standard wykończenia | standard deweloperski Ogrzewanie miejskie |
Realizacja inwestycji | rozpoczęcie budowy w 2 kw. 2025 roku, planowane oddanie do użytkowania w 1 kw. 2027 roku |
Udogodnienia | plac zabaw, monitoring, winda, usługi w budynku |
Przyroda | w okolicy inwestycji znajduje się las, jezioro |
Charakterystyka energetyczna nieruchomości | informacja u dewelopera |
Rezerwacja i finanse
Rodzaj własności | Odrębna własność z własnością gruntu |
|---|---|
Wysokość czynszu | informacja u dewelopera |
Warunki rezerwacji | Informacja u dewelopera |
Zabezpieczenie środków | Otwarty mieszkaniowy rachunek powierniczy |
Zdjęcia z budowy
Zobacz na jakim etapie budowy jest ta inwestycja
Lokalizacja inwestycji
Stacja kolejowa - Giżycko - 1519 m
Przystanek Autobusowy - 175 m
Dojazd do centrum: pokaż
W pobliżu 1 km od tej inwestycji znajdują się:
6 kawiarni i restauracji, 16 sklepów, 30 obiektów sportowych, 3 placówki medyczne, 31 placówek edukacyjnych, 24 place zabaw
Przeczytaj więcej o lokalizacji
Giżycko to miasto położone w województwie warmińsko-mazurskim. Stolica Krainy Wielkich Jezior Mazurskich leży na wąskim przesmyku pomiędzy jeziorami Niegocin i Kisajno. Część miasta jest zlokalizowana na Wyspie Giżyckiej. Miasto jest największym ośrodkiem wczasowo-turystycznym na Mazurach. Znajduje się tu kilka plaż i liczne miejsca do wędkowania. Giżycko określane jest mianem Wodniackiej Stolicy Polski. Malowniczy krajobraz, czysta woda i zdrowe powietrze przyciągają co roku kilka tysięcy osób. Giżycko to miasto, w którym miłośnicy różnego rodzaju sportów i aktywności poczują się jak u siebie w domu. Miasto posiada dobrze rozbudowaną infrastrukturę handlowo-usługową. Na terenie Giżycka znajdują się liczne centra handlowe. Pod koniec lata organizowane są imprezy związane z obchodami Dni Giżycka. Dodatkowym atutem jest bogata oferta edukacyjna. Miasto posiada kilka szkół podstawowych, w tym Szkołę Muzyczną I stopnia, kilka szkół średnich oraz szkoły wyższe.
Opis oferty
Nowe 4-pokojowe mieszkanie na sprzedaż o powierzchni 78,97 m² znajduje się w nowo budowanej inwestycji deweloperskiej Apartamenty Przystań bud. F w Giżycku (1.2 km od centrum Giżycka).
Inwestycja jest realizowana przez Rutkowski Development Sp. J.
Cała inwestycja składa się z 1 budynku, w którym łącznie znajdują się 52 nowe mieszkania.
Na sprzedaż pozostają 23 oferty o powierzchni od 34 do 79 m².
W budynku jest 6 kondygnacji naziemnych oraz 1 kondygnacja podziemna.
Inwestycja Apartamenty Przystań bud. F jest w trakcie budowy z planowanym na 1 kw. 2027 roku terminem oddania do użytkowania.
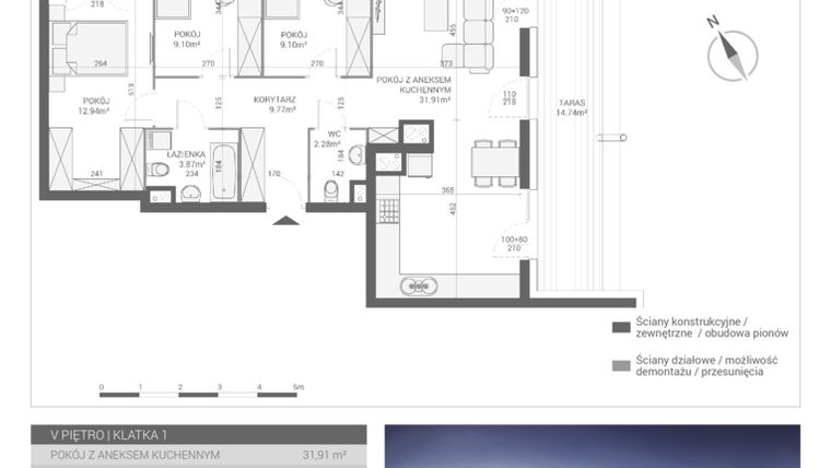
Nowe mieszkanie o oznaczeniu M27 znajduje się na 5 piętrze i jest 1-poziomowe. Pomieszczenia mają od 260 do 280 centymetrów wysokości. W mieszkaniu znajdują się 4 pokoje.
Dla przyszłych mieszkańców Apartamenty Przystań bud. F deweloper przewidział miejsca postojowe podziemne.
Dzięki temu przyszli właściciele nie będą musieli poszukiwać wolnej przestrzeni parkingowej. Dodatkowo, miejsce postojowe w garażu podziemnym zabezpiecza przed niekorzystnymi warunkami atmosferycznymi.
Opis Inwestycji
POZNAJ OSIEDLE
Czy znalazłeś już swoją bezpieczną przystań w codziennym zgiełku? To tutaj! Witają Cię jasne elewacje, kaskadowe tarasy, balkony ze szklanymi balustradami, staranne wykończenia budynków i piękna zieleń wokół…
Apartamenty Przystań w sercu Mazur to miejsce, którego szukałeś.
Charakterystyczne kaskadowe tarasy, balkony ze szklanymi balustradami, jasne elewacje i panoramiczne przeszklenia tworzą niestarzejący się, elegancki design. Lokalizacja niedaleko szkół, sklepów i plaży, funkcjonalne układy mieszkań oraz nowoczesne udogodnienia sprawiają, że jest to miejsce doskonałe zarówno do życia, jak i pod względem inwestycyjnym.
SPRAWDŹ STANDARD
W aktualnym etapie F budowy osiedla powstaje 6-kondygnacyjny budynek z 52 komfortowymi, ustawnymi mieszkaniami o powierzchniach od około 34 m² do 103 m². Zaprojektowaliśmy apartamenty z balkonami o powierzchni do 27 m² oraz przestronnymi tarasami o powierzchni do 45 m², które będą idealnymi miejscami na poranną kawę czy wieczorne spotkania z bliskimi.
Na terenie inwestycji zaprojektowano plac zabaw dla najmłodszych, w budynku znajdą się dwie windy, lokale usługowe na parterze, a w podziemnej hali garażowej – miejsca parkingowe, komórki lokatorskie oraz boksy rowerowe.
Mieszkanie znajduje się w inwestycji Apartamenty Przystań bud. F, w której znajduje się w sprzedaży jeszcze 8 podobnych nowych mieszkań.
Rutkowski Development Sp. J.
Strona internetowa inwestycjiAdres biura sprzedaży:
ul. Al. 1 Maja 34A, 11-500 GiżyckoGodziny otwarcia biura sprzedaży:
- Poniedziałek: 08:00 - 17:00
- Wtorek: 08:00 - 17:00
- Środa: 08:00 - 17:00
- Czwartek: 08:00 - 17:00
- Piątek: 08:00 - 17:00
- Sobota: 09:00 - 14:00
Salony otwarte w każdą ostatnią sobotę miesiąca!





